4.9
Рейтинг на основании 120 отзывов
Дмитров
Опорный проезд 28Б
(индустриальный парк Ниагара)
Бренд "Дмитров-Дело" c 2008 года на рынке строительства в Дмитрове
Звоните 9:00 до 18:00 8 (915) 055-33-61
Бренд "Дмитров-Дело" c 2008 года на рынке строительства в Дмитрове

Проект загородного дома NHD-133

Стоимость проекта от:
49 500 ₽
Стоимость строительства от:
7 960 800 ₽
Артикул ART-16211
Дата 26.12.2025
Архитектурный стиль Классический
Количество надземных этажей 2
Круглогодичное проживание Да
Площадь дома 110 м2
Санузлы 2
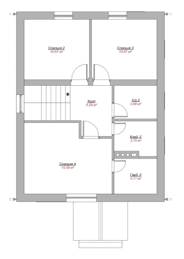
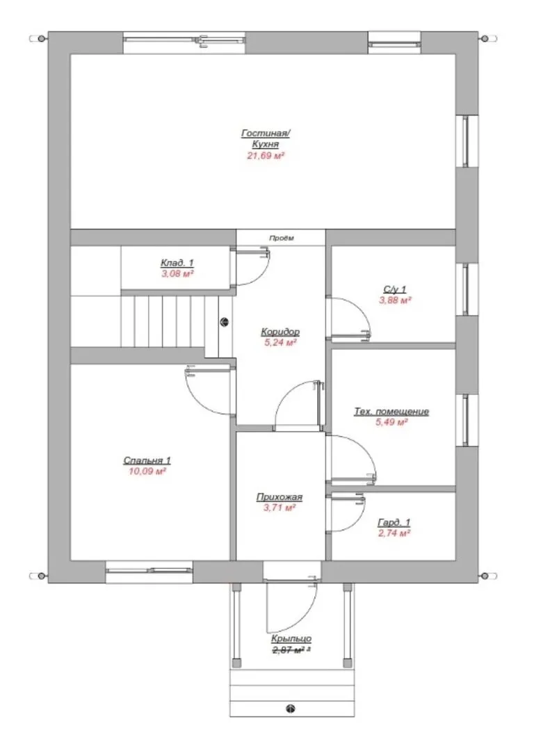
Спальни 4

Описание

Знакомьтесь с проектом загородного дома NHD‑133 – элегантное сочетание традиционного стиля и современных решений, созданное для тех, кто ценит уют и практичность. Два надземных этажа обеспечивают достаточно пространства для семьи, а круглогодичное проживание гарантирует, что в любой сезон дом будет дарить тепло и комфорт. Классический архитектурный облик подчёркнут мягкой двойной крышей, которая придаёт зданию сбалансированный и гармоничный вид, а наружные стены из газобетонных блоков – не только эстетичны, но и энергоэффективны, обеспечивая длительную теплоизоляцию и долговечность конструкции. Дизайн дома продуман до мелочей: без балконов и веранд, но наличие вместительного чердачного помещения открывает множество вариантов использования – от подвала для хранения до уютной мастерской или дополнительной спальни. Поскольку автомобиль размещается на открытой улице, дом сохраняет открытость и простоту в обслуживании, а не требование к прицепленным гаражам делает его ещё более гибким. Выбирая NHD‑133, вы выбираете дом, где традиции встречаются с функциональностью, а каждый уголок создан для того, чтобы приносить радость и спокойствие семьей.

Характеристики дома

Архитектурный стиль
Классический
Автоматизированное регулирование параметров теплоносителя
Да
Балконы/лоджии
Отсутствуют
Чердачное помещение
Да
Датчики протечки воды
Нет
Эксплуатируемая или зеленая кровля
Нет
Электроснабжение
Центральное
Газоснабжение
Центральное
Изоляция воздушного шума
Да
Камин
Нет
Класс энергоэффективности
A++
Класс энергосбережения
A++
Количество надземных этажей
2
Круглогодичное проживание
Да
Материал кровли
Металлочерепица
Материал перекрытий
Сборные железобетонные предварительно напряженные пустотные плиты
Материал внешних стен
Газобетонные блоки
Материал внутренних перегородок
Блочные
Модульное строительство с конструкциями заводского изготовления
Нет
Объем надземной части
642 м3
Основной материал фасадов
Штукатурка
Отопление
Индивидуальное
Площадь дома
110 м2
Площадь застройки
82 м2
Подвальное помещение
Нет
Показатель компактности здания
0.8
Приборы учета тепловой энергии
Да
Пристроенный гараж/крытая автостоянка
Нет
Противопожарная система
Нет
Санузлы
2
Совмещенная кухня-гостиная
Да
Спальни
4
Терраса
Нет
Тип фундамента
Свайно-ростверковый
Тип кровли
Двускатная
Толщина внешних стен
400 мм
Толщина внутренних перегородок
100 мм
Улучшенные шумовые характеристики
Да
Вентиляция
Естественная
Веранда
Нет
Водоотведение
Локальные очистные сооружения
Водоснабжение
Индивидуальное
Высота дома
8.5 м
Высота потолков
2.8 м

Планировка

Фасад дома

Александр

Закажите выезд инженера

Александр

Выездной инженер
Закажите выезд инженера для точной диагностики и профессиональной консультации по инженерным системам. Специалист приедет в удобное время, проведёт осмотр, рассчитает стоимость работ и подберёт оптимальные решения для вашего дома.


    Похожие проекты

    Ипотека и
    рассрочка
    Загородный дом «Динара»
    Стоимость от:
    4 533 980
    Проект от: 33 300
    Этажей 1
    Санузлы 1
    Спальни 3
    Смотреть
    Ипотека и
    рассрочка
    Фазан-1/24
    Стоимость от:
    9 321 840
    Проект от: 59 400
    Этажей 1
    Санузлы 2
    Спальни 3
    Смотреть
    Ипотека и
    рассрочка
    Проект индивидуального жилого одноэтажного на 154,97 м 2
    Стоимость от:
    11 566 280
    Проект от: 69 300
    Этажей 1
    Санузлы 2
    Спальни 3
    Смотреть
    Ипотека и
    рассрочка
    Кудиново
    Стоимость от:
    10 281 360
    Проект от: 71 550
    Этажей 2
    Санузлы 2
    Спальни 5
    Смотреть
    Ипотека и
    рассрочка
    Индвидуальный жилой дом 620-01-07/21-АР
    Стоимость от:
    7 844 160
    Проект от: 51 300
    Этажей 2
    Санузлы 1
    Спальни 4
    Смотреть
    Ипотека и
    рассрочка
    Дом из клееного бруса «Агидель»
    Стоимость от:
    9 130 440
    Проект от: 63 450
    Этажей 2
    Санузлы 2
    Спальни 4
    Смотреть

    Как узнать стоимость дома

    back
    Оставляете заявку
    Вы заполняете форму на сайте или звоните нам. Менеджер Лайвкрафт связывается с вами для уточнения деталей: тип дома, площадь, материалы, участок строительства.
    back
    Консультация и подбор решения
    Наш специалист помогает выбрать оптимальный тип дома и конструкцию с учётом бюджета, сроков и целей — будь то дом для постоянного проживания или дача.
    back
    Расчёт предварительной стоимости
    Инженер делает первичный расчёт стоимости строительства по вашим параметрам: фундамент, коробка, кровля, отделка. Вы получаете смету с разбивкой по этапам.
    back
    Корректировка и утверждение сметы
    При необходимости вносим изменения — например, замену материалов или сокращение этапов. После согласования формируется окончательная фиксированная смета.
    back
    Заключение договора и старт работ
    После утверждения сметы заключаем официальный договор с гарантией. Вы получаете прозрачный график и точную стоимость — без скрытых расходов.

    Заказать конусльтацию по:Проект загородного дома NHD-133

    Фото 1 Проект загородного дома NHD-133


      Наши
      контакты

      Дмитров
      Опорный проезд 28Б
      (индустриальный парк Ниагара)
      9:00 до 18:00