4.9
Рейтинг на основании 120 отзывов
Дмитров
Опорный проезд 28Б
(индустриальный парк Ниагара)
Бренд "Дмитров-Дело" c 2008 года на рынке строительства в Дмитрове
Звоните 9:00 до 18:00 8 (915) 055-33-61
Бренд "Дмитров-Дело" c 2008 года на рынке строительства в Дмитрове

Проект загородного дома NHD-132

Стоимость проекта от:
51 750 ₽
БЕСПЛАТНО! ПРИ ЗАКАЗЕ СТРОИТЕЛЬСТВА
Стоимость строительства от:
8 331 600 ₽
Артикул ART-16400
Дата 26.12.2025
Архитектурный стиль Классический
Количество надземных этажей 2
Круглогодичное проживание Да
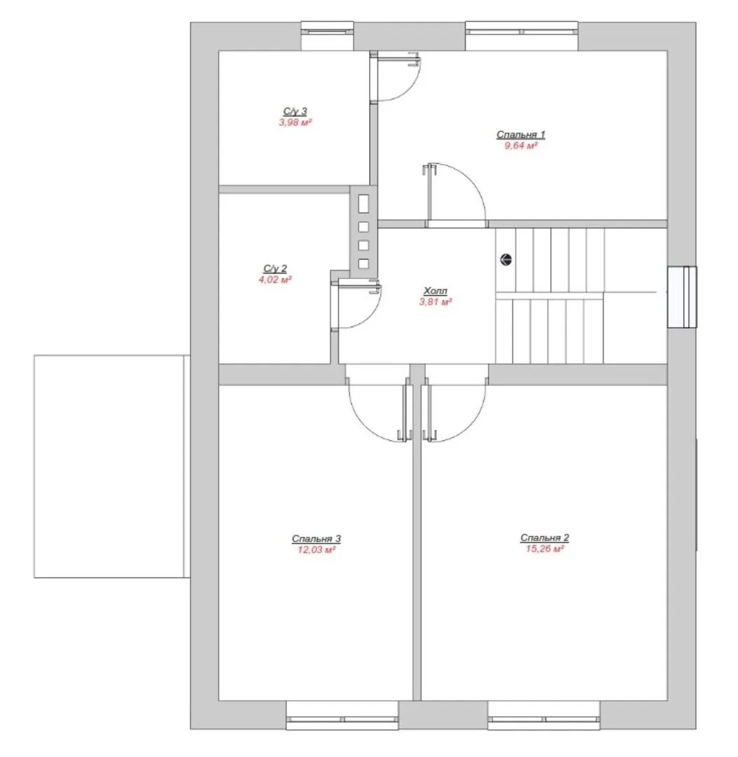
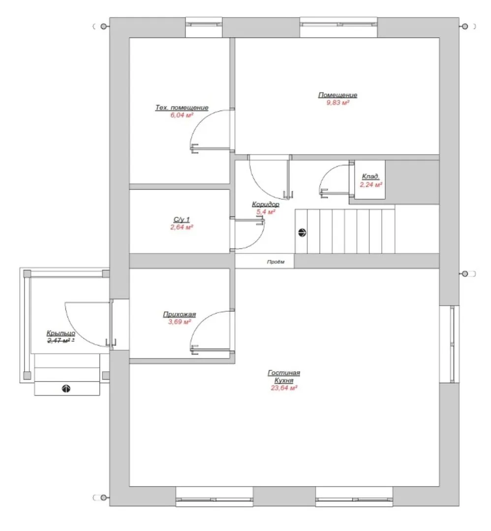
Площадь дома 115 м2
Санузлы 3
Спальни 3

Описание

Откройте для себя идеальный уголок уединения – проект загородного дома NHD‑132. Это два надземных этажа в классическом стиле, которые объединяют элегантность и функциональность. Вежливый габаритный дизайн, выдержанный в гармонии с природой, создает атмосферу спокойствия и благополучия. Благодаря круглогодичному обустройству, каждый посетитель сможет почувствовать уюта и уюта в любую пору года, а отсутствие балконов, веранд и прилагаемых гаражей делает дом ещё более цельным и бесшовным. Гостиная, открытая на большую площадь и светлые окна, будет приветствовать ваших близких с теплом и романтикой. Тёплая каменная стена, уютный уголок с камином, а внутри – мягкий и мягко освещённый интерьер, который заставит забыть о повседневной суете. Заменить обеденный стол на простую трапезу – и вы почувствуете, как в каждом уголке проникает естественная гармония. И не забудьте про чердачное помещение, которое можно превратить в уютную хижину для хранения, или в небольшую комнату для сна для гостей. Материалы – газобетонные блоки, отвечающие современным требованиям комфорта и теплоизоляции, а кровля – тип двускатный – придаёт дома устойчивую структуру и визуальную легкость. Он создан для тех, кто ценит простоту но при этом хочет жить в доме, который выглядит как произведение искусства, но при этом обладает практичностью в повседневном использовании. Каждый сантиметр NHD‑132 продуман до деталей, а дизайн подчеркивает истинное качество и уважение к вашему стилю жизни. Приглашаем вас открыть новый уровень спокойствия и роскоши в вашей загородной квартире.

Характеристики дома

Архитектурный стиль
Автоматизированное регулирование параметров теплоносителя
Да
Балконы/лоджии
Отсутствуют
Чердачное помещение
Да
Датчики протечки воды
Нет
Эксплуатируемая или зеленая кровля
Нет
Электроснабжение
Центральное
Газоснабжение
Центральное
Изоляция воздушного шума
Да
Камин
Нет
Класс энергоэффективности
A++
Класс энергосбережения
A++
Количество надземных этажей
2
Круглогодичное проживание
Да
Материал кровли
Металлочерепица
Материал перекрытий
Сборные железобетонные предварительно напряженные пустотные плиты
Материал внешних стен
Материал внутренних перегородок
Блочные
Модульное строительство с конструкциями заводского изготовления
Нет
Объем надземной части
555 м3
Основной материал фасадов
Штукатурка
Отопление
Индивидуальное
Площадь дома
115 м2
Площадь застройки
75 м2
Подвальное помещение
Нет
Показатель компактности здания
0.8
Приборы учета тепловой энергии
Да
Пристроенный гараж/крытая автостоянка
Нет
Противопожарная система
Нет
Санузлы
3
Совмещенная кухня-гостиная
Да
Спальни
3
Терраса
Нет
Тип фундамента
Свайно-ростверковый
Тип кровли
Толщина внешних стен
400 мм
Толщина внутренних перегородок
100 мм
Улучшенные шумовые характеристики
Да
Вентиляция
Естественная
Веранда
Нет
Водоотведение
Локальные очистные сооружения
Водоснабжение
Индивидуальное
Высота дома
8 м
Высота потолков
2.8 м

Планировка

Фасад дома

Александр

Закажите выезд инженера

Александр

Выездной инженер
Закажите выезд инженера для точной диагностики и профессиональной консультации по инженерным системам. Специалист приедет в удобное время, проведёт осмотр, рассчитает стоимость работ и подберёт оптимальные решения для вашего дома.


    Похожие проекты

    Ипотека и
    рассрочка
    Одноэтажный дом Оскар 81
    Стоимость от:
    5 367 120
    Проект от: 34 200
    Этажей 1
    Санузлы 1
    Спальни 2
    Смотреть
    Ипотека и
    рассрочка
    D17: Одноэтажный дом 8х9 с 3мя фронтонами со 2м светом
    Стоимость от:
    3 225 090
    Проект от: 26 100
    Этажей 1
    Санузлы 1
    Спальни 2
    Смотреть
    Ипотека и
    рассрочка
    Одноэтажный дом ПГ — 2
    Стоимость от:
    7 626 960
    Проект от: 48 600
    Этажей 1
    Санузлы 2
    Спальни 3
    Смотреть
    Ипотека и
    рассрочка
    Двухэтажное шале ГББ-1
    Стоимость от:
    10 755 360
    Проект от: 69 300
    Этажей 2
    Санузлы 2
    Спальни 6
    Смотреть
    Ипотека и
    рассрочка
    Загородный дом по проекту «Тор».
    Стоимость от:
    9 442 400
    Проект от: 65 250
    Этажей 1
    Санузлы 2
    Спальни 3
    Смотреть
    Ипотека и
    рассрочка
    Дом под ключ №6
    Стоимость от:
    6 716 700
    Проект от: 45 900
    Этажей 2
    Санузлы 2
    Спальни 3
    Смотреть

    Как узнать стоимость дома

    back
    Оставляете заявку
    Вы заполняете форму на сайте или звоните нам. Менеджер Лайвкрафт связывается с вами для уточнения деталей: тип дома, площадь, материалы, участок строительства.
    back
    Консультация и подбор решения
    Наш специалист помогает выбрать оптимальный тип дома и конструкцию с учётом бюджета, сроков и целей — будь то дом для постоянного проживания или дача.
    back
    Расчёт предварительной стоимости
    Инженер делает первичный расчёт стоимости строительства по вашим параметрам: фундамент, коробка, кровля, отделка. Вы получаете смету с разбивкой по этапам.
    back
    Корректировка и утверждение сметы
    При необходимости вносим изменения — например, замену материалов или сокращение этапов. После согласования формируется окончательная фиксированная смета.
    back
    Заключение договора и старт работ
    После утверждения сметы заключаем официальный договор с гарантией. Вы получаете прозрачный график и точную стоимость — без скрытых расходов.

    Заказать конусльтацию по:Проект загородного дома NHD-132

    Фото 1 Проект загородного дома NHD-132


      Наши
      контакты

      Дмитров
      Опорный проезд 28Б
      (индустриальный парк Ниагара)
      9:00 до 18:00

      Корзина