4.9
Рейтинг на основании 120 отзывов
Дмитров
Опорный проезд 28Б
(индустриальный парк Ниагара)
Бренд "Дмитров-Дело" c 2008 года на рынке строительства в Дмитрове
Звоните 9:00 до 18:00 8 (915) 055-33-61
Бренд "Дмитров-Дело" c 2008 года на рынке строительства в Дмитрове

Проект загородного дома NHD-155

Стоимость проекта от:
65 700 ₽
БЕСПЛАТНО! ПРИ ЗАКАЗЕ СТРОИТЕЛЬСТВА
Стоимость строительства от:
10 561 440 ₽
Артикул ART-16866
Дата 26.12.2025
Архитектурный стиль Классический
Количество надземных этажей 2
Круглогодичное проживание Да
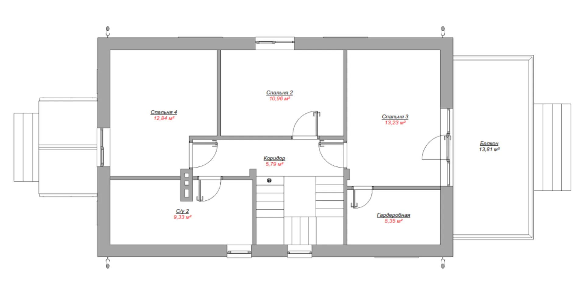
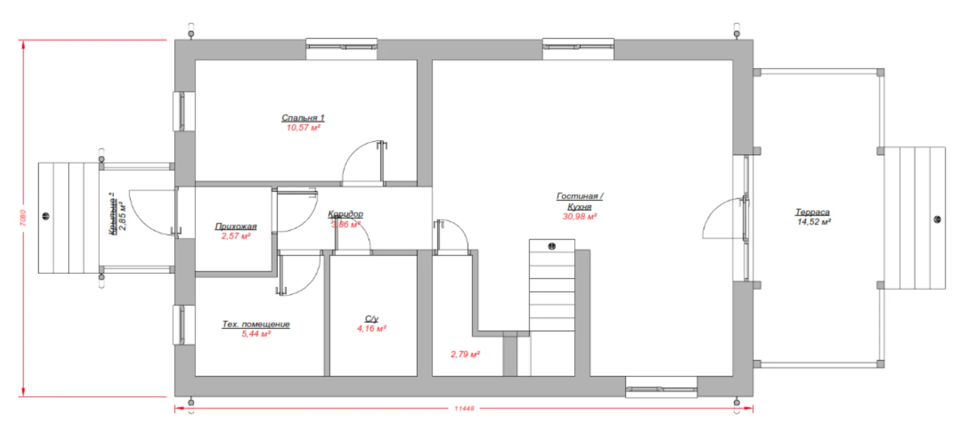
Площадь дома 146 м2
Санузлы 2
Спальни 4

Описание

Наслаждайтесь жизнью в уютном загородном доме, который объединяет классическое очарование и современные удобства. Проект NHD‑155, облачный надёжный уголок для семьи, создан с учётом всех требований к круглогодичному проживанию: два надземных этажа, просторные комнатные интерьеры и обширная терраса, где можно проводить летние вечера, а также отдохнуть после работы в тёплом летнем огне вечером. Классический архитектурный стиль подчёркивает элегантность и гармонию во всех деталях: тонко выверенные фасады, аккуратные окна и изящные балконы, где за окном будет видит рассвет и закат. Качество материалов и продуманная схема строительства делают ваш новый дом надёжным и комфортным. Внешняя отделка из газобетонных блоков сохраняет тепло в холодное время года и обеспечивает прохладу в жаркий сезон, а двускатная крыша добавляет эстетического шарма. Чердачное помещение открывает возможности для индивидуальных творческих проектов, хранения вещей или организации уютного рабочего пространства. Внутри дома каждый уголок создадтся для вашего спокойствия: большие светлые комнаты, просторные ванные комнаты и открытая планировка создают ощущение простора и свободы. Утончённый баланс между традиционным и современным делает этот дом идеальным местом для тех, кто мечтает о спокойной жизни в окружении природы, но без ущерба для комфорта и стиля. Попробуйте почувствовать тепло классической архитектуры, ощутите лёгкость жизни на территории, где каждая деталь продумана для вашего благополучия. Ваш идеальный дом уже ждёт встречи с вами!

Характеристики дома

Архитектурный стиль
Автоматизированное регулирование параметров теплоносителя
Да
Балконы/лоджии
1
Чердачное помещение
Да
Датчики протечки воды
Нет
Эксплуатируемая или зеленая кровля
Нет
Электроснабжение
Центральное
Газоснабжение
Центральное
Изоляция воздушного шума
Да
Камин
Нет
Класс энергоэффективности
A++
Класс энергосбережения
A++
Количество надземных этажей
2
Круглогодичное проживание
Да
Материал кровли
Металлочерепица
Материал перекрытий
Сборные железобетонные предварительно напряженные пустотные плиты
Материал внешних стен
Материал внутренних перегородок
Блочные
Модульное строительство с конструкциями заводского изготовления
Нет
Объем надземной части
668 м3
Основной материал фасадов
Штукатурка
Отопление
Индивидуальное
Площадь дома
146 м2
Площадь застройки
106 м2
Подвальное помещение
Нет
Показатель компактности здания
0.8
Приборы учета тепловой энергии
Да
Пристроенный гараж/крытая автостоянка
Нет
Противопожарная система
Нет
Санузлы
2
Совмещенная кухня-гостиная
Да
Спальни
4
Терраса
Да
Тип фундамента
Свайно-ростверковый
Тип кровли
Толщина внешних стен
400 мм
Толщина внутренних перегородок
100 мм
Улучшенные шумовые характеристики
Да
Вентиляция
Естественная
Веранда
Нет
Водоотведение
Локальные очистные сооружения
Водоснабжение
Индивидуальное
Высота дома
8.3 м
Высота потолков
2.8 м

Планировка

Фасад дома

Александр

Закажите выезд инженера

Александр

Выездной инженер
Закажите выезд инженера для точной диагностики и профессиональной консультации по инженерным системам. Специалист приедет в удобное время, проведёт осмотр, рассчитает стоимость работ и подберёт оптимальные решения для вашего дома.


    Похожие проекты

    Ипотека и
    рассрочка
    Дом из клееного бруса «Каменка»
    Стоимость от:
    10 906 060
    Проект от: 80 100
    Этажей 1
    Санузлы 1
    Спальни 3
    Смотреть
    Ипотека и
    рассрочка
    Коттедж PG-2 «Bona Fide»
    Стоимость от:
    5 861 460
    Проект от: 37 350
    Этажей 1
    Санузлы 1
    Спальни 3
    Смотреть
    Ипотека и
    рассрочка
    Двухэтажный дом FIXPLANS — 2366
    Стоимость от:
    6 526 800
    Проект от: 42 750
    Этажей 2
    Санузлы 1
    Спальни 3
    Смотреть
    Ипотека и
    рассрочка
    Дом 80 м2
    Стоимость от:
    6 371 200
    Проект от: 36 000
    Этажей 1
    Санузлы 1
    Спальни 2
    Смотреть
    Ипотека и
    рассрочка
    Дом с мансардным этажом «Юрма 3.0»
    Стоимость от:
    6 564 960
    Проект от: 42 300
    Этажей 2
    Санузлы 2
    Спальни 4
    Смотреть
    Ипотека и
    рассрочка
    Валенсия
    Стоимость от:
    11 234 190
    Проект от: 79 650
    Этажей 1
    Санузлы 2
    Спальни 3
    Смотреть

    Как узнать стоимость дома

    back
    Оставляете заявку
    Вы заполняете форму на сайте или звоните нам. Менеджер Лайвкрафт связывается с вами для уточнения деталей: тип дома, площадь, материалы, участок строительства.
    back
    Консультация и подбор решения
    Наш специалист помогает выбрать оптимальный тип дома и конструкцию с учётом бюджета, сроков и целей — будь то дом для постоянного проживания или дача.
    back
    Расчёт предварительной стоимости
    Инженер делает первичный расчёт стоимости строительства по вашим параметрам: фундамент, коробка, кровля, отделка. Вы получаете смету с разбивкой по этапам.
    back
    Корректировка и утверждение сметы
    При необходимости вносим изменения — например, замену материалов или сокращение этапов. После согласования формируется окончательная фиксированная смета.
    back
    Заключение договора и старт работ
    После утверждения сметы заключаем официальный договор с гарантией. Вы получаете прозрачный график и точную стоимость — без скрытых расходов.

    Заказать конусльтацию по:Проект загородного дома NHD-155

    Фото 1 Проект загородного дома NHD-155


      Наши
      контакты

      Дмитров
      Опорный проезд 28Б
      (индустриальный парк Ниагара)
      9:00 до 18:00

      Корзина