4.9
Рейтинг на основании 120 отзывов
Дмитров
Опорный проезд 28Б
(индустриальный парк Ниагара)
Бренд "Дмитров-Дело" c 2008 года на рынке строительства в Дмитрове
Звоните 9:00 до 18:00 8 (915) 055-33-61
Бренд "Дмитров-Дело" c 2008 года на рынке строительства в Дмитрове

Проект Жилой дом № 13

Стоимость проекта от:
27 000 ₽
Стоимость строительства от:
4 514 400 ₽
Артикул ART-14330
Дата 25.12.2025
Архитектурный стиль Классический
Количество надземных этажей 1
Круглогодичное проживание Да
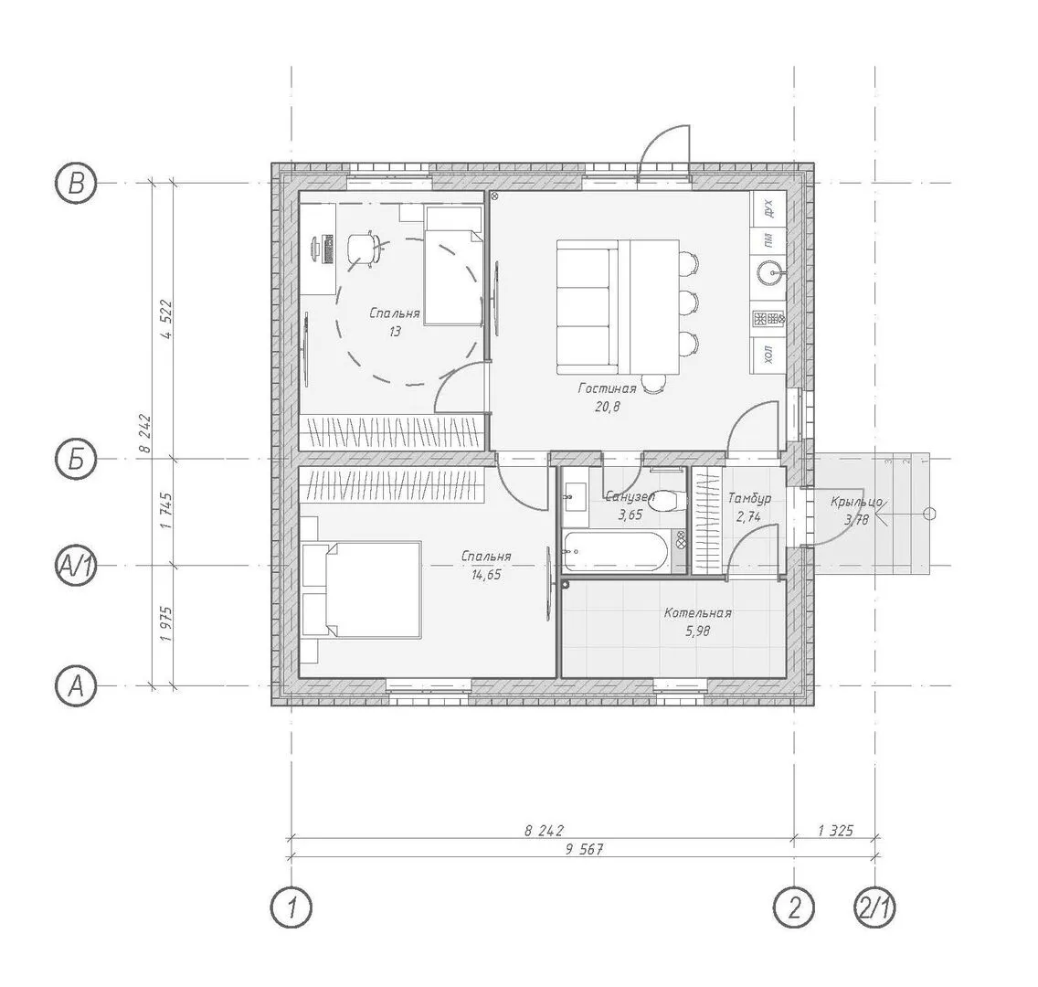
Площадь дома 60 м2
Санузлы 1
Спальни 2

Описание

Дом № 13 – это воплощение истинной классической элегантности, созданный для тех, кто ценит удобство и изысканный стиль. Одноэтажный, с четырёхскатной вальмовой крышей, он дарит ощущение открытости и гармонии с природой, а большие панорамные окна пропускают в интерьер мягкий, естественный свет. Внешние стены, выполненные из керамзитобетонных блоков, обеспечивают надёжную тепло- и звукоизоляцию, а лаконичные фасады подчёркивают строгую линию архитектурного решения, придавая дому современный, но при этом вневременной вид. Круглогодичное проживание – это не просто надёжность, но и комфорт в каждый сезон. Простой план однокомнатного этажа делает его идеальным для небольших семей, частных домовладельцев и тех, кто ищет безкомпромиссное сочетание простоты и уютного пространства. Внутренние помещения открыты, светлые, с просторными стеновыми панелями, где легко создать своё идеальное жилище. В доме нет лишних узлов – нет балконов, веранд, гаражей, что позволяет сосредоточиться на оформлении интерьера без отвлечений. Дом № 13 – это выбор тех, кто ищет гармоничное сочетание классики и практичности, уютного семейного очага и беззаботного в отношении обслуживания. Здесь каждый метр прожиток и каждая деталь подчеркивают ваш вкус к совершенству. Приглашаем вас стать владельцем дома, который будет служить вам долгие годы, сохраняя тепло и уют в любое время года.

Характеристики дома

Архитектурный стиль
Классический
Автоматизированное регулирование параметров теплоносителя
Нет
Балконы/лоджии
Отсутствуют
Чердачное помещение
Нет
Датчики протечки воды
Нет
Эксплуатируемая или зеленая кровля
Нет
Электроснабжение
Центральное
Газоснабжение
Не предусмотрено
Изоляция воздушного шума
Нет
Камин
Нет
Класс энергоэффективности
-
Класс энергосбережения
-
Количество надземных этажей
1
Круглогодичное проживание
Да
Материал кровли
Металлочерепица
Материал перекрытий
Деревянные
Материал внешних стен
Керамзитобетонные блоки
Материал внутренних перегородок
Блочные
Модульное строительство с конструкциями заводского изготовления
Нет
Объем надземной части
349 м3
Основной материал фасадов
Облицовочный кирпич
Отопление
Индивидуальное
Площадь дома
60 м2
Площадь застройки
69 м2
Подвальное помещение
Нет
Показатель компактности здания
-
Приборы учета тепловой энергии
Нет
Пристроенный гараж/крытая автостоянка
Нет
Противопожарная система
Нет
Санузлы
1
Совмещенная кухня-гостиная
Да
Спальни
2
Терраса
Нет
Тип фундамента
Свайно-ростверковый
Тип кровли
Четырехскатная (вальмовая)
Толщина внешних стен
500 мм
Толщина внутренних перегородок
100 мм
Улучшенные шумовые характеристики
Нет
Вентиляция
Естественная
Веранда
Нет
Водоотведение
Локальные очистные сооружения
Водоснабжение
Индивидуальное
Высота дома
5 м
Высота потолков
2.8 м

Планировка

Фасад дома

Александр

Закажите выезд инженера

Александр

Выездной инженер
Закажите выезд инженера для точной диагностики и профессиональной консультации по инженерным системам. Специалист приедет в удобное время, проведёт осмотр, рассчитает стоимость работ и подберёт оптимальные решения для вашего дома.


    Похожие проекты

    Ипотека и
    рассрочка
    Одноэтажный дом БРАИТ-86
    Стоимость от:
    10 659 880
    Проект от: 60 300
    Этажей 1
    Санузлы 3
    Спальни 3
    Смотреть
    Ипотека и
    рассрочка
    Одноэтажный дом из газобетонных блоков 7,8*13,1 «БС-270»
    Стоимость от:
    5 592 180
    Проект от: 35 550
    Этажей 1
    Санузлы 1
    Спальни 2
    Смотреть
    Ипотека и
    рассрочка
    Дом из ж/б панелей с сауной и комбинированным фасадом SP-143-1
    Стоимость от:
    12 645 380
    Проект от: 71 550
    Этажей 1
    Санузлы 3
    Спальни 3
    Смотреть
    Ипотека и
    рассрочка
    Рождественское 101Н
    Стоимость от:
    6 842 000
    Проект от: 45 000
    Этажей 1
    Санузлы 1
    Спальни 3
    Смотреть
    Ипотека и
    рассрочка
    Загородный одноэтажный дом «Унакит»
    Стоимость от:
    7 521 360
    Проект от: 48 600
    Этажей 1
    Санузлы 1
    Спальни 3
    Смотреть
    Ипотека и
    рассрочка
    Индивидуальный жилой дом Проект Д-051
    Стоимость от:
    10 319 520
    Проект от: 62 100
    Этажей 2
    Санузлы 2
    Спальни 3
    Смотреть

    Как узнать стоимость дома

    back
    Оставляете заявку
    Вы заполняете форму на сайте или звоните нам. Менеджер Лайвкрафт связывается с вами для уточнения деталей: тип дома, площадь, материалы, участок строительства.
    back
    Консультация и подбор решения
    Наш специалист помогает выбрать оптимальный тип дома и конструкцию с учётом бюджета, сроков и целей — будь то дом для постоянного проживания или дача.
    back
    Расчёт предварительной стоимости
    Инженер делает первичный расчёт стоимости строительства по вашим параметрам: фундамент, коробка, кровля, отделка. Вы получаете смету с разбивкой по этапам.
    back
    Корректировка и утверждение сметы
    При необходимости вносим изменения — например, замену материалов или сокращение этапов. После согласования формируется окончательная фиксированная смета.
    back
    Заключение договора и старт работ
    После утверждения сметы заключаем официальный договор с гарантией. Вы получаете прозрачный график и точную стоимость — без скрытых расходов.

    Заказать конусльтацию по:Проект Жилой дом № 13

    Фото 1 Проект Жилой дом № 13


      Наши
      контакты

      Дмитров
      Опорный проезд 28Б
      (индустриальный парк Ниагара)
      9:00 до 18:00