4.9
Рейтинг на основании 120 отзывов
Дмитров
Опорный проезд 28Б
(индустриальный парк Ниагара)
Бренд "Дмитров-Дело" c 2008 года на рынке строительства в Дмитрове
Звоните 9:00 до 18:00 8 (915) 055-33-61
Бренд "Дмитров-Дело" c 2008 года на рынке строительства в Дмитрове

Ранчо 272

Стоимость проекта от:
95 400 ₽
БЕСПЛАТНО! ПРИ ЗАКАЗЕ СТРОИТЕЛЬСТВА
Стоимость строительства от:
12 289 640 ₽
Артикул ART-4602
Дата 26.12.2025
Архитектурный стиль Скандинавский
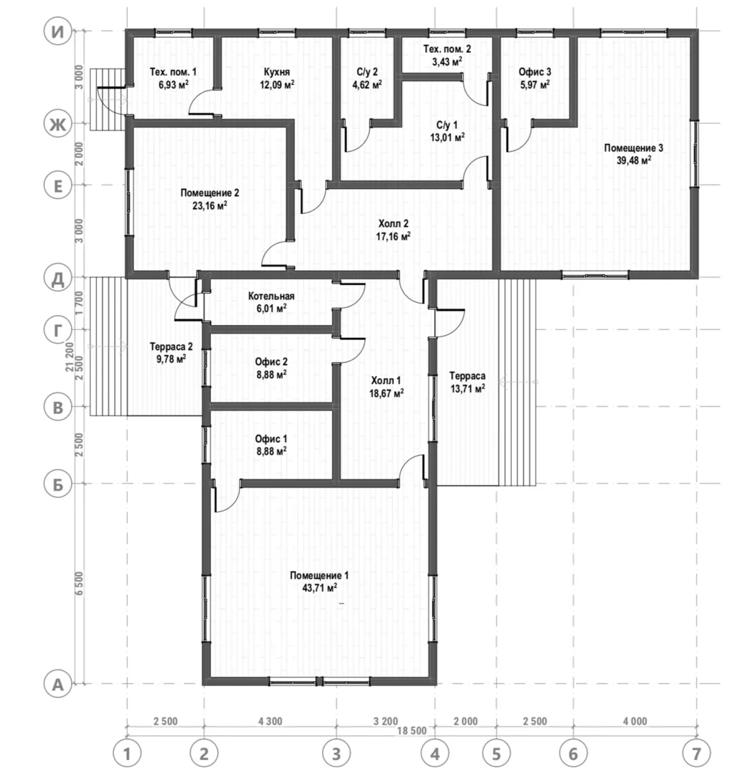
Количество надземных этажей 1
Круглогодичное проживание Да
Площадь дома 212 м2
Санузлы 2
Спальни 4

Описание

Погрузитесь в уют и свежесть северного стиля, вдохновлённого чистотой скандинавской природы. Дом Rancho 272 – это одноэтажный шедевр, созданный для тех, кто ценит простоту, функциональность и тепло древесины в сочетании с современными решениями. Его гармоничный каркас из дерева обрамлён комбинированной кровлей, которая придаёт фасаду изысканную, но непринуждённую элегантность. Благодаря круглогодичному проживанию, дом готов дарить комфорт в любое время года, обеспечивая оптимальное тепло- и звукоизоляцию благодаря выбранным материалам и обжигам. Внутреннее пространство Rancho 272 разворачивается с открытостью и легкостью: большие световые проёмы, просторные помещения и аккуратные детали, характерные для шифрского дизайна. Лёгкая планировка без избыточных этажей делает каждый уголок функциональным, а отсутствие прицепов, балконов или гаражей оставляет максимум свободы для ваших индивидуальных потребностей. Открытая терраса превращает ваше жилище в идеальное место для отдыха и встреч: здесь можно подышать свободным воздухом, посидеть за чашкой кофе, наслаждаться видением за окнами. Дом Rancho 272 – это не просто жилище, а пространство, где каждая деталь продумана до мелочей: от качественной деревянной фундамента до продуманного сочетания скандинавских элементов и современных удобств. Он приглашает вас в мир спокойствия, функциональности и эстетики, где каждый визит домой будет напоминанием о гармонии и уединении с природой.

Характеристики дома

Архитектурный стиль
Автоматизированное регулирование параметров теплоносителя
-
Балконы/лоджии
Отсутствуют
Чердачное помещение
Нет
Датчики протечки воды
-
Эксплуатируемая или зеленая кровля
-
Электроснабжение
Индивидуальное
Газоснабжение
Индивидуальное
Изоляция воздушного шума
-
Камин
Нет
Класс энергоэффективности
-
Класс энергосбережения
-
Количество надземных этажей
1
Круглогодичное проживание
Да
Материал кровли
Металлочерепица
Материал перекрытий
Деревянные
Материал внешних стен
Материал внутренних перегородок
Деревянные
Модульное строительство с конструкциями заводского изготовления
Нет
Объем надземной части
-
Основной материал фасадов
Сайдинг
Отопление
Индивидуальное
Площадь дома
212 м2
Площадь застройки
272 м2
Подвальное помещение
Нет
Показатель компактности здания
-
Приборы учета тепловой энергии
-
Пристроенный гараж/крытая автостоянка
Нет
Противопожарная система
Да
Санузлы
2
Совмещенная кухня-гостиная
Нет
Спальни
4
Терраса
Да
Тип фундамента
Свайный
Тип кровли
Толщина внешних стен
150 мм
Толщина внутренних перегородок
100 мм
Улучшенные шумовые характеристики
-
Вентиляция
Естественная
Веранда
Нет
Водоотведение
Локальные очистные сооружения
Водоснабжение
Индивидуальное
Высота дома
5.79 м
Высота потолков
2.9 м

Планировка

Фасад дома

Александр

Закажите выезд инженера

Александр

Выездной инженер
Закажите выезд инженера для точной диагностики и профессиональной консультации по инженерным системам. Специалист приедет в удобное время, проведёт осмотр, рассчитает стоимость работ и подберёт оптимальные решения для вашего дома.


    Похожие проекты

    Ипотека и
    рассрочка
    Проект загородного дома NHD-175
    Стоимость от:
    11 116 160
    Проект от: 66 600
    Этажей 1
    Санузлы 2
    Спальни 3
    Смотреть
    Ипотека и
    рассрочка
    Дом из газобетона Трамп
    Стоимость от:
    7 263 360
    Проект от: 46 800
    Этажей 2
    Санузлы 2
    Спальни 4
    Смотреть
    Ипотека и
    рассрочка
    TRH-165
    Стоимость от:
    399 300
    Проект от: 74 250
    Этажей 1
    Санузлы 2
    Спальни 3
    Смотреть
    Ипотека и
    рассрочка
    П1-60-СП2
    Стоимость от:
    4 782 800
    Проект от: 27 000
    Этажей 1
    Санузлы 1
    Спальни 2
    Смотреть
    Ипотека и
    рассрочка
    Серия Олимп уютный дом Ника
    Стоимость от:
    5 578 980
    Проект от: 35 550
    Этажей 1
    Санузлы 1
    Спальни 2
    Смотреть
    Ипотека и
    рассрочка
    Дом №15
    Стоимость от:
    9 917 280
    Проект от: 63 900
    Этажей 2
    Санузлы 2
    Спальни 5
    Смотреть

    Как узнать стоимость дома

    back
    Оставляете заявку
    Вы заполняете форму на сайте или звоните нам. Менеджер Лайвкрафт связывается с вами для уточнения деталей: тип дома, площадь, материалы, участок строительства.
    back
    Консультация и подбор решения
    Наш специалист помогает выбрать оптимальный тип дома и конструкцию с учётом бюджета, сроков и целей — будь то дом для постоянного проживания или дача.
    back
    Расчёт предварительной стоимости
    Инженер делает первичный расчёт стоимости строительства по вашим параметрам: фундамент, коробка, кровля, отделка. Вы получаете смету с разбивкой по этапам.
    back
    Корректировка и утверждение сметы
    При необходимости вносим изменения — например, замену материалов или сокращение этапов. После согласования формируется окончательная фиксированная смета.
    back
    Заключение договора и старт работ
    После утверждения сметы заключаем официальный договор с гарантией. Вы получаете прозрачный график и точную стоимость — без скрытых расходов.

    Заказать конусльтацию по:Ранчо 272

    Фото 1 Ранчо 272


      Наши
      контакты

      Дмитров
      Опорный проезд 28Б
      (индустриальный парк Ниагара)
      9:00 до 18:00

      Корзина