4.9
Рейтинг на основании 120 отзывов
Дмитров
Опорный проезд 28Б
(индустриальный парк Ниагара)
Бренд "Дмитров-Дело" c 2008 года на рынке строительства в Дмитрове
Звоните 9:00 до 18:00 8 (915) 055-33-61
Бренд "Дмитров-Дело" c 2008 года на рынке строительства в Дмитрове

River Hall 103

Стоимость проекта от:
55 800 ₽
БЕСПЛАТНО! ПРИ ЗАКАЗЕ СТРОИТЕЛЬСТВА
Стоимость строительства от:
9 042 880 ₽
Артикул ART-13152
Дата 25.12.2025
Архитектурный стиль Европейский
Количество надземных этажей 1
Круглогодичное проживание Да
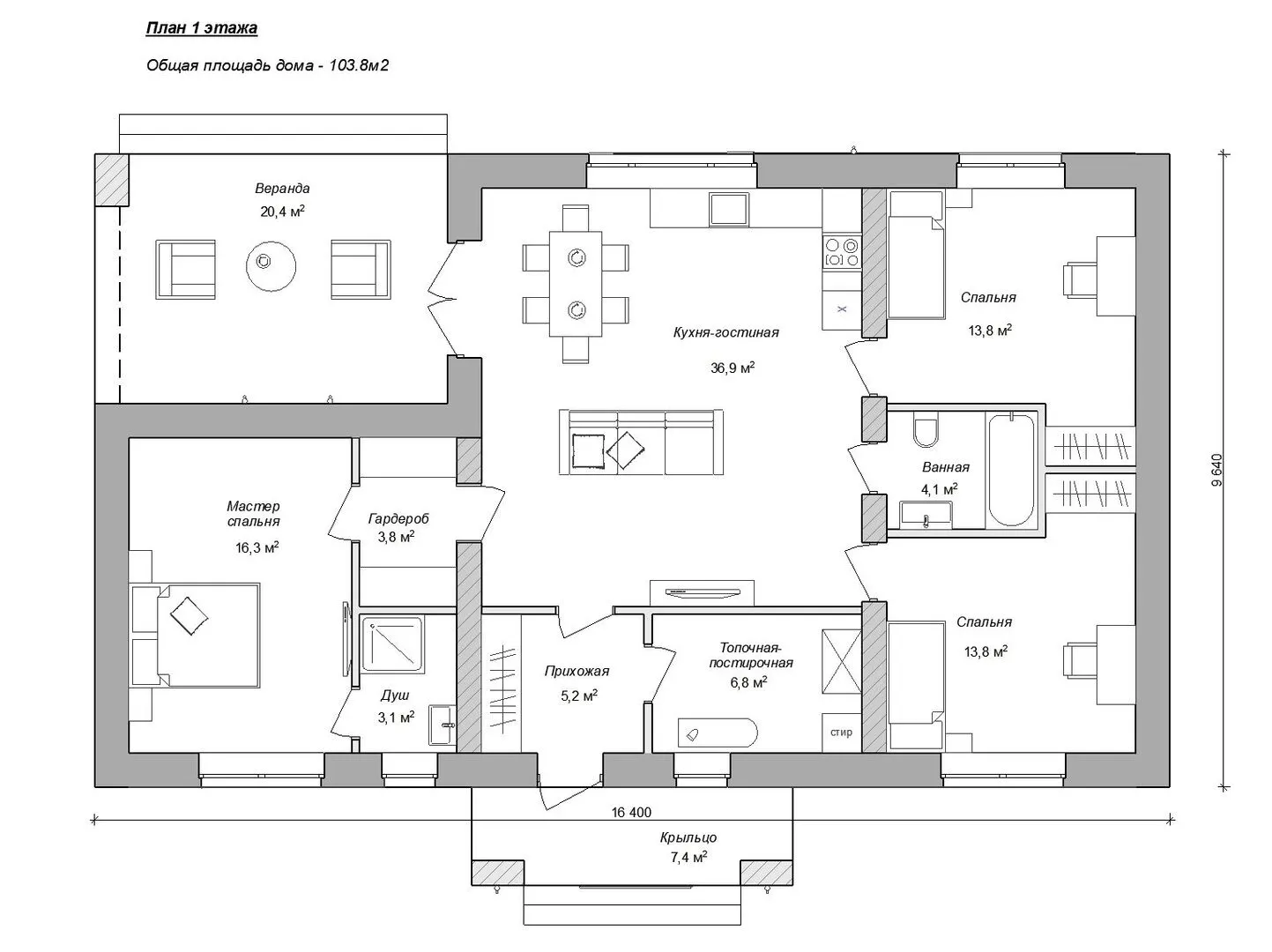
Площадь дома 124 м2
Санузлы 2
Спальни 3

Описание

Решили выбрать *River Hall 103* – это дом, где каждый элемент продуман и гармонично сочетает в себе европейскую элегантность и практичность. На одиннадцатый год открыты двери к уюту, потому что эта монолитная, одноквартирная резиденция построена с учётом круглогодичного проживания. Керамическое покрытие фасада не только придаёт интерьеру тёплый, почти живописный характер, но и гарантирует надёжную защиту от климатических перепадов. Двускатная крыша, от которой виден закат через облака, подчёркивает чистую линию контуров и делает дом визуально легким и невесомым. Хотя балконы и лоджии отсутствуют, в доме есть веранда – ваш личный оазис, где можно наслаждаться природой, петь, пить чай или просто читать. Внутреннее пространство открыто, просторно, но при этом достаточно уединено, так как нет пристроенного гаража и чердака, что позволяет избежать лишнего шума и лишних помещений, лишних забот. Простая модель – но в этом и его очарование: прямые линии, спокойные оттоки, пространство, где легко соединиться с природой и самим собой. Это не просто место для жизни, а новый стиль комфорта, где каждый день начинается с вдохновения и завершается ощущением домашнего уюта.

Характеристики дома

Архитектурный стиль
Автоматизированное регулирование параметров теплоносителя
Нет
Балконы/лоджии
Отсутствуют
Чердачное помещение
Нет
Датчики протечки воды
Нет
Эксплуатируемая или зеленая кровля
Нет
Электроснабжение
2 варианта
Газоснабжение
Центральное
Изоляция воздушного шума
Да
Камин
Нет
Класс энергоэффективности
A+
Класс энергосбережения
A+
Количество надземных этажей
1
Круглогодичное проживание
Да
Материал кровли
Фальцевая кровля Кликфальц
Материал перекрытий
Деревянные
Материал внешних стен
Материал внутренних перегородок
Кирпичные
Модульное строительство с конструкциями заводского изготовления
Нет
Объем надземной части
667 м3
Основной материал фасадов
Фасадная плитка
Отопление
Индивидуальное
Площадь дома
124 м2
Площадь застройки
158 м2
Подвальное помещение
Нет
Показатель компактности здания
1
Приборы учета тепловой энергии
Нет
Пристроенный гараж/крытая автостоянка
Нет
Противопожарная система
Нет
Санузлы
2
Совмещенная кухня-гостиная
Да
Спальни
3
Терраса
Нет
Тип фундамента
Свайно-ростверковый
Тип кровли
Толщина внешних стен
380 мм
Толщина внутренних перегородок
120 мм
Улучшенные шумовые характеристики
Нет
Вентиляция
Принудительная
Веранда
Да
Водоотведение
Центральное
Водоснабжение
Центральное
Высота дома
5.16 м
Высота потолков
3.07 м

Планировка

Фасад дома

Александр

Закажите выезд инженера

Александр

Выездной инженер
Закажите выезд инженера для точной диагностики и профессиональной консультации по инженерным системам. Специалист приедет в удобное время, проведёт осмотр, рассчитает стоимость работ и подберёт оптимальные решения для вашего дома.


    Похожие проекты

    Ипотека и
    рассрочка
    Дом из CLT «Амурск»
    Стоимость от:
    645 810
    Проект от: 46 350
    Этажей 1
    Санузлы 1
    Спальни 2
    Смотреть
    Ипотека и
    рассрочка
    Дом 78
    Стоимость от:
    5 508 360
    Проект от: 35 100
    Этажей 1
    Санузлы 1
    Спальни 2
    Смотреть
    Ипотека и
    рассрочка
    Победа
    Стоимость от:
    8 115 360
    Проект от: 48 600
    Этажей 1
    Санузлы 1
    Спальни 3
    Смотреть
    Ипотека и
    рассрочка
    Проект жилого дома «Саксман»
    Стоимость от:
    7 243 500
    Проект от: 49 500
    Этажей 2
    Санузлы 2
    Спальни 4
    Смотреть
    Ипотека и
    рассрочка
    Загородный дом Бенгт 80
    Стоимость от:
    4 579 630
    Проект от: 35 550
    Этажей 1
    Санузлы 1
    Спальни 2
    Смотреть
    Ипотека и
    рассрочка
    Двухэтажный дом LV-120
    Стоимость от:
    8 620 560
    Проект от: 53 550
    Этажей 2
    Санузлы 2
    Спальни 5
    Смотреть

    Как узнать стоимость дома

    back
    Оставляете заявку
    Вы заполняете форму на сайте или звоните нам. Менеджер Лайвкрафт связывается с вами для уточнения деталей: тип дома, площадь, материалы, участок строительства.
    back
    Консультация и подбор решения
    Наш специалист помогает выбрать оптимальный тип дома и конструкцию с учётом бюджета, сроков и целей — будь то дом для постоянного проживания или дача.
    back
    Расчёт предварительной стоимости
    Инженер делает первичный расчёт стоимости строительства по вашим параметрам: фундамент, коробка, кровля, отделка. Вы получаете смету с разбивкой по этапам.
    back
    Корректировка и утверждение сметы
    При необходимости вносим изменения — например, замену материалов или сокращение этапов. После согласования формируется окончательная фиксированная смета.
    back
    Заключение договора и старт работ
    После утверждения сметы заключаем официальный договор с гарантией. Вы получаете прозрачный график и точную стоимость — без скрытых расходов.

    Заказать конусльтацию по:River Hall 103

    Фото 1 River Hall 103


      Наши
      контакты

      Дмитров
      Опорный проезд 28Б
      (индустриальный парк Ниагара)
      9:00 до 18:00

      Корзина