4.9
Рейтинг на основании 120 отзывов
Дмитров
Опорный проезд 28Б
(индустриальный парк Ниагара)
Бренд "Дмитров-Дело" c 2008 года на рынке строительства в Дмитрове
Звоните 9:00 до 18:00 8 (915) 055-33-61
Бренд "Дмитров-Дело" c 2008 года на рынке строительства в Дмитрове

River Hall 115

Стоимость проекта от:
51 750 ₽
БЕСПЛАТНО! ПРИ ЗАКАЗЕ СТРОИТЕЛЬСТВА
Стоимость строительства от:
8 192 400 ₽
Артикул ART-13270
Дата 25.12.2025
Архитектурный стиль Европейский
Количество надземных этажей 2
Круглогодичное проживание Да
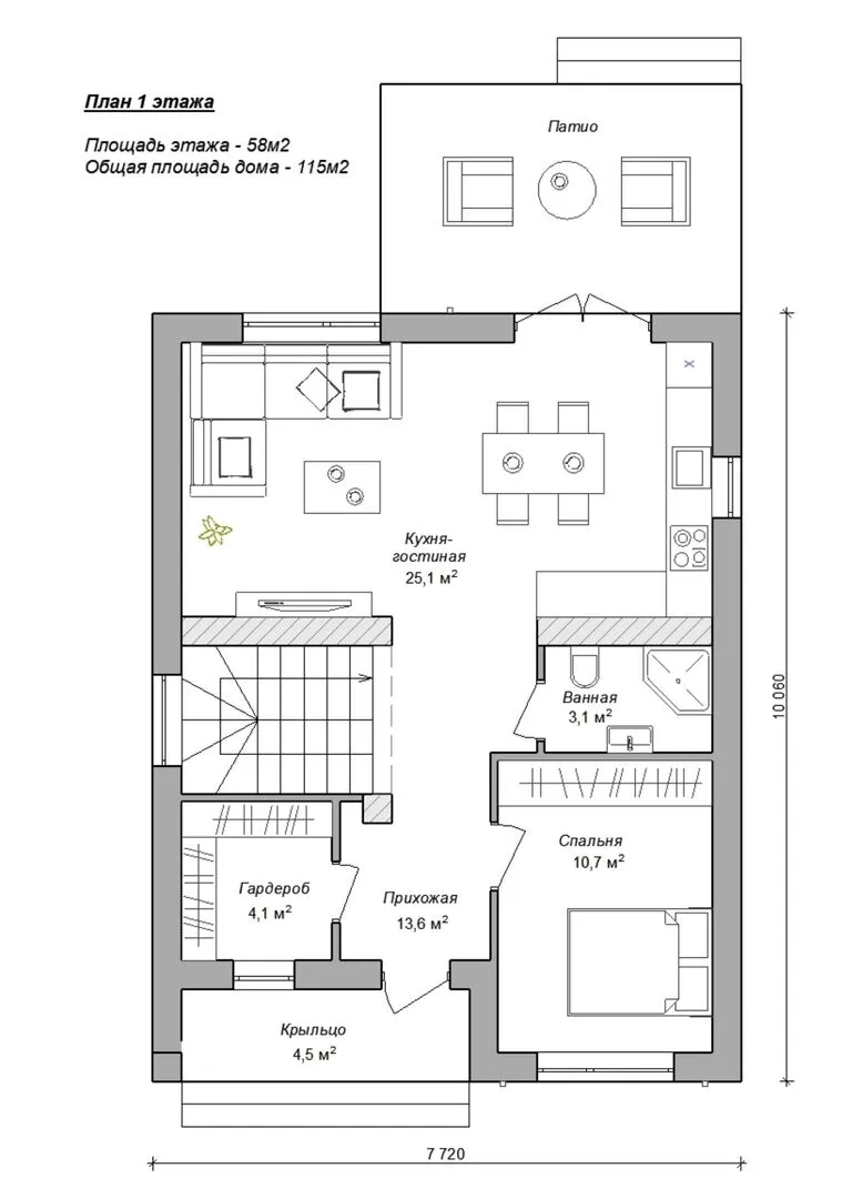
Площадь дома 115 м2
Санузлы 2
Спальни 5

Описание

River Hall 115 – это воплощение европейской элегантности в самом сердце города. Два надземных этажа, выполненные из качественного керамического блока, создают ощущение прочности и уюта, а строгая двускатная крыша придает дому неповторимую классическую линию. Уютный внутренний мир, где каждый уголок продуман до мелочей, делает это жильё идеальным выбором для круглогодичного проживания: просторные гостиные, светлые спальни и современные кухонные гардеробные дарят комфорт и гармонию. На улице River Hall 115 нет лишних отделок – балконы, веранда, гараж или чердачная площадь здесь не предусмотрены, а это значит, что каждая деталь архитектуры сосредоточена в открытом пространстве без отвлекающих конструкций. Ощутите тепло европейского стиля: изящные линии фасада, гармоничная цветовая палитра керамических блоков и акуратный внешний облик делают этот дом настоящим украшением улицы. Здесь встречается современный комфорт с традиционным очарованием, создавая идеальный баланс для тех, кто ценит качество и простоту в каждой детали.

Характеристики дома

Архитектурный стиль
Автоматизированное регулирование параметров теплоносителя
Нет
Балконы/лоджии
Отсутствуют
Чердачное помещение
Нет
Датчики протечки воды
Нет
Эксплуатируемая или зеленая кровля
Нет
Электроснабжение
Центральное
Газоснабжение
2 варианта
Изоляция воздушного шума
Да
Камин
Нет
Класс энергоэффективности
A+
Класс энергосбережения
A+
Количество надземных этажей
2
Круглогодичное проживание
Да
Материал кровли
Фальцевая кровля Кликфальц
Материал перекрытий
Монолитные железобетонные
Материал внешних стен
Материал внутренних перегородок
Кирпичные
Модульное строительство с конструкциями заводского изготовления
Нет
Объем надземной части
605 м3
Основной материал фасадов
Фасадная плитка
Отопление
Индивидуальное
Площадь дома
115 м2
Площадь застройки
77 м2
Подвальное помещение
Нет
Показатель компактности здания
1
Приборы учета тепловой энергии
Нет
Пристроенный гараж/крытая автостоянка
Нет
Противопожарная система
Нет
Санузлы
2
Совмещенная кухня-гостиная
Да
Спальни
5
Терраса
Нет
Тип фундамента
Свайно-ростверковый
Тип кровли
Толщина внешних стен
380 мм
Толщина внутренних перегородок
120 мм
Улучшенные шумовые характеристики
Нет
Вентиляция
Принудительная
Веранда
Нет
Водоотведение
Центральное
Водоснабжение
Центральное
Высота дома
8.73 м
Высота потолков
3.07 м

Планировка

Фасад дома

Александр

Закажите выезд инженера

Александр

Выездной инженер
Закажите выезд инженера для точной диагностики и профессиональной консультации по инженерным системам. Специалист приедет в удобное время, проведёт осмотр, рассчитает стоимость работ и подберёт оптимальные решения для вашего дома.


    Похожие проекты

    Ипотека и
    рассрочка
    Загородный дом площадью 132,88 м2
    Стоимость от:
    10 501 040
    Проект от: 59 400
    Этажей 1
    Санузлы 2
    Спальни 3
    Смотреть
    Ипотека и
    рассрочка
    M.BARN 60
    Стоимость от:
    3 725 535
    Проект от: 30 150
    Этажей 1
    Санузлы 1
    Спальни 2
    Смотреть
    Ипотека и
    рассрочка
    Раточкины Пруды-105
    Стоимость от:
    7 175 760
    Проект от: 44 550
    Этажей 2
    Санузлы 1
    Спальни 4
    Смотреть
    Ипотека и
    рассрочка
    Одноэтажный дом заводского изготовления — Линеа
    Стоимость от:
    7 320 940
    Проект от: 48 150
    Этажей 1
    Санузлы 2
    Спальни 3
    Смотреть
    Ипотека и
    рассрочка
    S 2-101-2
    Стоимость от:
    7 093 920
    Проект от: 44 100
    Этажей 2
    Санузлы 2
    Спальни 4
    Смотреть
    Ипотека и
    рассрочка
    Одноэтажный дом Fixplans — 1016
    Стоимость от:
    188 760
    Проект от: 35 100
    Этажей 1
    Санузлы 1
    Спальни 1
    Смотреть

    Как узнать стоимость дома

    back
    Оставляете заявку
    Вы заполняете форму на сайте или звоните нам. Менеджер Лайвкрафт связывается с вами для уточнения деталей: тип дома, площадь, материалы, участок строительства.
    back
    Консультация и подбор решения
    Наш специалист помогает выбрать оптимальный тип дома и конструкцию с учётом бюджета, сроков и целей — будь то дом для постоянного проживания или дача.
    back
    Расчёт предварительной стоимости
    Инженер делает первичный расчёт стоимости строительства по вашим параметрам: фундамент, коробка, кровля, отделка. Вы получаете смету с разбивкой по этапам.
    back
    Корректировка и утверждение сметы
    При необходимости вносим изменения — например, замену материалов или сокращение этапов. После согласования формируется окончательная фиксированная смета.
    back
    Заключение договора и старт работ
    После утверждения сметы заключаем официальный договор с гарантией. Вы получаете прозрачный график и точную стоимость — без скрытых расходов.

    Заказать конусльтацию по:River Hall 115

    Фото 1 River Hall 115


      Наши
      контакты

      Дмитров
      Опорный проезд 28Б
      (индустриальный парк Ниагара)
      9:00 до 18:00

      Корзина