4.9
Рейтинг на основании 120 отзывов
Дмитров
Опорный проезд 28Б
(индустриальный парк Ниагара)
Бренд "Дмитров-Дело" c 2008 года на рынке строительства в Дмитрове
Звоните 9:00 до 18:00 8 (915) 055-33-61
Бренд "Дмитров-Дело" c 2008 года на рынке строительства в Дмитрове

РП-101,1/24

Стоимость проекта от:
45 450 ₽
БЕСПЛАТНО! ПРИ ЗАКАЗЕ СТРОИТЕЛЬСТВА
Стоимость строительства от:
7 816 820 ₽
Артикул ART-18400
Дата 26.12.2025
Архитектурный стиль Классический
Количество надземных этажей 1
Круглогодичное проживание Да
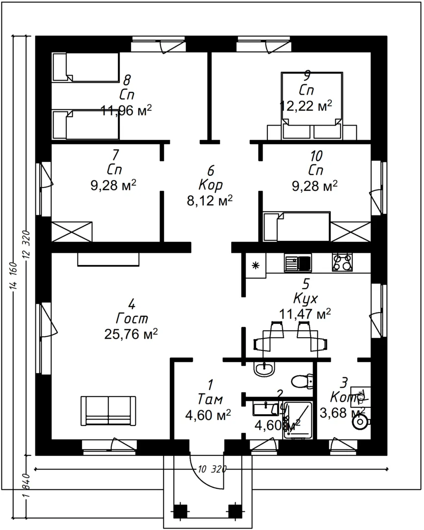
Площадь дома 101 м2
Санузлы 1
Спальни 4

Описание

Дом **RП-101,1/24** – это воплощение уютного классического стиля, созданное для тех, кто ценит простоту и тепло. На первом этаже располагается просторный гостиный зал, где большие окна впускают мягкий свет и открывают вид на безмятежный сад. Внутреннее пространство обустроено таким образом, чтобы каждое помещение звучало как отдельная глава уютной истории, но при этом оставалось практичным и практичным для семейной жизни. Скрытая жемчужность этого дома – крытый чердачное помещение, которое можно превратить в уютный кабинет, игровую комнату для детей или даже хранилище сезонных вещей. Не требуется строительство внешних прицепов – дома нет прицепленного гаража, но благодаря продуманной планировке все гаражные и кладовые нужды вполне удовлетворяются внутри, создавая ощущение чистого, бесперебойного пространства. Материалы и конструкция дома отражают современные требования к энергоэффективности: газобетонные блоки обеспечивают теплоизоляцию, а четырёхскатная вальмовая кровля защищает от непогоды и добавляет элегантности. В сочетании с безмятежной атмосферой и классическими декоративными элементами, **RП-101,1/24** становится идеальным выбором для тех, кто хочет жить в гармонии с природой, не отказываясь от комфорта и стиля.

Характеристики дома

Архитектурный стиль
Автоматизированное регулирование параметров теплоносителя
Нет
Балконы/лоджии
Отсутствуют
Чердачное помещение
Да
Датчики протечки воды
Нет
Эксплуатируемая или зеленая кровля
Нет
Электроснабжение
Центральное
Газоснабжение
Центральное
Изоляция воздушного шума
Нет
Камин
Нет
Класс энергоэффективности
-
Класс энергосбережения
-
Количество надземных этажей
1
Круглогодичное проживание
Да
Материал кровли
Металлические листовые гофрированные профили
Материал перекрытий
Деревянные
Материал внешних стен
Материал внутренних перегородок
Блочные
Модульное строительство с конструкциями заводского изготовления
Нет
Объем надземной части
780 м3
Основной материал фасадов
Облицовочный кирпич
Отопление
Индивидуальное
Площадь дома
101 м2
Площадь застройки
127 м2
Подвальное помещение
Нет
Показатель компактности здания
-
Приборы учета тепловой энергии
Нет
Пристроенный гараж/крытая автостоянка
Нет
Противопожарная система
Нет
Санузлы
1
Совмещенная кухня-гостиная
Нет
Спальни
4
Терраса
Нет
Тип фундамента
Ленточный
Толщина внешних стен
460 мм
Толщина внутренних перегородок
100 мм
Улучшенные шумовые характеристики
Нет
Вентиляция
Естественная
Веранда
Нет
Водоотведение
Не предусмотрено
Водоснабжение
Центральное
Высота дома
5.36 м
Высота потолков
3 м

Планировка

Фасад дома

Александр

Закажите выезд инженера

Александр

Выездной инженер
Закажите выезд инженера для точной диагностики и профессиональной консультации по инженерным системам. Специалист приедет в удобное время, проведёт осмотр, рассчитает стоимость работ и подберёт оптимальные решения для вашего дома.


    Похожие проекты

    Ипотека и
    рассрочка
    Проект одноэтажный №4
    Стоимость от:
    9 627 420
    Проект от: 54 450
    Этажей 1
    Санузлы 2
    Спальни 4
    Смотреть
    Ипотека и
    рассрочка
    Коттедж С99
    Стоимость от:
    11 295 240
    Проект от: 63 900
    Этажей 1
    Санузлы 2
    Спальни 3
    Смотреть
    Ипотека и
    рассрочка
    Загородный дом 88
    Стоимость от:
    6 614 960
    Проект от: 39 600
    Этажей 1
    Санузлы 2
    Спальни 2
    Смотреть
    Ипотека и
    рассрочка
    Двухэтажный дом Леран
    Стоимость от:
    8 017 680
    Проект от: 48 150
    Этажей 2
    Санузлы 2
    Спальни 4
    Смотреть
    Ипотека и
    рассрочка
    ЭС-93
    Стоимость от:
    11 374 660
    Проект от: 64 350
    Этажей 1
    Санузлы 2
    Спальни 4
    Смотреть
    Ипотека и
    рассрочка
    Тайгарт 121
    Стоимость от:
    9 510 380
    Проект от: 62 550
    Этажей 1
    Санузлы 3
    Спальни 3
    Смотреть

    Как узнать стоимость дома

    back
    Оставляете заявку
    Вы заполняете форму на сайте или звоните нам. Менеджер Лайвкрафт связывается с вами для уточнения деталей: тип дома, площадь, материалы, участок строительства.
    back
    Консультация и подбор решения
    Наш специалист помогает выбрать оптимальный тип дома и конструкцию с учётом бюджета, сроков и целей — будь то дом для постоянного проживания или дача.
    back
    Расчёт предварительной стоимости
    Инженер делает первичный расчёт стоимости строительства по вашим параметрам: фундамент, коробка, кровля, отделка. Вы получаете смету с разбивкой по этапам.
    back
    Корректировка и утверждение сметы
    При необходимости вносим изменения — например, замену материалов или сокращение этапов. После согласования формируется окончательная фиксированная смета.
    back
    Заключение договора и старт работ
    После утверждения сметы заключаем официальный договор с гарантией. Вы получаете прозрачный график и точную стоимость — без скрытых расходов.

    Заказать конусльтацию по:РП-101,1/24

    Фото 1 РП-101,1/24


      Наши
      контакты

      Дмитров
      Опорный проезд 28Б
      (индустриальный парк Ниагара)
      9:00 до 18:00

      Корзина