4.9
Рейтинг на основании 120 отзывов
Дмитров
Опорный проезд 28Б
(индустриальный парк Ниагара)
Бренд "Дмитров-Дело" c 2008 года на рынке строительства в Дмитрове
Звоните 9:00 до 18:00 8 (915) 055-33-61
Бренд "Дмитров-Дело" c 2008 года на рынке строительства в Дмитрове

S 1-52

Стоимость проекта от:
22 950 ₽
БЕСПЛАТНО! ПРИ ЗАКАЗЕ СТРОИТЕЛЬСТВА
Стоимость строительства от:
3 839 220 ₽
Артикул ART-6060
Дата 26.12.2025
Архитектурный стиль Европейский
Количество надземных этажей 1
Круглогодичное проживание Да
Площадь дома 51 м2
Санузлы 1
Спальни 2

Описание

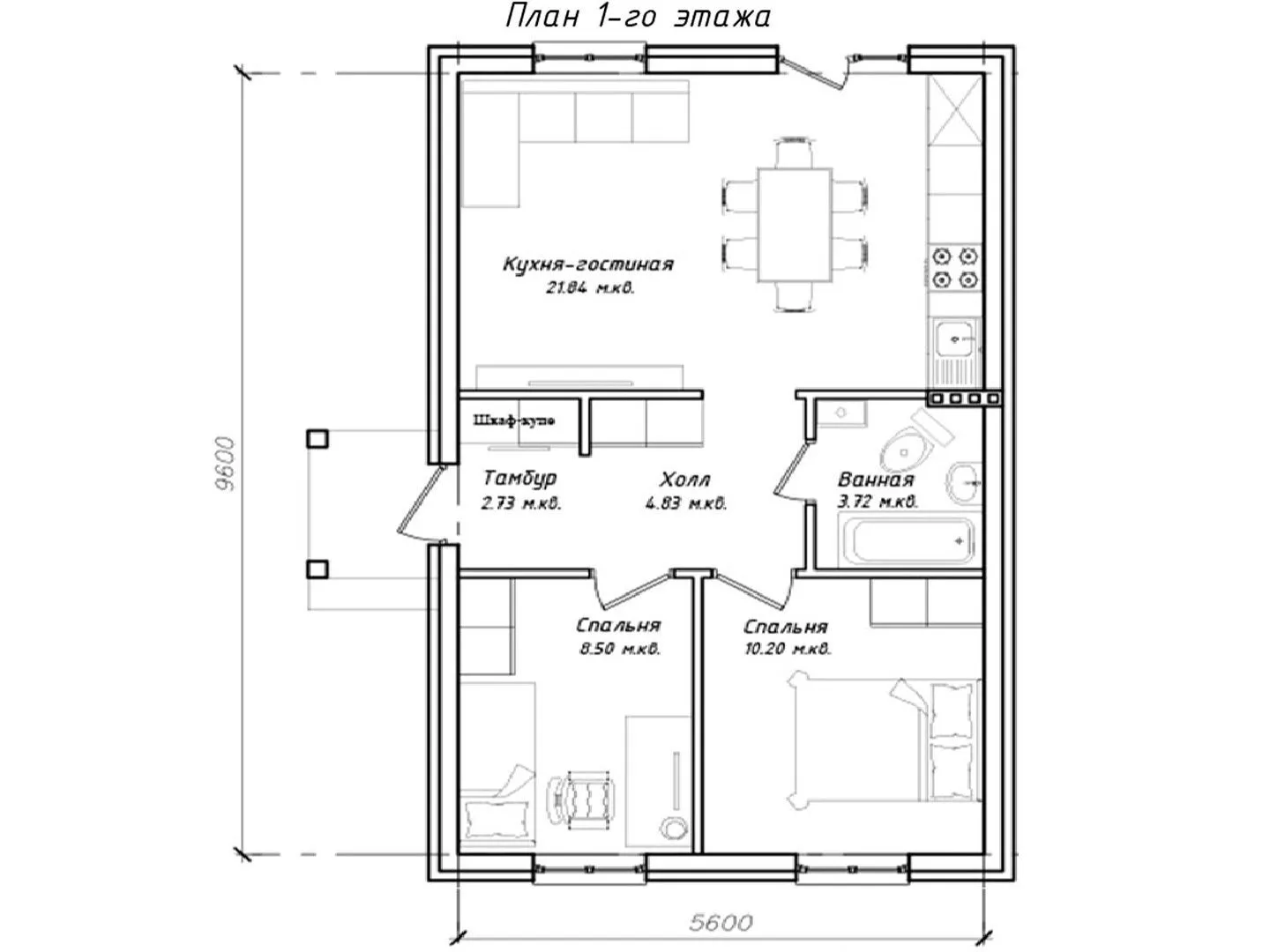
S 1‑52 — это уютное, одноэтажное жильё, которое сочетает в себе европейскую элегантность и практичность повседневной жизни. Стена конструкции выполнена из керамзитобетонных блоков, что гарантирует тепло‑изоляцию и устойчивость к климатическим нагрузкам, а двускатная крыша придаёт фасаду характерный и притягательный вид, подчёркивающий классический европейский стиль. Отсутствие балконов, веранды, чердака и открытых площадок делает дом особенно лаконичным и спокойным, позволяя сосредоточиться на создании гармоничной внутренней атмосферы. Внутри пространство разделено на зоны, где каждый уголок дарит комфорт круглогодичного проживания: просторные гостиные, светлые спальни и функциональная кухня открытых планов. Крупные окна и аккуратные отделки создают ощущение лёгкости и простора, а материалы высшего качества придают не только надежность, но и эстетическую привлекательность. Отсутствие прицепа гаражей не обременяет конструкцию, а значит, вы сможете легко подобрать автономный к вам подходящий вариант хранения техники и техники. Дом открыт для жизни в любое время года, благодаря продуманной теплоизоляции и двускатной крыше, которые обеспечивают стабильную температуру внутри. Именно эти особенности делают S 1‑52 идеальным выбором для семьи, ищущей сочетание традиционной архитектуры и современных удобств. Ощутите европейскую атмосферу, без лишних украшений, и найдите уединение в своём новом доме.

Характеристики дома

Архитектурный стиль
Автоматизированное регулирование параметров теплоносителя
Нет
Балконы/лоджии
Отсутствуют
Чердачное помещение
Нет
Датчики протечки воды
Нет
Эксплуатируемая или зеленая кровля
Нет
Электроснабжение
Центральное
Газоснабжение
Не предусмотрено
Изоляция воздушного шума
Нет
Камин
Нет
Класс энергоэффективности
-
Класс энергосбережения
-
Количество надземных этажей
1
Круглогодичное проживание
Да
Материал кровли
Металлочерепица
Материал перекрытий
Сборные железобетонные
Материал внешних стен
Материал внутренних перегородок
Блочные
Модульное строительство с конструкциями заводского изготовления
Нет
Объем надземной части
227 м3
Основной материал фасадов
Штукатурка
Отопление
Индивидуальное
Площадь дома
51 м2
Площадь застройки
66 м2
Подвальное помещение
Нет
Показатель компактности здания
-
Приборы учета тепловой энергии
Нет
Пристроенный гараж/крытая автостоянка
Нет
Противопожарная система
Нет
Санузлы
1
Совмещенная кухня-гостиная
Да
Спальни
2
Терраса
Нет
Тип фундамента
Свайно-ростверковый
Тип кровли
Толщина внешних стен
200 мм
Толщина внутренних перегородок
100 мм
Улучшенные шумовые характеристики
Нет
Вентиляция
Естественная
Веранда
Нет
Водоотведение
Локальные очистные сооружения
Водоснабжение
Индивидуальное
Высота дома
5.1 м
Высота потолков
2.57 м

Планировка

Фасад дома

Александр

Закажите выезд инженера

Александр

Выездной инженер
Закажите выезд инженера для точной диагностики и профессиональной консультации по инженерным системам. Специалист приедет в удобное время, проведёт осмотр, рассчитает стоимость работ и подберёт оптимальные решения для вашего дома.


    Похожие проекты

    Ипотека и
    рассрочка
    БарнХаус «Просторный». Проект 60-23КД4.
    Стоимость от:
    6 984 780
    Проект от: 51 300
    Этажей 1
    Санузлы 2
    Спальни 3
    Смотреть
    Ипотека и
    рассрочка
    Дом из кирпича S455
    Стоимость от:
    7 065 080
    Проект от: 42 300
    Этажей 1
    Санузлы 1
    Спальни 2
    Смотреть
    Ипотека и
    рассрочка
    Одноэтажный дом Смарт 8
    Стоимость от:
    5 984 440
    Проект от: 36 900
    Этажей 1
    Санузлы 1
    Спальни 2
    Смотреть
    Ипотека и
    рассрочка
    Одноэтажный дом Сканди Валдай 130 ВМ
    Стоимость от:
    8 521 590
    Проект от: 66 150
    Этажей 1
    Санузлы 2
    Спальни 2
    Смотреть
    Ипотека и
    рассрочка
    Одноэтажный дом ДН-120
    Стоимость от:
    10 381 140
    Проект от: 66 150
    Этажей 1
    Санузлы 1
    Спальни 3
    Смотреть
    Ипотека и
    рассрочка
    Дом «Comfort» серии «NOVA» с навесом
    Стоимость от:
    6 358 550
    Проект от: 49 500
    Этажей 1
    Санузлы 1
    Спальни 3
    Смотреть

    Как узнать стоимость дома

    back
    Оставляете заявку
    Вы заполняете форму на сайте или звоните нам. Менеджер Лайвкрафт связывается с вами для уточнения деталей: тип дома, площадь, материалы, участок строительства.
    back
    Консультация и подбор решения
    Наш специалист помогает выбрать оптимальный тип дома и конструкцию с учётом бюджета, сроков и целей — будь то дом для постоянного проживания или дача.
    back
    Расчёт предварительной стоимости
    Инженер делает первичный расчёт стоимости строительства по вашим параметрам: фундамент, коробка, кровля, отделка. Вы получаете смету с разбивкой по этапам.
    back
    Корректировка и утверждение сметы
    При необходимости вносим изменения — например, замену материалов или сокращение этапов. После согласования формируется окончательная фиксированная смета.
    back
    Заключение договора и старт работ
    После утверждения сметы заключаем официальный договор с гарантией. Вы получаете прозрачный график и точную стоимость — без скрытых расходов.

    Заказать конусльтацию по:S 1-52

    Фото 1 S 1-52


      Наши
      контакты

      Дмитров
      Опорный проезд 28Б
      (индустриальный парк Ниагара)
      9:00 до 18:00

      Корзина