4.9
Рейтинг на основании 120 отзывов
Дмитров
Опорный проезд 28Б
(индустриальный парк Ниагара)
Бренд "Дмитров-Дело" c 2008 года на рынке строительства в Дмитрове
Звоните 9:00 до 18:00 8 (915) 055-33-61
Бренд "Дмитров-Дело" c 2008 года на рынке строительства в Дмитрове

С 10

Стоимость проекта от:
81 900 ₽
Стоимость строительства от:
14 071 640 ₽
Артикул ART-6392
Дата 26.12.2025
Архитектурный стиль Скандинавский
Количество надземных этажей 1
Круглогодичное проживание Да
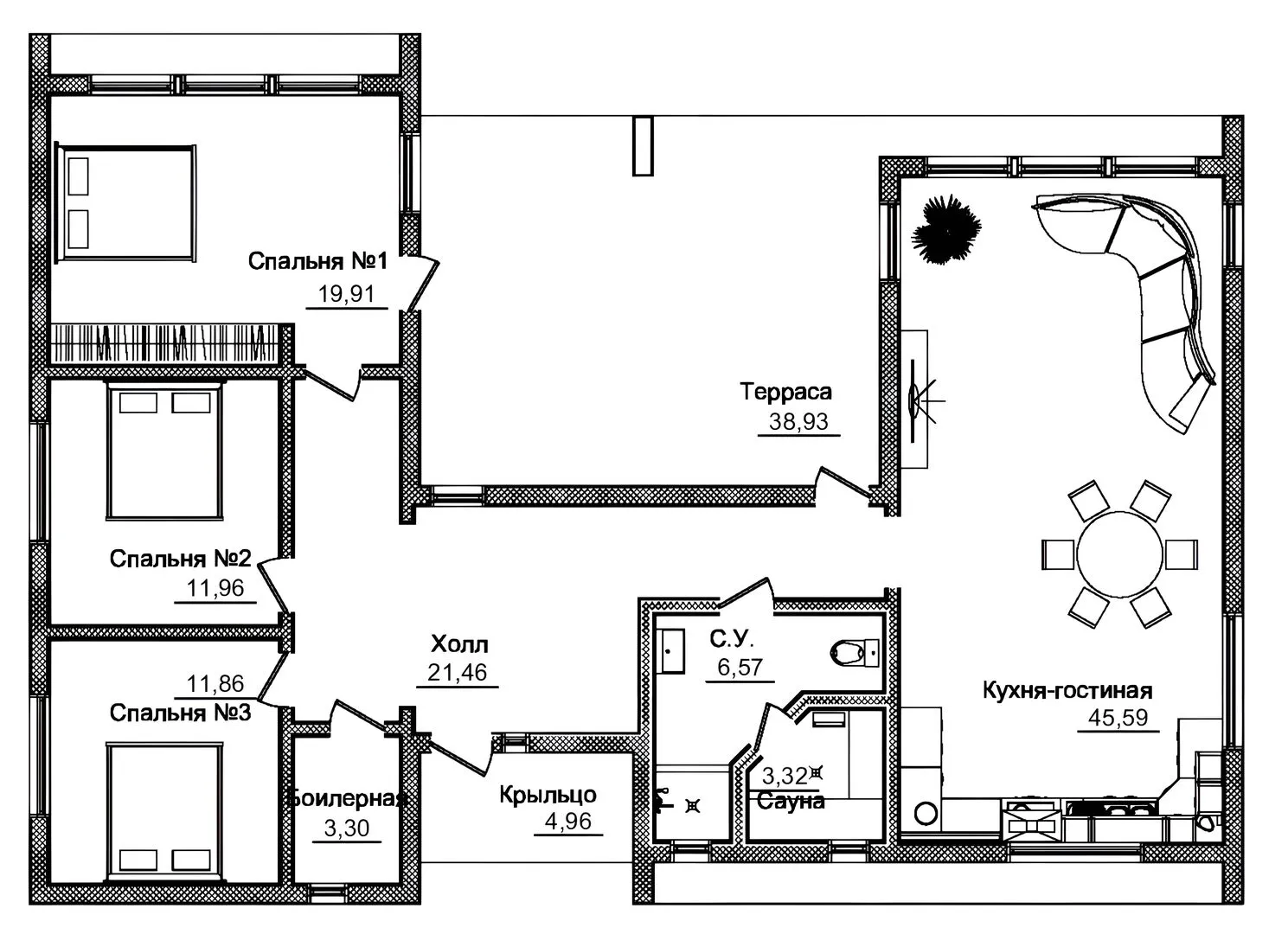
Площадь дома 182 м2
Санузлы 1
Спальни 3

Описание

Небольшой, но уютный дом на одном уровне раскрывает свою привлекательность с первых шагов. Его скандинавский дизайн придает внутреннему пространству чистую, освещённую атмосферу, где простые линии встречаются с теплом натуральных материалов. Находясь в круглогодичном комфортном климате, жильцы могут наслаждаться мягкой, но достаточной теплоизоляцией и лёгким доступом к каждому уголку дома, не беспокоясь о перепадах температур. Пакет окон без балконов и лоджий подчёркивает лаконичность и помогает сохранить приватность, а отсутствие прицепа гаража позволяет более свободно использовать задний двор и открывает простор для сада или небольших огорода. Кругло­спальные коридоры и просторные жилые зоны соединяются плавным переходом к большой террасе, где можно проводить время на свежем воздухе, наблюдая за рассветами и закатами. Внешние стены, выполненные по каркасно‑панельной технологии, обеспечивают энергоэффективность и быструю возведённость при сохранении эстетической привлекательности. Комбинированная кровля, сочетающая типичные элементы с современными материалами, придаёт зданию уникальный профиль, защищая его от любых погодных условий и придавая завершённый вид. Это место, где каждый день начинается с лёгкости, а окончание дня приносит ощущение уюта и гармонии в окружении простого, но элегантного дизайна.

Характеристики дома

Архитектурный стиль
Скандинавский
Автоматизированное регулирование параметров теплоносителя
Нет
Балконы/лоджии
Отсутствуют
Чердачное помещение
Нет
Датчики протечки воды
Да
Эксплуатируемая или зеленая кровля
Нет
Электроснабжение
2 варианта
Газоснабжение
2 варианта
Изоляция воздушного шума
Нет
Камин
Нет
Класс энергоэффективности
-
Класс энергосбережения
-
Количество надземных этажей
1
Круглогодичное проживание
Да
Материал кровли
Битумная черепица
Материал перекрытий
Деревянные по металлическим балкам
Материал внешних стен
Каркасно-панельная технология
Материал внутренних перегородок
Деревянные
Модульное строительство с конструкциями заводского изготовления
Нет
Объем надземной части
570 м3
Основной материал фасадов
Дерево
Отопление
Индивидуальное
Площадь дома
182 м2
Площадь застройки
208 м2
Подвальное помещение
Нет
Показатель компактности здания
-
Приборы учета тепловой энергии
Нет
Пристроенный гараж/крытая автостоянка
Нет
Противопожарная система
Нет
Санузлы
1
Совмещенная кухня-гостиная
Да
Спальни
3
Терраса
Да
Тип фундамента
Ленточный
Тип кровли
Комбинированная
Толщина внешних стен
350 мм
Толщина внутренних перегородок
300 мм
Улучшенные шумовые характеристики
Нет
Вентиляция
Рекуперация
Веранда
Нет
Водоотведение
Локальные очистные сооружения
Водоснабжение
2 варианта
Высота дома
4.81 м
Высота потолков
2.83 м

Планировка

Фасад дома

Александр

Закажите выезд инженера

Александр

Выездной инженер
Закажите выезд инженера для точной диагностики и профессиональной консультации по инженерным системам. Специалист приедет в удобное время, проведёт осмотр, рассчитает стоимость работ и подберёт оптимальные решения для вашего дома.


    Похожие проекты

    Ипотека и
    рассрочка
    Загородный дом «Барнхаус-142»
    Стоимость от:
    9 510 380
    Проект от: 62 550
    Этажей 1
    Санузлы 2
    Спальни 3
    Смотреть
    Ипотека и
    рассрочка
    Вероника 2120
    Стоимость от:
    5 578 980
    Проект от: 35 550
    Этажей 1
    Санузлы 1
    Спальни 1
    Смотреть
    Ипотека и
    рассрочка
    Загородный дом — 90
    Стоимость от:
    6 355 800
    Проект от: 40 500
    Этажей 1
    Санузлы 1
    Спальни 3
    Смотреть
    Ипотека и
    рассрочка
    Проект загородного дома NHD-127
    Стоимость от:
    11 943 600
    Проект от: 74 250
    Этажей 2
    Санузлы 2
    Спальни 4
    Смотреть
    Ипотека и
    рассрочка
    Загородный капитальный ДОМ «Поленово-2»
    Стоимость от:
    5 268 340
    Проект от: 34 650
    Этажей 1
    Санузлы 1
    Спальни 2
    Смотреть
    Ипотека и
    рассрочка
    М-Магадан
    Стоимость от:
    4 015 440
    Проект от: 32 400
    Этажей 1
    Санузлы 1
    Спальни 2
    Смотреть

    Как узнать стоимость дома

    back
    Оставляете заявку
    Вы заполняете форму на сайте или звоните нам. Менеджер Лайвкрафт связывается с вами для уточнения деталей: тип дома, площадь, материалы, участок строительства.
    back
    Консультация и подбор решения
    Наш специалист помогает выбрать оптимальный тип дома и конструкцию с учётом бюджета, сроков и целей — будь то дом для постоянного проживания или дача.
    back
    Расчёт предварительной стоимости
    Инженер делает первичный расчёт стоимости строительства по вашим параметрам: фундамент, коробка, кровля, отделка. Вы получаете смету с разбивкой по этапам.
    back
    Корректировка и утверждение сметы
    При необходимости вносим изменения — например, замену материалов или сокращение этапов. После согласования формируется окончательная фиксированная смета.
    back
    Заключение договора и старт работ
    После утверждения сметы заключаем официальный договор с гарантией. Вы получаете прозрачный график и точную стоимость — без скрытых расходов.

    Заказать конусльтацию по:С 10

    Фото 1 С 10


      Наши
      контакты

      Дмитров
      Опорный проезд 28Б
      (индустриальный парк Ниагара)
      9:00 до 18:00

      Корзина