4.9
Рейтинг на основании 120 отзывов
Дмитров
Опорный проезд 28Б
(индустриальный парк Ниагара)
Бренд "Дмитров-Дело" c 2008 года на рынке строительства в Дмитрове
Звоните 9:00 до 18:00 8 (915) 055-33-61
Бренд "Дмитров-Дело" c 2008 года на рынке строительства в Дмитрове

S 2-125

Стоимость проекта от:
55 800 ₽
БЕСПЛАТНО! ПРИ ЗАКАЗЕ СТРОИТЕЛЬСТВА
Стоимость строительства от:
8 972 160 ₽
Артикул ART-11923
Дата 25.12.2025
Архитектурный стиль Европейский
Количество надземных этажей 2
Круглогодичное проживание Да
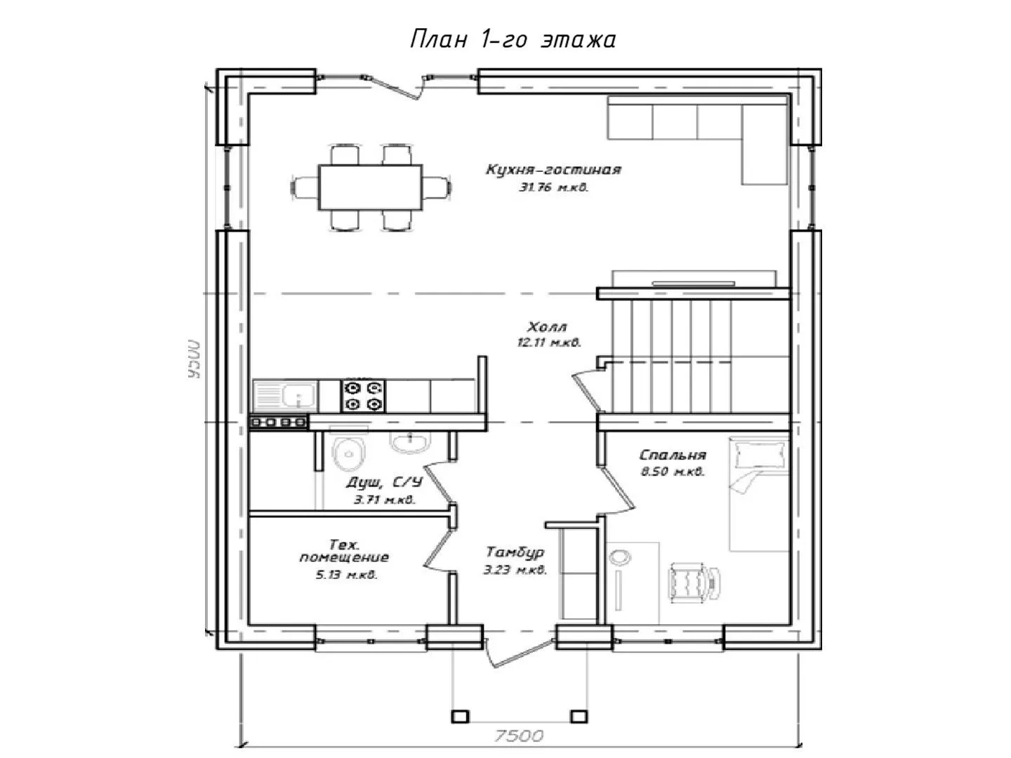
Площадь дома 124 м2
Санузлы 2
Спальни 4

Описание

Дом “S 2‑125” – это настоящий оазис европейского стиля в самом сердце вашего будущего дома. С двумя надземными этажами он предлагает простоту и комфорт, а его прочные керамзитобетонные стены обеспечивают отличную тепло- и звукоизоляцию, позволяя вам наслаждаться уютом в любое время года. Двускатная крыша придает зданию элегантный профиль, напоминающий о классических европейских усадебных домах, а отсутствие балконов и веранд позволяет сосредоточиться на качественно оформленных внутренних пространствах. Внутри каждого этажа раскрывается пространство, адаптированное под ваши желания: светлый, просторный холл сразу открывает ощущение свободы и комфорта, а основное жилое пространство – просторная гостинная с большим окном, где легко будет сквозить свежий воздух и солнечные лучи. Большой семейный стол, удобная кухня и спальные зоны – все это продумано так, чтобы каждый день начинался с уюта и завершался гармонией. Автономность достигается не только благодаря отсутствию внешних гаражей, но и потому, что дом полностью рассчитан на круглогодичное проживание, гарантируя комфорт в любую погоду. Покупая “S 2‑125”, вы приобретаете не просто строение, а место, где каждый сантиметр дышит европейским вкусом и технологическим совершенством. Это дом, который станет вашим личным убежищем, в котором каждое мгновение будет наполнено теплом, уютом и неповторимым стилем. Приглашаем вас стать владельцем этого исключительного дома, где традиции и современность идут рука об руку, создавая идеальный уголок для вашего семейного счастья.

Характеристики дома

Архитектурный стиль
Автоматизированное регулирование параметров теплоносителя
Нет
Балконы/лоджии
Отсутствуют
Чердачное помещение
Нет
Датчики протечки воды
Нет
Эксплуатируемая или зеленая кровля
Нет
Электроснабжение
Центральное
Газоснабжение
Не предусмотрено
Изоляция воздушного шума
Нет
Камин
Нет
Класс энергоэффективности
-
Класс энергосбережения
-
Количество надземных этажей
2
Круглогодичное проживание
Да
Материал кровли
Металлочерепица
Материал перекрытий
Сборные железобетонные
Материал внешних стен
Материал внутренних перегородок
Блочные
Модульное строительство с конструкциями заводского изготовления
Нет
Объем надземной части
504 м3
Основной материал фасадов
Штукатурка
Отопление
Индивидуальное
Площадь дома
124 м2
Площадь застройки
85 м2
Подвальное помещение
Нет
Показатель компактности здания
-
Приборы учета тепловой энергии
Нет
Пристроенный гараж/крытая автостоянка
Нет
Противопожарная система
Нет
Санузлы
2
Совмещенная кухня-гостиная
Да
Спальни
4
Терраса
Нет
Тип фундамента
Свайно-ростверковый
Тип кровли
Толщина внешних стен
300 мм
Толщина внутренних перегородок
100 мм
Улучшенные шумовые характеристики
Нет
Вентиляция
Естественная
Веранда
Нет
Водоотведение
Локальные очистные сооружения
Водоснабжение
Индивидуальное
Высота дома
7.85 м
Высота потолков
2.7 м

Планировка

Фасад дома

Александр

Закажите выезд инженера

Александр

Выездной инженер
Закажите выезд инженера для точной диагностики и профессиональной консультации по инженерным системам. Специалист приедет в удобное время, проведёт осмотр, рассчитает стоимость работ и подберёт оптимальные решения для вашего дома.


    Похожие проекты

    Ипотека и
    рассрочка
    Одноэтажный дом с террасой и большой кухней-гостинной
    Стоимость от:
    9 240 660
    Проект от: 55 350
    Этажей 1
    Санузлы 2
    Спальни 3
    Смотреть
    Ипотека и
    рассрочка
    ДомPRO 95-4К
    Стоимость от:
    7 562 500
    Проект от: 42 750
    Этажей 1
    Санузлы 2
    Спальни 4
    Смотреть
    Ипотека и
    рассрочка
    А-ФРЕЙМ FARM-VILLAGE
    Стоимость от:
    7 421 400
    Проект от: 55 800
    Этажей 2
    Санузлы 1
    Спальни 2
    Смотреть
    Ипотека и
    рассрочка
    Загородный дом НИШ 168
    Стоимость от:
    9 994 320
    Проект от: 64 350
    Этажей 2
    Санузлы 2
    Спальни 4
    Смотреть
    Ипотека и
    рассрочка
    BARN49
    Стоимость от:
    3 011 580
    Проект от: 24 300
    Этажей 1
    Санузлы 1
    Спальни 1
    Смотреть
    Ипотека и
    рассрочка
    ВС90Б
    Стоимость от:
    6 355 800
    Проект от: 40 500
    Этажей 1
    Санузлы 1
    Спальни 3
    Смотреть

    Как узнать стоимость дома

    back
    Оставляете заявку
    Вы заполняете форму на сайте или звоните нам. Менеджер Лайвкрафт связывается с вами для уточнения деталей: тип дома, площадь, материалы, участок строительства.
    back
    Консультация и подбор решения
    Наш специалист помогает выбрать оптимальный тип дома и конструкцию с учётом бюджета, сроков и целей — будь то дом для постоянного проживания или дача.
    back
    Расчёт предварительной стоимости
    Инженер делает первичный расчёт стоимости строительства по вашим параметрам: фундамент, коробка, кровля, отделка. Вы получаете смету с разбивкой по этапам.
    back
    Корректировка и утверждение сметы
    При необходимости вносим изменения — например, замену материалов или сокращение этапов. После согласования формируется окончательная фиксированная смета.
    back
    Заключение договора и старт работ
    После утверждения сметы заключаем официальный договор с гарантией. Вы получаете прозрачный график и точную стоимость — без скрытых расходов.

    Заказать конусльтацию по:S 2-125

    Фото 1 S 2-125


      Наши
      контакты

      Дмитров
      Опорный проезд 28Б
      (индустриальный парк Ниагара)
      9:00 до 18:00

      Корзина