4.9
Рейтинг на основании 120 отзывов
Дмитров
Опорный проезд 28Б
(индустриальный парк Ниагара)
Бренд "Дмитров-Дело" c 2008 года на рынке строительства в Дмитрове
Звоните 9:00 до 18:00 8 (915) 055-33-61
Бренд "Дмитров-Дело" c 2008 года на рынке строительства в Дмитрове

Серия «КЛАССИКА» КД-9

Стоимость проекта от:
54 900 ₽
БЕСПЛАТНО! ПРИ ЗАКАЗЕ СТРОИТЕЛЬСТВА
Стоимость строительства от:
7 155 300 ₽
Артикул ART-4474
Дата 26.12.2025
Архитектурный стиль Классический
Количество надземных этажей 2
Круглогодичное проживание Да
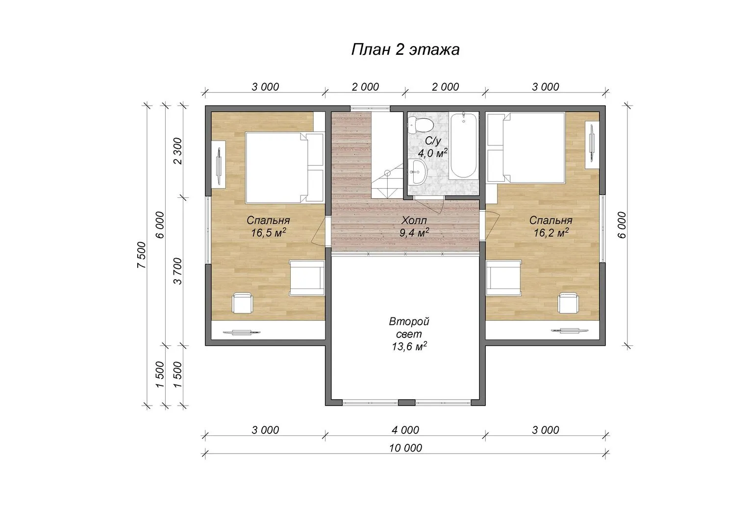
Площадь дома 122 м2
Санузлы 2
Спальни 3

Описание

Классика в обличии современного комфортного жилья – вот что представляет вашему вниманию серия «КЛАССИКА» модели КД‑9. Двухэтажный дом с традиционным обликом, выполненный из прочного деревянного каркаса, дарит ощущение уюта и тёплой домашней атмосферы. Двускатная крыша, выполненная из качественных материалов, не просто защищает от непогоды, но и придаёт дому строгий, но при этом дружелюбный вид, характерный именно для классического стиля. Здесь каждый метр продуман до мелочей: от просторных комнат до уютной, солнечной террасы, которая становится вашим личным уголком для отдыха на свежем воздухе, будь то жаркое лето или прохладный осенний вечер. Круглогодичное проживание стало ещё более комфортным благодаря теплоизоляции деревянных стен, создающих естественную защиту от холода и обеспечивают экономию энергии. Отсутствие балконов и веранд не мешает ощутить всю полноту открытых пространств; вместо этого, благодаря продуманному планировочному решению, внутреннее пространство сохраняет спокойствие и приватность. Забудьте о громоздких гаражах и чердачном пространстве: в КД‑9 всё сделано акцентированно под ваш комфорт и функциональность жизни. Это дом, где каждый элемент – от архитектурной формы до выбранных материалов – был выбран с любовью к деталям и стремлением создать идеальное пространство для постоянного и приятного проживания. Приглашаем вас сделать шаг к дому мечты и открыть для себя неповторимый уют и элегантность «КЛАССИКА».

Характеристики дома

Архитектурный стиль
Автоматизированное регулирование параметров теплоносителя
-
Балконы/лоджии
Отсутствуют
Чердачное помещение
Нет
Датчики протечки воды
-
Эксплуатируемая или зеленая кровля
-
Электроснабжение
Центральное
Газоснабжение
Центральное
Изоляция воздушного шума
-
Камин
Нет
Класс энергоэффективности
-
Класс энергосбережения
-
Количество надземных этажей
2
Круглогодичное проживание
Да
Материал кровли
Битумная черепица
Материал перекрытий
Деревянные
Материал внешних стен
Материал внутренних перегородок
Деревянные
Модульное строительство с конструкциями заводского изготовления
Нет
Объем надземной части
657 м3
Основной материал фасадов
Дерево
Отопление
Центральное
Площадь дома
122 м2
Площадь застройки
156 м2
Подвальное помещение
Нет
Показатель компактности здания
-
Приборы учета тепловой энергии
-
Пристроенный гараж/крытая автостоянка
Нет
Противопожарная система
Нет
Санузлы
2
Совмещенная кухня-гостиная
Нет
Спальни
3
Терраса
Да
Тип фундамента
Свайно-винтовой
Тип кровли
Толщина внешних стен
150 мм
Толщина внутренних перегородок
100 мм
Улучшенные шумовые характеристики
-
Вентиляция
Принудительная
Веранда
Нет
Водоотведение
Центральное
Водоснабжение
Центральное
Высота дома
7.3 м
Высота потолков
2.5 м

Планировка

Фасад дома

Александр

Закажите выезд инженера

Александр

Выездной инженер
Закажите выезд инженера для точной диагностики и профессиональной консультации по инженерным системам. Специалист приедет в удобное время, проведёт осмотр, рассчитает стоимость работ и подберёт оптимальные решения для вашего дома.


    Похожие проекты

    Ипотека и
    рассрочка
    Проект дома Ньюпорт
    Стоимость от:
    5 538 960
    Проект от: 37 800
    Этажей 2
    Санузлы 1
    Спальни 2
    Смотреть
    Ипотека и
    рассрочка
    Индивидуальный жилой дом площадью 107 м2
    Стоимость от:
    8 515 540
    Проект от: 48 150
    Этажей 1
    Санузлы 2
    Спальни 3
    Смотреть
    Ипотека и
    рассрочка
    Двухэтажный дом SH100
    Стоимость от:
    7 048 860
    Проект от: 49 050
    Этажей 2
    Санузлы 2
    Спальни 5
    Смотреть
    Ипотека и
    рассрочка
    Проект 13
    Стоимость от:
    7 415 100
    Проект от: 47 250
    Этажей 1
    Санузлы 1
    Спальни 3
    Смотреть
    Ипотека и
    рассрочка
    Заинск 1382
    Стоимость от:
    12 016 400
    Проект от: 72 000
    Этажей 1
    Санузлы 2
    Спальни 3
    Смотреть
    Ипотека и
    рассрочка
    Загородный дом АС-231
    Стоимость от:
    21 347 040
    Проект от: 140 400
    Этажей 1
    Санузлы 3
    Спальни 5
    Смотреть

    Как узнать стоимость дома

    back
    Оставляете заявку
    Вы заполняете форму на сайте или звоните нам. Менеджер Лайвкрафт связывается с вами для уточнения деталей: тип дома, площадь, материалы, участок строительства.
    back
    Консультация и подбор решения
    Наш специалист помогает выбрать оптимальный тип дома и конструкцию с учётом бюджета, сроков и целей — будь то дом для постоянного проживания или дача.
    back
    Расчёт предварительной стоимости
    Инженер делает первичный расчёт стоимости строительства по вашим параметрам: фундамент, коробка, кровля, отделка. Вы получаете смету с разбивкой по этапам.
    back
    Корректировка и утверждение сметы
    При необходимости вносим изменения — например, замену материалов или сокращение этапов. После согласования формируется окончательная фиксированная смета.
    back
    Заключение договора и старт работ
    После утверждения сметы заключаем официальный договор с гарантией. Вы получаете прозрачный график и точную стоимость — без скрытых расходов.

    Заказать конусльтацию по:Серия «КЛАССИКА» КД-9

    Фото 1 Серия «КЛАССИКА» КД-9


      Наши
      контакты

      Дмитров
      Опорный проезд 28Б
      (индустриальный парк Ниагара)
      9:00 до 18:00

      Корзина