4.9
Рейтинг на основании 120 отзывов
Дмитров
Опорный проезд 28Б
(индустриальный парк Ниагара)
Бренд "Дмитров-Дело" c 2008 года на рынке строительства в Дмитрове
Звоните 9:00 до 18:00 8 (915) 055-33-61
Бренд "Дмитров-Дело" c 2008 года на рынке строительства в Дмитрове

Шале MH-202

Стоимость проекта от:
36 900 ₽
БЕСПЛАТНО! ПРИ ЗАКАЗЕ СТРОИТЕЛЬСТВА
Стоимость строительства от:
4 753 540 ₽
Артикул ART-19424
Дата 26.12.2025
Архитектурный стиль Шале
Количество надземных этажей 1
Круглогодичное проживание Да
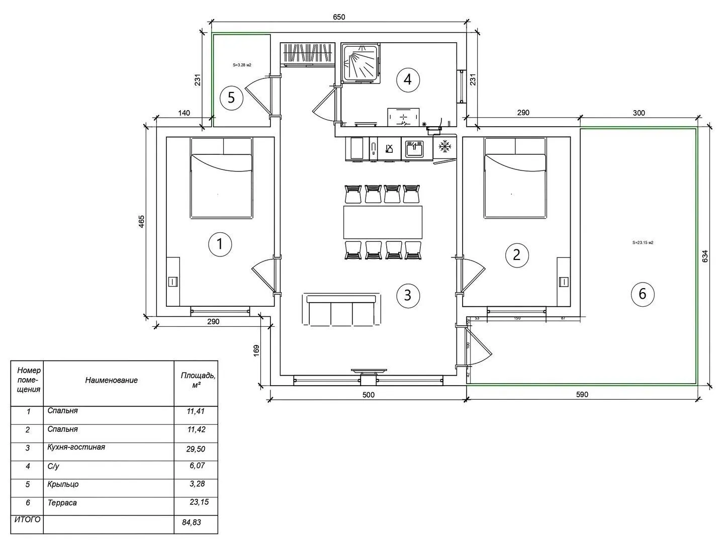
Площадь дома 82 м2
Санузлы 1
Спальни 2

Описание

Шале MH‑202 – это истинное укрытие для ценителей спокойствия и уюта. На одной надземной площадке собран дом в классическом шале‑стиле, где каждая деталь создана для того, чтобы дарить ощущение тепла и домашнего уюта даже в самые холодные зимние вечера. Каркас из дёреных брусов, обрамлённый многослойной многощипковой крышей, отдает тепло и защиту от непогоды, одновременно придавая дому характерный скандинавский шарм. Внутри вас ждёт комфортный, светлый интерьер, где естественные материалы дополняют друг друга: деревянные балки, мягкие текстуры и приглушённая цветовая палитра. На открытой террасе можно наслаждаться свежим воздухом, прогуливаясь по утрам или вечером, наблюдая падающие снежинки и уносящую глушку снежную пехту. Дом специально спроектирован для круглогодичного проживания: уютная подогрев, изоляция и утепленные оконные конструкции гарантируют комфорт в любое время года. Шале MH‑202 – это место, где каждая деталь напоминает о природе: свежий запах хвои, ощущение ветра на открытой территории, ощущение, будто вы живёте в живописном уголке, где спокойствие и простота соединяются в единую гармонию. Если вам нужно приют, который будет радовать глаз и согревать душу, этот шале готов предложить вам настоящее ощущение дома.

Характеристики дома

Архитектурный стиль
Автоматизированное регулирование параметров теплоносителя
Да
Балконы/лоджии
Отсутствуют
Чердачное помещение
Нет
Датчики протечки воды
Нет
Эксплуатируемая или зеленая кровля
Нет
Электроснабжение
Центральное
Газоснабжение
Не предусмотрено
Изоляция воздушного шума
Нет
Камин
Нет
Класс энергоэффективности
-
Класс энергосбережения
-
Количество надземных этажей
1
Круглогодичное проживание
Да
Материал кровли
Металлочерепица
Материал перекрытий
Деревянные
Материал внешних стен
Материал внутренних перегородок
Деревянные
Модульное строительство с конструкциями заводского изготовления
Нет
Объем надземной части
313 м3
Основной материал фасадов
Дерево
Отопление
Индивидуальное
Площадь дома
82 м2
Площадь застройки
97 м2
Подвальное помещение
Нет
Показатель компактности здания
-
Приборы учета тепловой энергии
Нет
Пристроенный гараж/крытая автостоянка
Нет
Противопожарная система
Нет
Санузлы
1
Совмещенная кухня-гостиная
Да
Спальни
2
Терраса
Да
Тип фундамента
Свайный
Тип кровли
Толщина внешних стен
300 мм
Толщина внутренних перегородок
150 мм
Улучшенные шумовые характеристики
Да
Вентиляция
Естественная
Веранда
Нет
Водоотведение
Не предусмотрено
Водоснабжение
Не предусмотрено
Высота дома
4.69 м
Высота потолков
3 м

Планировка

Фасад дома

Александр

Закажите выезд инженера

Александр

Выездной инженер
Закажите выезд инженера для точной диагностики и профессиональной консультации по инженерным системам. Специалист приедет в удобное время, проведёт осмотр, рассчитает стоимость работ и подберёт оптимальные решения для вашего дома.


    Похожие проекты

    Ипотека и
    рассрочка
    П-113
    Стоимость от:
    6 795 360
    Проект от: 48 600
    Этажей 1
    Санузлы 2
    Спальни 3
    Смотреть
    Ипотека и
    рассрочка
    Одноэтажный дом «Ягодное»
    Стоимость от:
    10 126 160
    Проект от: 66 600
    Этажей 1
    Санузлы 2
    Спальни 3
    Смотреть
    Ипотека и
    рассрочка
    Дом из CLT «Норильск»
    Стоимость от:
    644 640
    Проект от: 61 200
    Этажей 2
    Санузлы 3
    Спальни 3
    Смотреть
    Ипотека и
    рассрочка
    Авторский проект «Броуд»
    Стоимость от:
    2 895 420
    Проект от: 18 450
    Этажей 1
    Санузлы 2
    Спальни 1
    Смотреть
    Ипотека и
    рассрочка
    706А «Истра» -двухэтажный дом в стиле Райта, 4 спальни, терраса
    Стоимость от:
    12 710 880
    Проект от: 81 900
    Этажей 2
    Санузлы 3
    Спальни 4
    Смотреть
    Ипотека и
    рассрочка
    ТЕХАС
    Стоимость от:
    8 640 500
    Проект от: 51 750
    Этажей 1
    Санузлы 2
    Спальни 3
    Смотреть

    Как узнать стоимость дома

    back
    Оставляете заявку
    Вы заполняете форму на сайте или звоните нам. Менеджер Лайвкрафт связывается с вами для уточнения деталей: тип дома, площадь, материалы, участок строительства.
    back
    Консультация и подбор решения
    Наш специалист помогает выбрать оптимальный тип дома и конструкцию с учётом бюджета, сроков и целей — будь то дом для постоянного проживания или дача.
    back
    Расчёт предварительной стоимости
    Инженер делает первичный расчёт стоимости строительства по вашим параметрам: фундамент, коробка, кровля, отделка. Вы получаете смету с разбивкой по этапам.
    back
    Корректировка и утверждение сметы
    При необходимости вносим изменения — например, замену материалов или сокращение этапов. После согласования формируется окончательная фиксированная смета.
    back
    Заключение договора и старт работ
    После утверждения сметы заключаем официальный договор с гарантией. Вы получаете прозрачный график и точную стоимость — без скрытых расходов.

    Заказать конусльтацию по:Шале MH-202

    Фото 1 Шале MH-202


      Наши
      контакты

      Дмитров
      Опорный проезд 28Б
      (индустриальный парк Ниагара)
      9:00 до 18:00

      Корзина