4.9
Рейтинг на основании 120 отзывов
Дмитров
Опорный проезд 28Б
(индустриальный парк Ниагара)
Бренд "Дмитров-Дело" c 2008 года на рынке строительства в Дмитрове
Звоните 9:00 до 18:00 8 (915) 055-33-61
Бренд "Дмитров-Дело" c 2008 года на рынке строительства в Дмитрове

Шале с мансардой Ольха 98

Стоимость проекта от:
52 200 ₽
БЕСПЛАТНО! ПРИ ЗАКАЗЕ СТРОИТЕЛЬСТВА
Стоимость строительства от:
7 405 440 ₽
Артикул ART-2411
Дата 26.12.2025
Архитектурный стиль Шале
Количество надземных этажей 2
Круглогодичное проживание Да
Площадь дома 116 м2
Санузлы 1
Спальни 3

Описание

Приглашаем вас познакомиться с уютным шале “Ольха 98”, которое становится идеальным выбором для тех, кто ценит гармонию природы и современный комфорт. В двух надземных помещениях здесь можно спокойно планировать как теплое летнее отдых, так и уютные зимние посиделки ― круглогодичное проживание сделано возможным благодаря теплоизоляции и тщательно продуманным внутренним схемам. Архитектурный стиль шале с его живописными деревянными фасадами, характерно лиственных кривых и двойной скатной крышей создают атмосферу уюта, словно вы находитесь в сердце высоких гор, но в прибрежной зоне с мягким дыханием леса. Здесь каждый элемент продуман до мелочей: просторные коридоры, большие окна, пропускающие солнечный свет на просторы, а терраса «свои окна во двор» — настоящий кворум для семейных посиделок, жаркого кофе на рассвете и вечерних закатов. Деревянный каркас, служащий фундаментом, придает дому характерную теплообменную структуру, сохраняющую внутренний уют даже в холоденый мороз. Гибкая планировка двух этажей позволяет распределить зоны отдыха и сна так, чтобы каждая часть пространства удовлетворяла ваши пожелания. Хотя в нашем шале нет веранд, балконов и прибрежных гаражей, простота его форм и легкость в обслуживании создают идеальное место, когда главное — это связь с природой и близкими.

Характеристики дома

Архитектурный стиль
Автоматизированное регулирование параметров теплоносителя
Нет
Балконы/лоджии
Отсутствуют
Чердачное помещение
Нет
Датчики протечки воды
Нет
Эксплуатируемая или зеленая кровля
Нет
Электроснабжение
Индивидуальное
Газоснабжение
Не предусмотрено
Изоляция воздушного шума
Нет
Камин
Нет
Класс энергоэффективности
-
Класс энергосбережения
-
Количество надземных этажей
2
Круглогодичное проживание
Да
Материал кровли
Металлочерепица
Материал перекрытий
Деревянные
Материал внешних стен
Материал внутренних перегородок
Деревянные
Модульное строительство с конструкциями заводского изготовления
Нет
Объем надземной части
340 м3
Основной материал фасадов
Сайдинг
Отопление
Индивидуальное
Площадь дома
116 м2
Площадь застройки
83 м2
Подвальное помещение
Нет
Показатель компактности здания
-
Приборы учета тепловой энергии
Нет
Пристроенный гараж/крытая автостоянка
Нет
Противопожарная система
Нет
Санузлы
1
Совмещенная кухня-гостиная
Да
Спальни
3
Терраса
Да
Тип фундамента
Плитный
Тип кровли
Толщина внешних стен
200 мм
Толщина внутренних перегородок
100 мм
Улучшенные шумовые характеристики
Нет
Вентиляция
Естественная
Веранда
Нет
Водоотведение
Локальные очистные сооружения
Водоснабжение
2 варианта
Высота дома
5.8 м
Высота потолков
2.7 м

Планировка

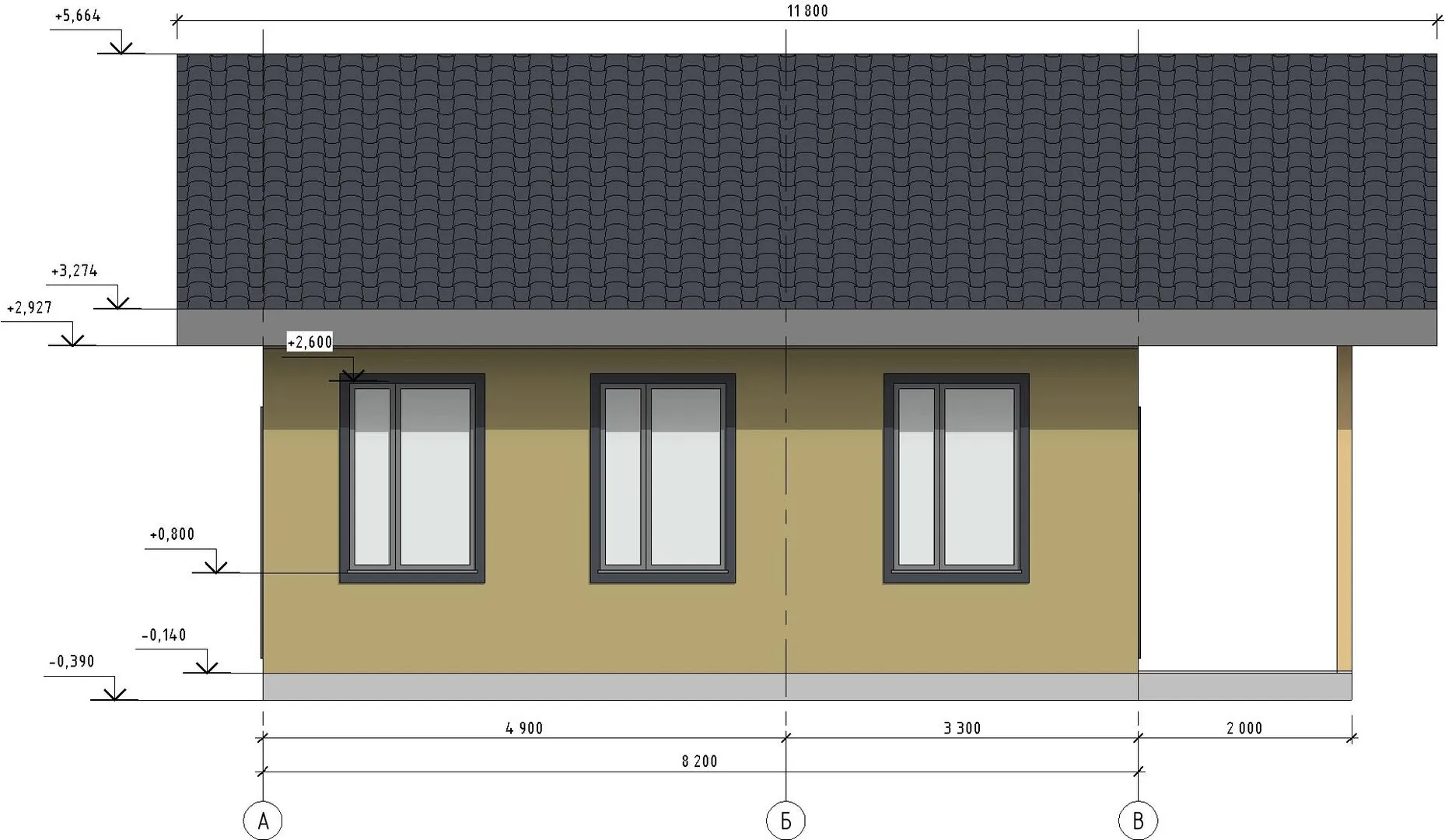
Фасад дома

Александр

Закажите выезд инженера

Александр

Выездной инженер
Закажите выезд инженера для точной диагностики и профессиональной консультации по инженерным системам. Специалист приедет в удобное время, проведёт осмотр, рассчитает стоимость работ и подберёт оптимальные решения для вашего дома.


    Похожие проекты

    Ипотека и
    рассрочка
    LITE 106
    Стоимость от:
    6 494 620
    Проект от: 47 700
    Этажей 1
    Санузлы 1
    Спальни 2
    Смотреть
    Ипотека и
    рассрочка
    Двухэтажный дом 167,1 (180,5) м2 ROVA
    Стоимость от:
    13 238 400
    Проект от: 81 000
    Этажей 2
    Санузлы 3
    Спальни 5
    Смотреть
    Ипотека и
    рассрочка
    Двухэтажный дом -Family 02
    Стоимость от:
    9 335 040
    Проект от: 61 200
    Этажей 2
    Санузлы 1
    Спальни 4
    Смотреть
    Ипотека и
    рассрочка
    Мансардный дом М-113
    Стоимость от:
    10 020 960
    Проект от: 60 300
    Этажей 2
    Санузлы 2
    Спальни 3
    Смотреть
    Ипотека и
    рассрочка
    ИЖС 2-х этажного дома
    Стоимость от:
    33 080 320
    Проект от: 194 400
    Этажей 3
    Санузлы 3
    Спальни 4
    Смотреть
    Ипотека и
    рассрочка
    Одноэтажный дом Скандинавия 1-120
    Стоимость от:
    13 135 320
    Проект от: 83 700
    Этажей 1
    Санузлы 2
    Спальни 3
    Смотреть

    Как узнать стоимость дома

    back
    Оставляете заявку
    Вы заполняете форму на сайте или звоните нам. Менеджер Лайвкрафт связывается с вами для уточнения деталей: тип дома, площадь, материалы, участок строительства.
    back
    Консультация и подбор решения
    Наш специалист помогает выбрать оптимальный тип дома и конструкцию с учётом бюджета, сроков и целей — будь то дом для постоянного проживания или дача.
    back
    Расчёт предварительной стоимости
    Инженер делает первичный расчёт стоимости строительства по вашим параметрам: фундамент, коробка, кровля, отделка. Вы получаете смету с разбивкой по этапам.
    back
    Корректировка и утверждение сметы
    При необходимости вносим изменения — например, замену материалов или сокращение этапов. После согласования формируется окончательная фиксированная смета.
    back
    Заключение договора и старт работ
    После утверждения сметы заключаем официальный договор с гарантией. Вы получаете прозрачный график и точную стоимость — без скрытых расходов.

    Заказать конусльтацию по:Шале с мансардой Ольха 98

    Фото 1 Шале с мансардой Ольха 98


      Наши
      контакты

      Дмитров
      Опорный проезд 28Б
      (индустриальный парк Ниагара)
      9:00 до 18:00

      Корзина