4.9
Рейтинг на основании 120 отзывов
Дмитров
Опорный проезд 28Б
(индустриальный парк Ниагара)
Бренд "Дмитров-Дело" c 2008 года на рынке строительства в Дмитрове
Звоните 9:00 до 18:00 8 (915) 055-33-61
Бренд "Дмитров-Дело" c 2008 года на рынке строительства в Дмитрове

Сканди 2 этажа

Стоимость проекта от:
61 650 ₽
БЕСПЛАТНО! ПРИ ЗАКАЗЕ СТРОИТЕЛЬСТВА
Стоимость строительства от:
8 049 480 ₽
Артикул ART-19219
Дата 26.12.2025
Архитектурный стиль Европейский
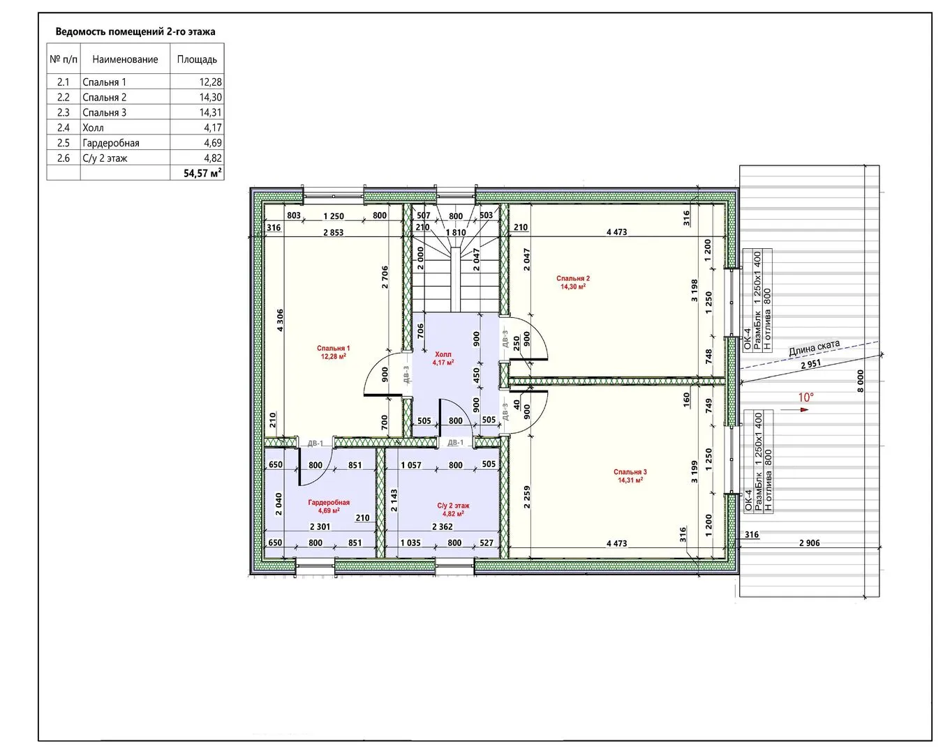
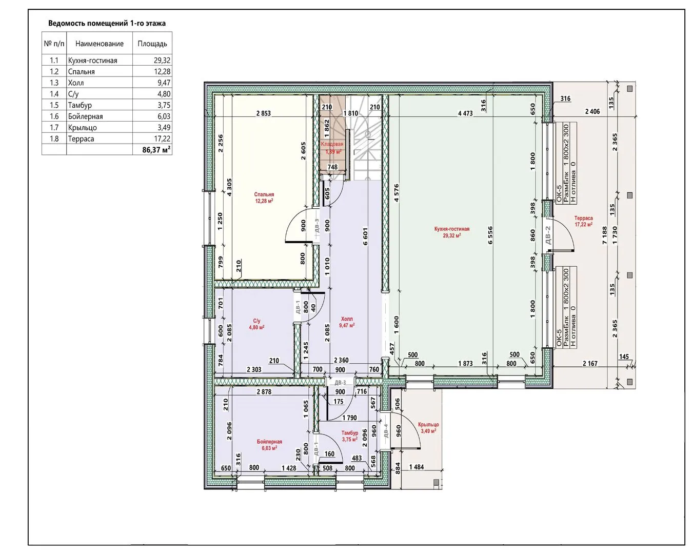
Количество надземных этажей 2
Круглогодичное проживание Да
Площадь дома 137 м2
Санузлы 2
Спальни 4

Описание

**Сканди 2‑этаж** – это гармоничное сочетание европейского уюта и скандинавской простоты, созданное для тех, кто ценит комфорт круглый год. Дом выдержан в элегантном европейском стиле, при этом его деревянный каркасные стены сохраняют тепло и дарят ощущение живого, природного пространства. Четырёхскатная крыша, выполненная по традиционной вальмовой схеме, защищает от непогоды и придаёт фасаду характерную, но при этом лаконичную элегантность. Вместе с чердачным помещением, которое легко превратить в уютный кабинет, мастер‑спальню или детскую комнату, он создаёт простор, позволяющий каждому члену семьи найти своё место. Особое внимание обращено на внутреннее освещение и связь с природой. Огромная терраса открывает панорамный вид на окружающий ландшафт, а отсутствие отдалённых балконов и веранд делает интерьер более свободным и непрерывным. Благодаря круглогодичному жилой конструкции, дом подходит как для спокойного отдыха, так и для активной семейной жизни – отопление и вентиляция обеспечены безупречно. И хотя прицепной гараж отсутствует, открытый дворанный уголок приглашает к совместным прогулкам и кулинарным экспериментам на свежем воздухе. В итоге, **Сканди 2‑этаж** – это место, где европейская классиика встречается с скандинавской теплотой, создавая идеальную обитель для всей семьи.

Характеристики дома

Архитектурный стиль
Автоматизированное регулирование параметров теплоносителя
Нет
Балконы/лоджии
Отсутствуют
Чердачное помещение
Да
Датчики протечки воды
Нет
Эксплуатируемая или зеленая кровля
Нет
Электроснабжение
Центральное
Газоснабжение
Не предусмотрено
Изоляция воздушного шума
Нет
Камин
Нет
Класс энергоэффективности
-
Класс энергосбережения
-
Количество надземных этажей
2
Круглогодичное проживание
Да
Материал кровли
Металлические рулонные или листовые материалы
Материал перекрытий
Деревянные
Материал внешних стен
Материал внутренних перегородок
Деревянные
Модульное строительство с конструкциями заводского изготовления
Нет
Объем надземной части
962 м3
Основной материал фасадов
Сайдинг
Отопление
Индивидуальное
Площадь дома
137 м2
Площадь застройки
141 м2
Подвальное помещение
Нет
Показатель компактности здания
-
Приборы учета тепловой энергии
Нет
Пристроенный гараж/крытая автостоянка
Нет
Противопожарная система
Нет
Санузлы
2
Совмещенная кухня-гостиная
Да
Спальни
4
Терраса
Да
Тип фундамента
Свайный
Толщина внешних стен
299 мм
Толщина внутренних перегородок
209 мм
Улучшенные шумовые характеристики
Нет
Вентиляция
Естественная
Веранда
Нет
Водоотведение
Локальные очистные сооружения
Водоснабжение
Индивидуальное
Высота дома
7 м
Высота потолков
2.75 м

Планировка

Фасад дома

Александр

Закажите выезд инженера

Александр

Выездной инженер
Закажите выезд инженера для точной диагностики и профессиональной консультации по инженерным системам. Специалист приедет в удобное время, проведёт осмотр, рассчитает стоимость работ и подберёт оптимальные решения для вашего дома.


    Похожие проекты

    Ипотека и
    рассрочка
    Семейный Дом
    Стоимость от:
    8 666 240
    Проект от: 50 400
    Этажей 1
    Санузлы 1
    Спальни 2
    Смотреть
    Ипотека и
    рассрочка
    ГСБ 101 одноэтажный
    Стоимость от:
    7 132 620
    Проект от: 45 450
    Этажей 1
    Санузлы 1
    Спальни 3
    Смотреть
    Ипотека и
    рассрочка
    Первая Любовь КД
    Стоимость от:
    10 209 840
    Проект от: 63 450
    Этажей 2
    Санузлы 2
    Спальни 4
    Смотреть
    Ипотека и
    рассрочка
    Оматало Классик
    Стоимость от:
    5 333 240
    Проект от: 41 400
    Этажей 1
    Санузлы 1
    Спальни 3
    Смотреть
    Ипотека и
    рассрочка
    Гармония
    Стоимость от:
    10 878 780
    Проект от: 71 550
    Этажей 1
    Санузлы 2
    Спальни 3
    Смотреть
    Ипотека и
    рассрочка
    Одноэтажный дом РН 103,4 с террасой
    Стоимость от:
    8 865 560
    Проект от: 53 100
    Этажей 1
    Санузлы 1
    Спальни 3
    Смотреть

    Как узнать стоимость дома

    back
    Оставляете заявку
    Вы заполняете форму на сайте или звоните нам. Менеджер Лайвкрафт связывается с вами для уточнения деталей: тип дома, площадь, материалы, участок строительства.
    back
    Консультация и подбор решения
    Наш специалист помогает выбрать оптимальный тип дома и конструкцию с учётом бюджета, сроков и целей — будь то дом для постоянного проживания или дача.
    back
    Расчёт предварительной стоимости
    Инженер делает первичный расчёт стоимости строительства по вашим параметрам: фундамент, коробка, кровля, отделка. Вы получаете смету с разбивкой по этапам.
    back
    Корректировка и утверждение сметы
    При необходимости вносим изменения — например, замену материалов или сокращение этапов. После согласования формируется окончательная фиксированная смета.
    back
    Заключение договора и старт работ
    После утверждения сметы заключаем официальный договор с гарантией. Вы получаете прозрачный график и точную стоимость — без скрытых расходов.

    Заказать конусльтацию по:Сканди 2 этажа

    Фото 1 Сканди 2 этажа


      Наши
      контакты

      Дмитров
      Опорный проезд 28Б
      (индустриальный парк Ниагара)
      9:00 до 18:00

      Корзина