4.9
Рейтинг на основании 120 отзывов
Дмитров
Опорный проезд 28Б
(индустриальный парк Ниагара)
Бренд "Дмитров-Дело" c 2008 года на рынке строительства в Дмитрове
Звоните 9:00 до 18:00 8 (915) 055-33-61
Бренд "Дмитров-Дело" c 2008 года на рынке строительства в Дмитрове

Сканди СПБ 93 — Одноэтажный Сканди СПБ ВМ 93

Стоимость проекта от:
41 400 ₽
БЕСПЛАТНО! ПРИ ЗАКАЗЕ СТРОИТЕЛЬСТВА
Стоимость строительства от:
5 839 240 ₽
Артикул ART-12945
Дата 25.12.2025
Архитектурный стиль Скандинавский
Количество надземных этажей 1
Круглогодичное проживание Да
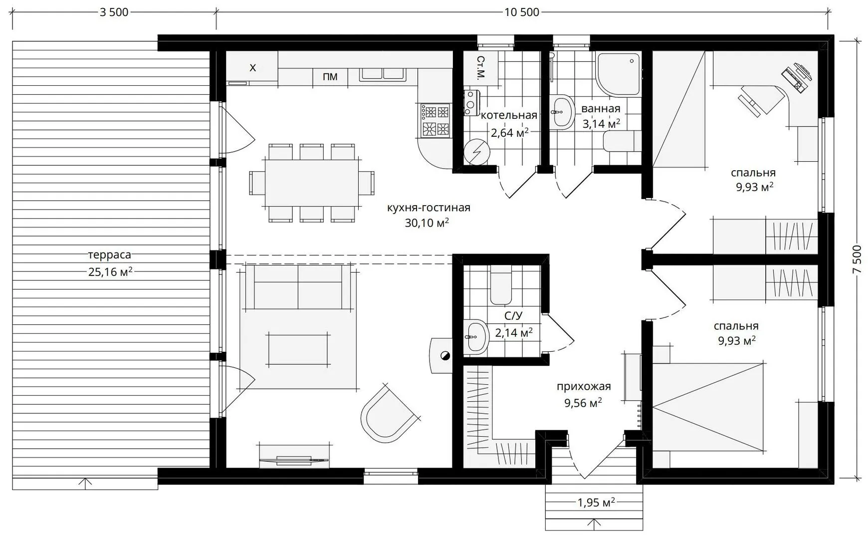
Площадь дома 92 м2
Санузлы 2
Спальни 2

Описание

**Сканди СПБ 93 – воплощение скандинавского уюта в единственном уровне** Погрузитесь в атмосферу лёгких, просторных интерьеров, где каждое пространство пропитано природной светлостью и теплом. Эта одноэтажная домика с двойной крышей в стиле скандинавского минимализма позволяет вам наслаждаться круглогодичным проживанием без компромиссов — от ярких солнечных дней до уютных зимних вечеров. Каркасно‑панельная конструкция обеспечивает надежность и энергоэффективность, а просторный чердачный этаж превращается в стильный уголок для работы, хобби или дополнительного спального места. **Идеальное сочетание простора и гармоничной природы** Отсутствие балконов и веранд не умеклённо ощущается – вместо этого дом открывает вид на живописные виды благодаря просторной террасе и панорамным окнам. Это пространство идеально подходит для встречи гостей, семейных завтраков на открытом воздухе и отдыха на свежем воздухе. Двускатная крыша создаёт ощущение лёгкости, а внутреннее пространство, обрамлённое натуральными материалами, делает дом местом, где каждая деталь заботливо продумана, от планировки до выбора отделки. **Простая роскошь, доступная каждому** Выбирая Сканди СПБ 93, вы инвестируете в дом, который сочетает в себе функциональность, изысканный дизайн и простую структуру, без лишних издержек. Это место, где каждый день становится праздником уюта, а ваши идеи обустроить пространство воплощаются без ограничений. Позвольте себе наслаждаться идеальным балансом между природой и современным комфортом – ваше новое начало ждет вас.

Характеристики дома

Архитектурный стиль
Автоматизированное регулирование параметров теплоносителя
Нет
Балконы/лоджии
Отсутствуют
Чердачное помещение
Да
Датчики протечки воды
Нет
Эксплуатируемая или зеленая кровля
Нет
Электроснабжение
Не предусмотрено
Газоснабжение
Не предусмотрено
Изоляция воздушного шума
Да
Камин
Да
Класс энергоэффективности
-
Класс энергосбережения
-
Количество надземных этажей
1
Круглогодичное проживание
Да
Материал кровли
Металлочерепица
Материал перекрытий
Деревянные
Материал внешних стен
Материал внутренних перегородок
Деревянные
Модульное строительство с конструкциями заводского изготовления
Нет
Объем надземной части
312 м3
Основной материал фасадов
Дерево
Отопление
Не предусмотрено
Площадь дома
92 м2
Площадь застройки
111 м2
Подвальное помещение
Нет
Показатель компактности здания
-
Приборы учета тепловой энергии
Нет
Пристроенный гараж/крытая автостоянка
Нет
Противопожарная система
Нет
Санузлы
2
Совмещенная кухня-гостиная
Да
Спальни
2
Терраса
Да
Тип фундамента
Свайный
Тип кровли
Толщина внешних стен
250 мм
Толщина внутренних перегородок
100 мм
Улучшенные шумовые характеристики
Да
Вентиляция
Естественная
Веранда
Нет
Водоотведение
Не предусмотрено
Водоснабжение
Не предусмотрено
Высота дома
4.4 м
Высота потолков
3.1 м

Планировка

Фасад дома

Александр

Закажите выезд инженера

Александр

Выездной инженер
Закажите выезд инженера для точной диагностики и профессиональной консультации по инженерным системам. Специалист приедет в удобное время, проведёт осмотр, рассчитает стоимость работ и подберёт оптимальные решения для вашего дома.


    Похожие проекты

    Ипотека и
    рассрочка
    Проект загородного дома NHD-146
    Стоимость от:
    5 939 780
    Проект от: 35 550
    Этажей 1
    Санузлы 1
    Спальни 2
    Смотреть
    Ипотека и
    рассрочка
    Загородный коттедж №213
    Стоимость от:
    18 514 800
    Проект от: 119 250
    Этажей 2
    Санузлы 3
    Спальни 5
    Смотреть
    Ипотека и
    рассрочка
    Дом в стиле Хайтек с 2 спальнями
    Стоимость от:
    8 894 600
    Проект от: 58 500
    Этажей 1
    Санузлы 2
    Спальни 2
    Смотреть
    Ипотека и
    рассрочка
    Одноэтажный дом КБ-051
    Стоимость от:
    5 639 700
    Проект от: 33 750
    Этажей 1
    Санузлы 1
    Спальни 3
    Смотреть
    Ипотека и
    рассрочка
    Двухэтажный дом MINI 01
    Стоимость от:
    4 216 080
    Проект от: 25 650
    Этажей 2
    Санузлы 2
    Спальни 2
    Смотреть
    Ипотека и
    рассрочка
    Искра лайт
    Стоимость от:
    5 578 980
    Проект от: 35 550
    Этажей 1
    Санузлы 1
    Спальни 3
    Смотреть

    Как узнать стоимость дома

    back
    Оставляете заявку
    Вы заполняете форму на сайте или звоните нам. Менеджер Лайвкрафт связывается с вами для уточнения деталей: тип дома, площадь, материалы, участок строительства.
    back
    Консультация и подбор решения
    Наш специалист помогает выбрать оптимальный тип дома и конструкцию с учётом бюджета, сроков и целей — будь то дом для постоянного проживания или дача.
    back
    Расчёт предварительной стоимости
    Инженер делает первичный расчёт стоимости строительства по вашим параметрам: фундамент, коробка, кровля, отделка. Вы получаете смету с разбивкой по этапам.
    back
    Корректировка и утверждение сметы
    При необходимости вносим изменения — например, замену материалов или сокращение этапов. После согласования формируется окончательная фиксированная смета.
    back
    Заключение договора и старт работ
    После утверждения сметы заключаем официальный договор с гарантией. Вы получаете прозрачный график и точную стоимость — без скрытых расходов.

    Заказать конусльтацию по:Сканди СПБ 93 — Одноэтажный Сканди СПБ ВМ 93

    Фото 1 Сканди СПБ 93 — Одноэтажный Сканди СПБ ВМ 93


      Наши
      контакты

      Дмитров
      Опорный проезд 28Б
      (индустриальный парк Ниагара)
      9:00 до 18:00

      Корзина