4.9
Рейтинг на основании 120 отзывов
Дмитров
Опорный проезд 28Б
(индустриальный парк Ниагара)
Бренд "Дмитров-Дело" c 2008 года на рынке строительства в Дмитрове
Звоните 9:00 до 18:00 8 (915) 055-33-61
Бренд "Дмитров-Дело" c 2008 года на рынке строительства в Дмитрове

Сканди Валдай 130 2122Д

Стоимость проекта от:
61 200 ₽
БЕСПЛАТНО! ПРИ ЗАКАЗЕ СТРОИТЕЛЬСТВА
Стоимость строительства от:
7 883 920 ₽
Артикул ART-19088
Дата 26.12.2025
Архитектурный стиль Скандинавский
Количество надземных этажей 1
Круглогодичное проживание Да
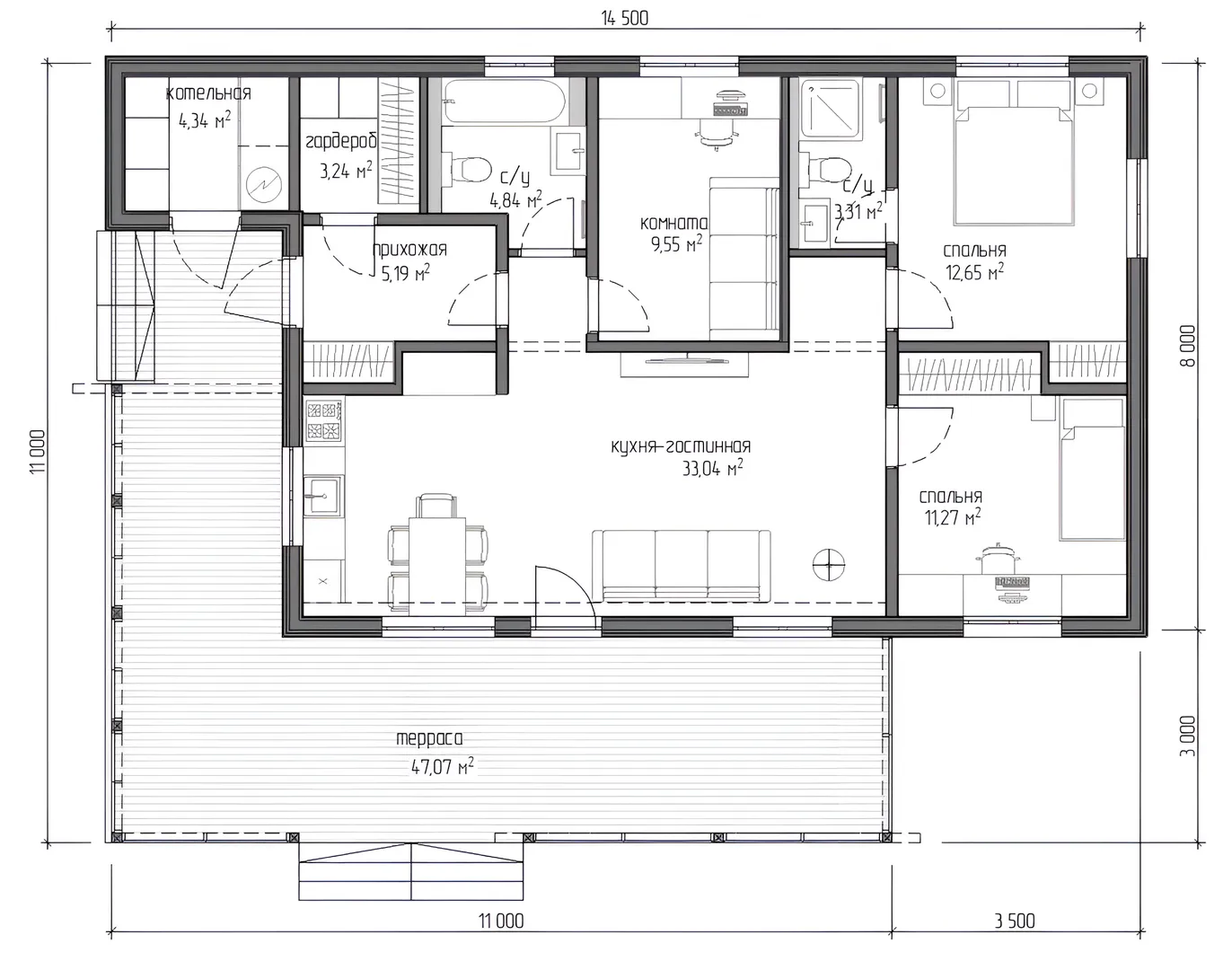
Площадь дома 136 м2
Санузлы 2
Спальни 2

Описание

Сканди “Валдай 130 2122Д” — настоящий оазис скандинавского уюта, расположенный в живописном уголке, где природа встречается с современными удобствами. Дом обладает одним надземным этажом, но это не мешает ему быть полноценным, круглогодичным жильём: просторные, солнечные комнаты с яркой деревянной панельной отделкой создают атмосферу тепла и спокойствия даже в самые холодные месяцы. Премиальный материал внешних стен – крепкий деревянный каркас – подчеркнет естественность стиля, сохраняя тепло в холодную погоду и придавая дому характерный «человечный» вид. Особый акцент сделан на простоте и функциональности: в этом доме нет балконов, веранд и прикреплённых гаражей, но зато предусмотрено чердачное помещение и красивая терраса. Околица террасы пронизана живыми растениями, а с неё открывается панорамный вид на лесные просторы и уютный двор. Двускатная крыша в скандинавском стиле — это не только эстетика, но и надёжность, позволяющая защитить интерьер от всех атмосферных явлений. Этот дом — идеальное сочетание скандинавского минимализма, природного материала и практичности. Он приглашает насладиться каждой минутой в круглогодичном уединении, где сочетание естественного дерева, открытых пространств и простоты оформления создаёт неповторимый комфорт. Добро пожаловать в ваш новый дом, где каждый день начинается с вдохновляющего ощущения свежести и уюта.

Характеристики дома

Архитектурный стиль
Автоматизированное регулирование параметров теплоносителя
Нет
Балконы/лоджии
Отсутствуют
Чердачное помещение
Да
Датчики протечки воды
Нет
Эксплуатируемая или зеленая кровля
Нет
Электроснабжение
Не предусмотрено
Газоснабжение
Не предусмотрено
Изоляция воздушного шума
Да
Камин
Нет
Класс энергоэффективности
-
Класс энергосбережения
-
Количество надземных этажей
1
Круглогодичное проживание
Да
Материал кровли
Металлочерепица
Материал перекрытий
Деревянные
Материал внешних стен
Материал внутренних перегородок
Деревянные
Модульное строительство с конструкциями заводского изготовления
Нет
Объем надземной части
434 м3
Основной материал фасадов
Дерево
Отопление
Не предусмотрено
Площадь дома
136 м2
Площадь застройки
156 м2
Подвальное помещение
Нет
Показатель компактности здания
-
Приборы учета тепловой энергии
Нет
Пристроенный гараж/крытая автостоянка
Нет
Противопожарная система
Нет
Санузлы
2
Совмещенная кухня-гостиная
Да
Спальни
2
Терраса
Да
Тип фундамента
Свайный
Тип кровли
Толщина внешних стен
270 мм
Толщина внутренних перегородок
140 мм
Улучшенные шумовые характеристики
Да
Вентиляция
Естественная
Веранда
Нет
Водоотведение
Не предусмотрено
Водоснабжение
Не предусмотрено
Высота дома
5.5 м
Высота потолков
2.8 м

Планировка

Фасад дома

Александр

Закажите выезд инженера

Александр

Выездной инженер
Закажите выезд инженера для точной диагностики и профессиональной консультации по инженерным системам. Специалист приедет в удобное время, проведёт осмотр, рассчитает стоимость работ и подберёт оптимальные решения для вашего дома.


    Похожие проекты

    Ипотека и
    рассрочка
    Семейный НБ-101
    Стоимость от:
    6 531 965
    Проект от: 50 850
    Этажей 1
    Санузлы 2
    Спальни 3
    Смотреть
    Ипотека и
    рассрочка
    Дом 105кв.м.
    Стоимость от:
    7 890 300
    Проект от: 47 250
    Этажей 1
    Санузлы 1
    Спальни 3
    Смотреть
    Ипотека и
    рассрочка
    Кирпичный дом, классика 120 м²
    Стоимость от:
    8 751 600
    Проект от: 54 000
    Этажей 1
    Санузлы 2
    Спальни 4
    Смотреть
    Ипотека и
    рассрочка
    Загородный дом СД-114
    Стоимость от:
    6 188 270
    Проект от: 45 450
    Этажей 1
    Санузлы 1
    Спальни 2
    Смотреть
    Ипотека и
    рассрочка
    Двухэтажный барнхаус Лаг-ОМ — 180
    Стоимость от:
    8 754 360
    Проект от: 67 050
    Этажей 2
    Санузлы 4
    Спальни 4
    Смотреть
    Ипотека и
    рассрочка
    Эркер-1
    Стоимость от:
    9 240 660
    Проект от: 55 350
    Этажей 1
    Санузлы 1
    Спальни 3
    Смотреть

    Как узнать стоимость дома

    back
    Оставляете заявку
    Вы заполняете форму на сайте или звоните нам. Менеджер Лайвкрафт связывается с вами для уточнения деталей: тип дома, площадь, материалы, участок строительства.
    back
    Консультация и подбор решения
    Наш специалист помогает выбрать оптимальный тип дома и конструкцию с учётом бюджета, сроков и целей — будь то дом для постоянного проживания или дача.
    back
    Расчёт предварительной стоимости
    Инженер делает первичный расчёт стоимости строительства по вашим параметрам: фундамент, коробка, кровля, отделка. Вы получаете смету с разбивкой по этапам.
    back
    Корректировка и утверждение сметы
    При необходимости вносим изменения — например, замену материалов или сокращение этапов. После согласования формируется окончательная фиксированная смета.
    back
    Заключение договора и старт работ
    После утверждения сметы заключаем официальный договор с гарантией. Вы получаете прозрачный график и точную стоимость — без скрытых расходов.

    Заказать конусльтацию по:Сканди Валдай 130 2122Д

    Фото 1 Сканди Валдай 130 2122Д


      Наши
      контакты

      Дмитров
      Опорный проезд 28Б
      (индустриальный парк Ниагара)
      9:00 до 18:00

      Корзина