4.9
Рейтинг на основании 120 отзывов
Дмитров
Опорный проезд 28Б
(индустриальный парк Ниагара)
Бренд "Дмитров-Дело" c 2008 года на рынке строительства в Дмитрове
Звоните 9:00 до 18:00 8 (915) 055-33-61
Бренд "Дмитров-Дело" c 2008 года на рынке строительства в Дмитрове

Скандинавский дом

Стоимость проекта от:
24 750 ₽
БЕСПЛАТНО! ПРИ ЗАКАЗЕ СТРОИТЕЛЬСТВА
Стоимость строительства от:
3 067 350 ₽
Артикул ART-6116
Дата 26.12.2025
Архитектурный стиль Скандинавский
Количество надземных этажей 1
Круглогодичное проживание Да
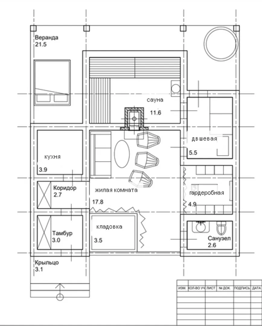
Площадь дома 55 м2
Санузлы 2
Спальни 1

Описание

Погрузитесь в атмосферу скандинавского спокойствия, где каждый уголок пропитан простотой и гармонией природы. Этот одноэтажный дом, построенный на прочном деревянном каркасе, предлагает идеальное сочетание тепла и света, благодаря открытым пространствам и плоской крыше, которая позволяет свету проникать внутрь с легкостью. Его архитектура, выполненная в скандинавском стиле, подчёркивает лаконичные линии и высокую степень функциональности, создавая ощущение пространства даже в небольших помещениях. Без лишних балконов и веранд, а также отсутствием прицепных гаражей, внимание сосредоточено на гармоничном дизайне и удобстве пользования. Удобная терраса, обрамленная живыми растениями, становится естественным продолжением внутреннего пространства, где можно наслаждаться тихими рассветами или уединёнными вечерами. Дом рассчитан на круглогодичное проживание, поэтому его планировка сочетает в себе энергоэффективность и простоту обслуживания, что делает его идеальным выбором для тех, кто ценит экологичность и комфорт без излишеств. Выбирая этот дом, вы открываете дверь в жизнь, где каждая деталь – от натуральных материалов до тщательно продуманного освещения – служит вашему благополучию. Здесь вас ждёт уютный уголок, где можно расслабиться после насыщенного дня, и простое, но элегантное пространство, идеально подходящее для создания семейных воспоминаний. Это не просто жильё – это стиль жизни, вдохновлённый природой и скандинавской философией простоты.

Характеристики дома

Архитектурный стиль
Автоматизированное регулирование параметров теплоносителя
-
Балконы/лоджии
Отсутствуют
Чердачное помещение
Нет
Датчики протечки воды
-
Эксплуатируемая или зеленая кровля
-
Электроснабжение
Центральное
Газоснабжение
Не предусмотрено
Изоляция воздушного шума
-
Камин
Да
Класс энергоэффективности
-
Класс энергосбережения
-
Количество надземных этажей
1
Круглогодичное проживание
Да
Материал кровли
Металлические листовые гофрированные профили
Материал перекрытий
Деревянные
Материал внешних стен
Материал внутренних перегородок
Деревянные
Модульное строительство с конструкциями заводского изготовления
Нет
Объем надземной части
-
Основной материал фасадов
Дерево
Отопление
Индивидуальное
Площадь дома
55 м2
Площадь застройки
100 м2
Подвальное помещение
Нет
Показатель компактности здания
-
Приборы учета тепловой энергии
-
Пристроенный гараж/крытая автостоянка
Нет
Противопожарная система
Да
Санузлы
2
Совмещенная кухня-гостиная
Нет
Спальни
1
Терраса
Да
Тип фундамента
Свайный
Тип кровли
Толщина внешних стен
250 мм
Толщина внутренних перегородок
150 мм
Улучшенные шумовые характеристики
-
Вентиляция
Принудительная
Веранда
Нет
Водоотведение
Локальные очистные сооружения
Водоснабжение
Индивидуальное
Высота дома
4 м
Высота потолков
2.7 м

Планировка

Фасад дома

Александр

Закажите выезд инженера

Александр

Выездной инженер
Закажите выезд инженера для точной диагностики и профессиональной консультации по инженерным системам. Специалист приедет в удобное время, проведёт осмотр, рассчитает стоимость работ и подберёт оптимальные решения для вашего дома.


    Похожие проекты

    Ипотека и
    рассрочка
    Одноэтажный дом Перспектива- 76
    Стоимость от:
    4 306 280
    Проект от: 24 300
    Этажей 1
    Санузлы 1
    Спальни 2
    Смотреть
    Ипотека и
    рассрочка
    24ПФ06.00 Дом от Строй и Живи
    Стоимость от:
    6 782 490
    Проект от: 52 650
    Этажей 1
    Санузлы 2
    Спальни 3
    Смотреть
    Ипотека и
    рассрочка
    Одноэтажный дом Сканди Сестрорецк ВМ
    Стоимость от:
    5 449 180
    Проект от: 42 300
    Этажей 1
    Санузлы 1
    Спальни 3
    Смотреть
    Ипотека и
    рассрочка
    Семейный 4
    Стоимость от:
    9 423 840
    Проект от: 56 700
    Этажей 2
    Санузлы 2
    Спальни 3
    Смотреть
    Ипотека и
    рассрочка
    Загородный дом — 115.1
    Стоимость от:
    7 980 060
    Проект от: 50 850
    Этажей 1
    Санузлы 2
    Спальни 3
    Смотреть
    Ипотека и
    рассрочка
    Проект A023
    Стоимость от:
    4 064 280
    Проект от: 24 300
    Этажей 1
    Санузлы 1
    Спальни 2
    Смотреть

    Как узнать стоимость дома

    back
    Оставляете заявку
    Вы заполняете форму на сайте или звоните нам. Менеджер Лайвкрафт связывается с вами для уточнения деталей: тип дома, площадь, материалы, участок строительства.
    back
    Консультация и подбор решения
    Наш специалист помогает выбрать оптимальный тип дома и конструкцию с учётом бюджета, сроков и целей — будь то дом для постоянного проживания или дача.
    back
    Расчёт предварительной стоимости
    Инженер делает первичный расчёт стоимости строительства по вашим параметрам: фундамент, коробка, кровля, отделка. Вы получаете смету с разбивкой по этапам.
    back
    Корректировка и утверждение сметы
    При необходимости вносим изменения — например, замену материалов или сокращение этапов. После согласования формируется окончательная фиксированная смета.
    back
    Заключение договора и старт работ
    После утверждения сметы заключаем официальный договор с гарантией. Вы получаете прозрачный график и точную стоимость — без скрытых расходов.

    Заказать конусльтацию по:Скандинавский дом

    Фото 1 Скандинавский дом


      Наши
      контакты

      Дмитров
      Опорный проезд 28Б
      (индустриальный парк Ниагара)
      9:00 до 18:00

      Корзина