4.9
Рейтинг на основании 120 отзывов
Дмитров
Опорный проезд 28Б
(индустриальный парк Ниагара)
Бренд "Дмитров-Дело" c 2008 года на рынке строительства в Дмитрове
Звоните 9:00 до 18:00 8 (915) 055-33-61
Бренд "Дмитров-Дело" c 2008 года на рынке строительства в Дмитрове

Скандия 126 м2

Стоимость проекта от:
56 700 ₽
БЕСПЛАТНО! ПРИ ЗАКАЗЕ СТРОИТЕЛЬСТВА
Стоимость строительства от:
8 620 920 ₽
Артикул ART-14163
Дата 25.12.2025
Архитектурный стиль Скандинавский
Количество надземных этажей 1
Круглогодичное проживание Да
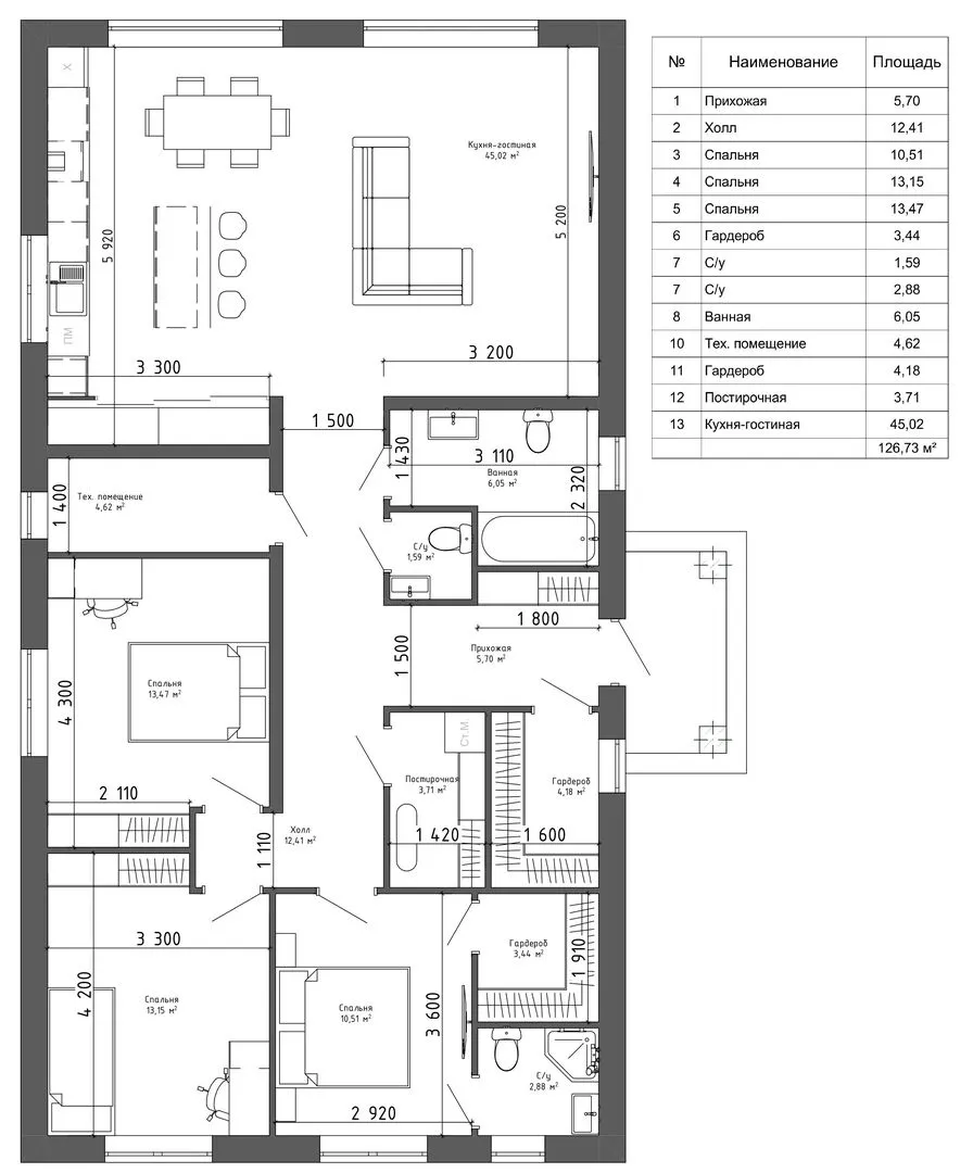
Площадь дома 126 м2
Санузлы 3
Спальни 3

Описание

Наслаждайтесь простотой и уютом в сердце современной северной архитектуры. Дом площадью 126 м² выполнен в скандинавском стиле, где чистые линии и светлые тона создают простор и ощущение свежести. Одна надземная палата, открытая, позволяет легко планировать интерьеры: свет проникает через большие окна, а открытая планировка дарит естественное тепло даже в самые холодные дни зимы. Внутри каждый уголок продуман до мелочей – от практичных шкафов до аккуратных деталей, которые придают дому характер и индивидуальность. Керамзитобетонные блоки, использованные для внешних стен, не только обеспечивают тепло-изоляцию и долгий срок службы, но и придают фасаду современный, но в то же время естественный вид. Двускатная крыша, покрытая качественным материалом, гармонично сочетается с простотой интерьера и подчеркивает скандинавский стиль. Левый верхний уровень, обладающий чердачным помещением, открывает дополнительные возможности для творчества: можно создать уютную полку с книгами, домашний кинотеатр или небольшую мастерскую. Хотя в доме нет встроенной автостоянки, вы можете наслаждаться открытыми улицами города и парковками рядом. Веранда и балконы отсутствуют, но это не мешает вам наслаждаться чистым воздухом и красотой окружающей природы. Это идеальное сочетание современного дизайна, функциональности и тепла, которое превратит каждый день в приятное ощущение уюта и гармонии.

Характеристики дома

Архитектурный стиль
Автоматизированное регулирование параметров теплоносителя
Да
Балконы/лоджии
Отсутствуют
Чердачное помещение
Да
Датчики протечки воды
Нет
Эксплуатируемая или зеленая кровля
Нет
Электроснабжение
Центральное
Газоснабжение
Центральное
Изоляция воздушного шума
Да
Камин
Нет
Класс энергоэффективности
-
Класс энергосбережения
-
Количество надземных этажей
1
Круглогодичное проживание
Да
Материал кровли
Битумная черепица
Материал перекрытий
Сборные железобетонные многопустотные плиты
Материал внешних стен
Материал внутренних перегородок
Блочные
Модульное строительство с конструкциями заводского изготовления
Нет
Объем надземной части
750 м3
Основной материал фасадов
Штукатурка
Отопление
Индивидуальное
Площадь дома
126 м2
Площадь застройки
153 м2
Подвальное помещение
Нет
Показатель компактности здания
-
Приборы учета тепловой энергии
Нет
Пристроенный гараж/крытая автостоянка
Нет
Противопожарная система
Нет
Санузлы
3
Совмещенная кухня-гостиная
Да
Спальни
3
Терраса
Нет
Тип фундамента
Плитный
Тип кровли
Толщина внешних стен
400 мм
Толщина внутренних перегородок
100 мм
Улучшенные шумовые характеристики
Да
Вентиляция
2 варианта
Веранда
Нет
Водоотведение
Локальные очистные сооружения
Водоснабжение
2 варианта
Высота дома
6.4 м
Высота потолков
3.2 м

Планировка

Фасад дома

Александр

Закажите выезд инженера

Александр

Выездной инженер
Закажите выезд инженера для точной диагностики и профессиональной консультации по инженерным системам. Специалист приедет в удобное время, проведёт осмотр, рассчитает стоимость работ и подберёт оптимальные решения для вашего дома.


    Похожие проекты

    Ипотека и
    рассрочка
    Загородный дом №228
    Стоимость от:
    11 003 280
    Проект от: 66 150
    Этажей 2
    Санузлы 2
    Спальни 4
    Смотреть
    Ипотека и
    рассрочка
    Двухэтажный дом КОМФОРТ 150-1
    Стоимость от:
    9 893 760
    Проект от: 67 050
    Этажей 2
    Санузлы 2
    Спальни 4
    Смотреть
    Ипотека и
    рассрочка
    Барн
    Стоимость от:
    4 392 795
    Проект от: 35 550
    Этажей 1
    Санузлы 2
    Спальни 2
    Смотреть
    Ипотека и
    рассрочка
    Иртыш
    Стоимость от:
    6 222 960
    Проект от: 40 050
    Этажей 2
    Санузлы 2
    Спальни 2
    Смотреть
    Ипотека и
    рассрочка
    СЕРИЯ «БАРНХАУС» ПРОЕКТ КД-19
    Стоимость от:
    7 334 880
    Проект от: 52 650
    Этажей 2
    Санузлы 2
    Спальни 4
    Смотреть
    Ипотека и
    рассрочка
    Чадобец
    Стоимость от:
    9 495 360
    Проект от: 64 800
    Этажей 2
    Санузлы 1
    Спальни 3
    Смотреть

    Как узнать стоимость дома

    back
    Оставляете заявку
    Вы заполняете форму на сайте или звоните нам. Менеджер Лайвкрафт связывается с вами для уточнения деталей: тип дома, площадь, материалы, участок строительства.
    back
    Консультация и подбор решения
    Наш специалист помогает выбрать оптимальный тип дома и конструкцию с учётом бюджета, сроков и целей — будь то дом для постоянного проживания или дача.
    back
    Расчёт предварительной стоимости
    Инженер делает первичный расчёт стоимости строительства по вашим параметрам: фундамент, коробка, кровля, отделка. Вы получаете смету с разбивкой по этапам.
    back
    Корректировка и утверждение сметы
    При необходимости вносим изменения — например, замену материалов или сокращение этапов. После согласования формируется окончательная фиксированная смета.
    back
    Заключение договора и старт работ
    После утверждения сметы заключаем официальный договор с гарантией. Вы получаете прозрачный график и точную стоимость — без скрытых расходов.

    Заказать конусльтацию по:Скандия 126 м2

    Фото 1 Скандия 126 м2


      Наши
      контакты

      Дмитров
      Опорный проезд 28Б
      (индустриальный парк Ниагара)
      9:00 до 18:00

      Корзина