4.9
Рейтинг на основании 120 отзывов
Дмитров
Опорный проезд 28Б
(индустриальный парк Ниагара)
Бренд "Дмитров-Дело" c 2008 года на рынке строительства в Дмитрове
Звоните 9:00 до 18:00 8 (915) 055-33-61
Бренд "Дмитров-Дело" c 2008 года на рынке строительства в Дмитрове

СМС-54-24

Стоимость проекта от:
65 700 ₽
БЕСПЛАТНО! ПРИ ЗАКАЗЕ СТРОИТЕЛЬСТВА
Стоимость строительства от:
10 021 440 ₽
Артикул ART-13206
Дата 25.12.2025
Архитектурный стиль Классический
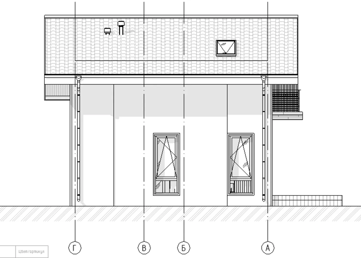
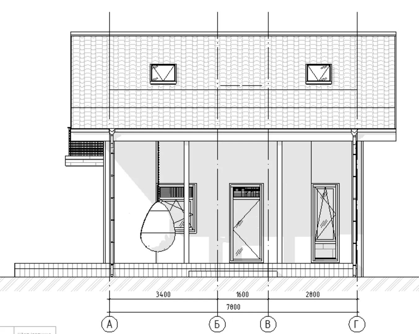
Количество надземных этажей 2
Круглогодичное проживание Да
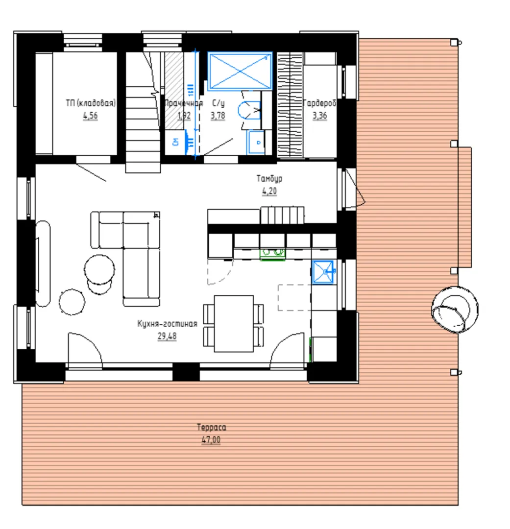
Площадь дома 146 м2
Санузлы 2
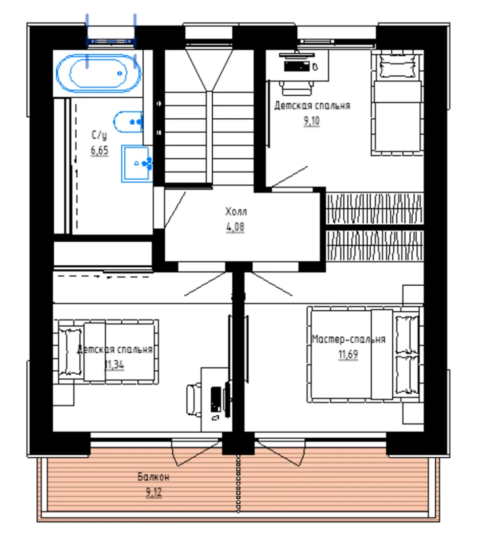
Спальни 3

Описание

Приветствую вас, искатели уюта и гармонии! Хорошо, что вы заглянули к нам – именно на этом уютном участке, расположенном в живописном уголке, мы смогли создать дом под номером SМС‑54‑24, который станет гармоничным продолжением вашего образа жизни. Его классический архитектурный облик сочетает в себе строгую элегантность с теплой человечностью. Вы увидите, как простые линии и продуманные детали создают уютный уголок, где каждый день начинается и заканчивается радостно. На высоте два надземных этажа, с балконом-лоджи, где можно насладиться свежим воздухом и рассветными лучами солнца, а также просторной террасой – идеальным местом для отдыха и гостеприимства. Внутреннее пространство обрабатывается с учётом круглогодичного проживания: тёплые, воздушные стены из газобетонных блоков обеспечивают отличную теплоизоляцию и звукоизоляцию, а двускатная крыша, выполненная по традиционному канону, подчеркивает статус и прочность конструкции. Пристроенный гараж и открытая автостоянка отсутствуют, но в этом доме каждый элемент продуман так, чтобы оставлять простор для ваших идей: вы можете с легкостью превратить свободное пространство за пределами дома в небольшую мастерскую, сад или же просто использовать его для хранения вашего личного пространства. Всё, что важно, уже учтено: отсутствие летнего перегрева, защита от ветра и дождя, а также простота ухода за внешним покрытием делают этот дом идеальным выбором для тех, кто ценит спокойствие и качество. Здесь, в SМС‑54‑24, вы найдёте не просто дом, а настоящий уголок «своего мира», где каждый элемент продуман так, чтобы делать вашу повседневность ярче и приятнее. Нажмите «Связаться» и давайте сделаем ваш новый дом реальностью!

Характеристики дома

Архитектурный стиль
Автоматизированное регулирование параметров теплоносителя
Нет
Балконы/лоджии
1
Чердачное помещение
Нет
Датчики протечки воды
Нет
Эксплуатируемая или зеленая кровля
Нет
Электроснабжение
Индивидуальное
Газоснабжение
Не предусмотрено
Изоляция воздушного шума
Нет
Камин
Нет
Класс энергоэффективности
-
Класс энергосбережения
-
Количество надземных этажей
2
Круглогодичное проживание
Да
Материал кровли
Битумная черепица
Материал перекрытий
Деревянные
Материал внешних стен
Материал внутренних перегородок
Блочные
Модульное строительство с конструкциями заводского изготовления
Нет
Объем надземной части
346 м3
Основной материал фасадов
Сайдинг
Отопление
Индивидуальное
Площадь дома
146 м2
Площадь застройки
111 м2
Подвальное помещение
Нет
Показатель компактности здания
-
Приборы учета тепловой энергии
Нет
Пристроенный гараж/крытая автостоянка
Нет
Противопожарная система
Нет
Санузлы
2
Совмещенная кухня-гостиная
Да
Спальни
3
Терраса
Да
Тип фундамента
Плитный
Тип кровли
Толщина внешних стен
300 мм
Толщина внутренних перегородок
100 мм
Улучшенные шумовые характеристики
Нет
Вентиляция
Естественная
Веранда
Нет
Водоотведение
Локальные очистные сооружения
Водоснабжение
Индивидуальное
Высота дома
7.4 м
Высота потолков
3 м

Планировка

Фасад дома

Александр

Закажите выезд инженера

Александр

Выездной инженер
Закажите выезд инженера для точной диагностики и профессиональной консультации по инженерным системам. Специалист приедет в удобное время, проведёт осмотр, рассчитает стоимость работ и подберёт оптимальные решения для вашего дома.


    Похожие проекты

    Ипотека и
    рассрочка
    Евпатория
    Стоимость от:
    8 101 440
    Проект от: 52 200
    Этажей 2
    Санузлы 1
    Спальни 2
    Смотреть
    Ипотека и
    рассрочка
    Деревянный дом Катен
    Стоимость от:
    6 826 160
    Проект от: 44 100
    Этажей 1
    Санузлы 2
    Спальни 3
    Смотреть
    Ипотека и
    рассрочка
    Проект одноэтажного дома «Стамбул»
    Стоимость от:
    8 484 080
    Проект от: 55 800
    Этажей 1
    Санузлы 2
    Спальни 3
    Смотреть
    Ипотека и
    рассрочка
    Индивидуальный жилой дом проект 100К
    Стоимость от:
    9 765 800
    Проект от: 58 500
    Этажей 1
    Санузлы 1
    Спальни 3
    Смотреть
    Ипотека и
    рассрочка
    Одноэтажный дом-дача КОМФОРТ+ 140-2
    Стоимость от:
    9 259 360
    Проект от: 59 850
    Этажей 1
    Санузлы 3
    Спальни 3
    Смотреть
    Ипотека и
    рассрочка
    Проект Толстого
    Стоимость от:
    8 265 400
    Проект от: 49 500
    Этажей 1
    Санузлы 2
    Спальни 3
    Смотреть

    Как узнать стоимость дома

    back
    Оставляете заявку
    Вы заполняете форму на сайте или звоните нам. Менеджер Лайвкрафт связывается с вами для уточнения деталей: тип дома, площадь, материалы, участок строительства.
    back
    Консультация и подбор решения
    Наш специалист помогает выбрать оптимальный тип дома и конструкцию с учётом бюджета, сроков и целей — будь то дом для постоянного проживания или дача.
    back
    Расчёт предварительной стоимости
    Инженер делает первичный расчёт стоимости строительства по вашим параметрам: фундамент, коробка, кровля, отделка. Вы получаете смету с разбивкой по этапам.
    back
    Корректировка и утверждение сметы
    При необходимости вносим изменения — например, замену материалов или сокращение этапов. После согласования формируется окончательная фиксированная смета.
    back
    Заключение договора и старт работ
    После утверждения сметы заключаем официальный договор с гарантией. Вы получаете прозрачный график и точную стоимость — без скрытых расходов.

    Заказать конусльтацию по:СМС-54-24

    Фото 1 СМС-54-24


      Наши
      контакты

      Дмитров
      Опорный проезд 28Б
      (индустриальный парк Ниагара)
      9:00 до 18:00

      Корзина