4.9
Рейтинг на основании 120 отзывов
Дмитров
Опорный проезд 28Б
(индустриальный парк Ниагара)
Бренд "Дмитров-Дело" c 2008 года на рынке строительства в Дмитрове
Звоните 9:00 до 18:00 8 (915) 055-33-61
Бренд "Дмитров-Дело" c 2008 года на рынке строительства в Дмитрове

«Сочи»

Стоимость проекта от:
50 850 ₽
БЕСПЛАТНО! ПРИ ЗАКАЗЕ СТРОИТЕЛЬСТВА
Стоимость строительства от:
7 980 060 ₽
Артикул ART-12113
Дата 25.12.2025
Архитектурный стиль Европейский
Количество надземных этажей 1
Круглогодичное проживание Да
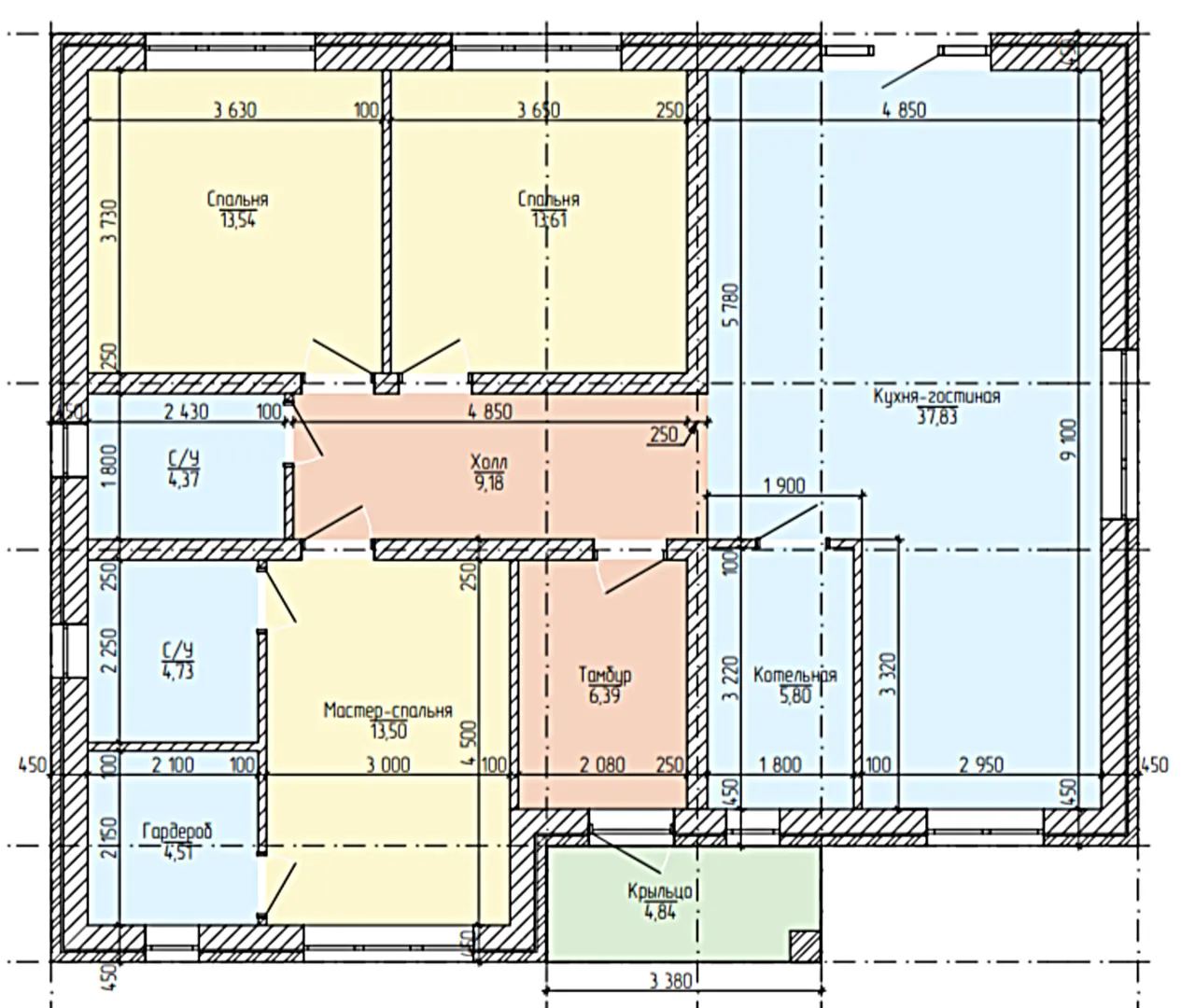
Площадь дома 113 м2
Санузлы 2
Спальни 3

Описание

Сочинская сказка в квадратных сантиметрах – это уютное семейное гнёздное, где каждое утро начинается со звона надёжного европейского стиля. Дом, выполненный в лаконичной и элегантной архитектуре, сочетает в себе простоту линий и продуманное решение: ровный квадрат надземный этаж, идеально подходит ведь здесь можно жить круглый год. Вырезанные из газобетонных блоков стены придают тепло и шумоизоляцию, а вальмовая крыша надёжно защёлкивает от дождя и снегов, создавая ощущение спокойствия и защищённости. Внутреннее пространство – это сочетание гармонии и функциональности. Просторные комнаты открывают вид на живописный городской пейзаж, а большие окна пропускают естественный свет, создавая яркую и воздушную атмосферу. Современные материалы и инженерные решения дарят вам комфорт и экономичность: от эффективного утепления до удобной системы вентиляции. Внутри вы найдёте тщательно продуманные зоны для отдыха, работы и творчества, где каждый сантиметр отвечает высшим требованиям качества. Никакой суеты – здесь вас ожидает душевный покой и доступ к лучшим удобствам Сочи. Дом расположен в живописном районе, где рядом с собой находятся школы, магазины, парки и зелёные аллеи. Однажды вы поймёте, как важно иметь место, где можно «где бы вы ни были» – здесь, в Сочи, ваш уют будет рядом, и вы почувствуете себя дома уже с первых минут.

Характеристики дома

Архитектурный стиль
Автоматизированное регулирование параметров теплоносителя
Нет
Балконы/лоджии
Отсутствуют
Чердачное помещение
Нет
Датчики протечки воды
Нет
Эксплуатируемая или зеленая кровля
Нет
Электроснабжение
2 варианта
Газоснабжение
2 варианта
Изоляция воздушного шума
Нет
Камин
Нет
Класс энергоэффективности
-
Класс энергосбережения
-
Количество надземных этажей
1
Круглогодичное проживание
Да
Материал кровли
Металлочерепица
Материал перекрытий
Деревянные
Материал внешних стен
Материал внутренних перегородок
Блочные
Модульное строительство с конструкциями заводского изготовления
Нет
Объем надземной части
577 м3
Основной материал фасадов
Облицовочный кирпич
Отопление
2 варианта
Площадь дома
113 м2
Площадь застройки
147 м2
Подвальное помещение
Нет
Показатель компактности здания
-
Приборы учета тепловой энергии
Нет
Пристроенный гараж/крытая автостоянка
Нет
Противопожарная система
Нет
Санузлы
2
Совмещенная кухня-гостиная
Да
Спальни
3
Терраса
Нет
Тип фундамента
Плитный
Толщина внешних стен
450 мм
Толщина внутренних перегородок
100 мм
Улучшенные шумовые характеристики
Нет
Вентиляция
Естественная
Веранда
Нет
Водоотведение
2 варианта
Водоснабжение
2 варианта
Высота дома
5.32 м
Высота потолков
3.1 м

Планировка

Фасад дома

Александр

Закажите выезд инженера

Александр

Выездной инженер
Закажите выезд инженера для точной диагностики и профессиональной консультации по инженерным системам. Специалист приедет в удобное время, проведёт осмотр, рассчитает стоимость работ и подберёт оптимальные решения для вашего дома.


    Похожие проекты

    Ипотека и
    рассрочка
    Дом-баня с тамбуром и мансардным этажом
    Стоимость от:
    5 393 280
    Проект от: 32 400
    Этажей 2
    Санузлы 1
    Спальни 2
    Смотреть
    Ипотека и
    рассрочка
    Каркасный дом МГА К-01
    Стоимость от:
    4 104 155
    Проект от: 31 950
    Этажей 1
    Санузлы 1
    Спальни 2
    Смотреть
    Ипотека и
    рассрочка
    Владимир 2
    Стоимость от:
    8 457 840
    Проект от: 54 450
    Этажей 2
    Санузлы 2
    Спальни 4
    Смотреть
    Ипотека и
    рассрочка
    ЛЕГЕНДА
    Стоимость от:
    8 245 800
    Проект от: 56 250
    Этажей 2
    Санузлы 2
    Спальни 3
    Смотреть
    Ипотека и
    рассрочка
    «Карпетин»
    Стоимость от:
    8 801 160
    Проект от: 66 150
    Этажей 2
    Санузлы 2
    Спальни 4
    Смотреть
    Ипотека и
    рассрочка
    Загородный дом АС-254
    Стоимость от:
    31 986 720
    Проект от: 206 100
    Этажей 2
    Санузлы 4
    Спальни 5
    Смотреть

    Как узнать стоимость дома

    back
    Оставляете заявку
    Вы заполняете форму на сайте или звоните нам. Менеджер Лайвкрафт связывается с вами для уточнения деталей: тип дома, площадь, материалы, участок строительства.
    back
    Консультация и подбор решения
    Наш специалист помогает выбрать оптимальный тип дома и конструкцию с учётом бюджета, сроков и целей — будь то дом для постоянного проживания или дача.
    back
    Расчёт предварительной стоимости
    Инженер делает первичный расчёт стоимости строительства по вашим параметрам: фундамент, коробка, кровля, отделка. Вы получаете смету с разбивкой по этапам.
    back
    Корректировка и утверждение сметы
    При необходимости вносим изменения — например, замену материалов или сокращение этапов. После согласования формируется окончательная фиксированная смета.
    back
    Заключение договора и старт работ
    После утверждения сметы заключаем официальный договор с гарантией. Вы получаете прозрачный график и точную стоимость — без скрытых расходов.

    Заказать конусльтацию по:«Сочи»

    Фото 1 «Сочи»


      Наши
      контакты

      Дмитров
      Опорный проезд 28Б
      (индустриальный парк Ниагара)
      9:00 до 18:00

      Корзина