4.9
Рейтинг на основании 120 отзывов
Дмитров
Опорный проезд 28Б
(индустриальный парк Ниагара)
Бренд "Дмитров-Дело" c 2008 года на рынке строительства в Дмитрове
Звоните 9:00 до 18:00 8 (915) 055-33-61
Бренд "Дмитров-Дело" c 2008 года на рынке строительства в Дмитрове

Сокол 154

Стоимость проекта от:
66 600 ₽
БЕСПЛАТНО! ПРИ ЗАКАЗЕ СТРОИТЕЛЬСТВА
Стоимость строительства от:
10 790 560 ₽
Артикул ART-15263
Дата 25.12.2025
Архитектурный стиль Европейский
Количество надземных этажей 1
Круглогодичное проживание Да
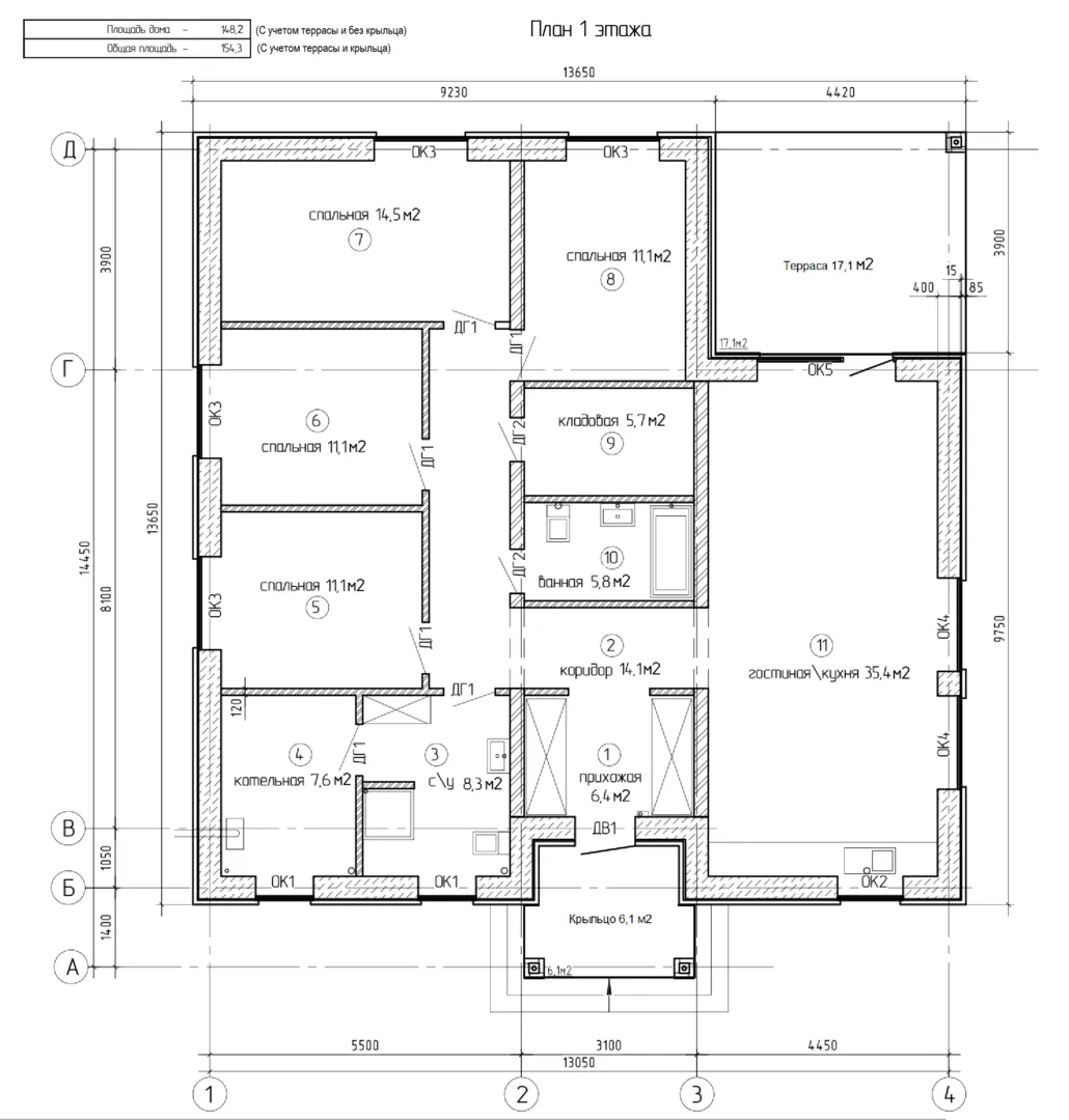
Площадь дома 148 м2
Санузлы 2
Спальни 4

Описание

**Сокол 154 – дом мечты для тех, кто ценит комфорт и эстетику в каждой детали.** Его архитектура в европейском стиле сочетает в себе современную чистоту линий с теплом классической простоты, создавая ощущение уюта и элегантности. Этот одноквартирный дом предназначен для круглогодичного проживания: он аккуратно защищён от ветра и дождя, а тепло из газобетонных блоков сохраняет тепло в холодные дни и прохлада летним. Небольшая терраса приглашает проводить вечера на свежем воздухе, наслаждаясь ароматом сада и звуками пройденного дня. Каждый элемент Сокола 154 продуман: вальмовая четырёхскатная крыша не только выглядит роскошно, но и гарантирует устойчивость к суровым погодным условиям. Здания без балконов, лоджий и пристройных гаражей создают ощущение открытого пространства вокруг дома, позволяя вам наслаждаться свободой от привычных шумов. При этом газобетонные стены обеспечивают отличную тепло- и звукоизоляцию, делая жильё комфортным независимо от времени года. Если вы ищете дом, где современность встречается с традиционным уютом, где каждая деталь говорит о внимании к качеству, то Сокол 154 – ваш идеальный выбор. Позвольте себе комфорт, надежность и эстетическое наслаждение – свяжитесь с нами, чтобы узнать больше и погрузиться в атмосферу нового дома уже сегодня.

Характеристики дома

Архитектурный стиль
Автоматизированное регулирование параметров теплоносителя
Да
Балконы/лоджии
Отсутствуют
Чердачное помещение
Нет
Датчики протечки воды
Да
Эксплуатируемая или зеленая кровля
Нет
Электроснабжение
Центральное
Газоснабжение
Центральное
Изоляция воздушного шума
Да
Камин
Нет
Класс энергоэффективности
D
Класс энергосбережения
B+
Количество надземных этажей
1
Круглогодичное проживание
Да
Материал кровли
Битумная черепица
Материал перекрытий
Деревянные
Материал внешних стен
Материал внутренних перегородок
Кирпичные
Модульное строительство с конструкциями заводского изготовления
Нет
Объем надземной части
866 м3
Основной материал фасадов
Облицовочный кирпич
Отопление
Индивидуальное
Площадь дома
148 м2
Площадь застройки
190 м2
Подвальное помещение
Нет
Показатель компактности здания
1.35
Приборы учета тепловой энергии
Да
Пристроенный гараж/крытая автостоянка
Нет
Противопожарная система
Нет
Санузлы
2
Совмещенная кухня-гостиная
Да
Спальни
4
Терраса
Да
Тип фундамента
Свайно-ростверковый
Толщина внешних стен
500 мм
Толщина внутренних перегородок
120 мм
Улучшенные шумовые характеристики
Да
Вентиляция
Естественная
Веранда
Нет
Водоотведение
Локальные очистные сооружения
Водоснабжение
Индивидуальное
Высота дома
6.2 м
Высота потолков
2.88 м

Планировка

Фасад дома

Александр

Закажите выезд инженера

Александр

Выездной инженер
Закажите выезд инженера для точной диагностики и профессиональной консультации по инженерным системам. Специалист приедет в удобное время, проведёт осмотр, рассчитает стоимость работ и подберёт оптимальные решения для вашего дома.


    Похожие проекты

    Ипотека и
    рассрочка
    Загородный дом Шале 98
    Стоимость от:
    5 449 290
    Проект от: 44 100
    Этажей 1
    Санузлы 2
    Спальни 2
    Смотреть
    Ипотека и
    рассрочка
    Бунгало
    Стоимость от:
    4 628 910
    Проект от: 37 350
    Этажей 1
    Санузлы 1
    Спальни 2
    Смотреть
    Ипотека и
    рассрочка
    Просторный загородный дом с террасой
    Стоимость от:
    6 399 480
    Проект от: 43 650
    Этажей 2
    Санузлы 2
    Спальни 3
    Смотреть
    Ипотека и
    рассрочка
    ДОМ №2
    Стоимость от:
    17 186 400
    Проект от: 103 500
    Этажей 2
    Санузлы 1
    Спальни 3
    Смотреть
    Ипотека и
    рассрочка
    Одноэтажный дом «Арлас»
    Стоимость от:
    5 296 500
    Проект от: 33 750
    Этажей 1
    Санузлы 1
    Спальни 2
    Смотреть
    Ипотека и
    рассрочка
    Карат 84
    Стоимость от:
    3 954 720
    Проект от: 25 200
    Этажей 1
    Санузлы 1
    Спальни 2
    Смотреть

    Как узнать стоимость дома

    back
    Оставляете заявку
    Вы заполняете форму на сайте или звоните нам. Менеджер Лайвкрафт связывается с вами для уточнения деталей: тип дома, площадь, материалы, участок строительства.
    back
    Консультация и подбор решения
    Наш специалист помогает выбрать оптимальный тип дома и конструкцию с учётом бюджета, сроков и целей — будь то дом для постоянного проживания или дача.
    back
    Расчёт предварительной стоимости
    Инженер делает первичный расчёт стоимости строительства по вашим параметрам: фундамент, коробка, кровля, отделка. Вы получаете смету с разбивкой по этапам.
    back
    Корректировка и утверждение сметы
    При необходимости вносим изменения — например, замену материалов или сокращение этапов. После согласования формируется окончательная фиксированная смета.
    back
    Заключение договора и старт работ
    После утверждения сметы заключаем официальный договор с гарантией. Вы получаете прозрачный график и точную стоимость — без скрытых расходов.

    Заказать конусльтацию по:Сокол 154

    Фото 1 Сокол 154


      Наши
      контакты

      Дмитров
      Опорный проезд 28Б
      (индустриальный парк Ниагара)
      9:00 до 18:00

      Корзина