4.9
Рейтинг на основании 120 отзывов
Дмитров
Опорный проезд 28Б
(индустриальный парк Ниагара)
Бренд "Дмитров-Дело" c 2008 года на рынке строительства в Дмитрове
Звоните 9:00 до 18:00 8 (915) 055-33-61
Бренд "Дмитров-Дело" c 2008 года на рынке строительства в Дмитрове

Солид

Стоимость проекта от:
14 850 ₽
Стоимость строительства от:
1 923 900 ₽
Артикул ART-10316
Дата 25.12.2025
Архитектурный стиль Американский/Канадский
Количество надземных этажей 1
Круглогодичное проживание Да
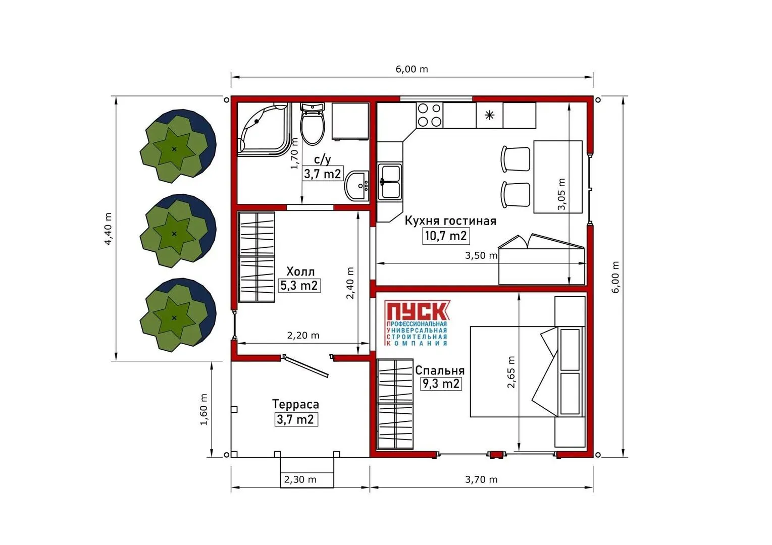
Площадь дома 33 м2
Санузлы 1
Спальни 1

Описание

Добро пожаловать в уютный уголок, который легко назвать своим домом. Это уютное одноэтажное строение в классическом американско‑канадском стиле, где каждая деталь пропитана природной теплотой. Тёплые деревянные каркасные стены создают ощущение естественной гармонии с окружающей средой, а классический двускатный ковер защищает от всех погодных изменений, позволяя свободно наслаждаться всеми четырёх сезонами. Внутреннее пространство открыто и свободно – просторные гостиные, светлячковый свет и высокие потолки делают каждую комнату волшебной. Масштабные окна позволяют наполнять помещение естественным светом, а просторный террасный участок приглашает к приятным прогулкам на свежем воздухе, будь то утренний кофе по рассвету или шажки по закате. Внутренний план продуман до мелочей: открытая кухня, где можно готовить любимые блюда, и уютный зал, где семьи собираются в кругу тепла и уюта. В «Солиде» каждый уголок наполнен теплом: благодаря качественной изоляции вы будете чувствовать себя так же комфортно, как зимний ковер в летнюю ночь. Сочетание простоты, функциональности и эстетики делает этот дом идеальным для тех, кто ищет место, где можно отдохнуть, вдохнуть свободу и создавать собственные воспоминания. Ваш новый дом – это не просто стены и крыша, а пространство, созданное для счастья и гармонии вашего семейного бытия.

Характеристики дома

Архитектурный стиль
Американский/Канадский
Автоматизированное регулирование параметров теплоносителя
Нет
Балконы/лоджии
Отсутствуют
Чердачное помещение
Нет
Датчики протечки воды
Нет
Эксплуатируемая или зеленая кровля
Нет
Электроснабжение
2 варианта
Газоснабжение
2 варианта
Изоляция воздушного шума
Нет
Камин
Нет
Класс энергоэффективности
-
Класс энергосбережения
-
Количество надземных этажей
1
Круглогодичное проживание
Да
Материал кровли
Металлочерепица
Материал перекрытий
Деревянные
Материал внешних стен
Деревянные каркасные
Материал внутренних перегородок
Деревянные
Модульное строительство с конструкциями заводского изготовления
Нет
Объем надземной части
-
Основной материал фасадов
Сайдинг
Отопление
2 варианта
Площадь дома
33 м2
Площадь застройки
36 м2
Подвальное помещение
Нет
Показатель компактности здания
-
Приборы учета тепловой энергии
Нет
Пристроенный гараж/крытая автостоянка
Нет
Противопожарная система
Нет
Санузлы
1
Совмещенная кухня-гостиная
Да
Спальни
1
Терраса
Да
Тип фундамента
Столбчатый
Тип кровли
Двускатная
Толщина внешних стен
150 мм
Толщина внутренних перегородок
120 мм
Улучшенные шумовые характеристики
Нет
Вентиляция
2 варианта
Веранда
Нет
Водоотведение
2 варианта
Водоснабжение
2 варианта
Высота дома
4.1 м
Высота потолков
3.1 м

Планировка

Фасад дома

Александр

Закажите выезд инженера

Александр

Выездной инженер
Закажите выезд инженера для точной диагностики и профессиональной консультации по инженерным системам. Специалист приедет в удобное время, проведёт осмотр, рассчитает стоимость работ и подберёт оптимальные решения для вашего дома.


    Похожие проекты

    Ипотека и
    рассрочка
    Каркасный дом № 23
    Стоимость от:
    4 347 750
    Проект от: 33 750
    Этажей 1
    Санузлы 1
    Спальни 2
    Смотреть
    Ипотека и
    рассрочка
    Сухум
    Стоимость от:
    11 212 080
    Проект от: 84 150
    Этажей 2
    Санузлы 3
    Спальни 5
    Смотреть
    Ипотека и
    рассрочка
    Каркасный дом «ДК-88»
    Стоимость от:
    4 392 795
    Проект от: 35 550
    Этажей 1
    Санузлы 1
    Спальни 2
    Смотреть
    Ипотека и
    рассрочка
    Валенсия
    Стоимость от:
    11 234 190
    Проект от: 79 650
    Этажей 1
    Санузлы 2
    Спальни 3
    Смотреть
    Ипотека и
    рассрочка
    Двухэтажный дом «Бодиам»
    Стоимость от:
    8 378 880
    Проект от: 50 400
    Этажей 2
    Санузлы 2
    Спальни 4
    Смотреть
    Ипотека и
    рассрочка
    QF-127
    Стоимость от:
    7 676 240
    Проект от: 54 900
    Этажей 1
    Санузлы 2
    Спальни 3
    Смотреть

    Как узнать стоимость дома

    back
    Оставляете заявку
    Вы заполняете форму на сайте или звоните нам. Менеджер Лайвкрафт связывается с вами для уточнения деталей: тип дома, площадь, материалы, участок строительства.
    back
    Консультация и подбор решения
    Наш специалист помогает выбрать оптимальный тип дома и конструкцию с учётом бюджета, сроков и целей — будь то дом для постоянного проживания или дача.
    back
    Расчёт предварительной стоимости
    Инженер делает первичный расчёт стоимости строительства по вашим параметрам: фундамент, коробка, кровля, отделка. Вы получаете смету с разбивкой по этапам.
    back
    Корректировка и утверждение сметы
    При необходимости вносим изменения — например, замену материалов или сокращение этапов. После согласования формируется окончательная фиксированная смета.
    back
    Заключение договора и старт работ
    После утверждения сметы заключаем официальный договор с гарантией. Вы получаете прозрачный график и точную стоимость — без скрытых расходов.

    Заказать конусльтацию по:Солид

    Фото 1 Солид


      Наши
      контакты

      Дмитров
      Опорный проезд 28Б
      (индустриальный парк Ниагара)
      9:00 до 18:00

      Корзина