4.9
Рейтинг на основании 120 отзывов
Дмитров
Опорный проезд 28Б
(индустриальный парк Ниагара)
Бренд "Дмитров-Дело" c 2008 года на рынке строительства в Дмитрове
Звоните 9:00 до 18:00 8 (915) 055-33-61
Бренд "Дмитров-Дело" c 2008 года на рынке строительства в Дмитрове

Солнечный КС-1

Стоимость проекта от:
31 050 ₽
БЕСПЛАТНО! ПРИ ЗАКАЗЕ СТРОИТЕЛЬСТВА
Стоимость строительства от:
4 055 160 ₽
Артикул ART-11580
Дата 25.12.2025
Архитектурный стиль Классический
Количество надземных этажей 2
Круглогодичное проживание Да
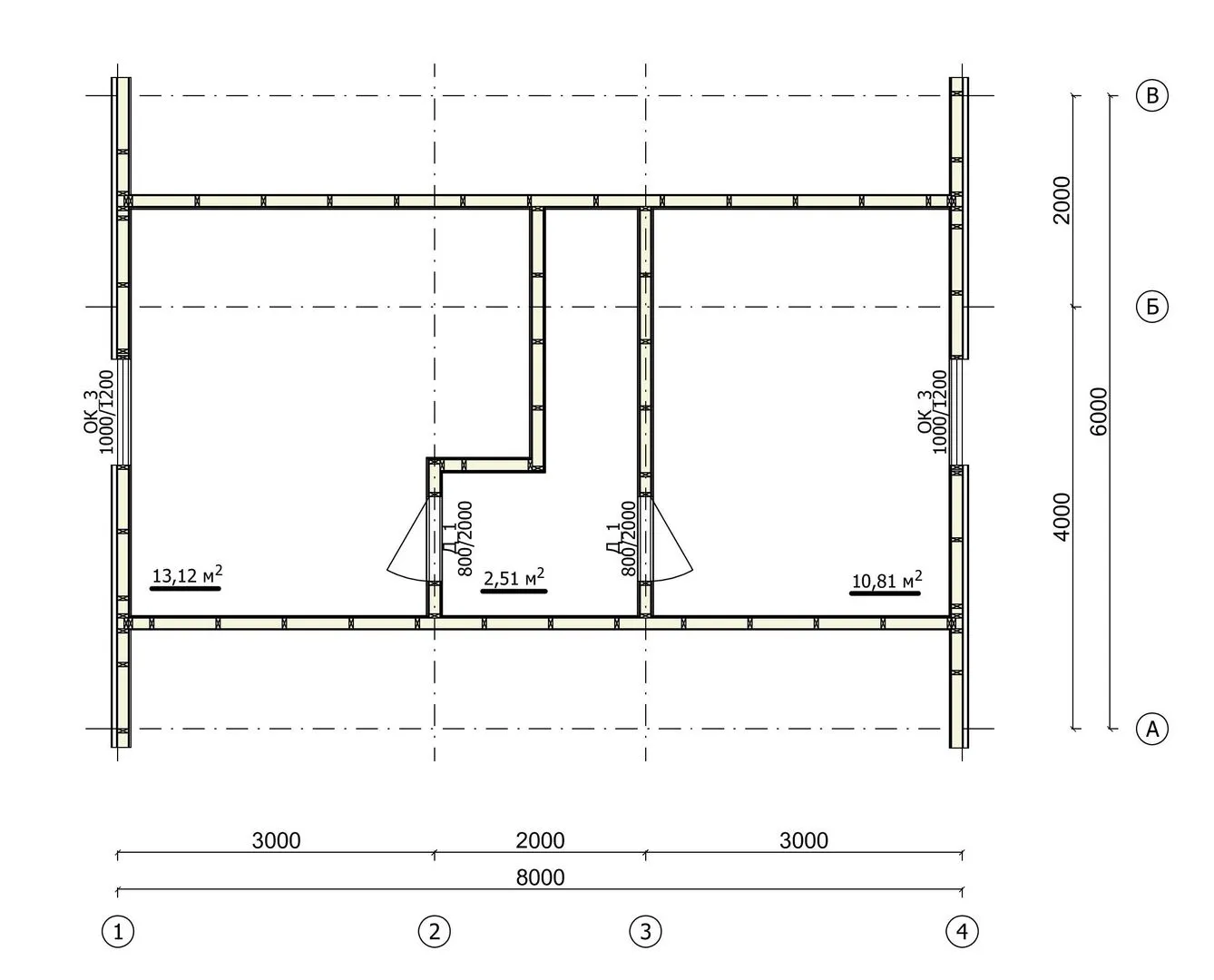
Площадь дома 69 м2
Санузлы 1
Спальни 3

Описание

**Солнечный КС‑1** – это уголок уюта, где каждый день начинается с лучей закатного солнца, а завершает тепло, создающее ощущение домашнего очага. В классическом стиле, выполненном из светлого деревянного каркаса, фасад гармонично вписывается в любой городский или сельский ландшафт, даря ощущение спокойствия и надежности. Открывающиеся из жилых помещений большие окна пропускают свет, наполняя комнатами яркое, приятное сияние. Двухэтажный дом предназначен для круглогодичного проживания, поэтому каждая деталь продумана с учетом современных потребностей. Просторные коридоры, просторные гостиные и уютные спальные зоны создают идеальные условия для жизни семьи любого возраста. Отсутствие версин и балконов лишь подчёркивает чистоту линий и акцент на внутреннем пространстве, где царит комфорт и тишина. Крыша «комбинированная» обеспечивает надёжную защиту от атмосферных влияний, а материал внешних стен – дерево – придаёт им естественность и легкость. Подумайте об уютном семейном обеде, о приятном разговоре за чашкой кофе в тёплой обстановке, о спокойных прогулках по небольшому двору – это всё ждет вас в Солнечном КС‑1. Приходите и убедитесь сами, как простые детали могут превратить обычный дом в настоящий домашний оазис.

Характеристики дома

Архитектурный стиль
Автоматизированное регулирование параметров теплоносителя
-
Балконы/лоджии
Отсутствуют
Чердачное помещение
Нет
Датчики протечки воды
-
Эксплуатируемая или зеленая кровля
-
Электроснабжение
Не предусмотрено
Газоснабжение
Не предусмотрено
Изоляция воздушного шума
-
Камин
Нет
Класс энергоэффективности
-
Класс энергосбережения
-
Количество надземных этажей
2
Круглогодичное проживание
Да
Материал кровли
Битумные листы
Материал перекрытий
Деревянные
Материал внешних стен
Материал внутренних перегородок
Деревянные
Модульное строительство с конструкциями заводского изготовления
Нет
Объем надземной части
187 м3
Основной материал фасадов
Фасадная плитка
Отопление
Индивидуальное
Площадь дома
69 м2
Площадь застройки
48 м2
Подвальное помещение
Нет
Показатель компактности здания
-
Приборы учета тепловой энергии
-
Пристроенный гараж/крытая автостоянка
Нет
Противопожарная система
Нет
Санузлы
1
Совмещенная кухня-гостиная
Да
Спальни
3
Терраса
Нет
Тип фундамента
Свайный
Тип кровли
Толщина внешних стен
180 мм
Толщина внутренних перегородок
130 мм
Улучшенные шумовые характеристики
-
Вентиляция
Естественная
Веранда
Нет
Водоотведение
Не предусмотрено
Водоснабжение
Не предусмотрено
Высота дома
6.37 м
Высота потолков
2.7 м

Планировка

Фасад дома

Александр

Закажите выезд инженера

Александр

Выездной инженер
Закажите выезд инженера для точной диагностики и профессиональной консультации по инженерным системам. Специалист приедет в удобное время, проведёт осмотр, рассчитает стоимость работ и подберёт оптимальные решения для вашего дома.


    Похожие проекты

    Ипотека и
    рассрочка
    Загородный дом ВС-109
    Стоимость от:
    11 199 760
    Проект от: 80 100
    Этажей 1
    Санузлы 2
    Спальни 4
    Смотреть
    Ипотека и
    рассрочка
    D177-2
    Стоимость от:
    11 201 280
    Проект от: 77 400
    Этажей 2
    Санузлы 2
    Спальни 3
    Смотреть
    Ипотека и
    рассрочка
    Проект одноэтажного дома из SIP панелей «Регул»
    Стоимость от:
    9 520 500
    Проект от: 67 500
    Этажей 1
    Санузлы 1
    Спальни 2
    Смотреть
    Ипотека и
    рассрочка
    EL-81
    Стоимость от:
    6 779 520
    Проект от: 43 200
    Этажей 1
    Санузлы 1
    Спальни 3
    Смотреть
    Ипотека и
    рассрочка
    Загородный дом «Аристократ»
    Стоимость от:
    11 034 720
    Проект от: 71 100
    Этажей 2
    Санузлы 2
    Спальни 4
    Смотреть
    Ипотека и
    рассрочка
    Проект загородного дома NHD-146
    Стоимость от:
    5 939 780
    Проект от: 35 550
    Этажей 1
    Санузлы 1
    Спальни 2
    Смотреть

    Как узнать стоимость дома

    back
    Оставляете заявку
    Вы заполняете форму на сайте или звоните нам. Менеджер Лайвкрафт связывается с вами для уточнения деталей: тип дома, площадь, материалы, участок строительства.
    back
    Консультация и подбор решения
    Наш специалист помогает выбрать оптимальный тип дома и конструкцию с учётом бюджета, сроков и целей — будь то дом для постоянного проживания или дача.
    back
    Расчёт предварительной стоимости
    Инженер делает первичный расчёт стоимости строительства по вашим параметрам: фундамент, коробка, кровля, отделка. Вы получаете смету с разбивкой по этапам.
    back
    Корректировка и утверждение сметы
    При необходимости вносим изменения — например, замену материалов или сокращение этапов. После согласования формируется окончательная фиксированная смета.
    back
    Заключение договора и старт работ
    После утверждения сметы заключаем официальный договор с гарантией. Вы получаете прозрачный график и точную стоимость — без скрытых расходов.

    Заказать конусльтацию по:Солнечный КС-1

    Фото 1 Солнечный КС-1


      Наши
      контакты

      Дмитров
      Опорный проезд 28Б
      (индустриальный парк Ниагара)
      9:00 до 18:00

      Корзина