4.9
Рейтинг на основании 120 отзывов
Дмитров
Опорный проезд 28Б
(индустриальный парк Ниагара)
Бренд "Дмитров-Дело" c 2008 года на рынке строительства в Дмитрове
Звоните 9:00 до 18:00 8 (915) 055-33-61
Бренд "Дмитров-Дело" c 2008 года на рынке строительства в Дмитрове

Сосновый Бор

Стоимость проекта от:
45 900 ₽
БЕСПЛАТНО! ПРИ ЗАКАЗЕ СТРОИТЕЛЬСТВА
Стоимость строительства от:
5 896 110 ₽
Артикул ART-19559
Дата 26.12.2025
Архитектурный стиль Скандинавский
Количество надземных этажей 1
Круглогодичное проживание Да
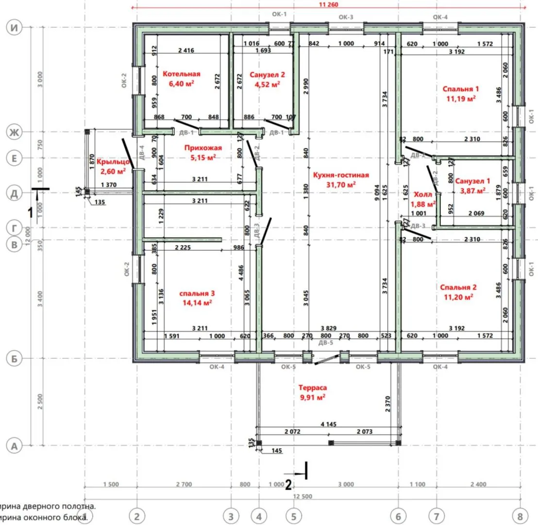
Площадь дома 102 м2
Санузлы 2
Спальни 3

Описание

Утренний туман, ласковый свет проникающий сквозь плотные сосновые шишки, – вот что встречает вас в Сосновом Боре. Дом одиннадцатый этаж в стиле скандинавской простоты создан как настоящий уголок уединения, где каждый элемент продуман до мельчайших деталей. Окружающая природа и живописные виды на лес создают атмосферу гармонии и спокойствия, будто в любой момент вы сможете открыть дверь и почувствовать, как дыханье зимней и летней прохлады объединяется в одну целостную ритмику бытия. Интерьер – это сочетание прозрачных отливок света, натуральных деревянных панелей и тщательно подобранных нейтральных тонов. Открытая планировка придает дому безмятежность и простоту. При входе вы сразу встретит просторная гостиная, где скандинавский стиль раскрывается в чистых линиях и мягких акцентах. Тёплые деревянные элементы подчёркивают связь с природой, а большие окна позволяют наслаждаться панорамой в любое время дня. Ни балконов, ни веранд, ни крытых стоек – всё сделано именно так, чтобы подчеркнуть чистоту пространства и оставить свободные возможности для креативного использования. Идеальное решение – терраса, где можно наслаждаться вкусом свежего воздуха под звёздным небом, а также чердачное помещение, которое открывает потенциальные варианты: дополнительная комната, мастерская, уютный уголок для отдыха. Сосновый Бор – это не просто дом, это стиль жизни, где каждая деталь заботится о вашем комфорте и близости к природе.

Характеристики дома

Архитектурный стиль
Автоматизированное регулирование параметров теплоносителя
Нет
Балконы/лоджии
Отсутствуют
Чердачное помещение
Да
Датчики протечки воды
Нет
Эксплуатируемая или зеленая кровля
Нет
Электроснабжение
Индивидуальное
Газоснабжение
Индивидуальное
Изоляция воздушного шума
Нет
Камин
Нет
Класс энергоэффективности
-
Класс энергосбережения
-
Количество надземных этажей
1
Круглогодичное проживание
Да
Материал кровли
Металлочерепица
Материал перекрытий
Деревянные
Материал внешних стен
Материал внутренних перегородок
Деревянные
Модульное строительство с конструкциями заводского изготовления
Нет
Объем надземной части
274 м3
Основной материал фасадов
Дерево
Отопление
Индивидуальное
Площадь дома
102 м2
Площадь застройки
121 м2
Подвальное помещение
Нет
Показатель компактности здания
-
Приборы учета тепловой энергии
Нет
Пристроенный гараж/крытая автостоянка
Нет
Противопожарная система
Нет
Санузлы
2
Совмещенная кухня-гостиная
Да
Спальни
3
Терраса
Да
Тип фундамента
Свайно-винтовой
Тип кровли
Толщина внешних стен
333 мм
Толщина внутренних перегородок
191 мм
Улучшенные шумовые характеристики
Нет
Вентиляция
Рекуперация
Веранда
Нет
Водоотведение
Не предусмотрено
Водоснабжение
Индивидуальное
Высота дома
4.86 м
Высота потолков
2.5 м

Планировка

Фасад дома

Александр

Закажите выезд инженера

Александр

Выездной инженер
Закажите выезд инженера для точной диагностики и профессиональной консультации по инженерным системам. Специалист приедет в удобное время, проведёт осмотр, рассчитает стоимость работ и подберёт оптимальные решения для вашего дома.


    Похожие проекты

    Ипотека и
    рассрочка
    Орлов
    Стоимость от:
    1 851 300
    Проект от: 14 850
    Этажей 1
    Санузлы 1
    Спальни 1
    Смотреть
    Ипотека и
    рассрочка
    Барн Хаус
    Стоимость от:
    6 474 160
    Проект от: 50 400
    Этажей 1
    Санузлы 2
    Спальни 3
    Смотреть
    Ипотека и
    рассрочка
    Дом из клееного бруса по проекту №105/В
    Стоимость от:
    6 283 530
    Проект от: 44 550
    Этажей 1
    Санузлы 2
    Спальни 3
    Смотреть
    Ипотека и
    рассрочка
    Шервуд 72.1
    Стоимость от:
    4 392 795
    Проект от: 35 550
    Этажей 1
    Санузлы 1
    Спальни 3
    Смотреть
    Ипотека и
    рассрочка
    Авторский проект «Броуд»
    Стоимость от:
    2 895 420
    Проект от: 18 450
    Этажей 1
    Санузлы 2
    Спальни 1
    Смотреть
    Ипотека и
    рассрочка
    Барнхаус 168
    Стоимость от:
    9 999 220
    Проект от: 67 950
    Этажей 1
    Санузлы 2
    Спальни 3
    Смотреть

    Как узнать стоимость дома

    back
    Оставляете заявку
    Вы заполняете форму на сайте или звоните нам. Менеджер Лайвкрафт связывается с вами для уточнения деталей: тип дома, площадь, материалы, участок строительства.
    back
    Консультация и подбор решения
    Наш специалист помогает выбрать оптимальный тип дома и конструкцию с учётом бюджета, сроков и целей — будь то дом для постоянного проживания или дача.
    back
    Расчёт предварительной стоимости
    Инженер делает первичный расчёт стоимости строительства по вашим параметрам: фундамент, коробка, кровля, отделка. Вы получаете смету с разбивкой по этапам.
    back
    Корректировка и утверждение сметы
    При необходимости вносим изменения — например, замену материалов или сокращение этапов. После согласования формируется окончательная фиксированная смета.
    back
    Заключение договора и старт работ
    После утверждения сметы заключаем официальный договор с гарантией. Вы получаете прозрачный график и точную стоимость — без скрытых расходов.

    Заказать конусльтацию по:Сосновый Бор

    Фото 1 Сосновый Бор


      Наши
      контакты

      Дмитров
      Опорный проезд 28Б
      (индустриальный парк Ниагара)
      9:00 до 18:00

      Корзина