4.9
Рейтинг на основании 120 отзывов
Дмитров
Опорный проезд 28Б
(индустриальный парк Ниагара)
Бренд "Дмитров-Дело" c 2008 года на рынке строительства в Дмитрове
Звоните 9:00 до 18:00 8 (915) 055-33-61
Бренд "Дмитров-Дело" c 2008 года на рынке строительства в Дмитрове

Soul Village Project 200

Стоимость проекта от:
90 000 ₽
БЕСПЛАТНО! ПРИ ЗАКАЗЕ СТРОИТЕЛЬСТВА
Стоимость строительства от:
14 707 200 ₽
Артикул ART-20295
Дата 26.12.2025
Архитектурный стиль Хайтек
Количество надземных этажей 2
Круглогодичное проживание Да
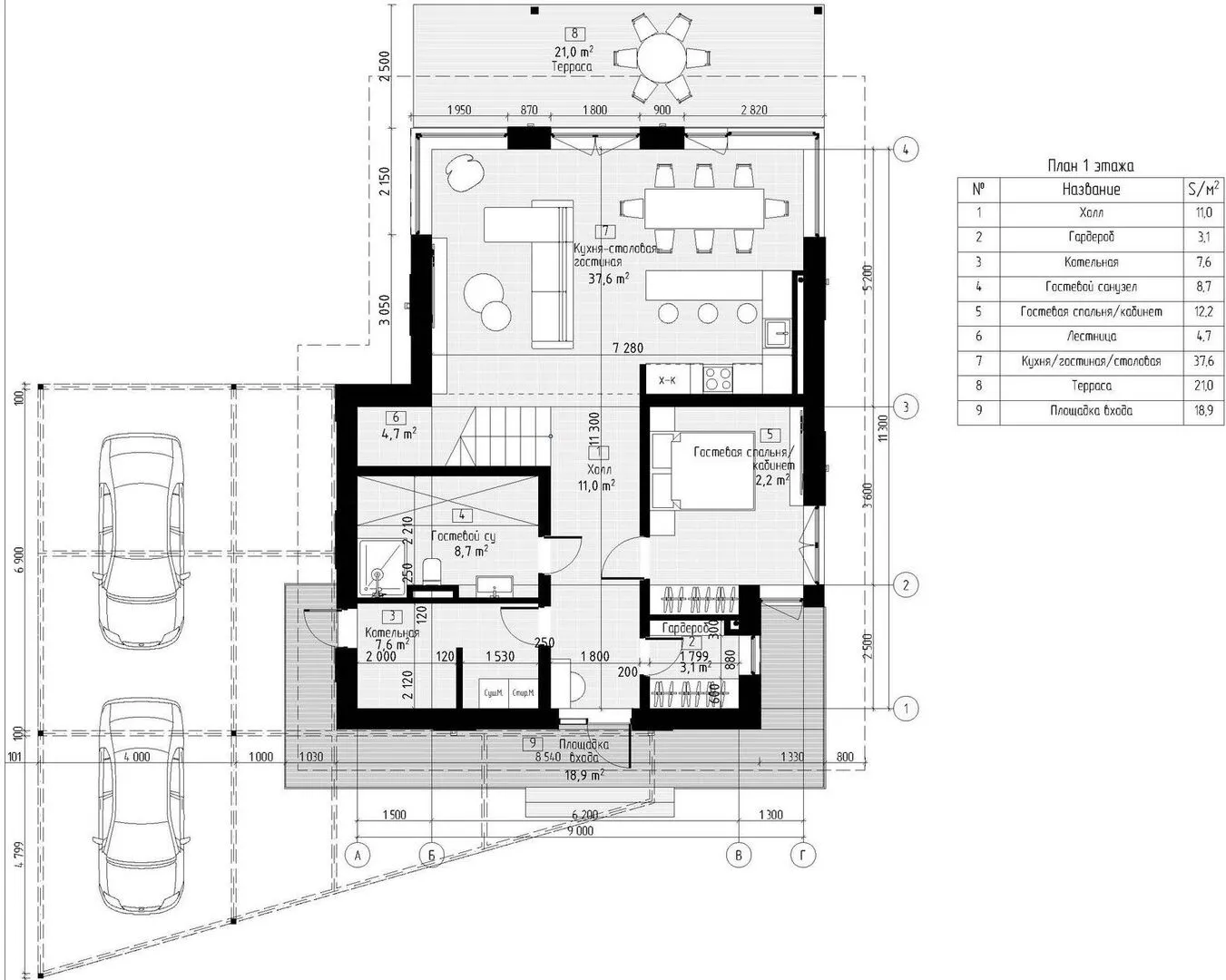
Площадь дома 200 м2
Санузлы 3
Спальни 5

Описание

Добро пожаловать в Soul Village Project 200 – уникальное сочетание современных технологий и комфортной жизни. Это двухэтажное жилое здание спроектировано с идеей круглогодичного проживания: светлые, продуманные просторные квартиры, обиталищем, где каждая деталь отвечает настоящим требованиям современного образа жизни. Архитектурный стиль хай‑тек придаёт дому динамичную силуэтную линию, а строгие линии монолитного железобетона и односкатную кровлю гармонируют как в городских кварталах, так и в спокойных пригородных уголках. Квартиры Soul Village Project 200 оборудованы двумя балконами, которые становятся вашими личными оазисами для чашки кофе и рассветных закатов. Вместе с это, просторная терраса и пристроенный гараж/крытая автостоянка обеспечивают удобство и комфорт даже в самый дождливый день. Внутреннее пространство наполнено светом, а продуманная планировка создаёт идеальные условия для отдыха, работы и развлечений. Нет чердачного помещения и веранд, но все необходимые элементы присутствуют, чтобы каждый момент в этом доме был по-настоящему уютным. Этот проект – как личный уголок, где современные возможности сочетаются с безупречным дизайном и практичностью. Soul Village Project 200 приглашает вас открыть новую страницу вашего удобства и стиля в гармонии с тем, что движет миром. Закажите просмотр уже сегодня и убедитесь, как простые детали способны превратить обычный адрес в настоящий дом вашей мечты.

Характеристики дома

Архитектурный стиль
Автоматизированное регулирование параметров теплоносителя
Да
Балконы/лоджии
2
Чердачное помещение
Нет
Датчики протечки воды
Да
Эксплуатируемая или зеленая кровля
Нет
Электроснабжение
Центральное
Газоснабжение
Центральное
Изоляция воздушного шума
Да
Камин
Нет
Класс энергоэффективности
A+
Класс энергосбережения
A+
Количество надземных этажей
2
Круглогодичное проживание
Да
Материал кровли
Фальцевая кровля Кликфальц
Материал перекрытий
Монолитные железобетонные по металлическим балкам
Материал внешних стен
Материал внутренних перегородок
Монолитные
Модульное строительство с конструкциями заводского изготовления
Нет
Объем надземной части
-
Основной материал фасадов
Сайдинг
Отопление
Индивидуальное
Площадь дома
200 м2
Площадь застройки
256 м2
Подвальное помещение
Нет
Показатель компактности здания
0.86
Приборы учета тепловой энергии
Да
Пристроенный гараж/крытая автостоянка
Да
Противопожарная система
Нет
Санузлы
3
Совмещенная кухня-гостиная
Да
Спальни
5
Терраса
Да
Тип фундамента
Ленточный
Тип кровли
Толщина внешних стен
350 мм
Толщина внутренних перегородок
200 мм
Улучшенные шумовые характеристики
Да
Вентиляция
Принудительная
Веранда
Нет
Водоотведение
Локальные очистные сооружения
Водоснабжение
Индивидуальное
Высота дома
7 м
Высота потолков
3 м

Планировка

Фасад дома

Александр

Закажите выезд инженера

Александр

Выездной инженер
Закажите выезд инженера для точной диагностики и профессиональной консультации по инженерным системам. Специалист приедет в удобное время, проведёт осмотр, рассчитает стоимость работ и подберёт оптимальные решения для вашего дома.


    Похожие проекты

    Ипотека и
    рассрочка
    VALENSIA-3
    Стоимость от:
    4 590 300
    Проект от: 29 250
    Этажей 1
    Санузлы 1
    Спальни 2
    Смотреть
    Ипотека и
    рассрочка
    Одноэтажный каркасный дом с тремя спальнями и большой гостиной 7033
    Стоимость от:
    5 623 090
    Проект от: 43 650
    Этажей 1
    Санузлы 1
    Спальни 3
    Смотреть
    Ипотека и
    рассрочка
    Одноэтажный дом Wright-70
    Стоимость от:
    5 577 000
    Проект от: 31 500
    Этажей 1
    Санузлы 1
    Спальни 2
    Смотреть
    Ипотека и
    рассрочка
    Загородный дом «Изумруд»
    Стоимость от:
    14 830 200
    Проект от: 94 500
    Этажей 1
    Санузлы 2
    Спальни 3
    Смотреть
    Ипотека и
    рассрочка
    СЕРИЯ «ХАЙ-ТЕК» ПРОЕКТ КД-22
    Стоимость от:
    6 480 760
    Проект от: 46 350
    Этажей 1
    Санузлы 1
    Спальни 2
    Смотреть
    Ипотека и
    рассрочка
    Дом мечты 115
    Стоимость от:
    6 355 800
    Проект от: 40 500
    Этажей 1
    Санузлы 2
    Спальни 3
    Смотреть

    Как узнать стоимость дома

    back
    Оставляете заявку
    Вы заполняете форму на сайте или звоните нам. Менеджер Лайвкрафт связывается с вами для уточнения деталей: тип дома, площадь, материалы, участок строительства.
    back
    Консультация и подбор решения
    Наш специалист помогает выбрать оптимальный тип дома и конструкцию с учётом бюджета, сроков и целей — будь то дом для постоянного проживания или дача.
    back
    Расчёт предварительной стоимости
    Инженер делает первичный расчёт стоимости строительства по вашим параметрам: фундамент, коробка, кровля, отделка. Вы получаете смету с разбивкой по этапам.
    back
    Корректировка и утверждение сметы
    При необходимости вносим изменения — например, замену материалов или сокращение этапов. После согласования формируется окончательная фиксированная смета.
    back
    Заключение договора и старт работ
    После утверждения сметы заключаем официальный договор с гарантией. Вы получаете прозрачный график и точную стоимость — без скрытых расходов.

    Заказать конусльтацию по:Soul Village Project 200

    Фото 1 Soul Village Project 200


      Наши
      контакты

      Дмитров
      Опорный проезд 28Б
      (индустриальный парк Ниагара)
      9:00 до 18:00

      Корзина