4.9
Рейтинг на основании 120 отзывов
Дмитров
Опорный проезд 28Б
(индустриальный парк Ниагара)
Бренд "Дмитров-Дело" c 2008 года на рынке строительства в Дмитрове
Звоните 9:00 до 18:00 8 (915) 055-33-61
Бренд "Дмитров-Дело" c 2008 года на рынке строительства в Дмитрове

Современное шале из арболита-60 м2-Спутник

Стоимость проекта от:
27 000 ₽
БЕСПЛАТНО! ПРИ ЗАКАЗЕ СТРОИТЕЛЬСТВА
Стоимость строительства от:
4 650 800 ₽
Артикул ART-11998
Дата 25.12.2025
Архитектурный стиль Русский
Количество надземных этажей 1
Круглогодичное проживание Да
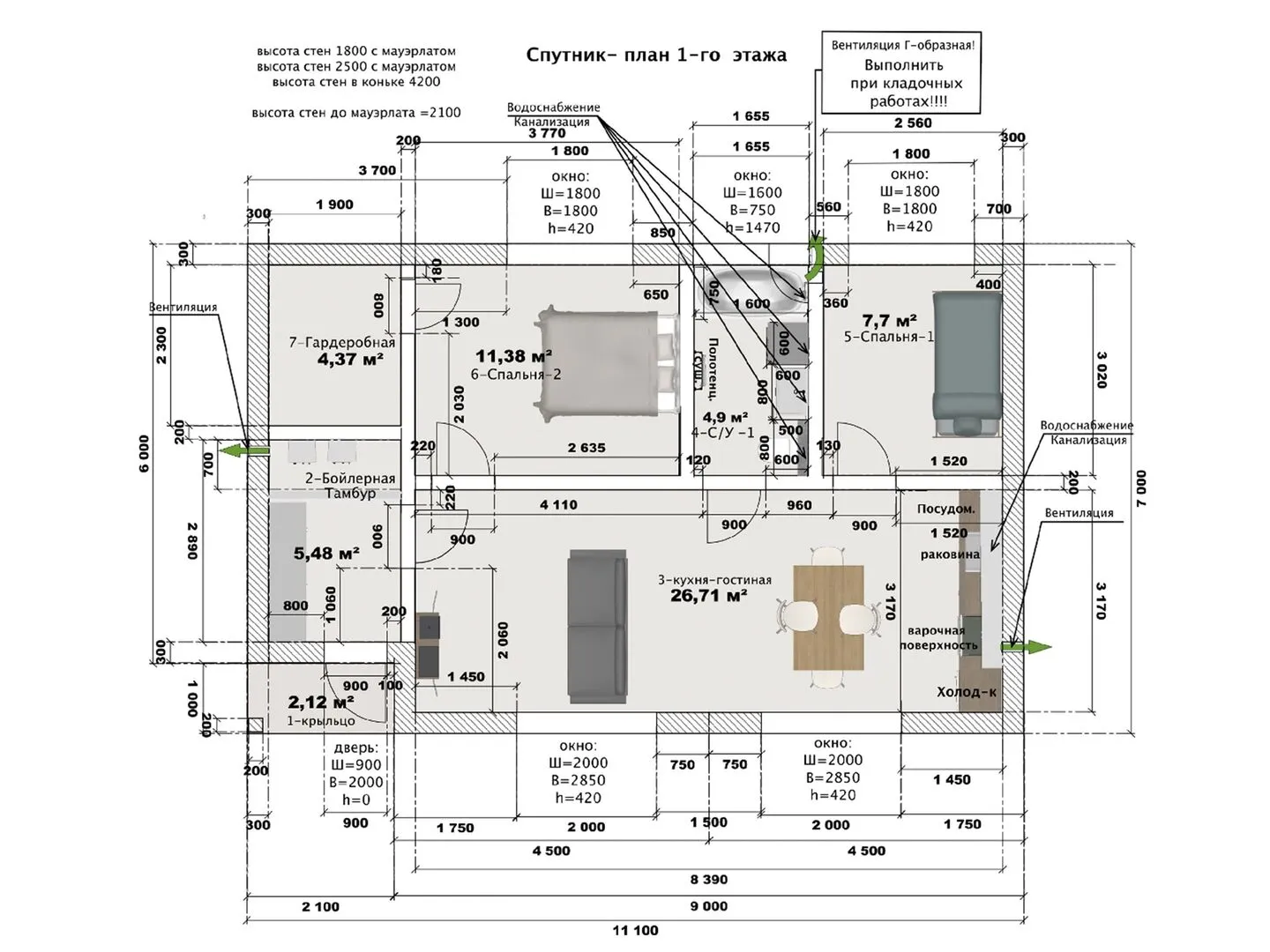
Площадь дома 60 м2
Санузлы 1
Спальни 2

Описание

Современный шале "Спутник" – это уютный уголок, где современность встречается с традиционной русской эстетикой. Застройка площадью 60 м² тщательно продумана: простая, но функциональная планировка придает дому ощущение свободы и открытости. Внутреннее пространство обтекается плавными линиями, позволяющими легко комбинировать современные материалы с классическими элементами, чтобы каждый день начинался с вдохновения. Герой‑строения – прочный арболит, который обеспечивает теплоизоляцию даже в самые холодные зимы, сохраняя энергоэффективность и комфорт на всю смену сезонов. Двускатная крыша, выполненная в традиционном русских шале стиле, придаёт дому внушительную силуэтную форму, а отсутствие балконов, веранд и подвалов делает интерьер более сдержанным и гармоничным. Всё пространство, от кухонного уголка до уютного спального места, создаёт ощущение спокойствующей и защищённой атмосферы. Этот шале идеален для тех, кто ищет гармонию между природой и технологическим комфортом. При наличии гибкой планировки и возможностей для персональных доработок, "Спутник" станет вашим персональным убежищем, где каждый элемент продуман до мелочей. Не упустите шанс оберегать свою идиллию в этом современном шале‑домике, где стиль, тепло и уют идут рука об руку.

Характеристики дома

Архитектурный стиль
Автоматизированное регулирование параметров теплоносителя
-
Балконы/лоджии
Отсутствуют
Чердачное помещение
Нет
Датчики протечки воды
-
Эксплуатируемая или зеленая кровля
-
Электроснабжение
2 варианта
Газоснабжение
2 варианта
Изоляция воздушного шума
-
Камин
Нет
Класс энергоэффективности
-
Класс энергосбережения
-
Количество надземных этажей
1
Круглогодичное проживание
Да
Материал кровли
Битумная черепица
Материал перекрытий
Деревянные
Материал внешних стен
Материал внутренних перегородок
Блочные
Модульное строительство с конструкциями заводского изготовления
Нет
Объем надземной части
-
Основной материал фасадов
Штукатурка
Отопление
Индивидуальное
Площадь дома
60 м2
Площадь застройки
77 м2
Подвальное помещение
Нет
Показатель компактности здания
-
Приборы учета тепловой энергии
-
Пристроенный гараж/крытая автостоянка
Нет
Противопожарная система
Нет
Санузлы
1
Совмещенная кухня-гостиная
Да
Спальни
2
Терраса
Нет
Тип фундамента
Ленточный
Тип кровли
Толщина внешних стен
300 мм
Толщина внутренних перегородок
200 мм
Улучшенные шумовые характеристики
-
Вентиляция
2 варианта
Веранда
Нет
Водоотведение
2 варианта
Водоснабжение
2 варианта
Высота дома
4.4 м
Высота потолков
3 м

Планировка

Фасад дома

Александр

Закажите выезд инженера

Александр

Выездной инженер
Закажите выезд инженера для точной диагностики и профессиональной консультации по инженерным системам. Специалист приедет в удобное время, проведёт осмотр, рассчитает стоимость работ и подберёт оптимальные решения для вашего дома.


    Похожие проекты

    Ипотека и
    рассрочка
    Загородный дом ПСК-116
    Стоимость от:
    7 107 320
    Проект от: 52 200
    Этажей 1
    Санузлы 2
    Спальни 3
    Смотреть
    Ипотека и
    рассрочка
    Скандия Мини 3 плюс
    Стоимость от:
    5 437 740
    Проект от: 34 650
    Этажей 1
    Санузлы 1
    Спальни 3
    Смотреть
    Ипотека и
    рассрочка
    Дачный дом
    Стоимость от:
    2 683 560
    Проект от: 17 100
    Этажей 1
    Санузлы 1
    Спальни 1
    Смотреть
    Ипотека и
    рассрочка
    Двухэтажный дом «Премьер» 10,8х9,55м
    Стоимость от:
    8 801 160
    Проект от: 66 150
    Этажей 2
    Санузлы 2
    Спальни 4
    Смотреть
    Ипотека и
    рассрочка
    СКС-21
    Стоимость от:
    4 057 900
    Проект от: 31 500
    Этажей 1
    Санузлы 1
    Спальни 2
    Смотреть
    Ипотека и
    рассрочка
    Sommerhaus
    Стоимость от:
    9 920 900
    Проект от: 65 250
    Этажей 1
    Санузлы 2
    Спальни 2
    Смотреть

    Как узнать стоимость дома

    back
    Оставляете заявку
    Вы заполняете форму на сайте или звоните нам. Менеджер Лайвкрафт связывается с вами для уточнения деталей: тип дома, площадь, материалы, участок строительства.
    back
    Консультация и подбор решения
    Наш специалист помогает выбрать оптимальный тип дома и конструкцию с учётом бюджета, сроков и целей — будь то дом для постоянного проживания или дача.
    back
    Расчёт предварительной стоимости
    Инженер делает первичный расчёт стоимости строительства по вашим параметрам: фундамент, коробка, кровля, отделка. Вы получаете смету с разбивкой по этапам.
    back
    Корректировка и утверждение сметы
    При необходимости вносим изменения — например, замену материалов или сокращение этапов. После согласования формируется окончательная фиксированная смета.
    back
    Заключение договора и старт работ
    После утверждения сметы заключаем официальный договор с гарантией. Вы получаете прозрачный график и точную стоимость — без скрытых расходов.

    Заказать конусльтацию по:Современное шале из арболита-60 м2-Спутник

    Фото 1 Современное шале из арболита-60 м2-Спутник


      Наши
      контакты

      Дмитров
      Опорный проезд 28Б
      (индустриальный парк Ниагара)
      9:00 до 18:00

      Корзина