4.9
Рейтинг на основании 120 отзывов
Дмитров
Опорный проезд 28Б
(индустриальный парк Ниагара)
Бренд "Дмитров-Дело" c 2008 года на рынке строительства в Дмитрове
Звоните 9:00 до 18:00 8 (915) 055-33-61
Бренд "Дмитров-Дело" c 2008 года на рынке строительства в Дмитрове

«Современный»

Стоимость проекта от:
58 050 ₽
Стоимость строительства от:
9 503 760 ₽
Артикул ART-12727
Дата 25.12.2025
Архитектурный стиль Хайтек
Количество надземных этажей 2
Круглогодичное проживание Да
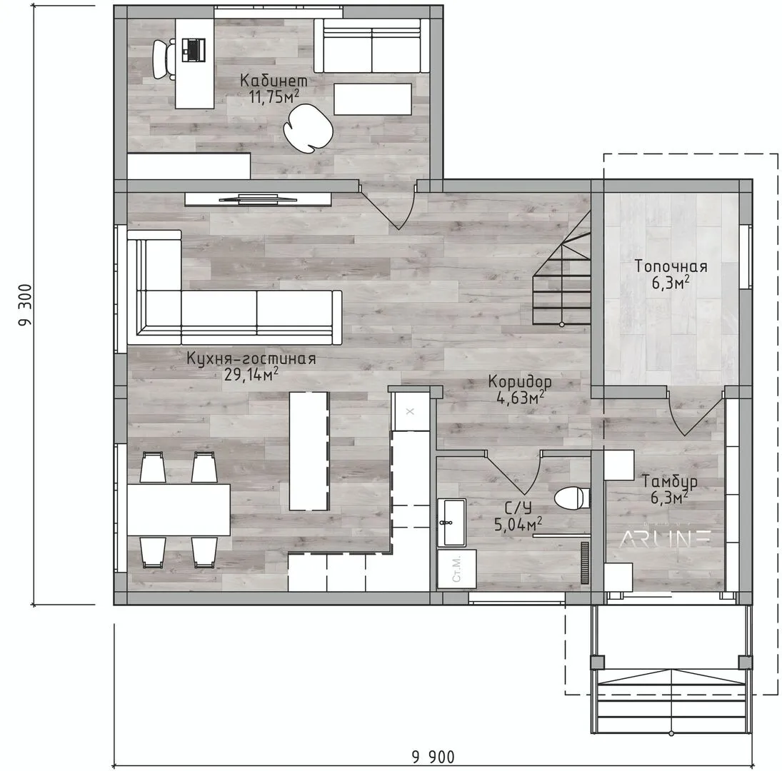
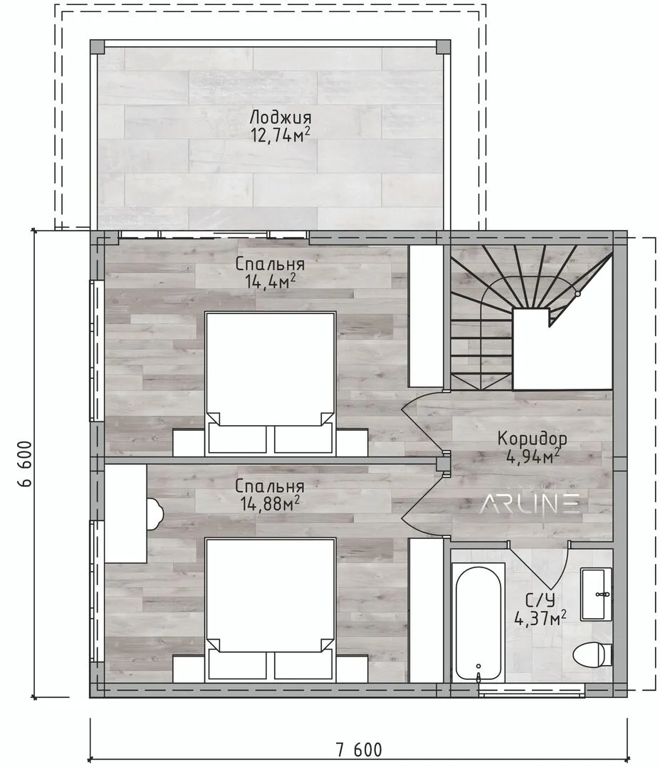
Площадь дома 129 м2
Санузлы 2
Спальни 2

Описание

Погрузитесь в атмосферу современности и уюта, где каждая деталь продумана до мельчайших нюансов. Этот двухэтажный дом в стиле хайтек сочетает в себе смелый, лаконичный дизайн и практичность повседневной жизни. Круглогодичное проживание без ограничений позволяет вам наслаждаться комфортом даже в самые суровые погодные условия, а изысканная стеклянно-стекловую архитектура создаёт ощущение лёгкости и прозрачности пространства. Изысканные газобетонные блоки внешних стен не только гарантируют теплоизоляцию, но и придают фасаду строгую, современную эстетику, подчёркивая тонкое сочетание технологии и эстетики. Односкатная кровля, выполненная из высококачественного материала, обеспечивает надёжную защиту от погодных влияний и придаёт дому динамичную форму. Внутри просторные светлые коридоры и открытые зоны создают идеальную среду для творчества, семейного отдыха и профессиональной работы. Небольшой, но функциональный балкон/лоджия открывает панорамный вид на живописные окрестности, а отсутствие лишних конструктивных узоров добавляет чистоты и уюта. Несмотря на лаконичность, дом остаётся практичным: никаких лишних подземных залов, гаражей и террас, но при этом всё, что нужно для комфортной жизни, находится под рукой. Это место, где инновации встречаются с семейным теплом, и каждый момент здесь наполнен вдохновением.

Характеристики дома

Архитектурный стиль
Хайтек
Автоматизированное регулирование параметров теплоносителя
Нет
Балконы/лоджии
1
Чердачное помещение
Нет
Датчики протечки воды
Нет
Эксплуатируемая или зеленая кровля
Нет
Электроснабжение
2 варианта
Газоснабжение
Не предусмотрено
Изоляция воздушного шума
Да
Камин
Нет
Класс энергоэффективности
-
Класс энергосбережения
-
Количество надземных этажей
2
Круглогодичное проживание
Да
Материал кровли
Битумная черепица
Материал перекрытий
Монолитные железобетонные
Материал внешних стен
Газобетонные блоки
Материал внутренних перегородок
Блочные
Модульное строительство с конструкциями заводского изготовления
Нет
Объем надземной части
388 м3
Основной материал фасадов
Штукатурка
Отопление
Индивидуальное
Площадь дома
129 м2
Площадь застройки
79 м2
Подвальное помещение
Нет
Показатель компактности здания
-
Приборы учета тепловой энергии
Нет
Пристроенный гараж/крытая автостоянка
Нет
Противопожарная система
Нет
Санузлы
2
Совмещенная кухня-гостиная
Да
Спальни
2
Терраса
Нет
Тип фундамента
Ленточный
Тип кровли
Односкатная
Толщина внешних стен
200 мм
Толщина внутренних перегородок
100 мм
Улучшенные шумовые характеристики
Да
Вентиляция
Естественная
Веранда
Нет
Водоотведение
2 варианта
Водоснабжение
2 варианта
Высота дома
7.2 м
Высота потолков
3 м

Планировка

Фасад дома

Александр

Закажите выезд инженера

Александр

Выездной инженер
Закажите выезд инженера для точной диагностики и профессиональной консультации по инженерным системам. Специалист приедет в удобное время, проведёт осмотр, рассчитает стоимость работ и подберёт оптимальные решения для вашего дома.


    Похожие проекты

    Ипотека и
    рассрочка
    Загородный дом «Пегас»
    Стоимость от:
    8 909 520
    Проект от: 55 350
    Этажей 2
    Санузлы 1
    Спальни 4
    Смотреть
    Ипотека и
    рассрочка
    РД-Н60
    Стоимость от:
    470 250
    Проект от: 33 750
    Этажей 1
    Санузлы 1
    Спальни 2
    Смотреть
    Ипотека и
    рассрочка
    Двухэтажный загородный дом Д-142
    Стоимость от:
    9 917 280
    Проект от: 63 900
    Этажей 2
    Санузлы 3
    Спальни 4
    Смотреть
    Ипотека и
    рассрочка
    Шале с мансардой Ольха 98
    Стоимость от:
    7 405 440
    Проект от: 52 200
    Этажей 2
    Санузлы 1
    Спальни 3
    Смотреть
    Ипотека и
    рассрочка
    Индивидуальный проект в современном стиле
    Стоимость от:
    18 807 360
    Проект от: 123 300
    Этажей 2
    Санузлы 2
    Спальни 3
    Смотреть
    Ипотека и
    рассрочка
    Одноэтажный дом «Уверенность-2»
    Стоимость от:
    8 898 120
    Проект от: 56 700
    Этажей 1
    Санузлы 2
    Спальни 3
    Смотреть

    Как узнать стоимость дома

    back
    Оставляете заявку
    Вы заполняете форму на сайте или звоните нам. Менеджер Лайвкрафт связывается с вами для уточнения деталей: тип дома, площадь, материалы, участок строительства.
    back
    Консультация и подбор решения
    Наш специалист помогает выбрать оптимальный тип дома и конструкцию с учётом бюджета, сроков и целей — будь то дом для постоянного проживания или дача.
    back
    Расчёт предварительной стоимости
    Инженер делает первичный расчёт стоимости строительства по вашим параметрам: фундамент, коробка, кровля, отделка. Вы получаете смету с разбивкой по этапам.
    back
    Корректировка и утверждение сметы
    При необходимости вносим изменения — например, замену материалов или сокращение этапов. После согласования формируется окончательная фиксированная смета.
    back
    Заключение договора и старт работ
    После утверждения сметы заключаем официальный договор с гарантией. Вы получаете прозрачный график и точную стоимость — без скрытых расходов.

    Заказать конусльтацию по:«Современный»

    Фото 1 «Современный»


      Наши
      контакты

      Дмитров
      Опорный проезд 28Б
      (индустриальный парк Ниагара)
      9:00 до 18:00