4.9
Рейтинг на основании 120 отзывов
Дмитров
Опорный проезд 28Б
(индустриальный парк Ниагара)
Бренд "Дмитров-Дело" c 2008 года на рынке строительства в Дмитрове
Звоните 9:00 до 18:00 8 (915) 055-33-61
Бренд "Дмитров-Дело" c 2008 года на рынке строительства в Дмитрове

Space 101

Стоимость проекта от:
63 900 ₽
Стоимость строительства от:
9 572 640 ₽
Артикул ART-12427
Дата 25.12.2025
Архитектурный стиль Скандинавский
Количество надземных этажей 1
Круглогодичное проживание Да
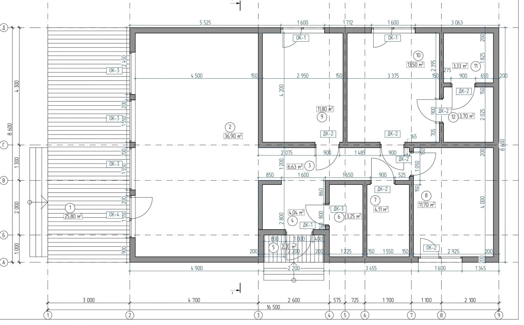
Площадь дома 142 м2
Санузлы 2
Спальни 3

Описание

**Space 101 – ваш личный уголок уюта и простоты** В этом одном изящном одноэтажном доме каждое мгновение пронизано спокойствием скандинавского дизайна. Деревянные каркасные стены создают тепло и гармонию, а двускатная крыша, словно плавный штрих мастера, придаёт зданию выразительный силуэт. Благодаря полной круглогодичности, ваш комфорт не знает ограничений: от мягкого зимнего света до яркой летний прохлады, интерьер всегда будет дарить чувство уюта. Открытая планировка, в которой не нарушают друг друга стены, позволяет вам в любой момент перенестись из гостиной в кухню или в кабинет, благодаря обилию естественного света, льющегося сквозь просторные окна. Тёплый деревянный пол, минималистичные линии и аккуратные детали подчёркивают элегантность пространства, создавая атмосферу беззаботного спокойствия. На выходе из дома вас встретит живописная терраса, где можно провести вечерняя чаепитие, наслаждаясь звуками природы. Благодаря отсутствию пристроенного гаража, пространство остаётся свободным: вы можете использовать его для сада, мини‑патио или уютного уголка для творчества. Space 101 – это не просто дом, а настоящее убежище, где каждый элемент раскрывает простоту и эстетику современного образа жизни.

Характеристики дома

Архитектурный стиль
Скандинавский
Автоматизированное регулирование параметров теплоносителя
Да
Балконы/лоджии
Отсутствуют
Чердачное помещение
Нет
Датчики протечки воды
Нет
Эксплуатируемая или зеленая кровля
Нет
Электроснабжение
Индивидуальное
Газоснабжение
Индивидуальное
Изоляция воздушного шума
Нет
Камин
Нет
Класс энергоэффективности
-
Класс энергосбережения
-
Количество надземных этажей
1
Круглогодичное проживание
Да
Материал кровли
Металлические листовые гофрированные профили
Материал перекрытий
Деревянные
Материал внешних стен
Деревянные каркасные
Материал внутренних перегородок
Деревянные
Модульное строительство с конструкциями заводского изготовления
Нет
Объем надземной части
-
Основной материал фасадов
Дерево
Отопление
Индивидуальное
Площадь дома
142 м2
Площадь застройки
142 м2
Подвальное помещение
Нет
Показатель компактности здания
-
Приборы учета тепловой энергии
Нет
Пристроенный гараж/крытая автостоянка
Нет
Противопожарная система
Нет
Санузлы
2
Совмещенная кухня-гостиная
Да
Спальни
3
Терраса
Да
Тип фундамента
Свайно-ростверковый
Тип кровли
Двускатная
Толщина внешних стен
320 мм
Толщина внутренних перегородок
150 мм
Улучшенные шумовые характеристики
Нет
Вентиляция
Естественная
Веранда
Нет
Водоотведение
Локальные очистные сооружения
Водоснабжение
Индивидуальное
Высота дома
4.44 м
Высота потолков
4 м

Планировка

Фасад дома

Александр

Закажите выезд инженера

Александр

Выездной инженер
Закажите выезд инженера для точной диагностики и профессиональной консультации по инженерным системам. Специалист приедет в удобное время, проведёт осмотр, рассчитает стоимость работ и подберёт оптимальные решения для вашего дома.


    Похожие проекты

    Ипотека и
    рассрочка
    Индивидуальный жилой дом
    Стоимость от:
    5 648 830
    Проект от: 40 050
    Этажей 1
    Санузлы 1
    Спальни 3
    Смотреть
    Ипотека и
    рассрочка
    Проект загородного дома с террасой и гаражом на 2 машины S-292
    Стоимость от:
    20 672 640
    Проект от: 133 200
    Этажей 2
    Санузлы 3
    Спальни 3
    Смотреть
    Ипотека и
    рассрочка
    Барнхаус СК — 74
    Стоимость от:
    4 126 980
    Проект от: 33 300
    Этажей 1
    Санузлы 1
    Спальни 2
    Смотреть
    Ипотека и
    рассрочка
    Одноэтажный дом БРАИТ-97Г
    Стоимость от:
    13 042 480
    Проект от: 73 800
    Этажей 1
    Санузлы 2
    Спальни 3
    Смотреть
    Ипотека и
    рассрочка
    Аделина
    Стоимость от:
    7 290 140
    Проект от: 43 650
    Этажей 1
    Санузлы 2
    Спальни 3
    Смотреть
    Ипотека и
    рассрочка
    КД 23-22 «Орск»
    Стоимость от:
    7 861 480
    Проект от: 61 200
    Этажей 1
    Санузлы 2
    Спальни 3
    Смотреть

    Как узнать стоимость дома

    back
    Оставляете заявку
    Вы заполняете форму на сайте или звоните нам. Менеджер Лайвкрафт связывается с вами для уточнения деталей: тип дома, площадь, материалы, участок строительства.
    back
    Консультация и подбор решения
    Наш специалист помогает выбрать оптимальный тип дома и конструкцию с учётом бюджета, сроков и целей — будь то дом для постоянного проживания или дача.
    back
    Расчёт предварительной стоимости
    Инженер делает первичный расчёт стоимости строительства по вашим параметрам: фундамент, коробка, кровля, отделка. Вы получаете смету с разбивкой по этапам.
    back
    Корректировка и утверждение сметы
    При необходимости вносим изменения — например, замену материалов или сокращение этапов. После согласования формируется окончательная фиксированная смета.
    back
    Заключение договора и старт работ
    После утверждения сметы заключаем официальный договор с гарантией. Вы получаете прозрачный график и точную стоимость — без скрытых расходов.

    Заказать конусльтацию по:Space 101

    Фото 1 Space 101


      Наши
      контакты

      Дмитров
      Опорный проезд 28Б
      (индустриальный парк Ниагара)
      9:00 до 18:00