4.9
Рейтинг на основании 120 отзывов
Дмитров
Опорный проезд 28Б
(индустриальный парк Ниагара)
Бренд "Дмитров-Дело" c 2008 года на рынке строительства в Дмитрове
Звоните 9:00 до 18:00 8 (915) 055-33-61
Бренд "Дмитров-Дело" c 2008 года на рынке строительства в Дмитрове

ССК Самарский О

Стоимость проекта от:
60 300 ₽
БЕСПЛАТНО! ПРИ ЗАКАЗЕ СТРОИТЕЛЬСТВА
Стоимость строительства от:
7 767 980 ₽
Артикул ART-15843
Дата 25.12.2025
Архитектурный стиль Американский/Канадский
Количество надземных этажей 1
Круглогодичное проживание Да
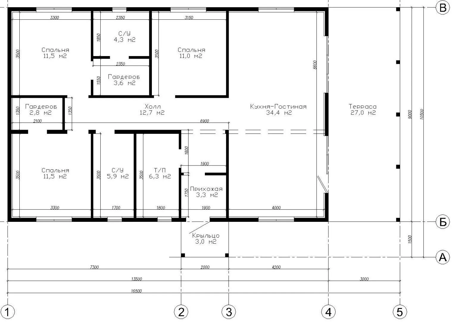
Площадь дома 134 м2
Санузлы 2
Спальни 3

Описание

**Дом «ССК Самарский О» — уют как в сердце Северной Америки, но в тепле вашего района** Этот одиннадцатый дом, выполненный в элегантном американско‑канадском стиле, создан для того, чтобы вы могли наслаждаться комфортом круглый год. Современный двускатный черепичный покров обрамляет деревянные каркасные стены, придавая дому тепло, характер и неповторимый шарм. Благодаря продуманной планировке и продуманной теплоизоляции, в каждом уголке сохраняется приятная теплая атмосфера, даже в самые холодные дни. Забываете о чердаках и гаражах: здесь вы выберите свободу – просторная терраса приглашает к вечерним беседам, пикникам и уютным обедам на свежем воздухе. Нет балконов, но и нет ограничений – можно открыть просторы в любую погоду и наслаждаться видом на аккуратно ухоженный сад. Всё, что нужно, чтобы превратить ваш дом в настоящее семейное гнездо, уже готово: двери открываются в открытый мир, а окна дарят безграничные пространства.

Характеристики дома

Архитектурный стиль
Автоматизированное регулирование параметров теплоносителя
Нет
Балконы/лоджии
Отсутствуют
Чердачное помещение
Нет
Датчики протечки воды
Нет
Эксплуатируемая или зеленая кровля
Нет
Электроснабжение
Центральное
Газоснабжение
Не предусмотрено
Изоляция воздушного шума
Нет
Камин
Нет
Класс энергоэффективности
-
Класс энергосбережения
-
Количество надземных этажей
1
Круглогодичное проживание
Да
Материал кровли
Металлочерепица
Материал перекрытий
Деревянные
Материал внешних стен
Материал внутренних перегородок
Гипсокартонные
Модульное строительство с конструкциями заводского изготовления
Нет
Объем надземной части
-
Основной материал фасадов
Сайдинг
Отопление
Индивидуальное
Площадь дома
134 м2
Площадь застройки
173 м2
Подвальное помещение
Нет
Показатель компактности здания
-
Приборы учета тепловой энергии
Нет
Пристроенный гараж/крытая автостоянка
Нет
Противопожарная система
Нет
Санузлы
2
Совмещенная кухня-гостиная
Да
Спальни
3
Терраса
Да
Тип фундамента
Свайный
Тип кровли
Толщина внешних стен
200 мм
Толщина внутренних перегородок
100 мм
Улучшенные шумовые характеристики
Да
Вентиляция
Естественная
Веранда
Нет
Водоотведение
Локальные очистные сооружения
Водоснабжение
Индивидуальное
Высота дома
5 м
Высота потолков
2.5 м

Планировка

Фасад дома

Александр

Закажите выезд инженера

Александр

Выездной инженер
Закажите выезд инженера для точной диагностики и профессиональной консультации по инженерным системам. Специалист приедет в удобное время, проведёт осмотр, рассчитает стоимость работ и подберёт оптимальные решения для вашего дома.


    Похожие проекты

    Ипотека и
    рассрочка
    КБ-037
    Стоимость от:
    7 031 280
    Проект от: 43 650
    Этажей 2
    Санузлы 2
    Спальни 4
    Смотреть
    Ипотека и
    рассрочка
    Загородный жилой дом №1
    Стоимость от:
    10 107 600
    Проект от: 60 750
    Этажей 2
    Санузлы 3
    Спальни 3
    Смотреть
    Ипотека и
    рассрочка
    Сканди Карелия 164 — Одноэтажный дом Сканди Карелия 164 ВМ
    Стоимость от:
    10 409 080
    Проект от: 73 800
    Этажей 1
    Санузлы 1
    Спальни 3
    Смотреть
    Ипотека и
    рассрочка
    Загородный дом АС-216
    Стоимость от:
    28 223 260
    Проект от: 175 950
    Этажей 3
    Санузлы 2
    Спальни 4
    Смотреть
    Ипотека и
    рассрочка
    Одноэтажный дом Хим
    Стоимость от:
    6 318 730
    Проект от: 49 050
    Этажей 1
    Санузлы 2
    Спальни 3
    Смотреть
    Ипотека и
    рассрочка
    Загородный дом СД130
    Стоимость от:
    9 079 200
    Проект от: 58 500
    Этажей 2
    Санузлы 2
    Спальни 5
    Смотреть

    Как узнать стоимость дома

    back
    Оставляете заявку
    Вы заполняете форму на сайте или звоните нам. Менеджер Лайвкрафт связывается с вами для уточнения деталей: тип дома, площадь, материалы, участок строительства.
    back
    Консультация и подбор решения
    Наш специалист помогает выбрать оптимальный тип дома и конструкцию с учётом бюджета, сроков и целей — будь то дом для постоянного проживания или дача.
    back
    Расчёт предварительной стоимости
    Инженер делает первичный расчёт стоимости строительства по вашим параметрам: фундамент, коробка, кровля, отделка. Вы получаете смету с разбивкой по этапам.
    back
    Корректировка и утверждение сметы
    При необходимости вносим изменения — например, замену материалов или сокращение этапов. После согласования формируется окончательная фиксированная смета.
    back
    Заключение договора и старт работ
    После утверждения сметы заключаем официальный договор с гарантией. Вы получаете прозрачный график и точную стоимость — без скрытых расходов.

    Заказать конусльтацию по:ССК Самарский О

    Фото 1 ССК Самарский О


      Наши
      контакты

      Дмитров
      Опорный проезд 28Б
      (индустриальный парк Ниагара)
      9:00 до 18:00

      Корзина