4.9
Рейтинг на основании 120 отзывов
Дмитров
Опорный проезд 28Б
(индустриальный парк Ниагара)
Бренд "Дмитров-Дело" c 2008 года на рынке строительства в Дмитрове
Звоните 9:00 до 18:00 8 (915) 055-33-61
Бренд "Дмитров-Дело" c 2008 года на рынке строительства в Дмитрове

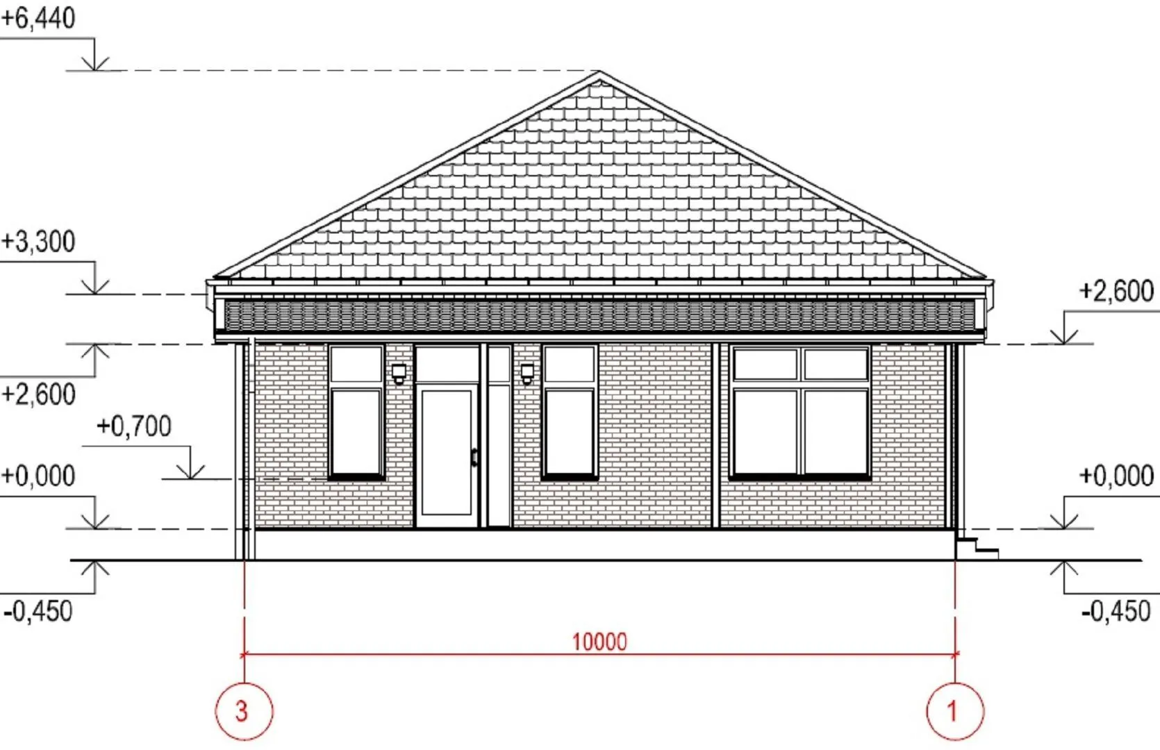
Стандарт-100 ТИП-3

Стоимость проекта от:
49 950 ₽
Стоимость строительства от:
8 340 420 ₽
Артикул ART-14465
Дата 25.12.2025
Архитектурный стиль Классический
Количество надземных этажей 1
Круглогодичное проживание Да
Площадь дома 111 м2
Санузлы 1
Спальни 3

Описание

Вас ждет уютный уголок, где традиционное очарование и современные удобства сливаются воедино. Дом стандарта «Стандарт‑100 ТИП‑3» – это одиннадцатий уровень комфорта: классический архитектурный стиль, гармонично вписанный в любой ландшафт. Его каменные стены из газобетонных блоков дарят устойчивость, тепло и исключительную звукоизоляцию. Четырехскатная (вальмовая) крыша обладает элегантной линией, защищая вас от непогоды и придавая фасаду строгий, но в то же время теплый вид. Круглогодичное проживание – здесь не просто слово, а реальность. Окружающие элементы, от прочных стен до крыши, гарантируют стабильную температуру и комфорт даже в холоднейшие дни. Вместо привычных балконов и веранд, ваш дом предоставляет просторную террасу, где можно наслаждаться рассветом, устроить вечерний барбекю с семьёй или просто отдохнуть с книгой. Просторные комнаты, продуманная планировка и наличие большого открытого пространства внутри позволяют легко организовать домашний офис, игровую площадку для детей и уединённый уголок для тихой медитации. Этот дом – воплощение спокойствия и надежности. Никаких лишних конструкций, никаких сложных систем – только качественный материал, проверенная технология и классический дизайн, который никогда не выходит из моды. Вы инвестируете в качество, которое будет служить вам и вашим близким долгие годы, даря уют и тепло вашей семье.

Характеристики дома

Архитектурный стиль
Классический
Автоматизированное регулирование параметров теплоносителя
Да
Балконы/лоджии
Отсутствуют
Чердачное помещение
Нет
Датчики протечки воды
Да
Эксплуатируемая или зеленая кровля
Нет
Электроснабжение
Центральное
Газоснабжение
Не предусмотрено
Изоляция воздушного шума
Нет
Камин
Нет
Класс энергоэффективности
-
Класс энергосбережения
-
Количество надземных этажей
1
Круглогодичное проживание
Да
Материал кровли
Металлочерепица
Материал перекрытий
Деревянные
Материал внешних стен
Газобетонные блоки
Материал внутренних перегородок
Блочные
Модульное строительство с конструкциями заводского изготовления
Нет
Объем надземной части
644 м3
Основной материал фасадов
Облицовочный кирпич
Отопление
Индивидуальное
Площадь дома
111 м2
Площадь застройки
138 м2
Подвальное помещение
Нет
Показатель компактности здания
-
Приборы учета тепловой энергии
Да
Пристроенный гараж/крытая автостоянка
Нет
Противопожарная система
Нет
Санузлы
1
Совмещенная кухня-гостиная
Да
Спальни
3
Терраса
Да
Тип фундамента
Свайно-ростверковый
Тип кровли
Четырехскатная (вальмовая)
Толщина внешних стен
350 мм
Толщина внутренних перегородок
150 мм
Улучшенные шумовые характеристики
Нет
Вентиляция
Естественная
Веранда
Нет
Водоотведение
Локальные очистные сооружения
Водоснабжение
Индивидуальное
Высота дома
6.44 м
Высота потолков
2.8 м

Планировка

Фасад дома

Александр

Закажите выезд инженера

Александр

Выездной инженер
Закажите выезд инженера для точной диагностики и профессиональной консультации по инженерным системам. Специалист приедет в удобное время, проведёт осмотр, рассчитает стоимость работ и подберёт оптимальные решения для вашего дома.


    Похожие проекты

    Ипотека и
    рассрочка
    Одноэтажный дом Fixplans — 1016
    Стоимость от:
    188 760
    Проект от: 35 100
    Этажей 1
    Санузлы 1
    Спальни 1
    Смотреть
    Ипотека и
    рассрочка
    Family Dream 104.5
    Стоимость от:
    8 277 280
    Проект от: 46 800
    Этажей 1
    Санузлы 2
    Спальни 2
    Смотреть
    Ипотека и
    рассрочка
    Индивидуальный жилой дом площадью 109 м2
    Стоимость от:
    8 674 380
    Проект от: 49 050
    Этажей 1
    Санузлы 2
    Спальни 3
    Смотреть
    Ипотека и
    рассрочка
    Двухэтажный дом «Эльбрус»
    Стоимость от:
    11 221 200
    Проект от: 69 750
    Этажей 2
    Санузлы 2
    Спальни 3
    Смотреть
    Ипотека и
    рассрочка
    89,89кв.м 3 комнаты красный с рустами
    Стоимость от:
    6 494 180
    Проект от: 40 050
    Этажей 1
    Санузлы 2
    Спальни 3
    Смотреть
    Ипотека и
    рассрочка
    Одноэтажный дом со вторым светом в гостиной и кухне
    Стоимость от:
    6 464 920
    Проект от: 38 700
    Этажей 1
    Санузлы 1
    Спальни 2
    Смотреть

    Как узнать стоимость дома

    back
    Оставляете заявку
    Вы заполняете форму на сайте или звоните нам. Менеджер Лайвкрафт связывается с вами для уточнения деталей: тип дома, площадь, материалы, участок строительства.
    back
    Консультация и подбор решения
    Наш специалист помогает выбрать оптимальный тип дома и конструкцию с учётом бюджета, сроков и целей — будь то дом для постоянного проживания или дача.
    back
    Расчёт предварительной стоимости
    Инженер делает первичный расчёт стоимости строительства по вашим параметрам: фундамент, коробка, кровля, отделка. Вы получаете смету с разбивкой по этапам.
    back
    Корректировка и утверждение сметы
    При необходимости вносим изменения — например, замену материалов или сокращение этапов. После согласования формируется окончательная фиксированная смета.
    back
    Заключение договора и старт работ
    После утверждения сметы заключаем официальный договор с гарантией. Вы получаете прозрачный график и точную стоимость — без скрытых расходов.

    Заказать конусльтацию по:Стандарт-100 ТИП-3

    Фото 1 Стандарт-100 ТИП-3


      Наши
      контакты

      Дмитров
      Опорный проезд 28Б
      (индустриальный парк Ниагара)
      9:00 до 18:00