4.9
Рейтинг на основании 120 отзывов
Дмитров
Опорный проезд 28Б
(индустриальный парк Ниагара)
Бренд "Дмитров-Дело" c 2008 года на рынке строительства в Дмитрове
Звоните 9:00 до 18:00 8 (915) 055-33-61
Бренд "Дмитров-Дело" c 2008 года на рынке строительства в Дмитрове

Старая Англия

Стоимость проекта от:
59 400 ₽
БЕСПЛАТНО! ПРИ ЗАКАЗЕ СТРОИТЕЛЬСТВА
Стоимость строительства от:
9 550 080 ₽
Артикул ART-17608
Дата 26.12.2025
Архитектурный стиль Европейский
Количество надземных этажей 2
Круглогодичное проживание Да
Площадь дома 132 м2
Санузлы 2
Спальни 4

Описание

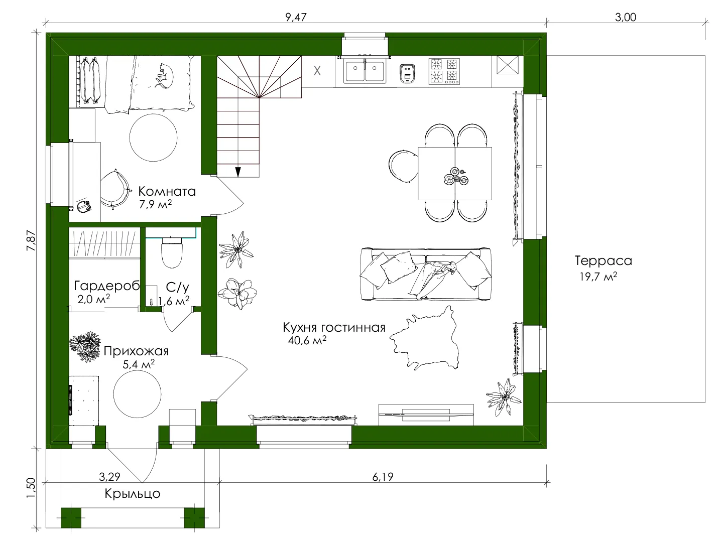
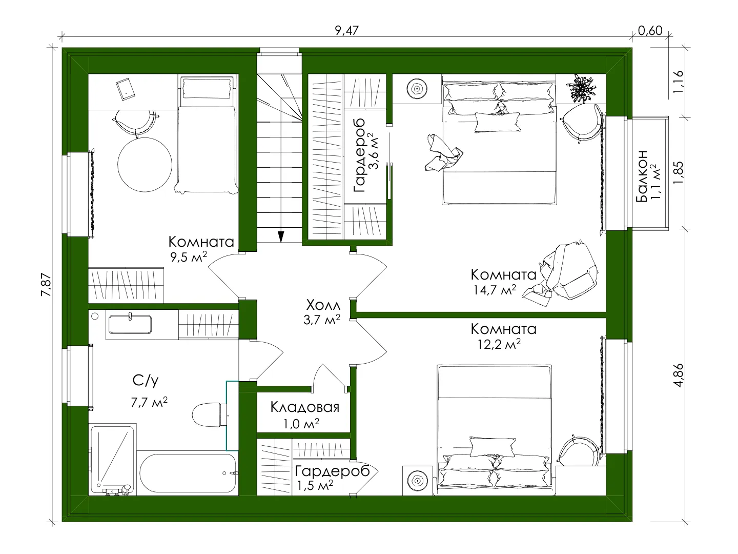
Добро пожаловать в уютный уголок «Старая Англия» – здесь вы окунетесь в атмосферу европейского шика и простого, но продуманного комфорта. Дом распологается на двух выше‑земных уровнях, где каждый уголок дышит свежим воздухом и благоприятными световыми условиями. Сочетание газобетонных блоков и классической двускатной кровли придает строению неповторимую элегантность, а при этом гарантирует теплоизоляцию и долговечность конструкции. Благодаря своей надежной архитектуре и продуманному планированию, здание легко адаптируется под круглогодичное проживание – мягкие зимние ветра и летние лучи солнца найдут здесь свой путь. На первом этаже уютные комнаты и просторная гостиная с балконом приглашают проводить время на свежем воздухе: вы сможете рассмотреть утреннюю росу, закат над горизонтом или просто наслаждаться тишиной улицы. Вдоль задней части дома проложена терраса, где можно располагать столы и лавочки, устраивать семейные барбекю и наблюдать за дикой природой. На втором этаже расположены спальни, оформленные в традиционном европейском стиле, и просторный кабинет, где каждый день начинается с вдохновения. Отсутствие прицепленного гаража или крытой стоянки говорит о продуманном планировании места, где ваш автомобиль будет оставаться в комфортных условиях, а свободное пространство на территории позволит вам организовать сад, мини‑парк или даже небольшой домик для семьи. «Старая Англия» – это идеальное сочетание современного уровня комфорта и классического европейского уюта, которое сделает ваш дом местом, куда хочется возвращаться каждый день. Здесь гармония архитектуры, природной среды и доступных удобств объединяются, чтобы вы смогли почувствовать истинную свободу жизни и уверенность в долгосрочном будущем.

Характеристики дома

Архитектурный стиль
Автоматизированное регулирование параметров теплоносителя
Нет
Балконы/лоджии
1
Чердачное помещение
Нет
Датчики протечки воды
Нет
Эксплуатируемая или зеленая кровля
Нет
Электроснабжение
Центральное
Газоснабжение
Индивидуальное
Изоляция воздушного шума
Нет
Камин
Нет
Класс энергоэффективности
-
Класс энергосбережения
-
Количество надземных этажей
2
Круглогодичное проживание
Да
Материал кровли
Металлочерепица
Материал перекрытий
Сборные железобетонные многопустотные плиты
Материал внешних стен
Материал внутренних перегородок
Блочные
Модульное строительство с конструкциями заводского изготовления
Нет
Объем надземной части
656 м3
Основной материал фасадов
Облицовочный кирпич
Отопление
Индивидуальное
Площадь дома
132 м2
Площадь застройки
99 м2
Подвальное помещение
Нет
Показатель компактности здания
-
Приборы учета тепловой энергии
Нет
Пристроенный гараж/крытая автостоянка
Нет
Противопожарная система
Нет
Санузлы
2
Совмещенная кухня-гостиная
Да
Спальни
4
Терраса
Да
Тип фундамента
Свайно-ростверковый
Тип кровли
Толщина внешних стен
300 мм
Толщина внутренних перегородок
100 мм
Улучшенные шумовые характеристики
Нет
Вентиляция
Естественная
Веранда
Нет
Водоотведение
Локальные очистные сооружения
Водоснабжение
Центральное
Высота дома
8.81 м
Высота потолков
3 м

Планировка

Фасад дома

Александр

Закажите выезд инженера

Александр

Выездной инженер
Закажите выезд инженера для точной диагностики и профессиональной консультации по инженерным системам. Специалист приедет в удобное время, проведёт осмотр, рассчитает стоимость работ и подберёт оптимальные решения для вашего дома.


    Похожие проекты

    Ипотека и
    рассрочка
    Томте
    Стоимость от:
    9 957 420
    Проект от: 63 450
    Этажей 1
    Санузлы 2
    Спальни 4
    Смотреть
    Ипотека и
    рассрочка
    Одноэтажный дом «Бунар»
    Стоимость от:
    4 660 920
    Проект от: 29 700
    Этажей 1
    Санузлы 1
    Спальни 1
    Смотреть
    Ипотека и
    рассрочка
    Компактный коттедж «Форт-Нокс»
    Стоимость от:
    5 028 480
    Проект от: 32 400
    Этажей 2
    Санузлы 2
    Спальни 2
    Смотреть
    Ипотека и
    рассрочка
    ЛЕСНЫЕ ПРОСТОРЫ
    Стоимость от:
    9 989 540
    Проект от: 61 650
    Этажей 1
    Санузлы 2
    Спальни 3
    Смотреть
    Ипотека и
    рассрочка
    Хютте 116
    Стоимость от:
    7 899 600
    Проект от: 51 750
    Этажей 2
    Санузлы 2
    Спальни 3
    Смотреть
    Ипотека и
    рассрочка
    Загородный капитальный ДОМ «Поленово-2»
    Стоимость от:
    5 268 340
    Проект от: 34 650
    Этажей 1
    Санузлы 1
    Спальни 2
    Смотреть

    Как узнать стоимость дома

    back
    Оставляете заявку
    Вы заполняете форму на сайте или звоните нам. Менеджер Лайвкрафт связывается с вами для уточнения деталей: тип дома, площадь, материалы, участок строительства.
    back
    Консультация и подбор решения
    Наш специалист помогает выбрать оптимальный тип дома и конструкцию с учётом бюджета, сроков и целей — будь то дом для постоянного проживания или дача.
    back
    Расчёт предварительной стоимости
    Инженер делает первичный расчёт стоимости строительства по вашим параметрам: фундамент, коробка, кровля, отделка. Вы получаете смету с разбивкой по этапам.
    back
    Корректировка и утверждение сметы
    При необходимости вносим изменения — например, замену материалов или сокращение этапов. После согласования формируется окончательная фиксированная смета.
    back
    Заключение договора и старт работ
    После утверждения сметы заключаем официальный договор с гарантией. Вы получаете прозрачный график и точную стоимость — без скрытых расходов.

    Заказать конусльтацию по:Старая Англия

    Фото 1 Старая Англия


      Наши
      контакты

      Дмитров
      Опорный проезд 28Б
      (индустриальный парк Ниагара)
      9:00 до 18:00

      Корзина