4.9
Рейтинг на основании 120 отзывов
Дмитров
Опорный проезд 28Б
(индустриальный парк Ниагара)
Бренд "Дмитров-Дело" c 2008 года на рынке строительства в Дмитрове
Звоните 9:00 до 18:00 8 (915) 055-33-61
Бренд "Дмитров-Дело" c 2008 года на рынке строительства в Дмитрове

Старые Туймазы 130м2

Стоимость проекта от:
51 300 ₽
БЕСПЛАТНО! ПРИ ЗАКАЗЕ СТРОИТЕЛЬСТВА
Стоимость строительства от:
8 565 480 ₽
Артикул ART-17960
Дата 26.12.2025
Архитектурный стиль Классический
Количество надземных этажей 1
Круглогодичное проживание Да
Площадь дома 114 м2
Санузлы 1
Спальни 3

Описание

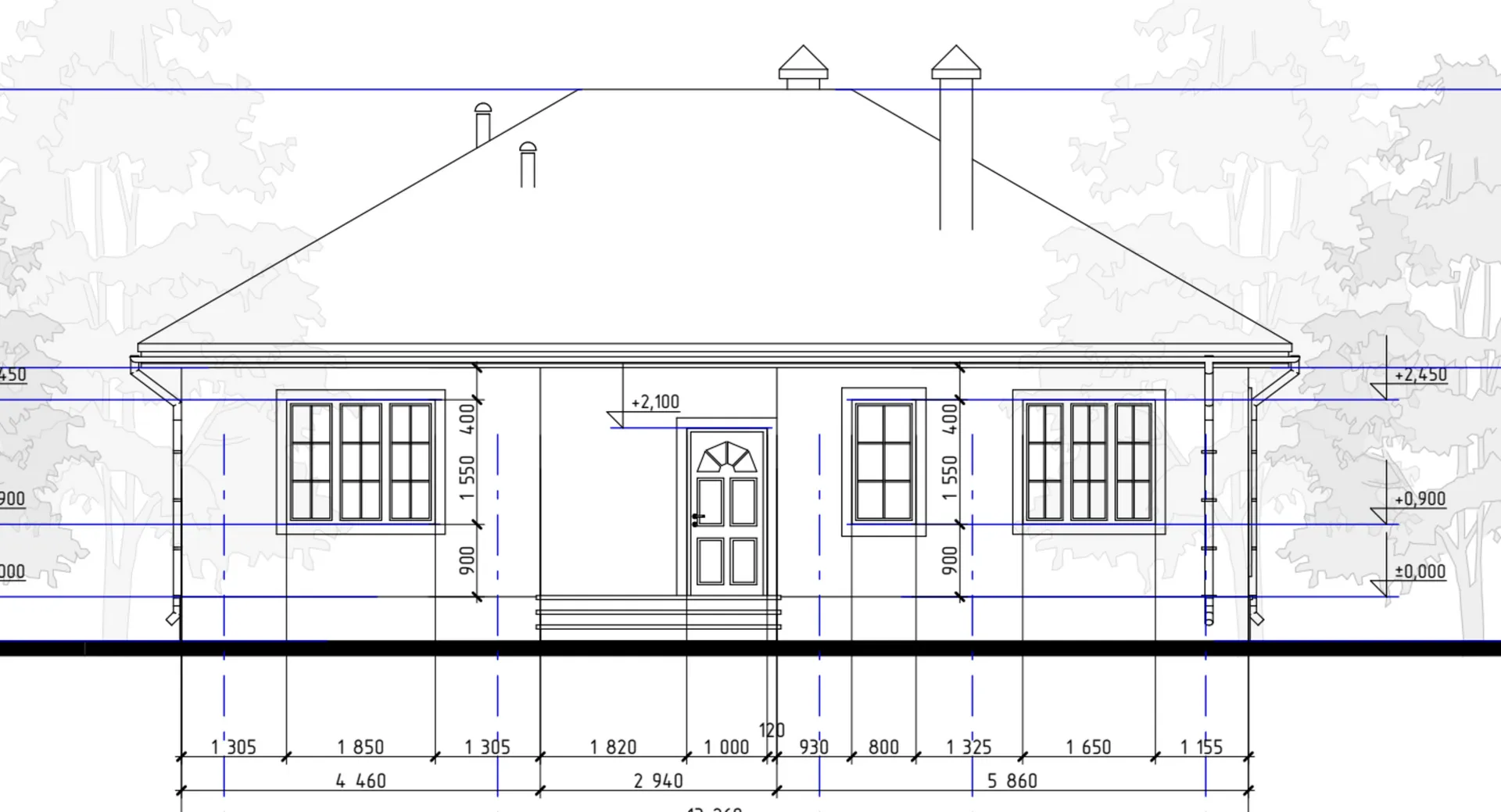
В сердце живописного поселка **Старые Туймазы** расположился уютный одноэтажный дом площадью 130 м², который сочетает в себе неповторимую классическую элегантность и комфорт современного жилья. Его внешняя оболочка из керамзитобетонных блоков подчёркивает прочность и теплоизоляцию, позволяя наслаждаться приятной температурой в любой сезон – от тепла летних дней до уюта зимних вечеров. Фасад украшен нежными декоративными элементами, которые придают дому особую изысканность и делают его настоящим гостеприимным уголком для семейных встреч. Главной «хвостовой» особенностью этого дома является просторная веранда и солнечная терраса, где можно проводить часы, обмениваясь воспоминаниями и создавая новые мгновения. Просторные внутренние помещения, обустроенные в классическом стиле, отражают гармонию между традицией и современностью: мягкие световые потоки, благородные материалы и продуманные детали делают каждую комнату идеальным местом для отдыха и развлечений. Отсутствие балконов и лоджий придаёт дому уютный вид, а отсутствие чердака упрощает обслуживание, сохраняя при этом чистый и открытый интерьер. Дом в Старых Туймазах – это идеальное сочетание уюта, практичности и архитектурного вкуса. Он создан с любовью к деталям, обеспечивает круглогодичный комфорт, а его веранда и терраса приглашают гостей и близких к бесконечным семейным праздникам и тихим, уютным вечерам. Если вы ищете дом, где каждая стена хранит тепло, а каждый уголок вдохновляет на новые свершения – этот уютный уголок точно для вас.

Характеристики дома

Архитектурный стиль
Автоматизированное регулирование параметров теплоносителя
Нет
Балконы/лоджии
Отсутствуют
Чердачное помещение
Нет
Датчики протечки воды
Нет
Эксплуатируемая или зеленая кровля
Нет
Электроснабжение
Центральное
Газоснабжение
Центральное
Изоляция воздушного шума
Нет
Камин
Нет
Класс энергоэффективности
-
Класс энергосбережения
-
Количество надземных этажей
1
Круглогодичное проживание
Да
Материал кровли
Металлочерепица
Материал перекрытий
Деревянные
Материал внешних стен
Материал внутренних перегородок
Кирпичные
Модульное строительство с конструкциями заводского изготовления
Нет
Объем надземной части
-
Основной материал фасадов
Штукатурка
Отопление
Индивидуальное
Площадь дома
114 м2
Площадь застройки
168 м2
Подвальное помещение
Нет
Показатель компактности здания
-
Приборы учета тепловой энергии
Нет
Пристроенный гараж/крытая автостоянка
Нет
Противопожарная система
Нет
Санузлы
1
Совмещенная кухня-гостиная
Да
Спальни
3
Терраса
Да
Тип фундамента
Свайно-ростверковый
Толщина внешних стен
400 мм
Толщина внутренних перегородок
120 мм
Улучшенные шумовые характеристики
Нет
Вентиляция
Естественная
Веранда
Да
Водоотведение
Локальные очистные сооружения
Водоснабжение
Индивидуальное
Высота дома
5.5 м
Высота потолков
2.8 м

Планировка

Фасад дома

Александр

Закажите выезд инженера

Александр

Выездной инженер
Закажите выезд инженера для точной диагностики и профессиональной консультации по инженерным системам. Специалист приедет в удобное время, проведёт осмотр, рассчитает стоимость работ и подберёт оптимальные решения для вашего дома.


    Похожие проекты

    Ипотека и
    рассрочка
    Дом Асия
    Стоимость от:
    3 893 460
    Проект от: 29 250
    Этажей 2
    Санузлы 1
    Спальни 1
    Смотреть
    Ипотека и
    рассрочка
    Каркасный дом Адаль 80
    Стоимость от:
    4 797 815
    Проект от: 37 350
    Этажей 1
    Санузлы 1
    Спальни 2
    Смотреть
    Ипотека и
    рассрочка
    Франко 81
    Стоимость от:
    5 100 480
    Проект от: 28 800
    Этажей 1
    Санузлы 2
    Спальни 4
    Смотреть
    Ипотека и
    рассрочка
    Двухэтажный дом Швеция 150
    Стоимость от:
    12 041 640
    Проект от: 83 700
    Этажей 2
    Санузлы 3
    Спальни 3
    Смотреть
    Ипотека и
    рассрочка
    Ризон
    Стоимость от:
    200 860
    Проект от: 37 350
    Этажей 1
    Санузлы 1
    Спальни 3
    Смотреть
    Ипотека и
    рассрочка
    Лагуна Парк
    Стоимость от:
    17 583 940
    Проект от: 115 650
    Этажей 1
    Санузлы 3
    Спальни 3
    Смотреть

    Как узнать стоимость дома

    back
    Оставляете заявку
    Вы заполняете форму на сайте или звоните нам. Менеджер Лайвкрафт связывается с вами для уточнения деталей: тип дома, площадь, материалы, участок строительства.
    back
    Консультация и подбор решения
    Наш специалист помогает выбрать оптимальный тип дома и конструкцию с учётом бюджета, сроков и целей — будь то дом для постоянного проживания или дача.
    back
    Расчёт предварительной стоимости
    Инженер делает первичный расчёт стоимости строительства по вашим параметрам: фундамент, коробка, кровля, отделка. Вы получаете смету с разбивкой по этапам.
    back
    Корректировка и утверждение сметы
    При необходимости вносим изменения — например, замену материалов или сокращение этапов. После согласования формируется окончательная фиксированная смета.
    back
    Заключение договора и старт работ
    После утверждения сметы заключаем официальный договор с гарантией. Вы получаете прозрачный график и точную стоимость — без скрытых расходов.

    Заказать конусльтацию по:Старые Туймазы 130м2

    Фото 1 Старые Туймазы 130м2


      Наши
      контакты

      Дмитров
      Опорный проезд 28Б
      (индустриальный парк Ниагара)
      9:00 до 18:00

      Корзина