4.9
Рейтинг на основании 120 отзывов
Дмитров
Опорный проезд 28Б
(индустриальный парк Ниагара)
Бренд "Дмитров-Дело" c 2008 года на рынке строительства в Дмитрове
Звоните 9:00 до 18:00 8 (915) 055-33-61
Бренд "Дмитров-Дело" c 2008 года на рынке строительства в Дмитрове

Статус 8х9 Базис

Стоимость проекта от:
50 400 ₽
Стоимость строительства от:
6 703 200 ₽
Артикул ART-16516
Дата 26.12.2025
Архитектурный стиль Европейский
Количество надземных этажей 2
Круглогодичное проживание Да
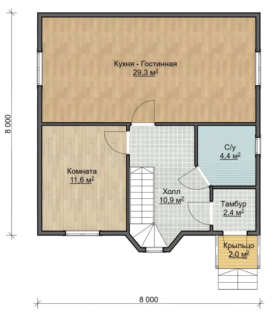
Площадь дома 112 м2
Санузлы 2
Спальни 4

Описание

Уютный двухэтажный дом **«8х9 Базис»** — это идеальное решение для тех, кто ценит комфорт, тепло и классический европейский стиль в современном исполнении. Дом сочетает в себе элегантную простоту фасада, выполненного из качественного деревянного каркаса, и практичное планирование: два надземных этажа разделяют пространство на уютную гостиную, полноценную кухню, несколько светлых комнат и спальные зоны, где каждый сможет найти свой уголок покоя. Двускатная крыша добавляет традиционный шарм, а внутренняя отделка с теплыми нюансами делает атмосферу максимально домашней. Базис предназначен для круглогодичного проживания. Внутренние коммуникации и вентиляция продуманы так, чтобы в любой сезон чувствовалось приятное тепло и свежесть. Несмотря на отсутствие балконов, веранды и гаража, дома хватало места: просторная гостиная, светлая кухня, уютные спальни и комфортабельные санузлы создают идеальный баланс. Чистый немецко-европейский вкус, яркие световые потоки и возможность персональной адаптации интерьера позволят вам превратить его в личный оазис, где каждый вечер будет напоминать об уютных семейных традициях. Ваша новая жизнь в доме «8х9 Базис» — это уверенность в гармонии, надежность и простота, которые будут вдохновлять вас каждый день.

Характеристики дома

Архитектурный стиль
Европейский
Автоматизированное регулирование параметров теплоносителя
Нет
Балконы/лоджии
Отсутствуют
Чердачное помещение
Нет
Датчики протечки воды
Нет
Эксплуатируемая или зеленая кровля
Нет
Электроснабжение
Индивидуальное
Газоснабжение
Не предусмотрено
Изоляция воздушного шума
Нет
Камин
Нет
Класс энергоэффективности
-
Класс энергосбережения
-
Количество надземных этажей
2
Круглогодичное проживание
Да
Материал кровли
Металлочерепица
Материал перекрытий
Деревянные
Материал внешних стен
Деревянные каркасные
Материал внутренних перегородок
Деревянные
Модульное строительство с конструкциями заводского изготовления
Нет
Объем надземной части
-
Основной материал фасадов
Сайдинг
Отопление
Индивидуальное
Площадь дома
112 м2
Площадь застройки
93 м2
Подвальное помещение
Нет
Показатель компактности здания
-
Приборы учета тепловой энергии
Нет
Пристроенный гараж/крытая автостоянка
Нет
Противопожарная система
Нет
Санузлы
2
Совмещенная кухня-гостиная
Да
Спальни
4
Терраса
Нет
Тип фундамента
Свайно-винтовой
Тип кровли
Двускатная
Толщина внешних стен
245 мм
Толщина внутренних перегородок
122 мм
Улучшенные шумовые характеристики
Нет
Вентиляция
Естественная
Веранда
Нет
Водоотведение
Локальные очистные сооружения
Водоснабжение
Индивидуальное
Высота дома
-
Высота потолков
2.5 м

Планировка

Фасад дома

Александр

Закажите выезд инженера

Александр

Выездной инженер
Закажите выезд инженера для точной диагностики и профессиональной консультации по инженерным системам. Специалист приедет в удобное время, проведёт осмотр, рассчитает стоимость работ и подберёт оптимальные решения для вашего дома.


    Похожие проекты

    Ипотека и
    рассрочка
    NODO-87. Одноэтажный жилой дом с крыльцом
    Стоимость от:
    6 539 940
    Проект от: 39 150
    Этажей 1
    Санузлы 3
    Спальни 3
    Смотреть
    Ипотека и
    рассрочка
    «Куусамо» большой классический скандинавский дом
    Стоимость от:
    12 528 600
    Проект от: 85 500
    Этажей 2
    Санузлы 2
    Спальни 3
    Смотреть
    Ипотека и
    рассрочка
    БД 115
    Стоимость от:
    8 121 300
    Проект от: 51 750
    Этажей 1
    Санузлы 1
    Спальни 3
    Смотреть
    Ипотека и
    рассрочка
    Одноэтажный дом из профилированного бруса
    Стоимость от:
    6 014 800
    Проект от: 36 000
    Этажей 1
    Санузлы 1
    Спальни 2
    Смотреть
    Ипотека и
    рассрочка
    GEO 48
    Стоимость от:
    4 892 140
    Проект от: 30 150
    Этажей 1
    Санузлы 1
    Спальни 2
    Смотреть
    Ипотека и
    рассрочка
    Одноэтажный дом «Давраз»
    Стоимость от:
    227 480
    Проект от: 42 300
    Этажей 1
    Санузлы 1
    Спальни 3
    Смотреть

    Как узнать стоимость дома

    back
    Оставляете заявку
    Вы заполняете форму на сайте или звоните нам. Менеджер Лайвкрафт связывается с вами для уточнения деталей: тип дома, площадь, материалы, участок строительства.
    back
    Консультация и подбор решения
    Наш специалист помогает выбрать оптимальный тип дома и конструкцию с учётом бюджета, сроков и целей — будь то дом для постоянного проживания или дача.
    back
    Расчёт предварительной стоимости
    Инженер делает первичный расчёт стоимости строительства по вашим параметрам: фундамент, коробка, кровля, отделка. Вы получаете смету с разбивкой по этапам.
    back
    Корректировка и утверждение сметы
    При необходимости вносим изменения — например, замену материалов или сокращение этапов. После согласования формируется окончательная фиксированная смета.
    back
    Заключение договора и старт работ
    После утверждения сметы заключаем официальный договор с гарантией. Вы получаете прозрачный график и точную стоимость — без скрытых расходов.

    Заказать конусльтацию по:Статус 8х9 Базис

    Фото 1 Статус 8х9 Базис


      Наши
      контакты

      Дмитров
      Опорный проезд 28Б
      (индустриальный парк Ниагара)
      9:00 до 18:00