4.9
Рейтинг на основании 120 отзывов
Дмитров
Опорный проезд 28Б
(индустриальный парк Ниагара)
Бренд "Дмитров-Дело" c 2008 года на рынке строительства в Дмитрове
Звоните 9:00 до 18:00 8 (915) 055-33-61
Бренд "Дмитров-Дело" c 2008 года на рынке строительства в Дмитрове

СТИЛЬ

Стоимость проекта от:
75 150 ₽
БЕСПЛАТНО! ПРИ ЗАКАЗЕ СТРОИТЕЛЬСТВА
Стоимость строительства от:
11 670 480 ₽
Артикул ART-16774
Дата 26.12.2025
Архитектурный стиль Классический
Количество надземных этажей 2
Круглогодичное проживание Да
Площадь дома 167 м2
Санузлы 2
Спальни 4

Описание

В сердце тихого, но живого района находится дваэтажное особняковое резиденция, выполненная в строгом классическом стиле. Здесь каждый элемент архитектуры – от гладкой облицовки до тщательно отложенной двойной чердкой кровли – пронизан элегантностью и практичностью. С полистиролбетоном наружных стен вы чувствуете тепло и уют, а простор внутри позволяет вам легко обустроить пространство по своему вкусу. Дом рассчитан на круглогодичную комфортную жизнь: внутренний климата контроль, а изогнутый кромка крыши обуславливает тихий и защищенный интерьер. Отдельно стоит отметить наличие чердачного помещения – идеальное место для хранения сезонного инвентаря или для превращения в уютный уголок творчества. Величественная терраса приглашает на вечерние посиделки, где вы можете наслаждаться закаты над спокойным садом. Без лишних балконов и веранды, каждый уголок дома наполнен светом и гармонией. Благодаря отсутствию пристроенного гаража и автозаложения, участок остается открытым и воздушным, создавая впечатление простора и свободы. Всё это — сочетание эстетики, функциональности и современного удобства, которое сделает ваш дом местом, где хочется возвращаться снова и снова.

Характеристики дома

Архитектурный стиль
Автоматизированное регулирование параметров теплоносителя
Нет
Балконы/лоджии
Отсутствуют
Чердачное помещение
Да
Датчики протечки воды
Нет
Эксплуатируемая или зеленая кровля
Нет
Электроснабжение
Не предусмотрено
Газоснабжение
Не предусмотрено
Изоляция воздушного шума
Нет
Камин
Нет
Класс энергоэффективности
-
Класс энергосбережения
-
Количество надземных этажей
2
Круглогодичное проживание
Да
Материал кровли
Металлочерепица
Материал перекрытий
Сборные железобетонные
Материал внешних стен
Материал внутренних перегородок
Модульное строительство с конструкциями заводского изготовления
Нет
Объем надземной части
821 м3
Основной материал фасадов
Штукатурка
Отопление
Не предусмотрено
Площадь дома
167 м2
Площадь застройки
112 м2
Подвальное помещение
Нет
Показатель компактности здания
-
Приборы учета тепловой энергии
Нет
Пристроенный гараж/крытая автостоянка
Нет
Противопожарная система
Нет
Санузлы
2
Совмещенная кухня-гостиная
Да
Спальни
4
Терраса
Да
Тип фундамента
Плитный
Тип кровли
Толщина внешних стен
300 мм
Толщина внутренних перегородок
300 мм
Улучшенные шумовые характеристики
Нет
Вентиляция
Естественная
Веранда
Нет
Водоотведение
Не предусмотрено
Водоснабжение
Не предусмотрено
Высота дома
7.3 м
Высота потолков
3 м

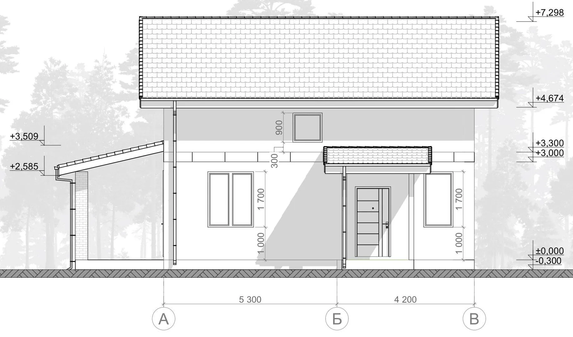
Планировка

Фасад дома

Александр

Закажите выезд инженера

Александр

Выездной инженер
Закажите выезд инженера для точной диагностики и профессиональной консультации по инженерным системам. Специалист приедет в удобное время, проведёт осмотр, рассчитает стоимость работ и подберёт оптимальные решения для вашего дома.


    Похожие проекты

    Ипотека и
    рассрочка
    Двухэтажное Шале 220м2
    Стоимость от:
    580 800
    Проект от: 99 000
    Этажей 2
    Санузлы 3
    Спальни 5
    Смотреть
    Ипотека и
    рассрочка
    Загородный дом АС-206
    Стоимость от:
    8 050 680
    Проект от: 51 300
    Этажей 1
    Санузлы 2
    Спальни 3
    Смотреть
    Ипотека и
    рассрочка
    Одноэтажный дом с двумя большими спальнями КБ81
    Стоимость от:
    6 089 820
    Проект от: 36 450
    Этажей 1
    Санузлы 2
    Спальни 2
    Смотреть
    Ипотека и
    рассрочка
    Домокомплект 60
    Стоимость от:
    5 063 080
    Проект от: 33 300
    Этажей 1
    Санузлы 1
    Спальни 2
    Смотреть
    Ипотека и
    рассрочка
    «Страндхьем»(Прибрежный дом норв.) — просторный дом с тремя спальнями
    Стоимость от:
    9 330 090
    Проект от: 66 150
    Этажей 1
    Санузлы 2
    Спальни 3
    Смотреть
    Ипотека и
    рассрочка
    Загородный дом Химос 2
    Стоимость от:
    4 696 780
    Проект от: 33 300
    Этажей 1
    Санузлы 1
    Спальни 2
    Смотреть

    Как узнать стоимость дома

    back
    Оставляете заявку
    Вы заполняете форму на сайте или звоните нам. Менеджер Лайвкрафт связывается с вами для уточнения деталей: тип дома, площадь, материалы, участок строительства.
    back
    Консультация и подбор решения
    Наш специалист помогает выбрать оптимальный тип дома и конструкцию с учётом бюджета, сроков и целей — будь то дом для постоянного проживания или дача.
    back
    Расчёт предварительной стоимости
    Инженер делает первичный расчёт стоимости строительства по вашим параметрам: фундамент, коробка, кровля, отделка. Вы получаете смету с разбивкой по этапам.
    back
    Корректировка и утверждение сметы
    При необходимости вносим изменения — например, замену материалов или сокращение этапов. После согласования формируется окончательная фиксированная смета.
    back
    Заключение договора и старт работ
    После утверждения сметы заключаем официальный договор с гарантией. Вы получаете прозрачный график и точную стоимость — без скрытых расходов.

    Заказать конусльтацию по:СТИЛЬ

    Фото 1 СТИЛЬ


      Наши
      контакты

      Дмитров
      Опорный проезд 28Б
      (индустриальный парк Ниагара)
      9:00 до 18:00

      Корзина