4.9
Рейтинг на основании 120 отзывов
Дмитров
Опорный проезд 28Б
(индустриальный парк Ниагара)
Бренд "Дмитров-Дело" c 2008 года на рынке строительства в Дмитрове
Звоните 9:00 до 18:00 8 (915) 055-33-61
Бренд "Дмитров-Дело" c 2008 года на рынке строительства в Дмитрове

Танхаус

Стоимость проекта от:
109 800 ₽
БЕСПЛАТНО! ПРИ ЗАКАЗЕ СТРОИТЕЛЬСТВА
Стоимость строительства от:
16 748 160 ₽
Артикул ART-4920
Дата 26.12.2025
Архитектурный стиль Минимализм
Количество надземных этажей 2
Круглогодичное проживание Да
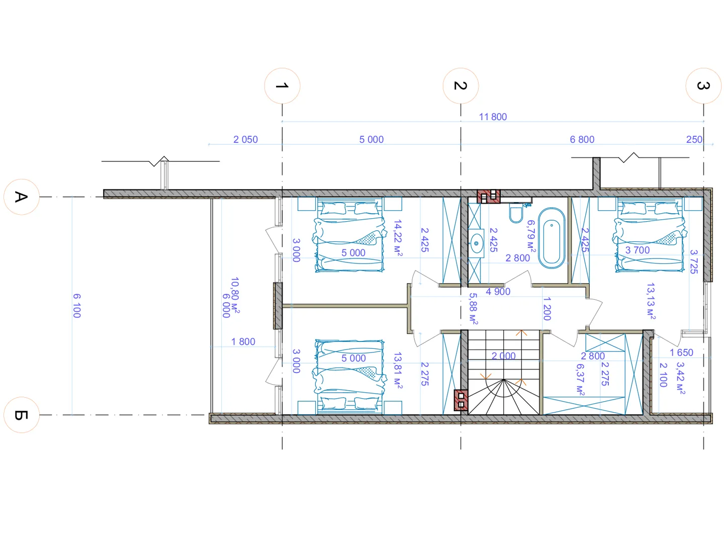
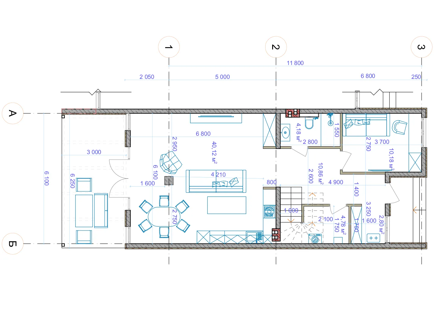
Площадь дома 244 м2
Санузлы 5
Спальни 10

Описание

Насладитесь элегантностью простоты в нашем двухэтажном таунхаусе, где минимализм становится живой и функциональной реальностью. В каждом уголке витает свет и свобода — просторные балконы и терраса открывают вид на живописные ландшафты, а чердачное помещение приглашает воплотить в жизнь любые креативные проекты. С утеплёнными газобетонными блоками, плоской крышей и продуманной планировкой вам гарантированы комфорт и экономичность: круглогодичное проживание становится удовольствием, а тепло сохраняется без лишних затрат. Каждое помещение пропитано легкостью и открытостью. Тонкая линия архитектуры подчёркнута отсутствием лишних деталей: веранда отсутствует, а нет нужды в прицепах — ваш стиль жизни полностью автономен. Вместо гаража наш дом предлагает чистую, свободную площадь, где вы можете развивать свои творческие идеи. Забудьте о беспорядке и насладитесь гармонией простых форм, которые открывают перед вами новые горизонты комфорта и эстетики.

Характеристики дома

Архитектурный стиль
Автоматизированное регулирование параметров теплоносителя
-
Балконы/лоджии
5
Чердачное помещение
Да
Датчики протечки воды
-
Эксплуатируемая или зеленая кровля
-
Электроснабжение
Центральное
Газоснабжение
Не предусмотрено
Изоляция воздушного шума
-
Камин
Нет
Класс энергоэффективности
-
Класс энергосбережения
-
Количество надземных этажей
2
Круглогодичное проживание
Да
Материал кровли
Плитка
Материал перекрытий
Монолитные железобетонные
Материал внешних стен
Материал внутренних перегородок
Монолитные
Модульное строительство с конструкциями заводского изготовления
Нет
Объем надземной части
1464 м3
Основной материал фасадов
Штукатурка
Отопление
Индивидуальное
Площадь дома
244 м2
Площадь застройки
244 м2
Подвальное помещение
Нет
Показатель компактности здания
-
Приборы учета тепловой энергии
-
Пристроенный гараж/крытая автостоянка
Нет
Противопожарная система
Нет
Санузлы
5
Совмещенная кухня-гостиная
Нет
Спальни
10
Терраса
Да
Тип фундамента
Плитный
Тип кровли
Толщина внешних стен
400 мм
Толщина внутренних перегородок
120 мм
Улучшенные шумовые характеристики
-
Вентиляция
Принудительная
Веранда
Нет
Водоотведение
Локальные очистные сооружения
Водоснабжение
Индивидуальное
Высота дома
5.6 м
Высота потолков
2.4 м

Планировка

Фасад дома

Александр

Закажите выезд инженера

Александр

Выездной инженер
Закажите выезд инженера для точной диагностики и профессиональной консультации по инженерным системам. Специалист приедет в удобное время, проведёт осмотр, рассчитает стоимость работ и подберёт оптимальные решения для вашего дома.


    Похожие проекты

    Ипотека и
    рассрочка
    Загородный дом «Родионово»
    Стоимость от:
    9 242 530
    Проект от: 65 700
    Этажей 1
    Санузлы 3
    Спальни 3
    Смотреть
    Ипотека и
    рассрочка
    Одноэтажный дом «Индивидуальный проект»
    Стоимость от:
    13 216 720
    Проект от: 79 200
    Этажей 1
    Санузлы 2
    Спальни 4
    Смотреть
    Ипотека и
    рассрочка
    Двухэтажный дом с пристроенным гаражом ДМ-02
    Стоимость от:
    8 102 760
    Проект от: 55 350
    Этажей 2
    Санузлы 2
    Спальни 4
    Смотреть
    Ипотека и
    рассрочка
    Модерн-72
    Стоимость от:
    4 664 440
    Проект от: 27 900
    Этажей 1
    Санузлы 1
    Спальни 2
    Смотреть
    Ипотека и
    рассрочка
    Одноэтажный дом Fixplans — 0809
    Стоимость от:
    9 463 080
    Проект от: 60 300
    Этажей 1
    Санузлы 2
    Спальни 3
    Смотреть
    Ипотека и
    рассрочка
    «Долженко»
    Стоимость от:
    6 822 900
    Проект от: 51 300
    Этажей 2
    Санузлы 2
    Спальни 5
    Смотреть

    Как узнать стоимость дома

    back
    Оставляете заявку
    Вы заполняете форму на сайте или звоните нам. Менеджер Лайвкрафт связывается с вами для уточнения деталей: тип дома, площадь, материалы, участок строительства.
    back
    Консультация и подбор решения
    Наш специалист помогает выбрать оптимальный тип дома и конструкцию с учётом бюджета, сроков и целей — будь то дом для постоянного проживания или дача.
    back
    Расчёт предварительной стоимости
    Инженер делает первичный расчёт стоимости строительства по вашим параметрам: фундамент, коробка, кровля, отделка. Вы получаете смету с разбивкой по этапам.
    back
    Корректировка и утверждение сметы
    При необходимости вносим изменения — например, замену материалов или сокращение этапов. После согласования формируется окончательная фиксированная смета.
    back
    Заключение договора и старт работ
    После утверждения сметы заключаем официальный договор с гарантией. Вы получаете прозрачный график и точную стоимость — без скрытых расходов.

    Заказать конусльтацию по:Танхаус

    Фото 1 Танхаус


      Наши
      контакты

      Дмитров
      Опорный проезд 28Б
      (индустриальный парк Ниагара)
      9:00 до 18:00

      Корзина