4.9
Рейтинг на основании 120 отзывов
Дмитров
Опорный проезд 28Б
(индустриальный парк Ниагара)
Бренд "Дмитров-Дело" c 2008 года на рынке строительства в Дмитрове
Звоните 9:00 до 18:00 8 (915) 055-33-61
Бренд "Дмитров-Дело" c 2008 года на рынке строительства в Дмитрове

ТН-205

Стоимость проекта от:
115 200 ₽
БЕСПЛАТНО! ПРИ ЗАКАЗЕ СТРОИТЕЛЬСТВА
Стоимость строительства от:
16 573 440 ₽
Артикул ART-10644
Дата 25.12.2025
Архитектурный стиль Европейский
Количество надземных этажей 2
Круглогодичное проживание Да
Площадь дома 256 м2
Санузлы 3
Спальни 5

Описание

**ТН‑205 — уютный уголок современного европейского интерьера** Этот двухэтажный дом в классическом европейском стиле сочетает в себе лаконичную элегантность и практичность. Понимание потребностей современных семей отразилось в каждом уголке: от удобной двухкомнатной планировки до пространства, где можно устроить семейный уют. Внутренняя планировка продумана так, чтобы каждая комната наполнялась светом и воздухом, а просторный коридор приглашает в мир гармонии и комфорта. Круглогодичное проживание в ТН‑205 гарантирует стабильность и комфорт независимо от погоды. Специализированная каркасно‑панельная технология обеспечивает надежную защиту от холода и влаги, а комбинированная крыша защищает от дождя и снега, позволяя семье чувствовать себя умиротворенно и безопасно. Пристроенный гараж и крытая автостоянка предоставляют удобство и защиту вашего автомобиля, а просторная терраса, где можно загорать и устраивать барбекю, создаёт дополнительное открытое пространство для отдыха. Дом ТН‑205 — это идеальное сочетание современного дизайна, практичности и удобства. Он откроет перед вами двери в мир спокойствия и уюта, даря каждой семье возможности для совместного роста, творчества и общения. Пригласите своих близких в новый дом, где каждый день будет наполнен светом, теплом и уютом.

Характеристики дома

Архитектурный стиль
Автоматизированное регулирование параметров теплоносителя
Нет
Балконы/лоджии
Отсутствуют
Чердачное помещение
Нет
Датчики протечки воды
Нет
Эксплуатируемая или зеленая кровля
Нет
Электроснабжение
Центральное
Газоснабжение
Не предусмотрено
Изоляция воздушного шума
Нет
Камин
Нет
Класс энергоэффективности
-
Класс энергосбережения
-
Количество надземных этажей
2
Круглогодичное проживание
Да
Материал кровли
Фальцевая кровля Кликфальц
Материал перекрытий
Деревянные
Материал внешних стен
Материал внутренних перегородок
Деревянные
Модульное строительство с конструкциями заводского изготовления
Да
Объем надземной части
-
Основной материал фасадов
Штукатурка
Отопление
Индивидуальное
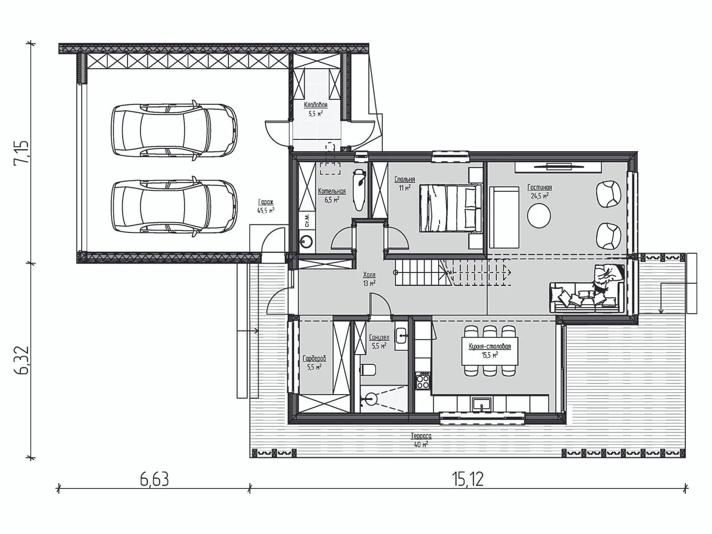
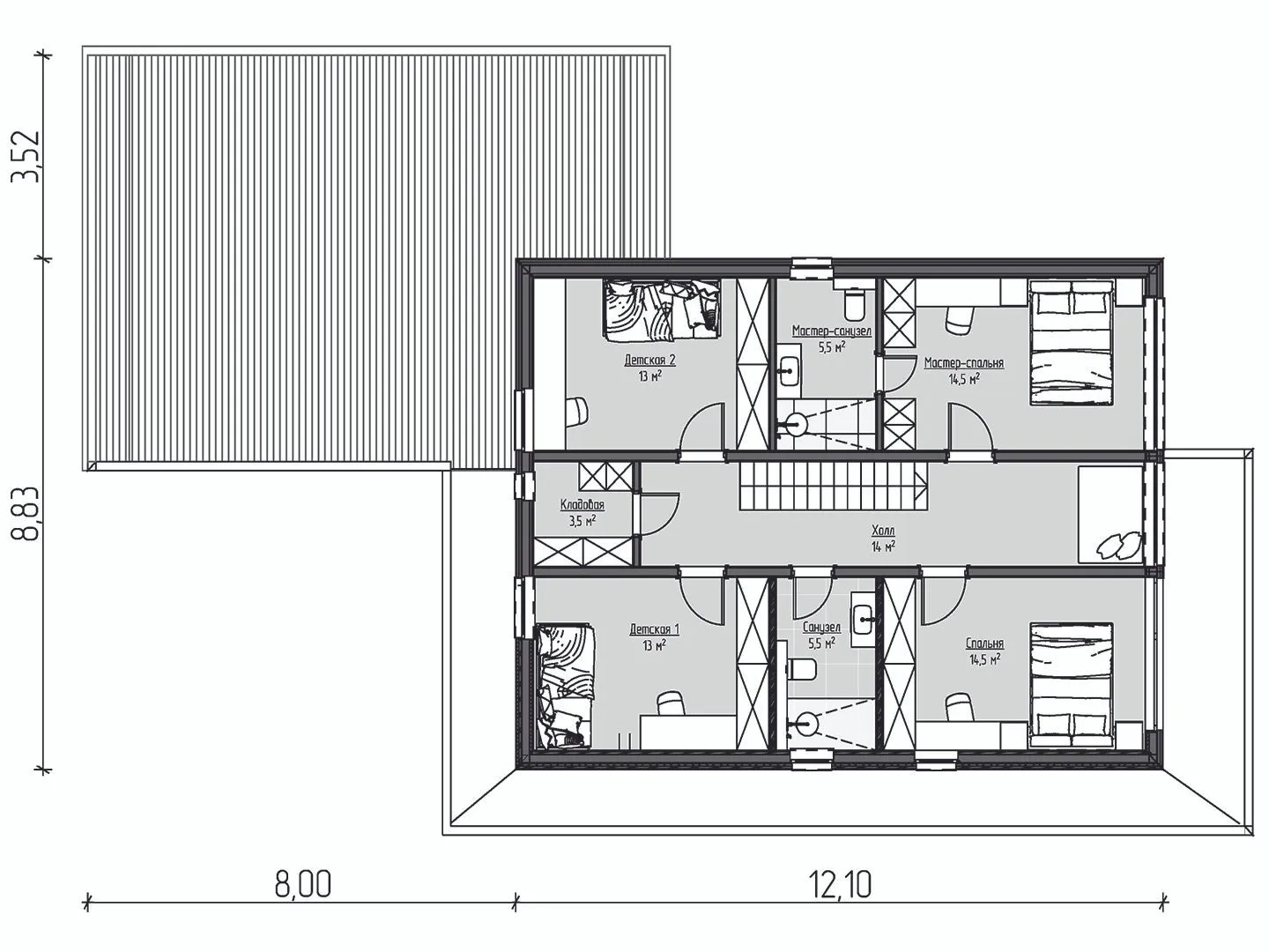
Площадь дома
256 м2
Площадь застройки
293 м2
Подвальное помещение
Нет
Показатель компактности здания
-
Приборы учета тепловой энергии
Нет
Пристроенный гараж/крытая автостоянка
Да
Противопожарная система
Нет
Санузлы
3
Совмещенная кухня-гостиная
Да
Спальни
5
Терраса
Да
Тип фундамента
Свайный
Тип кровли
Толщина внешних стен
250 мм
Толщина внутренних перегородок
100 мм
Улучшенные шумовые характеристики
Нет
Вентиляция
Естественная
Веранда
Нет
Водоотведение
Локальные очистные сооружения
Водоснабжение
Индивидуальное
Высота дома
7.8 м
Высота потолков
2.8 м

Планировка

Фасад дома

Александр

Закажите выезд инженера

Александр

Выездной инженер
Закажите выезд инженера для точной диагностики и профессиональной консультации по инженерным системам. Специалист приедет в удобное время, проведёт осмотр, рассчитает стоимость работ и подберёт оптимальные решения для вашего дома.


    Похожие проекты

    Ипотека и
    рассрочка
    Udacha
    Стоимость от:
    5 296 500
    Проект от: 33 750
    Этажей 1
    Санузлы 1
    Спальни 2
    Смотреть
    Ипотека и
    рассрочка
    Каменный дом по проекту Неаполь 75
    Стоимость от:
    6 073 320
    Проект от: 38 700
    Этажей 1
    Санузлы 1
    Спальни 3
    Смотреть
    Ипотека и
    рассрочка
    Комфорт
    Стоимость от:
    5 264 600
    Проект от: 31 500
    Этажей 1
    Санузлы 1
    Спальни 2
    Смотреть
    Ипотека и
    рассрочка
    СКС-21
    Стоимость от:
    4 057 900
    Проект от: 31 500
    Этажей 1
    Санузлы 1
    Спальни 2
    Смотреть
    Ипотека и
    рассрочка
    Одноэтажный ОД-3
    Стоимость от:
    15 917 440
    Проект от: 95 400
    Этажей 1
    Санузлы 2
    Спальни 4
    Смотреть
    Ипотека и
    рассрочка
    Одноэтажный дом Grand-122
    Стоимость от:
    15 467 320
    Проект от: 92 700
    Этажей 1
    Санузлы 1
    Спальни 3
    Смотреть

    Как узнать стоимость дома

    back
    Оставляете заявку
    Вы заполняете форму на сайте или звоните нам. Менеджер Лайвкрафт связывается с вами для уточнения деталей: тип дома, площадь, материалы, участок строительства.
    back
    Консультация и подбор решения
    Наш специалист помогает выбрать оптимальный тип дома и конструкцию с учётом бюджета, сроков и целей — будь то дом для постоянного проживания или дача.
    back
    Расчёт предварительной стоимости
    Инженер делает первичный расчёт стоимости строительства по вашим параметрам: фундамент, коробка, кровля, отделка. Вы получаете смету с разбивкой по этапам.
    back
    Корректировка и утверждение сметы
    При необходимости вносим изменения — например, замену материалов или сокращение этапов. После согласования формируется окончательная фиксированная смета.
    back
    Заключение договора и старт работ
    После утверждения сметы заключаем официальный договор с гарантией. Вы получаете прозрачный график и точную стоимость — без скрытых расходов.

    Заказать конусльтацию по:ТН-205

    Фото 1 ТН-205


      Наши
      контакты

      Дмитров
      Опорный проезд 28Б
      (индустриальный парк Ниагара)
      9:00 до 18:00

      Корзина