4.9
Рейтинг на основании 120 отзывов
Дмитров
Опорный проезд 28Б
(индустриальный парк Ниагара)
Бренд "Дмитров-Дело" c 2008 года на рынке строительства в Дмитрове
Звоните 9:00 до 18:00 8 (915) 055-33-61
Бренд "Дмитров-Дело" c 2008 года на рынке строительства в Дмитрове

TRH-165

Стоимость проекта от:
74 250 ₽
БЕСПЛАТНО! ПРИ ЗАКАЗЕ СТРОИТЕЛЬСТВА
Стоимость строительства от:
399 300 ₽
Артикул ART-16593
Дата 26.12.2025
Архитектурный стиль -
Количество надземных этажей 1
Круглогодичное проживание Да
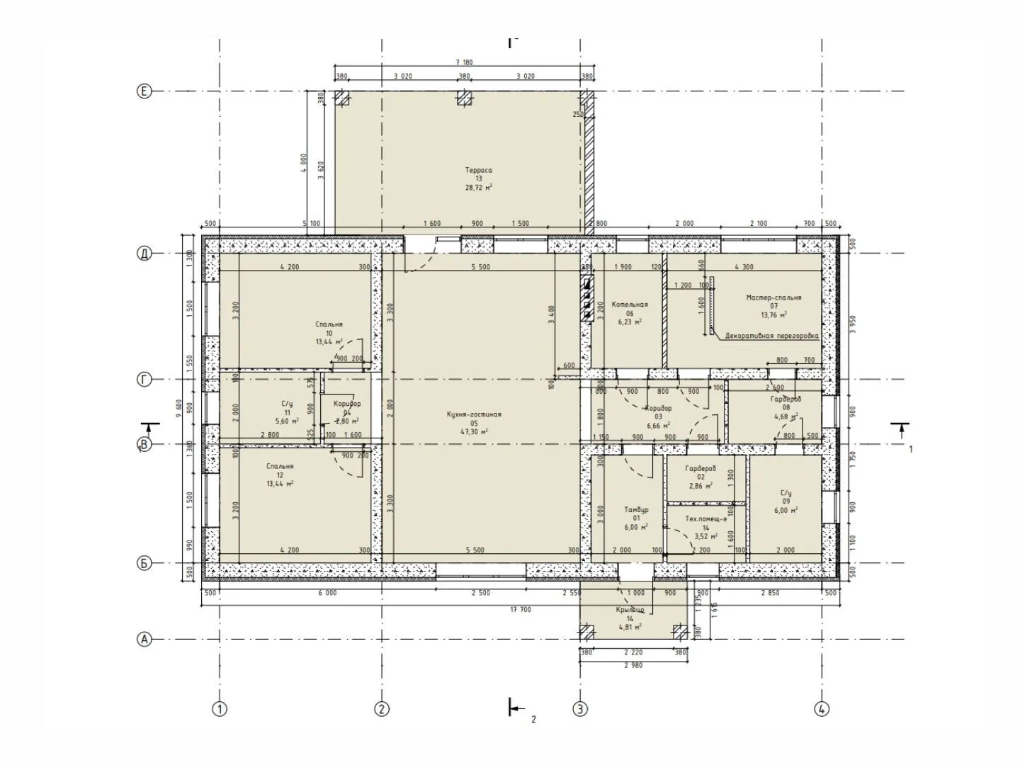
Площадь дома 165 м2
Санузлы 2
Спальни 3

Описание

**TRH‑165 – уютный уголок, где каждый день начинается с улыбки.** Этот одноэтажный дом – идеальное решение для тех, кто ценит простоту и комфорт. Без лестниц, без барьеров и лишних переходов: вы и ваши близкие будете свободно перемещаться по дому, не задумываясь о трудовых усилиях даже в первый день после переезда. Круглогодичное проживание с оптимальной теплоизоляцией и современными системами отопления позволяет наслаждаться теплом и уютом даже в самое холодное время года, а современная стеклопакетная конструкция гарантирует приятную прохладу весной и лето. Но главное, что делает **TRH‑165** особенным, – это просторная терраса, создающая непрерывную связь между внутренним и внешним пространством. Здесь у вас появится идеальное место для семейных барбекю, уютных вечеров в саду, чтения под открытым небом или просто для того, чтобы вдохнуть свежий воздух и зарядиться позитивом. Дом без балконов, без веранд, без лишних помещений – это ваша возможность сосредоточиться на том, что действительно важно: уют, тепло и простота бытия. Примерьте новый образ жизни в TRH‑165 и почувствуйте, как каждый уголок вашего дома приветствует вас с открытыми руками.

Характеристики дома

Архитектурный стиль
-
Автоматизированное регулирование параметров теплоносителя
Нет
Балконы/лоджии
Отсутствуют
Чердачное помещение
Нет
Датчики протечки воды
Нет
Эксплуатируемая или зеленая кровля
Нет
Электроснабжение
-
Газоснабжение
-
Изоляция воздушного шума
Нет
Камин
Нет
Класс энергоэффективности
-
Класс энергосбережения
-
Количество надземных этажей
1
Круглогодичное проживание
Да
Материал кровли
-
Материал перекрытий
-
Материал внешних стен
-
Материал внутренних перегородок
-
Модульное строительство с конструкциями заводского изготовления
Нет
Объем надземной части
610 м3
Основной материал фасадов
-
Отопление
-
Площадь дома
165 м2
Площадь застройки
203 м2
Подвальное помещение
Нет
Показатель компактности здания
-
Приборы учета тепловой энергии
Нет
Пристроенный гараж/крытая автостоянка
Нет
Противопожарная система
Нет
Санузлы
2
Совмещенная кухня-гостиная
Да
Спальни
3
Терраса
Да
Тип фундамента
-
Тип кровли
-
Толщина внешних стен
500 мм
Толщина внутренних перегородок
100 мм
Улучшенные шумовые характеристики
Нет
Вентиляция
-
Веранда
Нет
Водоотведение
-
Водоснабжение
-
Высота дома
5.63 м
Высота потолков
3 м

Планировка

Фасад дома

Александр

Закажите выезд инженера

Александр

Выездной инженер
Закажите выезд инженера для точной диагностики и профессиональной консультации по инженерным системам. Специалист приедет в удобное время, проведёт осмотр, рассчитает стоимость работ и подберёт оптимальные решения для вашего дома.


    Похожие проекты

    Ипотека и
    рассрочка
    Жилой дом DC 85
    Стоимость от:
    6 371 200
    Проект от: 36 000
    Этажей 1
    Санузлы 1
    Спальни 3
    Смотреть
    Ипотека и
    рассрочка
    Авторский проект «Лелия 2.0»
    Стоимость от:
    6 564 960
    Проект от: 42 300
    Этажей 2
    Санузлы 2
    Спальни 2
    Смотреть
    Ипотека и
    рассрочка
    М-113
    Стоимость от:
    8 126 965
    Проект от: 59 850
    Этажей 1
    Санузлы 2
    Спальни 4
    Смотреть
    Ипотека и
    рассрочка
    Одноэтажный жилой дом
    Стоимость от:
    8 565 480
    Проект от: 51 300
    Этажей 1
    Санузлы 1
    Спальни 1
    Смотреть
    Ипотека и
    рассрочка
    КП «Озерный»
    Стоимость от:
    9 840 480
    Проект от: 68 400
    Этажей 2
    Санузлы 2
    Спальни 4
    Смотреть
    Ипотека и
    рассрочка
    Проект4
    Стоимость от:
    9 438 440
    Проект от: 54 900
    Этажей 1
    Санузлы 3
    Спальни 3
    Смотреть

    Как узнать стоимость дома

    back
    Оставляете заявку
    Вы заполняете форму на сайте или звоните нам. Менеджер Лайвкрафт связывается с вами для уточнения деталей: тип дома, площадь, материалы, участок строительства.
    back
    Консультация и подбор решения
    Наш специалист помогает выбрать оптимальный тип дома и конструкцию с учётом бюджета, сроков и целей — будь то дом для постоянного проживания или дача.
    back
    Расчёт предварительной стоимости
    Инженер делает первичный расчёт стоимости строительства по вашим параметрам: фундамент, коробка, кровля, отделка. Вы получаете смету с разбивкой по этапам.
    back
    Корректировка и утверждение сметы
    При необходимости вносим изменения — например, замену материалов или сокращение этапов. После согласования формируется окончательная фиксированная смета.
    back
    Заключение договора и старт работ
    После утверждения сметы заключаем официальный договор с гарантией. Вы получаете прозрачный график и точную стоимость — без скрытых расходов.

    Заказать конусльтацию по:TRH-165

    Фото 1 TRH-165


      Наши
      контакты

      Дмитров
      Опорный проезд 28Б
      (индустриальный парк Ниагара)
      9:00 до 18:00

      Корзина