4.9
Рейтинг на основании 120 отзывов
Дмитров
Опорный проезд 28Б
(индустриальный парк Ниагара)
Бренд "Дмитров-Дело" c 2008 года на рынке строительства в Дмитрове
Звоните 9:00 до 18:00 8 (915) 055-33-61
Бренд "Дмитров-Дело" c 2008 года на рынке строительства в Дмитрове

ЦМС Алькор

Стоимость проекта от:
75 600 ₽
БЕСПЛАТНО! ПРИ ЗАКАЗЕ СТРОИТЕЛЬСТВА
Стоимость строительства от:
11 531 520 ₽
Артикул ART-17308
Дата 26.12.2025
Архитектурный стиль Минимализм
Количество надземных этажей 2
Круглогодичное проживание Да
Площадь дома 168 м2
Санузлы 2
Спальни 5

Описание

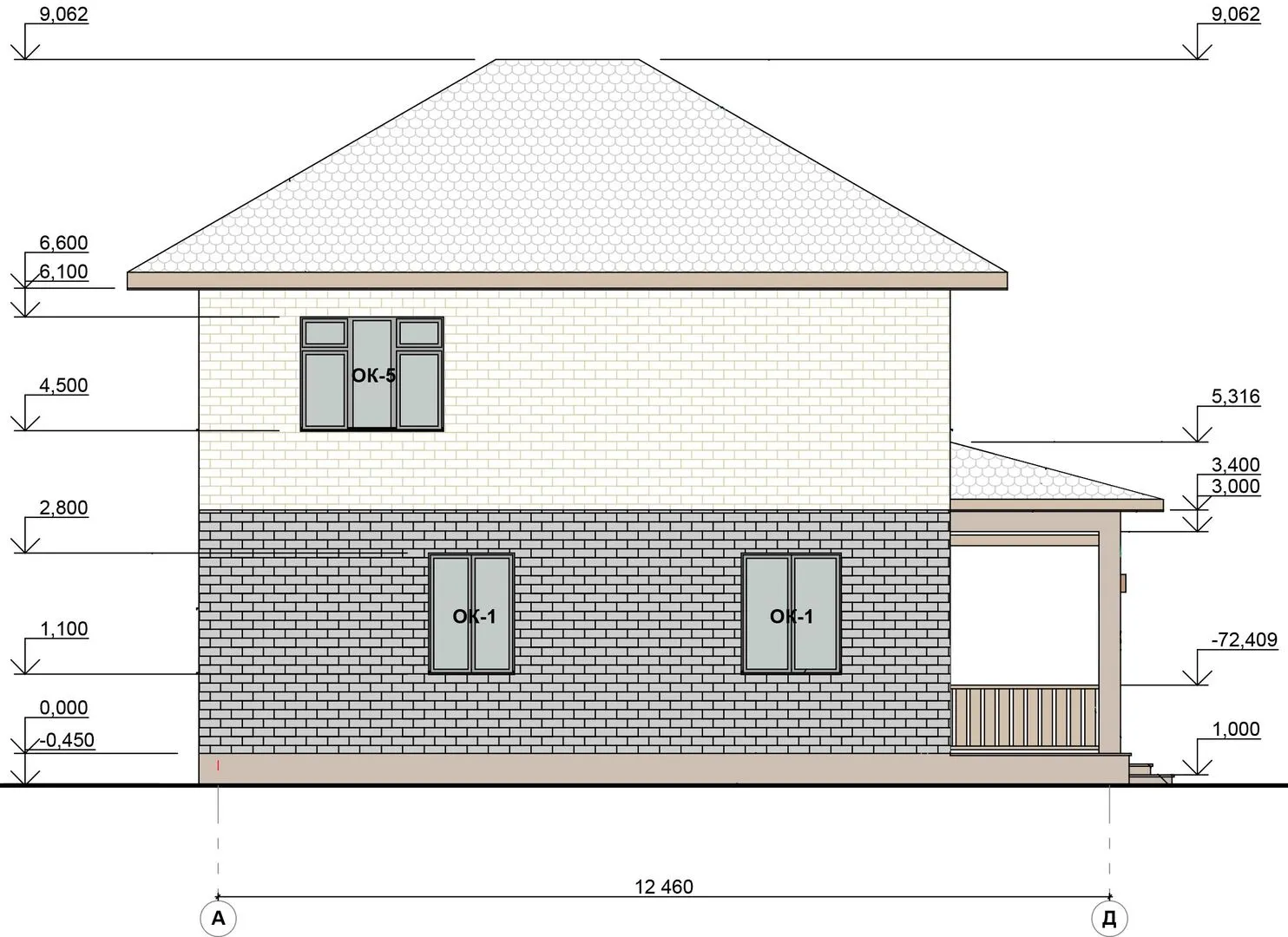
**ЦМС «Алькор»** приглашает окунуться в спокойствие и простоту современного стиля. Дом из кирпича, выполненный в лаконичном минимализме, радует глаз строгой геометрией и гармонией линий. Благодаря двум надземным этажам здесь каждый найдет своё место: просторные комнаты с высоким потолком, уютно обрамленные окнами, создающими мягкий солнечный свет. В круглый год его тепло сохраняется, а аккуратные детали интерьера отражают душевный комфорт, который хочется разделить с семьей и друзьями. Особое внимание привлекает уютный атрибут «Алькор» – очаг чердачного помещения, открывающего возможности для творческого пространства, небольшого склада или личного спа‑уголка. Просторная терраса, выходящая из главного этажа, дарит возможность обустроить небольшой сад или просто насладиться вечерами на свежем воздухе. Четырехскатная (валмовая) крыша придаёт дому характерный силуэт, а отсутствие привязки к автостоянке, гаражу и веранда делает этот дом идеальной точкой для тех, кто ценит свободу и лаконичность. «Алькор» – это место, где архитектура встречается с природой, а простота превращается в стиль жизни. Приглашаем вас увидеть его лично и открыть новую главу уюта и надёжности для вашего дома.

Характеристики дома

Архитектурный стиль
Автоматизированное регулирование параметров теплоносителя
Нет
Балконы/лоджии
Отсутствуют
Чердачное помещение
Да
Датчики протечки воды
Нет
Эксплуатируемая или зеленая кровля
Нет
Электроснабжение
Центральное
Газоснабжение
Индивидуальное
Изоляция воздушного шума
Нет
Камин
Нет
Класс энергоэффективности
-
Класс энергосбережения
-
Количество надземных этажей
2
Круглогодичное проживание
Да
Материал кровли
Фальцевая кровля Кликфальц
Материал перекрытий
Деревянные
Материал внешних стен
Материал внутренних перегородок
Кирпичные
Модульное строительство с конструкциями заводского изготовления
Нет
Объем надземной части
480 м3
Основной материал фасадов
Облицовочный кирпич
Отопление
Индивидуальное
Площадь дома
168 м2
Площадь застройки
105 м2
Подвальное помещение
Нет
Показатель компактности здания
-
Приборы учета тепловой энергии
Нет
Пристроенный гараж/крытая автостоянка
Нет
Противопожарная система
Нет
Санузлы
2
Совмещенная кухня-гостиная
Да
Спальни
5
Терраса
Да
Тип фундамента
Плитный
Толщина внешних стен
510 мм
Толщина внутренних перегородок
140 мм
Улучшенные шумовые характеристики
Нет
Вентиляция
Естественная
Веранда
Нет
Водоотведение
Локальные очистные сооружения
Водоснабжение
Индивидуальное
Высота дома
9 м
Высота потолков
2.85 м

Планировка

Фасад дома

Александр

Закажите выезд инженера

Александр

Выездной инженер
Закажите выезд инженера для точной диагностики и профессиональной консультации по инженерным системам. Специалист приедет в удобное время, проведёт осмотр, рассчитает стоимость работ и подберёт оптимальные решения для вашего дома.


    Похожие проекты

    Ипотека и
    рассрочка
    Дом «Эйлин 166» в скандинавском стиле
    Стоимость от:
    9 935 100
    Проект от: 74 700
    Этажей 2
    Санузлы 3
    Спальни 4
    Смотреть
    Ипотека и
    рассрочка
    Исток 3
    Стоимость от:
    10 516 000
    Проект от: 63 000
    Этажей 1
    Санузлы 2
    Спальни 3
    Смотреть
    Ипотека и
    рассрочка
    Суксун-59
    Стоимость от:
    8 374 080
    Проект от: 54 900
    Этажей 2
    Санузлы 2
    Спальни 4
    Смотреть
    Ипотека и
    рассрочка
    Каркасный дом Корнфилд 100
    Стоимость от:
    5 985 000
    Проект от: 45 000
    Этажей 2
    Санузлы 2
    Спальни 4
    Смотреть
    Ипотека и
    рассрочка
    «Белозерцев»
    Стоимость от:
    6 705 380
    Проект от: 52 200
    Этажей 1
    Санузлы 1
    Спальни 3
    Смотреть
    Ипотека и
    рассрочка
    Валенсия
    Стоимость от:
    8 898 120
    Проект от: 56 700
    Этажей 1
    Санузлы 2
    Спальни 3
    Смотреть

    Как узнать стоимость дома

    back
    Оставляете заявку
    Вы заполняете форму на сайте или звоните нам. Менеджер Лайвкрафт связывается с вами для уточнения деталей: тип дома, площадь, материалы, участок строительства.
    back
    Консультация и подбор решения
    Наш специалист помогает выбрать оптимальный тип дома и конструкцию с учётом бюджета, сроков и целей — будь то дом для постоянного проживания или дача.
    back
    Расчёт предварительной стоимости
    Инженер делает первичный расчёт стоимости строительства по вашим параметрам: фундамент, коробка, кровля, отделка. Вы получаете смету с разбивкой по этапам.
    back
    Корректировка и утверждение сметы
    При необходимости вносим изменения — например, замену материалов или сокращение этапов. После согласования формируется окончательная фиксированная смета.
    back
    Заключение договора и старт работ
    После утверждения сметы заключаем официальный договор с гарантией. Вы получаете прозрачный график и точную стоимость — без скрытых расходов.

    Заказать конусльтацию по:ЦМС Алькор

    Фото 1 ЦМС Алькор


      Наши
      контакты

      Дмитров
      Опорный проезд 28Б
      (индустриальный парк Ниагара)
      9:00 до 18:00

      Корзина