4.9
Рейтинг на основании 120 отзывов
Дмитров
Опорный проезд 28Б
(индустриальный парк Ниагара)
Бренд "Дмитров-Дело" c 2008 года на рынке строительства в Дмитрове
Звоните 9:00 до 18:00 8 (915) 055-33-61
Бренд "Дмитров-Дело" c 2008 года на рынке строительства в Дмитрове

ЦМС Артур

Стоимость проекта от:
63 900 ₽
БЕСПЛАТНО! ПРИ ЗАКАЗЕ СТРОИТЕЛЬСТВА
Стоимость строительства от:
9 917 280 ₽
Артикул ART-18141
Дата 26.12.2025
Архитектурный стиль Шале
Количество надземных этажей 2
Круглогодичное проживание Да
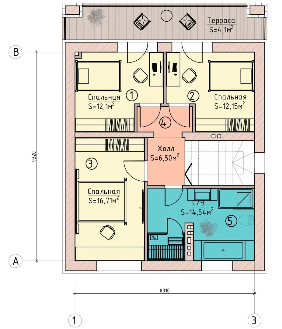
Площадь дома 142 м2
Санузлы 2
Спальни 4

Описание

Добро пожаловать в настоящий уголок уюта и спокойствия – жилой комплекс **Артур**. Величественный шале‑стиль, выполненный из кирпича, создаёт ощущение крепких скандинавских традиций, а двойная валидационная крыша с классическим коническим профилем гарантирует тепло и защищённость даже в самые суровые зимы. Совсем 2 надземных этажа позволяют планировать открытые, светлые зоны для отдыха и работы, а наличие круглогодичной эксплуатации делает его идеальным выбором для семьи, ищущей спокойствие без компромиссов по комфортным условиям жизни. Внутреннее пространство продумано до мелочей: открытая лестница, большие окна, мягкое естественное освещение, а также просторная терраса, где можно наслаждаться утренним кофе или семейными ужинами под звездным небом. Пристроенный гараж и крытая автостоянка обеспечивают удобную защиту транспортных средств от непогоды, а отсутствие балконов и веранд упрощает обслуживание и увеличивает внутреннее поле ощущений, создавая ощущение единой, обустроенной среды. Всё, что нужно для комфортного и полноценного быта, находится в пределах вашего дома. Вы ощущаете себя в спокойствии, окружённый натуральными материалами и гармонией, в то время как вся современная инфраструктура находится всего в нескольких минутах ходьбы. Этот дом – место, где каждый вечер будет напоминанием о том, насколько важно жить рядом с уютом и натуральной красотой.

Характеристики дома

Архитектурный стиль
Автоматизированное регулирование параметров теплоносителя
Нет
Балконы/лоджии
Отсутствуют
Чердачное помещение
Нет
Датчики протечки воды
Нет
Эксплуатируемая или зеленая кровля
Нет
Электроснабжение
Центральное
Газоснабжение
Не предусмотрено
Изоляция воздушного шума
Нет
Камин
Нет
Класс энергоэффективности
-
Класс энергосбережения
-
Количество надземных этажей
2
Круглогодичное проживание
Да
Материал кровли
Металлочерепица
Материал перекрытий
Монолитные железобетонные
Материал внешних стен
Материал внутренних перегородок
Кирпичные
Модульное строительство с конструкциями заводского изготовления
Нет
Объем надземной части
533 м3
Основной материал фасадов
Облицовочный кирпич
Отопление
Индивидуальное
Площадь дома
142 м2
Площадь застройки
82 м2
Подвальное помещение
Нет
Показатель компактности здания
-
Приборы учета тепловой энергии
Нет
Пристроенный гараж/крытая автостоянка
Да
Противопожарная система
Нет
Санузлы
2
Совмещенная кухня-гостиная
Да
Спальни
4
Терраса
Да
Тип фундамента
Плитный
Тип кровли
Толщина внешних стен
490 мм
Толщина внутренних перегородок
140 мм
Улучшенные шумовые характеристики
Нет
Вентиляция
Естественная
Веранда
Нет
Водоотведение
Локальные очистные сооружения
Водоснабжение
Индивидуальное
Высота дома
7.74 м
Высота потолков
2.85 м

Планировка

Фасад дома

Александр

Закажите выезд инженера

Александр

Выездной инженер
Закажите выезд инженера для точной диагностики и профессиональной консультации по инженерным системам. Специалист приедет в удобное время, проведёт осмотр, рассчитает стоимость работ и подберёт оптимальные решения для вашего дома.


    Похожие проекты

    Ипотека и
    рассрочка
    Костино
    Стоимость от:
    9 242 530
    Проект от: 65 700
    Этажей 1
    Санузлы 1
    Спальни 3
    Смотреть
    Ипотека и
    рассрочка
    Пифей-89,70
    Стоимость от:
    5 264 600
    Проект от: 31 500
    Этажей 1
    Санузлы 1
    Спальни 2
    Смотреть
    Ипотека и
    рассрочка
    Проект загородного дома NHD-168
    Стоимость от:
    13 700 280
    Проект от: 87 300
    Этажей 1
    Санузлы 2
    Спальни 3
    Смотреть
    Ипотека и
    рассрочка
    Одноэтажный дом «Тендо 77»
    Стоимость от:
    4 450 985
    Проект от: 34 650
    Этажей 1
    Санузлы 1
    Спальни 1
    Смотреть
    Ипотека и
    рассрочка
    Уютный загородный дом ЛЕТО
    Стоимость от:
    4 964 520
    Проект от: 29 700
    Этажей 1
    Санузлы 2
    Спальни 2
    Смотреть
    Ипотека и
    рассрочка
    SVOI-24-1-83 Одноэтажный дом 83 кв.м.
    Стоимость от:
    6 239 860
    Проект от: 37 350
    Этажей 1
    Санузлы 1
    Спальни 2
    Смотреть

    Как узнать стоимость дома

    back
    Оставляете заявку
    Вы заполняете форму на сайте или звоните нам. Менеджер Лайвкрафт связывается с вами для уточнения деталей: тип дома, площадь, материалы, участок строительства.
    back
    Консультация и подбор решения
    Наш специалист помогает выбрать оптимальный тип дома и конструкцию с учётом бюджета, сроков и целей — будь то дом для постоянного проживания или дача.
    back
    Расчёт предварительной стоимости
    Инженер делает первичный расчёт стоимости строительства по вашим параметрам: фундамент, коробка, кровля, отделка. Вы получаете смету с разбивкой по этапам.
    back
    Корректировка и утверждение сметы
    При необходимости вносим изменения — например, замену материалов или сокращение этапов. После согласования формируется окончательная фиксированная смета.
    back
    Заключение договора и старт работ
    После утверждения сметы заключаем официальный договор с гарантией. Вы получаете прозрачный график и точную стоимость — без скрытых расходов.

    Заказать конусльтацию по:ЦМС Артур

    Фото 1 ЦМС Артур


      Наши
      контакты

      Дмитров
      Опорный проезд 28Б
      (индустриальный парк Ниагара)
      9:00 до 18:00

      Корзина