4.9
Рейтинг на основании 120 отзывов
Дмитров
Опорный проезд 28Б
(индустриальный парк Ниагара)
Бренд "Дмитров-Дело" c 2008 года на рынке строительства в Дмитрове
Звоните 9:00 до 18:00 8 (915) 055-33-61
Бренд "Дмитров-Дело" c 2008 года на рынке строительства в Дмитрове

ЦМС Культ

Стоимость проекта от:
221 400 ₽
БЕСПЛАТНО! ПРИ ЗАКАЗЕ СТРОИТЕЛЬСТВА
Стоимость строительства от:
33 770 880 ₽
Артикул ART-19017
Дата 26.12.2025
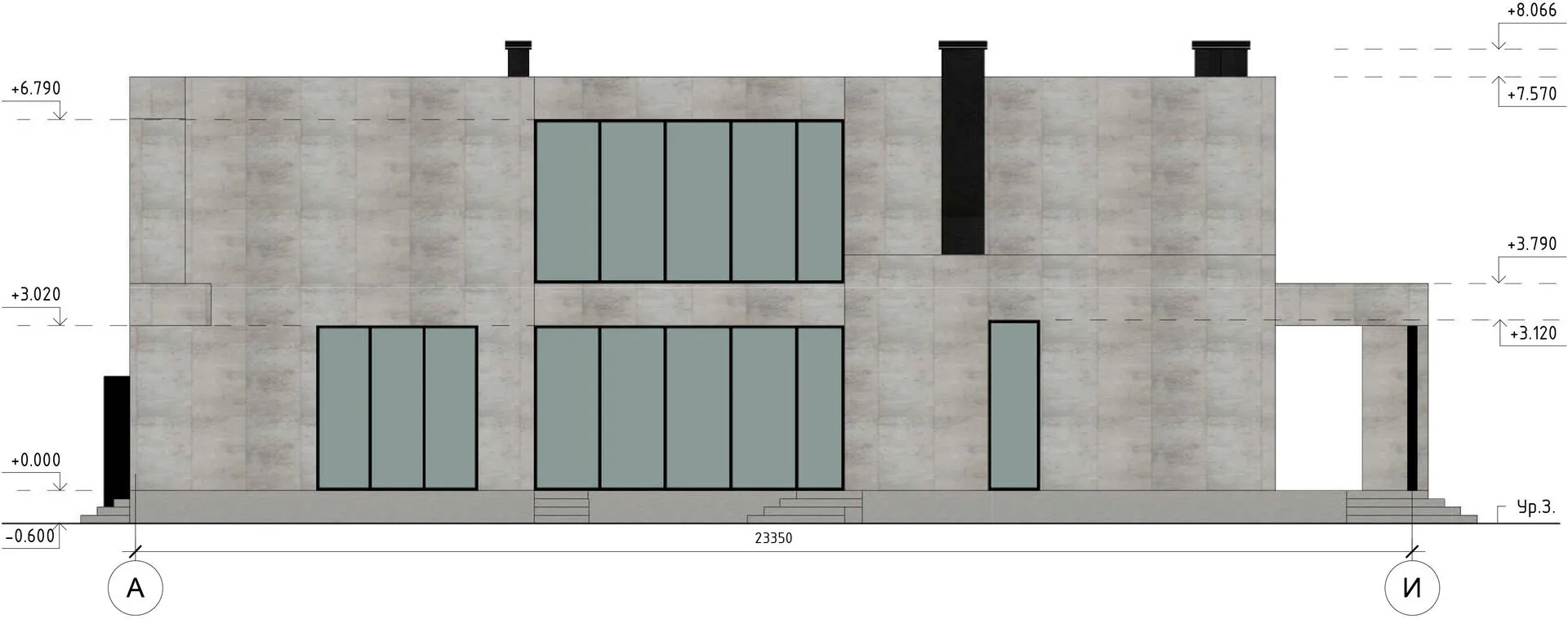
Архитектурный стиль Хайтек
Количество надземных этажей 2
Круглогодичное проживание Да
Площадь дома 492 м2
Санузлы 4
Спальни 4

Описание

В сердце современных городских кварталов и крошечных парков, где каждая улица дышит жизнью, возникло новое слово в архитектуре — «Культ». 2‑этажный дом, выполненный в стиле хай‑тек, сочетает в себе утончённую современность и комфорт круглогодичного проживания. В его внешне строгой кирпичной оболочке скрывается гармония пространства, где каждая линия, каждый фасадный элемент продуманы до мельчайших деталей. Внутри вас встретит светлый и открытый план, где стеклянные стенки пропускают мягкое дневное солнце, создавая ощущение простора даже в самых компактных квартирах. Балкон/лоджия на первом этаже предлагает идеальное место для утреннего кофе или вечернего наблюдения за городским пейзажем, а терраса наверху становится вашим личным оазисом, где можно расслабиться на свежем воздухе даже в дождливую погоду. Плоская крыша с возможностью установки солнечных панелей привносит в интерьер нотку эко‑гибкости, а отсутствие прицепленного гаража и чердака позволяет использовать каждый квадратный метр для создания функциональных зон или личных уединений. “Культ” — это воплощение современного стиля жизни, где технологическая изящность встречается с уютом. Прекрасный баланс между эстетикой и практичностью делает эту квартиру идеальной как для молодой семьи, так и для тех, кто ценит индивидуальность своего дома. Если вы ищете пространство, где каждая деталь говорит о вашем вкусе и уровне жизни, эта квартира — ваш следующий дом.

Характеристики дома

Архитектурный стиль
Автоматизированное регулирование параметров теплоносителя
Нет
Балконы/лоджии
1
Чердачное помещение
Нет
Датчики протечки воды
Нет
Эксплуатируемая или зеленая кровля
Нет
Электроснабжение
Центральное
Газоснабжение
Индивидуальное
Изоляция воздушного шума
Нет
Камин
Нет
Класс энергоэффективности
-
Класс энергосбережения
-
Количество надземных этажей
2
Круглогодичное проживание
Да
Материал кровли
ПВХ мембраны
Материал перекрытий
Деревянные
Материал внешних стен
Материал внутренних перегородок
Кирпичные
Модульное строительство с конструкциями заводского изготовления
Нет
Объем надземной части
1556 м3
Основной материал фасадов
Штукатурка
Отопление
Индивидуальное
Площадь дома
492 м2
Площадь застройки
273 м2
Подвальное помещение
Нет
Показатель компактности здания
-
Приборы учета тепловой энергии
Нет
Пристроенный гараж/крытая автостоянка
Нет
Противопожарная система
Нет
Санузлы
4
Совмещенная кухня-гостиная
Да
Спальни
4
Терраса
Да
Тип фундамента
Плитный
Тип кровли
Толщина внешних стен
510 мм
Толщина внутренних перегородок
140 мм
Улучшенные шумовые характеристики
Нет
Вентиляция
Естественная
Веранда
Нет
Водоотведение
Локальные очистные сооружения
Водоснабжение
Индивидуальное
Высота дома
8 м
Высота потолков
2.85 м

Планировка

Фасад дома

Александр

Закажите выезд инженера

Александр

Выездной инженер
Закажите выезд инженера для точной диагностики и профессиональной консультации по инженерным системам. Специалист приедет в удобное время, проведёт осмотр, рассчитает стоимость работ и подберёт оптимальные решения для вашего дома.


    Похожие проекты

    Ипотека и
    рассрочка
    Эльба 108
    Стоимость от:
    7 672 320
    Проект от: 57 600
    Этажей 2
    Санузлы 2
    Спальни 4
    Смотреть
    Ипотека и
    рассрочка
    Проект АО10
    Стоимость от:
    6 886 800
    Проект от: 42 750
    Этажей 2
    Санузлы 2
    Спальни 3
    Смотреть
    Ипотека и
    рассрочка
    M88
    Стоимость от:
    5 064 400
    Проект от: 36 000
    Этажей 1
    Санузлы 2
    Спальни 2
    Смотреть
    Ипотека и
    рассрочка
    Дом №4_снт Дзержинец, пассив Винновский, квартал 76, ул. 6
    Стоимость от:
    6 421 360
    Проект от: 39 600
    Этажей 1
    Санузлы 1
    Спальни 3
    Смотреть
    Ипотека и
    рассрочка
    Дом из клееного бруса «Тишково»
    Стоимость от:
    10 166 280
    Проект от: 70 650
    Этажей 2
    Санузлы 2
    Спальни 3
    Смотреть
    Ипотека и
    рассрочка
    Дом с террасой и панорамными окнами
    Стоимость от:
    3 058 275
    Проект от: 24 750
    Этажей 1
    Санузлы 1
    Спальни 2
    Смотреть

    Как узнать стоимость дома

    back
    Оставляете заявку
    Вы заполняете форму на сайте или звоните нам. Менеджер Лайвкрафт связывается с вами для уточнения деталей: тип дома, площадь, материалы, участок строительства.
    back
    Консультация и подбор решения
    Наш специалист помогает выбрать оптимальный тип дома и конструкцию с учётом бюджета, сроков и целей — будь то дом для постоянного проживания или дача.
    back
    Расчёт предварительной стоимости
    Инженер делает первичный расчёт стоимости строительства по вашим параметрам: фундамент, коробка, кровля, отделка. Вы получаете смету с разбивкой по этапам.
    back
    Корректировка и утверждение сметы
    При необходимости вносим изменения — например, замену материалов или сокращение этапов. После согласования формируется окончательная фиксированная смета.
    back
    Заключение договора и старт работ
    После утверждения сметы заключаем официальный договор с гарантией. Вы получаете прозрачный график и точную стоимость — без скрытых расходов.

    Заказать конусльтацию по:ЦМС Культ

    Фото 1 ЦМС Культ


      Наши
      контакты

      Дмитров
      Опорный проезд 28Б
      (индустриальный парк Ниагара)
      9:00 до 18:00

      Корзина