4.9
Рейтинг на основании 120 отзывов
Дмитров
Опорный проезд 28Б
(индустриальный парк Ниагара)
Бренд "Дмитров-Дело" c 2008 года на рынке строительства в Дмитрове
Звоните 9:00 до 18:00 8 (915) 055-33-61
Бренд "Дмитров-Дело" c 2008 года на рынке строительства в Дмитрове

Твоя территория Фёдоровское серия 1

Стоимость проекта от:
69 750 ₽
БЕСПЛАТНО! ПРИ ЗАКАЗЕ СТРОИТЕЛЬСТВА
Стоимость строительства от:
10 605 100 ₽
Артикул ART-19339
Дата 26.12.2025
Архитектурный стиль Минимализм
Количество надземных этажей 1
Круглогодичное проживание Да
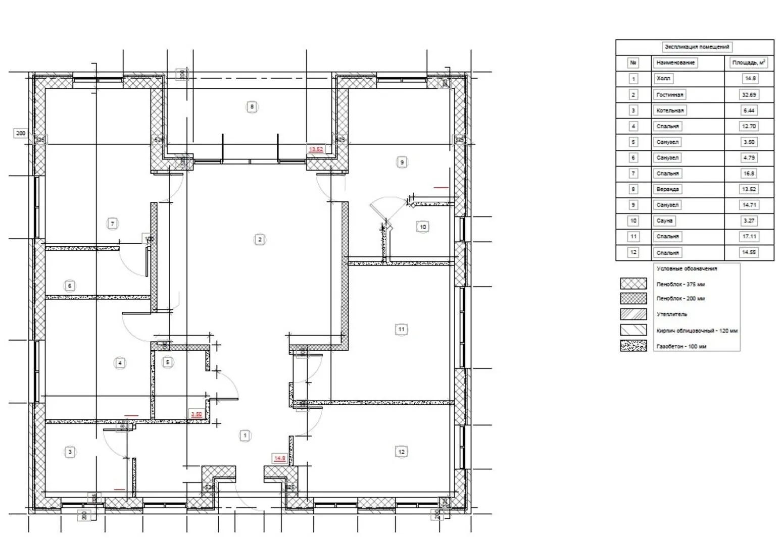
Площадь дома 155 м2
Санузлы 3
Спальни 4

Описание

**Дом в серии «Фёдоровское», 1 й этаж – простота, комфорт и уют** Наслаждайтесь беззаботной жизнью в одном из новостроек «Фёдоровское» – идеальном решении для тех, кто ценит простоту и элегантность минимализма. Дом рассчитан на круглогодичное проживание: оттепельные зимы и солнечные летние дни легко переживает из–за теплоизоляционных газобетонных блоков, а четыре‑скатная (вальмовая) крыша обеспечивает надёжную защиту от непогоды. Внутри встречается ровно один надземный этаж, из которого легко перейти на яркую, просторную террасу – ваш личный уголок для летних барбекю, спокойных вечеров с книгой или уютных семейных ужинов под звездами. **Простота и функциональность в гармонии с природой** Варианты обустройства – минимально, но очень продуманно: отсутствие балконов и веранд позволяет сосредоточиться на максимальной функциональности. Плюс – нет лишних внешних складских помещений, что облегчает уход за домом. Внутреннее пространство открытое и светлое, в нем легко организовать как домашний офис, так и детскую игровую комнату. Удобство современного жилья достигается без лишних деталей: от продуманной планировки до качественных материалов фасада. **Почему стоит выбрать этот дом?** Дом создан для тех, кто ищет уют и простоту в одном решении. Гасобетонные блоки обеспечивают энергоэффективность и низкие эксплуатационные расходы, а отсутствие гаража и других внешних сооружений делает эксплуатацию максимально беспроблемной. «Фёдоровское», серия 1 – это ваш шанс обрести идеальное сочетание современного дизайна, функциональности и спокойствия в одной уютной квартире.

Характеристики дома

Архитектурный стиль
Автоматизированное регулирование параметров теплоносителя
Да
Балконы/лоджии
Отсутствуют
Чердачное помещение
Нет
Датчики протечки воды
Нет
Эксплуатируемая или зеленая кровля
Нет
Электроснабжение
Центральное
Газоснабжение
Центральное
Изоляция воздушного шума
Да
Камин
Да
Класс энергоэффективности
A
Класс энергосбережения
A+
Количество надземных этажей
1
Круглогодичное проживание
Да
Материал кровли
Битумная черепица
Материал перекрытий
Деревянные по металлическим балкам
Материал внешних стен
Материал внутренних перегородок
Блочные
Модульное строительство с конструкциями заводского изготовления
Нет
Объем надземной части
740 м3
Основной материал фасадов
Облицовочный кирпич
Отопление
Индивидуальное
Площадь дома
155 м2
Площадь застройки
184 м2
Подвальное помещение
Нет
Показатель компактности здания
0.7
Приборы учета тепловой энергии
Да
Пристроенный гараж/крытая автостоянка
Нет
Противопожарная система
Нет
Санузлы
3
Совмещенная кухня-гостиная
Да
Спальни
4
Терраса
Да
Тип фундамента
Плитный
Толщина внешних стен
525 мм
Толщина внутренних перегородок
200 мм
Улучшенные шумовые характеристики
Да
Вентиляция
2 варианта
Веранда
Нет
Водоотведение
Центральное
Водоснабжение
Центральное
Высота дома
5.5 м
Высота потолков
4 м

Планировка

Фасад дома

Александр

Закажите выезд инженера

Александр

Выездной инженер
Закажите выезд инженера для точной диагностики и профессиональной консультации по инженерным системам. Специалист приедет в удобное время, проведёт осмотр, рассчитает стоимость работ и подберёт оптимальные решения для вашего дома.


    Похожие проекты

    Ипотека и
    рассрочка
    Дом под ключ №6
    Стоимость от:
    6 716 700
    Проект от: 45 900
    Этажей 2
    Санузлы 2
    Спальни 3
    Смотреть
    Ипотека и
    рассрочка
    Двухэтажный дом в скандинавском стиле «Светлячок»
    Стоимость от:
    9 929 160
    Проект от: 76 050
    Этажей 2
    Санузлы 2
    Спальни 4
    Смотреть
    Ипотека и
    рассрочка
    Next-72-1
    Стоимость от:
    5 577 440
    Проект от: 32 400
    Этажей 1
    Санузлы 1
    Спальни 2
    Смотреть
    Ипотека и
    рассрочка
    Европа 2022
    Стоимость от:
    9 747 320
    Проект от: 56 700
    Этажей 1
    Санузлы 1
    Спальни 3
    Смотреть
    Ипотека и
    рассрочка
    Одноэтажный дом F-7874
    Стоимость от:
    8 511 800
    Проект от: 49 500
    Этажей 1
    Санузлы 2
    Спальни 3
    Смотреть
    Ипотека и
    рассрочка
    Загородный дом «Родионово»
    Стоимость от:
    9 242 530
    Проект от: 65 700
    Этажей 1
    Санузлы 3
    Спальни 3
    Смотреть

    Как узнать стоимость дома

    back
    Оставляете заявку
    Вы заполняете форму на сайте или звоните нам. Менеджер Лайвкрафт связывается с вами для уточнения деталей: тип дома, площадь, материалы, участок строительства.
    back
    Консультация и подбор решения
    Наш специалист помогает выбрать оптимальный тип дома и конструкцию с учётом бюджета, сроков и целей — будь то дом для постоянного проживания или дача.
    back
    Расчёт предварительной стоимости
    Инженер делает первичный расчёт стоимости строительства по вашим параметрам: фундамент, коробка, кровля, отделка. Вы получаете смету с разбивкой по этапам.
    back
    Корректировка и утверждение сметы
    При необходимости вносим изменения — например, замену материалов или сокращение этапов. После согласования формируется окончательная фиксированная смета.
    back
    Заключение договора и старт работ
    После утверждения сметы заключаем официальный договор с гарантией. Вы получаете прозрачный график и точную стоимость — без скрытых расходов.

    Заказать конусльтацию по:Твоя территория Фёдоровское серия 1

    Фото 1 Твоя территория Фёдоровское серия 1


      Наши
      контакты

      Дмитров
      Опорный проезд 28Б
      (индустриальный парк Ниагара)
      9:00 до 18:00

      Корзина