4.9
Рейтинг на основании 120 отзывов
Дмитров
Опорный проезд 28Б
(индустриальный парк Ниагара)
Бренд "Дмитров-Дело" c 2008 года на рынке строительства в Дмитрове
Звоните 9:00 до 18:00 8 (915) 055-33-61
Бренд "Дмитров-Дело" c 2008 года на рынке строительства в Дмитрове

Удобный 01

Стоимость проекта от:
25 650 ₽
БЕСПЛАТНО! ПРИ ЗАКАЗЕ СТРОИТЕЛЬСТВА
Стоимость строительства от:
4 289 340 ₽
Артикул ART-10894
Дата 25.12.2025
Архитектурный стиль Классический
Количество надземных этажей 1
Круглогодичное проживание Да
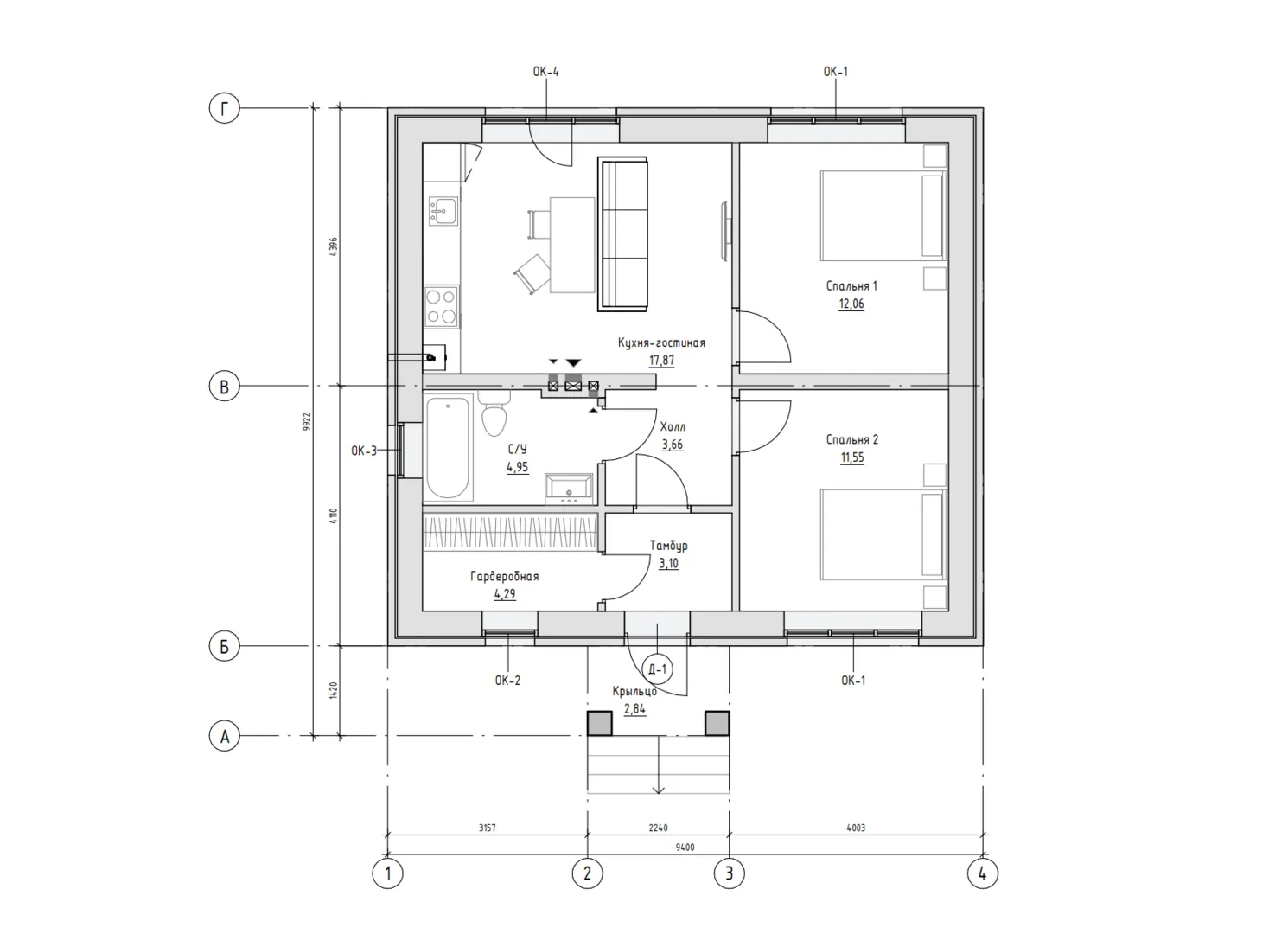
Площадь дома 57 м2
Санузлы 1
Спальни 2

Описание

Приятно представить вашему вниманию уютный одноэтажный дом, воплощающий эстетику классической архитектуры в современной форме. Изящный профиль и благородные фасадные линии делают его неотъемлемой частью любого городского или пригородного пейзажа. Гибридный материал наружных стен – газобетонные блоки – обеспечивает отличную тепло- и звукоизоляцию, а четыре‑скатная (валмовая) крыша удерживает дождевую воду и придает дому характерный вид. Круглогодичное проживание подтверждает продуманность проектных решений: от утеплённого фасада до надёжной теплоизоляции внутренних стен дома, что гарантирует комфорт даже в зимние морозы и жаркие летние дни. Внутри вас ждёт простор и свет. Благодаря открытой планировке жилого пространства, в доме царит ощущение простора и легкости. Величественные классические детали, такие как обрамлённые полки, балочные потолки и элегантные деревянные панели, подчёркивают уютную атмосферу. На верхнем уровне расположен практичный чердачный кабинет/гостинная зона, который может превратиться в уютную студию, домашний офис или мастерскую. Несмотря на отсутствие балконов и веранды, внутренний двор и ухоженный задний уголок дарят возможность проводить время на свежем воздухе, наслаждаясь тенью и природой. Этот дом – идеальный выбор для тех, кто ценит сочетание классицизма и функциональности, ищет уютный уголок для семьи, где каждая деталь имеет своё место. Если вы ищете место, где каждый день будет напоминать о комфорте, эстетике и заботе о будущем, то этот дом готов стать вашим новым уютным домом. Запишитесь на просмотр уже сегодня и убедитесь, как прекрасно можно жить, когда дизайн, тепло и стиль идут рука об руку.

Характеристики дома

Архитектурный стиль
Автоматизированное регулирование параметров теплоносителя
-
Балконы/лоджии
Отсутствуют
Чердачное помещение
Да
Датчики протечки воды
-
Эксплуатируемая или зеленая кровля
-
Электроснабжение
Центральное
Газоснабжение
Центральное
Изоляция воздушного шума
-
Камин
Нет
Класс энергоэффективности
-
Класс энергосбережения
-
Количество надземных этажей
1
Круглогодичное проживание
Да
Материал кровли
Металлочерепица
Материал перекрытий
Сборные железобетонные многопустотные плиты
Материал внешних стен
Материал внутренних перегородок
Пенобетонные
Модульное строительство с конструкциями заводского изготовления
Нет
Объем надземной части
340 м3
Основной материал фасадов
Облицовочный кирпич
Отопление
Индивидуальное
Площадь дома
57 м2
Площадь застройки
85 м2
Подвальное помещение
Нет
Показатель компактности здания
-
Приборы учета тепловой энергии
-
Пристроенный гараж/крытая автостоянка
Нет
Противопожарная система
Нет
Санузлы
1
Совмещенная кухня-гостиная
Да
Спальни
2
Терраса
Нет
Тип фундамента
Свайно-ростверковый
Толщина внешних стен
550 мм
Толщина внутренних перегородок
120 мм
Улучшенные шумовые характеристики
-
Вентиляция
Естественная
Веранда
Нет
Водоотведение
2 варианта
Водоснабжение
2 варианта
Высота дома
5.25 м
Высота потолков
3 м

Планировка

Фасад дома

Александр

Закажите выезд инженера

Александр

Выездной инженер
Закажите выезд инженера для точной диагностики и профессиональной консультации по инженерным системам. Специалист приедет в удобное время, проведёт осмотр, рассчитает стоимость работ и подберёт оптимальные решения для вашего дома.


    Похожие проекты

    Ипотека и
    рассрочка
    Каркасный дом Варбург 118
    Стоимость от:
    6 526 860
    Проект от: 49 050
    Этажей 2
    Санузлы 2
    Спальни 4
    Смотреть
    Ипотека и
    рассрочка
    Дом из бревна №5
    Стоимость от:
    9 203 150
    Проект от: 65 250
    Этажей 1
    Санузлы 1
    Спальни 1
    Смотреть
    Ипотека и
    рассрочка
    Двухэтажный дом БРАИТ-77
    Стоимость от:
    12 943 920
    Проект от: 77 850
    Этажей 2
    Санузлы 2
    Спальни 4
    Смотреть
    Ипотека и
    рассрочка
    Красивый одноэтажный дом №361
    Стоимость от:
    9 180 600
    Проект от: 58 500
    Этажей 1
    Санузлы 2
    Спальни 4
    Смотреть
    Ипотека и
    рассрочка
    Загородный дом из клееного бруса «Эней»
    Стоимость от:
    5 331 480
    Проект от: 37 800
    Этажей 1
    Санузлы 1
    Спальни 2
    Смотреть
    Ипотека и
    рассрочка
    ИЖД площадью 72 кв.м.
    Стоимость от:
    5 735 840
    Проект от: 32 400
    Этажей 1
    Санузлы 1
    Спальни 3
    Смотреть

    Как узнать стоимость дома

    back
    Оставляете заявку
    Вы заполняете форму на сайте или звоните нам. Менеджер Лайвкрафт связывается с вами для уточнения деталей: тип дома, площадь, материалы, участок строительства.
    back
    Консультация и подбор решения
    Наш специалист помогает выбрать оптимальный тип дома и конструкцию с учётом бюджета, сроков и целей — будь то дом для постоянного проживания или дача.
    back
    Расчёт предварительной стоимости
    Инженер делает первичный расчёт стоимости строительства по вашим параметрам: фундамент, коробка, кровля, отделка. Вы получаете смету с разбивкой по этапам.
    back
    Корректировка и утверждение сметы
    При необходимости вносим изменения — например, замену материалов или сокращение этапов. После согласования формируется окончательная фиксированная смета.
    back
    Заключение договора и старт работ
    После утверждения сметы заключаем официальный договор с гарантией. Вы получаете прозрачный график и точную стоимость — без скрытых расходов.

    Заказать конусльтацию по:Удобный 01

    Фото 1 Удобный 01


      Наши
      контакты

      Дмитров
      Опорный проезд 28Б
      (индустриальный парк Ниагара)
      9:00 до 18:00

      Корзина