4.9
Рейтинг на основании 120 отзывов
Дмитров
Опорный проезд 28Б
(индустриальный парк Ниагара)
Бренд "Дмитров-Дело" c 2008 года на рынке строительства в Дмитрове
Звоните 9:00 до 18:00 8 (915) 055-33-61
Бренд "Дмитров-Дело" c 2008 года на рынке строительства в Дмитрове

УГЛОВОЙ БАРНХАУС 131.2м2

Стоимость проекта от:
58 950 ₽
БЕСПЛАТНО! ПРИ ЗАКАЗЕ СТРОИТЕЛЬСТВА
Стоимость строительства от:
8 242 520 ₽
Артикул ART-4281
Дата 26.12.2025
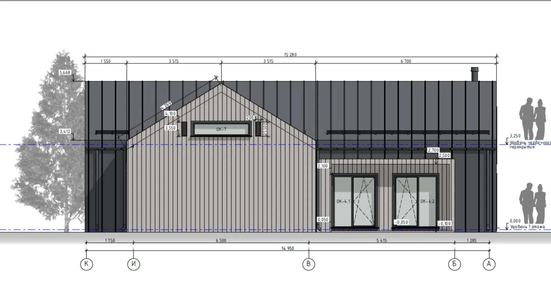
Архитектурный стиль Барнхаус
Количество надземных этажей 1
Круглогодичное проживание Да
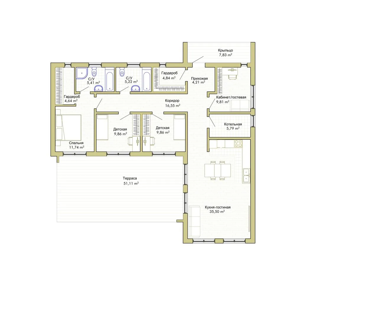
Площадь дома 131 м2
Санузлы 2
Спальни 3

Описание

Представляем вам уютный уголок, где каждый элемент создан с заботой о вашем комфорте и удовольствии от жить в настоящем. Этот одиннадцатиметровый барнхаус площадью 131,2 м² сочетает в себе традиционный американский очаг и современные требования к круглогодичному проживанию. Весь интерьер обрамлен древесными каркасами, которые придают дому лёгкую, воздушную структуру, а придавленные дваскатные крыши делают образ ярко выраженным и притягательным. Внутри вас ждёт открытая планировка, позволяющая творить, радовать и отдыхать в атмосфере простоты и аутентичности. Без лишних балконов и веранды этот дом остаётся максимально приватным, а широкая терраса приглашает в тёплый летний вечер, где можно насладиться видом на открытый простор и тихие звуки природы. Огромные окни, обрамленные деревянными рамами, наполняют пространство естественным светом и смягчают даже самые простые помещения. Это место, где каждый уголок рассказывает историю гостеприимства и уюта, где вам всегда будет так, будто вы в собственном убежище от суеты быта. Откройте для себя спокойствие нового дома, и пусть каждый ваш день начнётся с улыбки, которую приносит этот чарующий барнхаус.

Характеристики дома

Архитектурный стиль
Автоматизированное регулирование параметров теплоносителя
-
Балконы/лоджии
Отсутствуют
Чердачное помещение
Нет
Датчики протечки воды
-
Эксплуатируемая или зеленая кровля
-
Электроснабжение
Центральное
Газоснабжение
Не предусмотрено
Изоляция воздушного шума
-
Камин
Нет
Класс энергоэффективности
-
Класс энергосбережения
-
Количество надземных этажей
1
Круглогодичное проживание
Да
Материал кровли
Фальцевая кровля кровля из оцинкованных стальных листов
Материал перекрытий
Деревянные
Материал внешних стен
Материал внутренних перегородок
Деревянные
Модульное строительство с конструкциями заводского изготовления
Нет
Объем надземной части
-
Основной материал фасадов
Планкен
Отопление
Индивидуальное
Площадь дома
131 м2
Площадь застройки
201 м2
Подвальное помещение
Нет
Показатель компактности здания
-
Приборы учета тепловой энергии
-
Пристроенный гараж/крытая автостоянка
Нет
Противопожарная система
Нет
Санузлы
2
Совмещенная кухня-гостиная
Да
Спальни
3
Терраса
Да
Тип фундамента
Плитный
Тип кровли
Толщина внешних стен
200 мм
Толщина внутренних перегородок
100 мм
Улучшенные шумовые характеристики
-
Вентиляция
Естественная
Веранда
Нет
Водоотведение
Не предусмотрено
Водоснабжение
Центральное
Высота дома
5 м
Высота потолков
4 м

Планировка

Фасад дома

Александр

Закажите выезд инженера

Александр

Выездной инженер
Закажите выезд инженера для точной диагностики и профессиональной консультации по инженерным системам. Специалист приедет в удобное время, проведёт осмотр, рассчитает стоимость работ и подберёт оптимальные решения для вашего дома.


    Похожие проекты

    Ипотека и
    рассрочка
    Загородный дом «Карелия 57»
    Стоимость от:
    3 536 170
    Проект от: 27 450
    Этажей 1
    Санузлы 1
    Спальни 2
    Смотреть
    Ипотека и
    рассрочка
    Одноэтажный дом «Каппа-3» с террасой
    Стоимость от:
    5 887 365
    Проект от: 41 850
    Этажей 1
    Санузлы 1
    Спальни 3
    Смотреть
    Ипотека и
    рассрочка
    Лиана 2
    Стоимость от:
    11 041 140
    Проект от: 66 150
    Этажей 1
    Санузлы 2
    Спальни 3
    Смотреть
    Ипотека и
    рассрочка
    ВС103
    Стоимость от:
    7 740 260
    Проект от: 46 350
    Этажей 1
    Санузлы 1
    Спальни 3
    Смотреть
    Ипотека и
    рассрочка
    SKANDIK-44
    Стоимость от:
    2 550 680
    Проект от: 19 800
    Этажей 1
    Санузлы 1
    Спальни 1
    Смотреть
    Ипотека и
    рассрочка
    Моя История
    Стоимость от:
    9 604 320
    Проект от: 61 200
    Этажей 1
    Санузлы 2
    Спальни 3
    Смотреть

    Как узнать стоимость дома

    back
    Оставляете заявку
    Вы заполняете форму на сайте или звоните нам. Менеджер Лайвкрафт связывается с вами для уточнения деталей: тип дома, площадь, материалы, участок строительства.
    back
    Консультация и подбор решения
    Наш специалист помогает выбрать оптимальный тип дома и конструкцию с учётом бюджета, сроков и целей — будь то дом для постоянного проживания или дача.
    back
    Расчёт предварительной стоимости
    Инженер делает первичный расчёт стоимости строительства по вашим параметрам: фундамент, коробка, кровля, отделка. Вы получаете смету с разбивкой по этапам.
    back
    Корректировка и утверждение сметы
    При необходимости вносим изменения — например, замену материалов или сокращение этапов. После согласования формируется окончательная фиксированная смета.
    back
    Заключение договора и старт работ
    После утверждения сметы заключаем официальный договор с гарантией. Вы получаете прозрачный график и точную стоимость — без скрытых расходов.

    Заказать конусльтацию по:УГЛОВОЙ БАРНХАУС 131.2м2

    Фото 1 УГЛОВОЙ БАРНХАУС 131.2м2


      Наши
      контакты

      Дмитров
      Опорный проезд 28Б
      (индустриальный парк Ниагара)
      9:00 до 18:00

      Корзина