4.9
Рейтинг на основании 120 отзывов
Дмитров
Опорный проезд 28Б
(индустриальный парк Ниагара)
Бренд "Дмитров-Дело" c 2008 года на рынке строительства в Дмитрове
Звоните 9:00 до 18:00 8 (915) 055-33-61
Бренд "Дмитров-Дело" c 2008 года на рынке строительства в Дмитрове

UKL-207

Стоимость проекта от:
86 850 ₽
Стоимость строительства от:
14 067 460 ₽
Артикул ART-16132
Дата 25.12.2025
Архитектурный стиль Европейский
Количество надземных этажей 1
Круглогодичное проживание Да
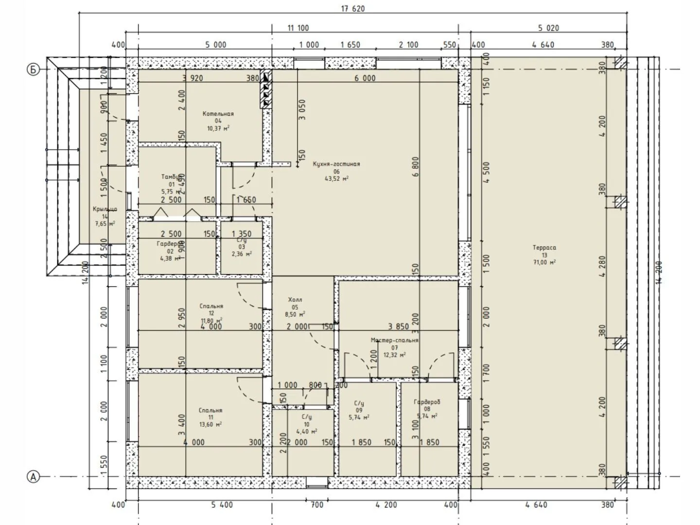
Площадь дома 193 м2
Санузлы 3
Спальни 3

Описание

Добро пожаловать в современный уголок европейского комфорта — UKL‑207. Это единоэтажное помесь уютной простоты и стильной архитектуры, созданное для того, чтобы каждый день начинался и заканчивался в гармонии с природой. Просторный внутренний двор и обилие естественного света делают дом идеальным для круглеторного проживания, в нём нет нужды скрытых прихожих — всё пространство открыто и дружелюбно. Гибкая планировка позволяет адаптировать комнаты под любые нужды: уютную гостиную, рабочий кабинет, игровую площадку для детей – всё это в одном гармоническом единстве. Наслаждайтесь летними вечерами прямо на собственном террасе, где можно устроить барбекю, читать роман под звёздами или просто наблюдать за вечерним солнцем, уходящим за горизонтом. Материалы высшего качества – газобетонные блоки – гарантируют тепло и шумоизоляцию, а плоская кровля открывает новый горизонт дизайна, придавая дому современные линии и простоту обслуживания. Не нужен присоединённый гараж: всё, что нужно – это уютная «стеклянная» дверь и возможность наслаждаться своим собственным пространством. UKL‑207 – это ваш новый дом, где каждый день – это вдохновение.

Характеристики дома

Архитектурный стиль
Европейский
Автоматизированное регулирование параметров теплоносителя
Нет
Балконы/лоджии
Отсутствуют
Чердачное помещение
Нет
Датчики протечки воды
Нет
Эксплуатируемая или зеленая кровля
Нет
Электроснабжение
Центральное
Газоснабжение
Не предусмотрено
Изоляция воздушного шума
Нет
Камин
Нет
Класс энергоэффективности
-
Класс энергосбережения
-
Количество надземных этажей
1
Круглогодичное проживание
Да
Материал кровли
Битумная черепица
Материал перекрытий
Сборные железобетонные предварительно напряженные пустотные плиты
Материал внешних стен
Газобетонные блоки
Материал внутренних перегородок
Блочные
Модульное строительство с конструкциями заводского изготовления
Нет
Объем надземной части
915 м3
Основной материал фасадов
Штукатурка
Отопление
Индивидуальное
Площадь дома
193 м2
Площадь застройки
243 м2
Подвальное помещение
Нет
Показатель компактности здания
-
Приборы учета тепловой энергии
Нет
Пристроенный гараж/крытая автостоянка
Нет
Противопожарная система
Нет
Санузлы
3
Совмещенная кухня-гостиная
Да
Спальни
3
Терраса
Да
Тип фундамента
Свайно-ростверковый
Тип кровли
Плоская
Толщина внешних стен
400 мм
Толщина внутренних перегородок
100 мм
Улучшенные шумовые характеристики
Нет
Вентиляция
Естественная
Веранда
Нет
Водоотведение
Локальные очистные сооружения
Водоснабжение
Индивидуальное
Высота дома
4.52 м
Высота потолков
3.25 м

Планировка

Фасад дома

Александр

Закажите выезд инженера

Александр

Выездной инженер
Закажите выезд инженера для точной диагностики и профессиональной консультации по инженерным системам. Специалист приедет в удобное время, проведёт осмотр, рассчитает стоимость работ и подберёт оптимальные решения для вашего дома.


    Похожие проекты

    Ипотека и
    рассрочка
    Полутороэтажный «БарнХаус-1,5»
    Стоимость от:
    3 792 360
    Проект от: 30 600
    Этажей 1
    Санузлы 1
    Спальни 2
    Смотреть
    Ипотека и
    рассрочка
    Одноэтажный дом Fixplans-1988
    Стоимость от:
    7 415 100
    Проект от: 47 250
    Этажей 1
    Санузлы 2
    Спальни 3
    Смотреть
    Ипотека и
    рассрочка
    Мансардный дом в стиле Барн «Адара»
    Стоимость от:
    7 111 500
    Проект от: 49 500
    Этажей 2
    Санузлы 2
    Спальни 3
    Смотреть
    Ипотека и
    рассрочка
    Двухэтажный дом с гаражом и зимнем садом. Проект «Династия»
    Стоимость от:
    14 464 080
    Проект от: 93 150
    Этажей 2
    Санузлы 2
    Спальни 3
    Смотреть
    Ипотека и
    рассрочка
    ДГ-3
    Стоимость от:
    6 847 720
    Проект от: 38 700
    Этажей 1
    Санузлы 1
    Спальни 3
    Смотреть
    Ипотека и
    рассрочка
    Проект «Айвазовский»
    Стоимость от:
    9 465 720
    Проект от: 56 700
    Этажей 1
    Санузлы 1
    Спальни 3
    Смотреть

    Как узнать стоимость дома

    back
    Оставляете заявку
    Вы заполняете форму на сайте или звоните нам. Менеджер Лайвкрафт связывается с вами для уточнения деталей: тип дома, площадь, материалы, участок строительства.
    back
    Консультация и подбор решения
    Наш специалист помогает выбрать оптимальный тип дома и конструкцию с учётом бюджета, сроков и целей — будь то дом для постоянного проживания или дача.
    back
    Расчёт предварительной стоимости
    Инженер делает первичный расчёт стоимости строительства по вашим параметрам: фундамент, коробка, кровля, отделка. Вы получаете смету с разбивкой по этапам.
    back
    Корректировка и утверждение сметы
    При необходимости вносим изменения — например, замену материалов или сокращение этапов. После согласования формируется окончательная фиксированная смета.
    back
    Заключение договора и старт работ
    После утверждения сметы заключаем официальный договор с гарантией. Вы получаете прозрачный график и точную стоимость — без скрытых расходов.

    Заказать конусльтацию по:UKL-207

    Фото 1 UKL-207


      Наши
      контакты

      Дмитров
      Опорный проезд 28Б
      (индустриальный парк Ниагара)
      9:00 до 18:00