4.9
Рейтинг на основании 120 отзывов
Дмитров
Опорный проезд 28Б
(индустриальный парк Ниагара)
Бренд "Дмитров-Дело" c 2008 года на рынке строительства в Дмитрове
Звоните 9:00 до 18:00 8 (915) 055-33-61
Бренд "Дмитров-Дело" c 2008 года на рынке строительства в Дмитрове

УРАЛ-2

Стоимость проекта от:
24 750 ₽
БЕСПЛАТНО! ПРИ ЗАКАЗЕ СТРОИТЕЛЬСТВА
Стоимость строительства от:
3 058 275 ₽
Артикул ART-11877
Дата 25.12.2025
Архитектурный стиль Барнхаус
Количество надземных этажей 1
Круглогодичное проживание Да
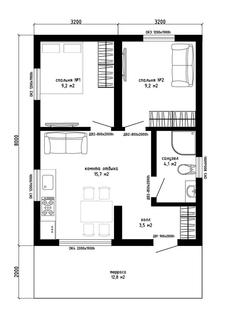
Площадь дома 55 м2
Санузлы 1
Спальни 2

Описание

Станьте хозяином уникального дома «Ураль‑2», созданного для комфортного круглогодичного проживания в стиле настоящего Barnhouse. Его душевная, деревянная конструкция и аккуратный двускатный череп излучает тепло и уют: стены выполнены из прочного каркасного дерева, а череп покрыт качественным материалом, который прекрасно изолирует от холодов и позволяет сохранять живой, солнечный интерьер даже в самые зябкие дни. Эта уютная монолитная единица с одним надземным этажом – идеальный вариант для тех, кто ценит простоту и традиционное очарование. Нет лишних балконов, веранд и громоздких автостоянок – дом сосредоточен на сути: просторной жилой зоне, открытой планировке, где свет льется из больших окон, а теплые деревянные детали придают атмосферу домашнего уюта. Собственный просторный террасы – ваш личный уголок для романтических закатов, летних барбекю или спокойных вечеров в окружении природы. Если вы мечтаете о доме, где каждый элемент продуман до мелочей, а каждая комната дарит ощущение дома, «Ураль‑2» станет вашим идеальным партнером на всем протяжении жизни.

Характеристики дома

Архитектурный стиль
Автоматизированное регулирование параметров теплоносителя
Нет
Балконы/лоджии
Отсутствуют
Чердачное помещение
Нет
Датчики протечки воды
Нет
Эксплуатируемая или зеленая кровля
Нет
Электроснабжение
Индивидуальное
Газоснабжение
Не предусмотрено
Изоляция воздушного шума
Нет
Камин
Нет
Класс энергоэффективности
-
Класс энергосбережения
-
Количество надземных этажей
1
Круглогодичное проживание
Да
Материал кровли
Металлические рулонные или листовые материалы
Материал перекрытий
Деревянные
Материал внешних стен
Материал внутренних перегородок
Деревянные
Модульное строительство с конструкциями заводского изготовления
Нет
Объем надземной части
164 м3
Основной материал фасадов
Дерево
Отопление
Индивидуальное
Площадь дома
55 м2
Площадь застройки
64 м2
Подвальное помещение
Нет
Показатель компактности здания
-
Приборы учета тепловой энергии
Нет
Пристроенный гараж/крытая автостоянка
Нет
Противопожарная система
Нет
Санузлы
1
Совмещенная кухня-гостиная
Да
Спальни
2
Терраса
Да
Тип фундамента
Свайно-винтовой
Тип кровли
Толщина внешних стен
225 мм
Толщина внутренних перегородок
100 мм
Улучшенные шумовые характеристики
Нет
Вентиляция
Естественная
Веранда
Нет
Водоотведение
Локальные очистные сооружения
Водоснабжение
Индивидуальное
Высота дома
3 м
Высота потолков
2.35 м

Планировка

Фасад дома

Александр

Закажите выезд инженера

Александр

Выездной инженер
Закажите выезд инженера для точной диагностики и профессиональной консультации по инженерным системам. Специалист приедет в удобное время, проведёт осмотр, рассчитает стоимость работ и подберёт оптимальные решения для вашего дома.


    Похожие проекты

    Ипотека и
    рассрочка
    Проект дома из сип-панелей «Алькор»
    Стоимость от:
    6 399 480
    Проект от: 43 650
    Этажей 2
    Санузлы 2
    Спальни 2
    Смотреть
    Ипотека и
    рассрочка
    Проект Индивидуальный жилой дом ОС-23-30
    Стоимость от:
    6 688 880
    Проект от: 37 800
    Этажей 1
    Санузлы 1
    Спальни 3
    Смотреть
    Ипотека и
    рассрочка
    Дом из клееного бруса «Кивач»
    Стоимость от:
    6 603 480
    Проект от: 45 900
    Этажей 2
    Санузлы 2
    Спальни 3
    Смотреть
    Ипотека и
    рассрочка
    Индивидуальный жилой дом площадью 99 м2
    Стоимость от:
    7 880 180
    Проект от: 44 550
    Этажей 1
    Санузлы 1
    Спальни 3
    Смотреть
    Ипотека и
    рассрочка
    Загородный дом Екатерина
    Стоимость от:
    12 963 060
    Проект от: 73 350
    Этажей 1
    Санузлы 2
    Спальни 3
    Смотреть
    Ипотека и
    рассрочка
    River Hall 138
    Стоимость от:
    9 817 920
    Проект от: 62 100
    Этажей 2
    Санузлы 3
    Спальни 4
    Смотреть

    Как узнать стоимость дома

    back
    Оставляете заявку
    Вы заполняете форму на сайте или звоните нам. Менеджер Лайвкрафт связывается с вами для уточнения деталей: тип дома, площадь, материалы, участок строительства.
    back
    Консультация и подбор решения
    Наш специалист помогает выбрать оптимальный тип дома и конструкцию с учётом бюджета, сроков и целей — будь то дом для постоянного проживания или дача.
    back
    Расчёт предварительной стоимости
    Инженер делает первичный расчёт стоимости строительства по вашим параметрам: фундамент, коробка, кровля, отделка. Вы получаете смету с разбивкой по этапам.
    back
    Корректировка и утверждение сметы
    При необходимости вносим изменения — например, замену материалов или сокращение этапов. После согласования формируется окончательная фиксированная смета.
    back
    Заключение договора и старт работ
    После утверждения сметы заключаем официальный договор с гарантией. Вы получаете прозрачный график и точную стоимость — без скрытых расходов.

    Заказать конусльтацию по:УРАЛ-2

    Фото 1 УРАЛ-2


      Наши
      контакты

      Дмитров
      Опорный проезд 28Б
      (индустриальный парк Ниагара)
      9:00 до 18:00

      Корзина