4.9
Рейтинг на основании 120 отзывов
Дмитров
Опорный проезд 28Б
(индустриальный парк Ниагара)
Бренд "Дмитров-Дело" c 2008 года на рынке строительства в Дмитрове
Звоните 9:00 до 18:00 8 (915) 055-33-61
Бренд "Дмитров-Дело" c 2008 года на рынке строительства в Дмитрове

Уютный 112

Стоимость проекта от:
54 900 ₽
БЕСПЛАТНО! ПРИ ЗАКАЗЕ СТРОИТЕЛЬСТВА
Стоимость строительства от:
8 347 240 ₽
Артикул ART-15334
Дата 25.12.2025
Архитектурный стиль Классический
Количество надземных этажей 1
Круглогодичное проживание Да
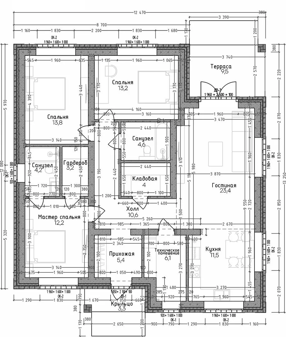
Площадь дома 122 м2
Санузлы 2
Спальни 3

Описание

Прекрасная, уютная «112» — ваш собственный уголок тепла и уюта, где каждая деталь создана для того, чтобы вы чувствовали себя дома с первого взгляда. Это одноэтажный дом в классическом стиле, который сочетает в себе элегантную простоту и практичность. За счёт четырёхскатной (вальмовой) крыши и керамикобетонных блоков в облике внешних стен, он не только выдержит любые климатические условия, но и будет радовать вас своей безупречной элегантностью. Год за годом вы будете наслаждаться комфортом в круглом году, ведь дом был продуман до мелочей, чтобы его можно было обустроить в любой сезон. Просторные комнаты с высокими потолками создают ощущение лёгкой воздушности. Внутри вы найдёте все необходимое для полноценной жизни: просторное кухонное пространство, где запах свежих продуктов не оставит равнодушными, светлые, гостеприимные комнаты, идеальные как для уединённых вечеров, так и для семейных встреч. Приютится даже тихий уголок с видом на тихий дворовой уголок, где можно насладиться чашечкой кофе, наблюдая, как заря окрасит горизонты. И, конечно же, не забудем о нашей милой террасе — идеальном месте для вечерних барбекю, уединенных чтений под звёздами или просто для наслаждения ароматом свежего воздуха. Здесь вы сможете почувствовать себя частью природы, забывая о суете. «112» — это не просто стены и крыша, а место, где ваш дом становится местом, где каждый день начинается с улыбки, а заканчивается уютом и покоем. Приезжайте и убедитесь сами, как легко может стать ваша жизнь красивей!

Характеристики дома

Архитектурный стиль
Автоматизированное регулирование параметров теплоносителя
Нет
Балконы/лоджии
Отсутствуют
Чердачное помещение
Нет
Датчики протечки воды
Нет
Эксплуатируемая или зеленая кровля
Нет
Электроснабжение
Центральное
Газоснабжение
Не предусмотрено
Изоляция воздушного шума
Да
Камин
Нет
Класс энергоэффективности
-
Класс энергосбережения
-
Количество надземных этажей
1
Круглогодичное проживание
Да
Материал кровли
Битумная черепица
Материал перекрытий
Деревянные
Материал внешних стен
Материал внутренних перегородок
Блочные
Модульное строительство с конструкциями заводского изготовления
Нет
Объем надземной части
267 м3
Основной материал фасадов
Облицовочный кирпич
Отопление
Индивидуальное
Площадь дома
122 м2
Площадь застройки
166 м2
Подвальное помещение
Нет
Показатель компактности здания
-
Приборы учета тепловой энергии
Нет
Пристроенный гараж/крытая автостоянка
Нет
Противопожарная система
Нет
Санузлы
2
Совмещенная кухня-гостиная
Да
Спальни
3
Терраса
Да
Тип фундамента
Плитный
Толщина внешних стен
300 мм
Толщина внутренних перегородок
100 мм
Улучшенные шумовые характеристики
Да
Вентиляция
Естественная
Веранда
Нет
Водоотведение
Локальные очистные сооружения
Водоснабжение
Индивидуальное
Высота дома
6 м
Высота потолков
3 м

Планировка

Фасад дома

Александр

Закажите выезд инженера

Александр

Выездной инженер
Закажите выезд инженера для точной диагностики и профессиональной консультации по инженерным системам. Специалист приедет в удобное время, проведёт осмотр, рассчитает стоимость работ и подберёт оптимальные решения для вашего дома.


    Похожие проекты

    Ипотека и
    рассрочка
    ДК-309
    Стоимость от:
    3 179 275
    Проект от: 24 750
    Этажей 1
    Санузлы 1
    Спальни 2
    Смотреть
    Ипотека и
    рассрочка
    Барн 166 от Строй и Живи
    Стоимость от:
    7 304 220
    Проект от: 56 700
    Этажей 1
    Санузлы 4
    Спальни 4
    Смотреть
    Ипотека и
    рассрочка
    Загородный дом АС-258
    Стоимость от:
    22 725 840
    Проект от: 148 950
    Этажей 2
    Санузлы 3
    Спальни 3
    Смотреть
    Ипотека и
    рассрочка
    Проект двухэтажного дома с сауной в классическом стиле S-349
    Стоимость от:
    26 057 520
    Проект от: 167 850
    Этажей 2
    Санузлы 4
    Спальни 5
    Смотреть
    Ипотека и
    рассрочка
    Жилой одноэтажный дом с тремя спальнями
    Стоимость от:
    5 394 950
    Проект от: 38 250
    Этажей 1
    Санузлы 1
    Спальни 3
    Смотреть
    Ипотека и
    рассрочка
    Европа 115
    Стоимость от:
    9 015 600
    Проект от: 54 000
    Этажей 1
    Санузлы 2
    Спальни 3
    Смотреть

    Как узнать стоимость дома

    back
    Оставляете заявку
    Вы заполняете форму на сайте или звоните нам. Менеджер Лайвкрафт связывается с вами для уточнения деталей: тип дома, площадь, материалы, участок строительства.
    back
    Консультация и подбор решения
    Наш специалист помогает выбрать оптимальный тип дома и конструкцию с учётом бюджета, сроков и целей — будь то дом для постоянного проживания или дача.
    back
    Расчёт предварительной стоимости
    Инженер делает первичный расчёт стоимости строительства по вашим параметрам: фундамент, коробка, кровля, отделка. Вы получаете смету с разбивкой по этапам.
    back
    Корректировка и утверждение сметы
    При необходимости вносим изменения — например, замену материалов или сокращение этапов. После согласования формируется окончательная фиксированная смета.
    back
    Заключение договора и старт работ
    После утверждения сметы заключаем официальный договор с гарантией. Вы получаете прозрачный график и точную стоимость — без скрытых расходов.

    Заказать конусльтацию по:Уютный 112

    Фото 1 Уютный 112


      Наши
      контакты

      Дмитров
      Опорный проезд 28Б
      (индустриальный парк Ниагара)
      9:00 до 18:00

      Корзина