4.9
Рейтинг на основании 120 отзывов
Дмитров
Опорный проезд 28Б
(индустриальный парк Ниагара)
Бренд "Дмитров-Дело" c 2008 года на рынке строительства в Дмитрове
Звоните 9:00 до 18:00 8 (915) 055-33-61
Бренд "Дмитров-Дело" c 2008 года на рынке строительства в Дмитрове

Уютный-137 1 этаж

Стоимость проекта от:
61 650 ₽
БЕСПЛАТНО! ПРИ ЗАКАЗЕ СТРОИТЕЛЬСТВА
Стоимость строительства от:
9 674 940 ₽
Артикул ART-4192
Дата 26.12.2025
Архитектурный стиль Классический
Количество надземных этажей 1
Круглогодичное проживание Да
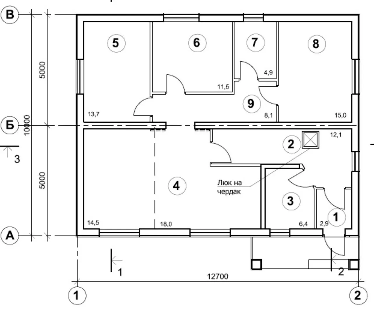
Площадь дома 137 м2
Санузлы 2
Спальни 3

Описание

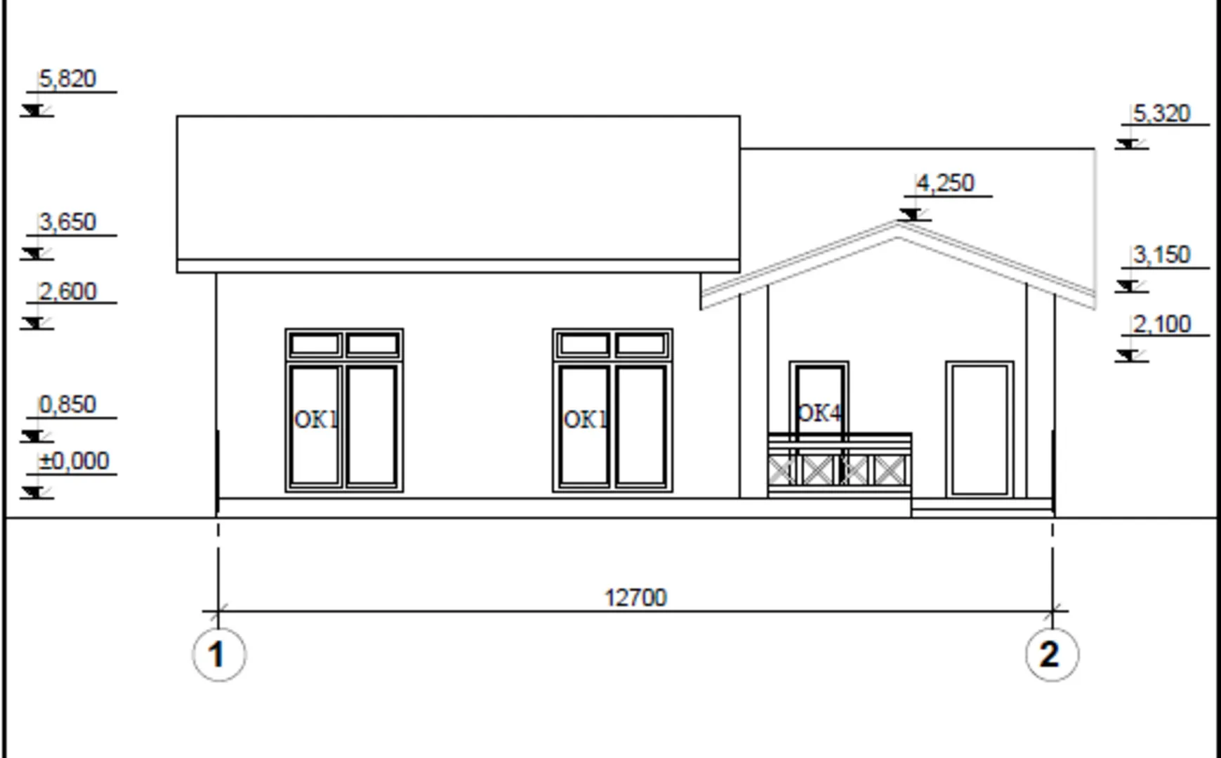
**Уютный‑137** – это настоящий уголок, где каждая деталь будто создана для того, чтобы сделать ваш дом не просто жильём, а настоящим домом. На одиннадцать тысяч квадратных метров газобетонных блоков в классическом стиле выстроился надёжный, но в то же время светлый шедевр. Внутри царит гармония простоты и комфорта: открытый двор, где мягкий свет проникает внутрь, создавая ощущение постоянной весны. Этот дом рассчитан на круглогодичную жизнь, а его простое, но изысканное оформление приглашает вас расслабиться и насладиться уютом. Великолепный двускатный покров – как традиционный семейный шлейф, который защищает от ветра и дождя, одновременно придавая дому непревзойденную элегантность. Один из балконов, словно открытая врата, позволяет вам наслаждаться свежим воздухом и красивыми видами, не покидая теплоты дома. Внутри находится удобный чердачное помещение, где можно хранить всё, что нужно, а в более низкой части – просторная гостинная и уютная кухня, где каждое мгновение превращается в праздник. Гостеприимный, практичный и в то же время изысканный, **Уютный‑137** предлагает идеальное сочетание традиций и современных удобств. Без прицепленного гаража и веранд, но с гарантией безопасности и уюта, он становится идеальным выбором для тех, кто ценит тепло и комфорт в каждом уголке своего дома. Выберите этот дом и позвольте ему стать тем местом, где будет царить ваше личное счастье.

Характеристики дома

Архитектурный стиль
Автоматизированное регулирование параметров теплоносителя
Нет
Балконы/лоджии
1
Чердачное помещение
Да
Датчики протечки воды
Нет
Эксплуатируемая или зеленая кровля
Нет
Электроснабжение
Индивидуальное
Газоснабжение
Не предусмотрено
Изоляция воздушного шума
Нет
Камин
Нет
Класс энергоэффективности
-
Класс энергосбережения
-
Количество надземных этажей
1
Круглогодичное проживание
Да
Материал кровли
Металлочерепица
Материал перекрытий
Деревянные
Материал внешних стен
Материал внутренних перегородок
Блочные
Модульное строительство с конструкциями заводского изготовления
Нет
Объем надземной части
400 м3
Основной материал фасадов
Штукатурка
Отопление
Индивидуальное
Площадь дома
137 м2
Площадь застройки
137 м2
Подвальное помещение
Нет
Показатель компактности здания
-
Приборы учета тепловой энергии
Нет
Пристроенный гараж/крытая автостоянка
Нет
Противопожарная система
Нет
Санузлы
2
Совмещенная кухня-гостиная
Да
Спальни
3
Терраса
Нет
Тип фундамента
Плитный
Тип кровли
Толщина внешних стен
300 мм
Толщина внутренних перегородок
100 мм
Улучшенные шумовые характеристики
Нет
Вентиляция
Естественная
Веранда
Нет
Водоотведение
Локальные очистные сооружения
Водоснабжение
Индивидуальное
Высота дома
5.82 м
Высота потолков
2.85 м

Планировка

Фасад дома

Александр

Закажите выезд инженера

Александр

Выездной инженер
Закажите выезд инженера для точной диагностики и профессиональной консультации по инженерным системам. Специалист приедет в удобное время, проведёт осмотр, рассчитает стоимость работ и подберёт оптимальные решения для вашего дома.


    Похожие проекты

    Ипотека и
    рассрочка
    ДОМ РТ — 90
    Стоимость от:
    6 840 020
    Проект от: 40 950
    Этажей 1
    Санузлы 2
    Спальни 3
    Смотреть
    Ипотека и
    рассрочка
    Финский дом К137
    Стоимость от:
    4 392 795
    Проект от: 35 550
    Этажей 1
    Санузлы 1
    Спальни 3
    Смотреть
    Ипотека и
    рассрочка
    Нео Барн 59
    Стоимость от:
    2 832 445
    Проект от: 22 050
    Этажей 1
    Санузлы 1
    Спальни 3
    Смотреть
    Ипотека и
    рассрочка
    K 1-103
    Стоимость от:
    7 590 220
    Проект от: 45 450
    Этажей 1
    Санузлы 2
    Спальни 3
    Смотреть
    Ипотека и
    рассрочка
    Одноэтажный дом СКАЙ-60
    Стоимость от:
    4 237 200
    Проект от: 27 000
    Этажей 1
    Санузлы 2
    Спальни 2
    Смотреть
    Ипотека и
    рассрочка
    Берген
    Стоимость от:
    10 133 160
    Проект от: 76 050
    Этажей 2
    Санузлы 1
    Спальни 3
    Смотреть

    Как узнать стоимость дома

    back
    Оставляете заявку
    Вы заполняете форму на сайте или звоните нам. Менеджер Лайвкрафт связывается с вами для уточнения деталей: тип дома, площадь, материалы, участок строительства.
    back
    Консультация и подбор решения
    Наш специалист помогает выбрать оптимальный тип дома и конструкцию с учётом бюджета, сроков и целей — будь то дом для постоянного проживания или дача.
    back
    Расчёт предварительной стоимости
    Инженер делает первичный расчёт стоимости строительства по вашим параметрам: фундамент, коробка, кровля, отделка. Вы получаете смету с разбивкой по этапам.
    back
    Корректировка и утверждение сметы
    При необходимости вносим изменения — например, замену материалов или сокращение этапов. После согласования формируется окончательная фиксированная смета.
    back
    Заключение договора и старт работ
    После утверждения сметы заключаем официальный договор с гарантией. Вы получаете прозрачный график и точную стоимость — без скрытых расходов.

    Заказать конусльтацию по:Уютный-137 1 этаж

    Фото 1 Уютный-137 1 этаж


      Наши
      контакты

      Дмитров
      Опорный проезд 28Б
      (индустриальный парк Ниагара)
      9:00 до 18:00

      Корзина