4.9
Рейтинг на основании 120 отзывов
Дмитров
Опорный проезд 28Б
(индустриальный парк Ниагара)
Бренд "Дмитров-Дело" c 2008 года на рынке строительства в Дмитрове
Звоните 9:00 до 18:00 8 (915) 055-33-61
Бренд "Дмитров-Дело" c 2008 года на рынке строительства в Дмитрове

Уютный

Стоимость проекта от:
56 250 ₽
БЕСПЛАТНО! ПРИ ЗАКАЗЕ СТРОИТЕЛЬСТВА
Стоимость строительства от:
8 552 500 ₽
Артикул ART-6263
Дата 26.12.2025
Архитектурный стиль Европейский
Количество надземных этажей 1
Круглогодичное проживание Да
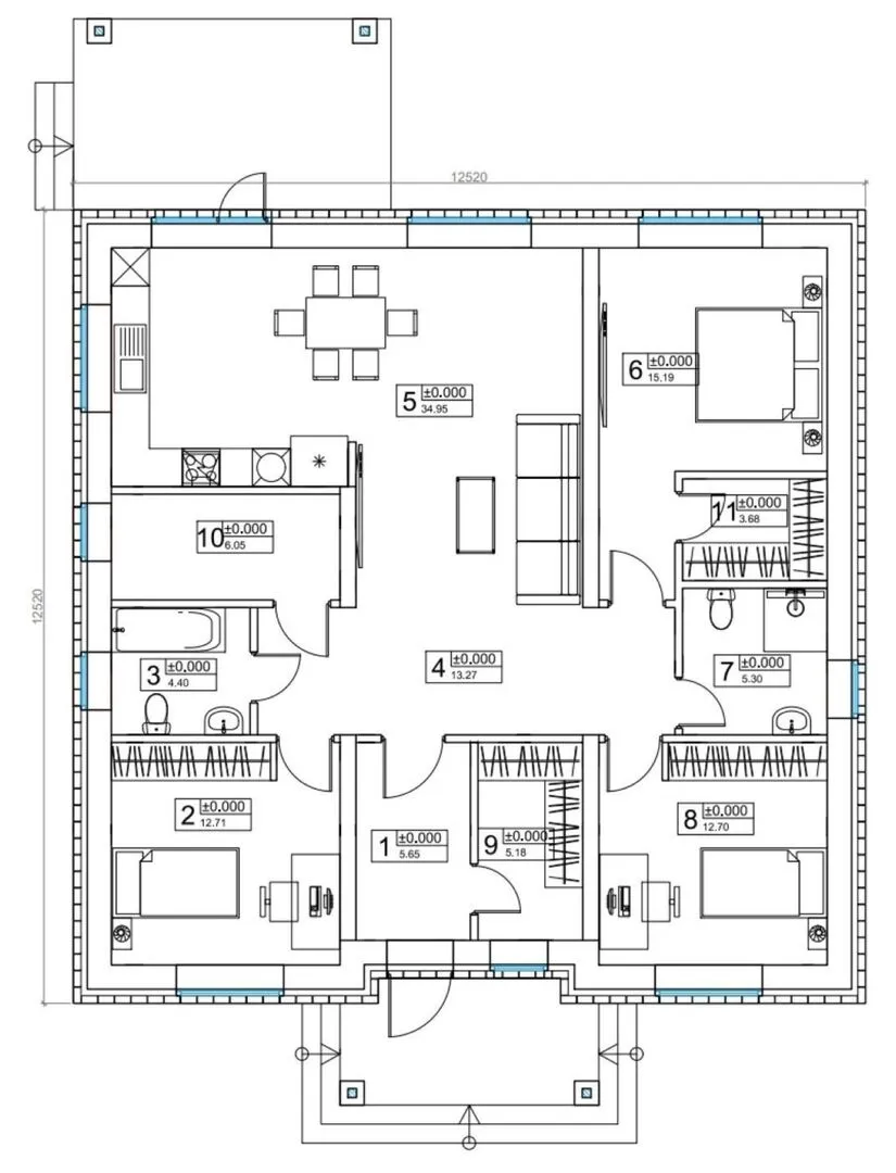
Площадь дома 125 м2
Санузлы 2
Спальни 3

Описание

Пусть ваша мечта о собственном уюте станет реальностью в этом тихом уголке европейской эстетики. Дом, построенный из тёплого кирпича, излучает неподдельную аутентичность, благодаря классическому четырёхскатному слоаному дху, который подчеркивает его элегантность даже в облаках пасмурных дней. Одиннадцатый этаж, хотя и прост, но идеально рассчитан на круглогодичное проживание: большие окна пропускают солнечные лучи, создавая ощущение светлого и просторного интерьера, а тепло от кирпичных стен и изолирующая крыша делают дом идеальным в любой погоне климата. В доме уютная зонирование, где каждая зона чувствуется гостеприимно. Залитый природным светом, открытый пространство с элегантной террасой приглашает к отдыха, где можно насладиться вечерним кофе или собраться на семейные чаепития. Внутри – доступ к чердачному помещению, которое прекрасно подойдет для детской мастерской, рабочего кабинета или уютной гостиной. Этот дом не просто место для проживания, а пространство, где каждый уголок наполнен теплом, комфортом и душой европейского дизайна. Выбирая этот дом, вы открываете путь к спокойствию и гармонии: простая, но изысканная архитектура без балконов и веранды, но с большим уютным пространством. Он создан для тех, кто ценит качество, простоту и естественное сочетание стиля и практичности. Приходите и откройте для себя новый уровень домашней жизни, где каждая мелочь продумана, а каждая комната приглашает вас почувствовать себя дома.

Характеристики дома

Архитектурный стиль
Автоматизированное регулирование параметров теплоносителя
-
Балконы/лоджии
Отсутствуют
Чердачное помещение
Да
Датчики протечки воды
-
Эксплуатируемая или зеленая кровля
-
Электроснабжение
Центральное
Газоснабжение
Центральное
Изоляция воздушного шума
-
Камин
Нет
Класс энергоэффективности
-
Класс энергосбережения
-
Количество надземных этажей
1
Круглогодичное проживание
Да
Материал кровли
Битумная черепица
Материал перекрытий
Деревянные
Материал внешних стен
Материал внутренних перегородок
Кирпичные
Модульное строительство с конструкциями заводского изготовления
Нет
Объем надземной части
-
Основной материал фасадов
Облицовочный кирпич
Отопление
Индивидуальное
Площадь дома
125 м2
Площадь застройки
186 м2
Подвальное помещение
Нет
Показатель компактности здания
-
Приборы учета тепловой энергии
-
Пристроенный гараж/крытая автостоянка
Нет
Противопожарная система
Нет
Санузлы
2
Совмещенная кухня-гостиная
Да
Спальни
3
Терраса
Да
Тип фундамента
Плитный
Толщина внешних стен
620 мм
Толщина внутренних перегородок
120 мм
Улучшенные шумовые характеристики
-
Вентиляция
Естественная
Веранда
Нет
Водоотведение
Локальные очистные сооружения
Водоснабжение
Индивидуальное
Высота дома
5.8 м
Высота потолков
3 м

Планировка

Фасад дома

Александр

Закажите выезд инженера

Александр

Выездной инженер
Закажите выезд инженера для точной диагностики и профессиональной консультации по инженерным системам. Специалист приедет в удобное время, проведёт осмотр, рассчитает стоимость работ и подберёт оптимальные решения для вашего дома.


    Похожие проекты

    Ипотека и
    рассрочка
    Проект жилого 2-х этажного дома
    Стоимость от:
    13 733 520
    Проект от: 86 850
    Этажей 2
    Санузлы 1
    Спальни 4
    Смотреть
    Ипотека и
    рассрочка
    Мансардный дом О-140
    Стоимость от:
    9 714 960
    Проект от: 62 550
    Этажей 2
    Санузлы 2
    Спальни 3
    Смотреть
    Ипотека и
    рассрочка
    FK ГАЛ-112
    Стоимость от:
    6 919 560
    Проект от: 48 150
    Этажей 2
    Санузлы 2
    Спальни 4
    Смотреть
    Ипотека и
    рассрочка
    Проект дома КС-14
    Стоимость от:
    12 963 060
    Проект от: 73 350
    Этажей 1
    Санузлы 2
    Спальни 4
    Смотреть
    Ипотека и
    рассрочка
    Гурзуф 64
    Стоимость от:
    3 988 600
    Проект от: 22 500
    Этажей 1
    Санузлы 1
    Спальни 2
    Смотреть
    Ипотека и
    рассрочка
    «Брайцев»
    Стоимость от:
    7 364 760
    Проект от: 55 350
    Этажей 2
    Санузлы 1
    Спальни 5
    Смотреть

    Как узнать стоимость дома

    back
    Оставляете заявку
    Вы заполняете форму на сайте или звоните нам. Менеджер Лайвкрафт связывается с вами для уточнения деталей: тип дома, площадь, материалы, участок строительства.
    back
    Консультация и подбор решения
    Наш специалист помогает выбрать оптимальный тип дома и конструкцию с учётом бюджета, сроков и целей — будь то дом для постоянного проживания или дача.
    back
    Расчёт предварительной стоимости
    Инженер делает первичный расчёт стоимости строительства по вашим параметрам: фундамент, коробка, кровля, отделка. Вы получаете смету с разбивкой по этапам.
    back
    Корректировка и утверждение сметы
    При необходимости вносим изменения — например, замену материалов или сокращение этапов. После согласования формируется окончательная фиксированная смета.
    back
    Заключение договора и старт работ
    После утверждения сметы заключаем официальный договор с гарантией. Вы получаете прозрачный график и точную стоимость — без скрытых расходов.

    Заказать конусльтацию по:Уютный

    Фото 1 Уютный


      Наши
      контакты

      Дмитров
      Опорный проезд 28Б
      (индустриальный парк Ниагара)
      9:00 до 18:00

      Корзина