4.9
Рейтинг на основании 120 отзывов
Дмитров
Опорный проезд 28Б
(индустриальный парк Ниагара)
Бренд "Дмитров-Дело" c 2008 года на рынке строительства в Дмитрове
Звоните 9:00 до 18:00 8 (915) 055-33-61
Бренд "Дмитров-Дело" c 2008 года на рынке строительства в Дмитрове

Векшино

Стоимость проекта от:
87 750 ₽
БЕСПЛАТНО! ПРИ ЗАКАЗЕ СТРОИТЕЛЬСТВА
Стоимость строительства от:
12 269 400 ₽
Артикул ART-11427
Дата 25.12.2025
Архитектурный стиль Скандинавский
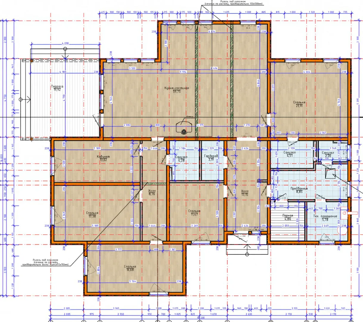
Количество надземных этажей 1
Круглогодичное проживание Да
Площадь дома 195 м2
Санузлы 3
Спальни 4

Описание

Вокруг уютного одноэтажного дома, построенного в скандинавском стиле, живёт тихая гармония просторов и природы. Деревянный каркасный фасад, завернутый в традиционный два‑скатный шатер, создаёт ощущение летнего тёплого обнимка, которым можно наслаждаться даже в суровую пору года. Терраса, открытая к мягкому свету, приглашает проводить вечера на свежем воздухе, не тратя сил на вешание веранды или балконов. Внутренний простор пропитан светом и простотой: открытая планировка, где каждая комната наполнена уютом и элегантностью. Отсутствие привалов, гаража и чердака позволило сосредоточиться на максимальном использовании пространства, обеспечивая комфортное круглогодичное проживание. Минимализм архитектуры подчёркивает изящество скандинавского стиля, а натуральные деревянные стенки придают дому тепло и душевность. Если вы ищете идеальный баланс между современным комфортом и природной красотой, этот дом в Векшино станет вашим убежищем. Позвольте себе ощутить каждую деталь этого уединённого уголка, где каждый момент ценится как подарок. Свяжитесь с нами, и мы помогут сделать это место вашим новым домом.

Характеристики дома

Архитектурный стиль
Автоматизированное регулирование параметров теплоносителя
Нет
Балконы/лоджии
Отсутствуют
Чердачное помещение
Нет
Датчики протечки воды
Нет
Эксплуатируемая или зеленая кровля
Нет
Электроснабжение
Не предусмотрено
Газоснабжение
Не предусмотрено
Изоляция воздушного шума
Да
Камин
Да
Класс энергоэффективности
-
Класс энергосбережения
-
Количество надземных этажей
1
Круглогодичное проживание
Да
Материал кровли
Фальцевая кровля Кликфальц
Материал перекрытий
Деревянные
Материал внешних стен
Материал внутренних перегородок
Деревянные
Модульное строительство с конструкциями заводского изготовления
Нет
Объем надземной части
367 м3
Основной материал фасадов
Дерево
Отопление
Не предусмотрено
Площадь дома
195 м2
Площадь застройки
215 м2
Подвальное помещение
Нет
Показатель компактности здания
-
Приборы учета тепловой энергии
Нет
Пристроенный гараж/крытая автостоянка
Нет
Противопожарная система
Нет
Санузлы
3
Совмещенная кухня-гостиная
Да
Спальни
4
Терраса
Да
Тип фундамента
Плитный
Тип кровли
Толщина внешних стен
238 мм
Толщина внутренних перегородок
205 мм
Улучшенные шумовые характеристики
Да
Вентиляция
Естественная
Веранда
Нет
Водоотведение
Не предусмотрено
Водоснабжение
Не предусмотрено
Высота дома
5.66 м
Высота потолков
3 м

Планировка

Фасад дома

Александр

Закажите выезд инженера

Александр

Выездной инженер
Закажите выезд инженера для точной диагностики и профессиональной консультации по инженерным системам. Специалист приедет в удобное время, проведёт осмотр, рассчитает стоимость работ и подберёт оптимальные решения для вашего дома.


    Похожие проекты

    Ипотека и
    рассрочка
    Загородный дом «Семейный»
    Стоимость от:
    9 125 280
    Проект от: 54 900
    Этажей 2
    Санузлы 1
    Спальни 3
    Смотреть
    Ипотека и
    рассрочка
    D177-2
    Стоимость от:
    11 201 280
    Проект от: 77 400
    Этажей 2
    Санузлы 2
    Спальни 3
    Смотреть
    Ипотека и
    рассрочка
    «Базыль»
    Стоимость от:
    9 471 120
    Проект от: 59 850
    Этажей 2
    Санузлы 2
    Спальни 5
    Смотреть
    Ипотека и
    рассрочка
    Проект одноэтажный №3
    Стоимость от:
    13 201 320
    Проект от: 74 700
    Этажей 1
    Санузлы 2
    Спальни 4
    Смотреть
    Ипотека и
    рассрочка
    Загородный дом — 104
    Стоимость от:
    11 364 480
    Проект от: 68 400
    Этажей 2
    Санузлы 2
    Спальни 4
    Смотреть
    Ипотека и
    рассрочка
    Хайтек К118
    Стоимость от:
    4 987 260
    Проект от: 38 250
    Этажей 2
    Санузлы 2
    Спальни 3
    Смотреть

    Как узнать стоимость дома

    back
    Оставляете заявку
    Вы заполняете форму на сайте или звоните нам. Менеджер Лайвкрафт связывается с вами для уточнения деталей: тип дома, площадь, материалы, участок строительства.
    back
    Консультация и подбор решения
    Наш специалист помогает выбрать оптимальный тип дома и конструкцию с учётом бюджета, сроков и целей — будь то дом для постоянного проживания или дача.
    back
    Расчёт предварительной стоимости
    Инженер делает первичный расчёт стоимости строительства по вашим параметрам: фундамент, коробка, кровля, отделка. Вы получаете смету с разбивкой по этапам.
    back
    Корректировка и утверждение сметы
    При необходимости вносим изменения — например, замену материалов или сокращение этапов. После согласования формируется окончательная фиксированная смета.
    back
    Заключение договора и старт работ
    После утверждения сметы заключаем официальный договор с гарантией. Вы получаете прозрачный график и точную стоимость — без скрытых расходов.

    Заказать конусльтацию по:Векшино

    Фото 1 Векшино


      Наши
      контакты

      Дмитров
      Опорный проезд 28Б
      (индустриальный парк Ниагара)
      9:00 до 18:00

      Корзина